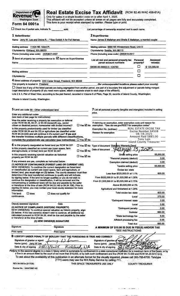
Property
Account |
| Property ID: | 539135 | Abbreviated Legal Description: | WAYNE'S RIDGE ESTATES LOT 13 |
| Geographic ID: | S8382-00-00013-0 | Agent Code: | |
| Type: | Real | | |
| Tax Area: | 512 - APPRAISER-Stan/Cam Schl Dist, improved, greater than 1 acre | Land Use Code | 11 |
| Open Space: | N | DFL | N |
| Historic Property: | N | Remodel Property: | N |
| Multi-Family Redevelopment: | N | | |
| Township: | | Section: | |
| Range: | |
Location |
| Address: | 518 WAYNES RIDGE CIR CAMANO ISLAND, WA 98282 | Mapsco: | |
| Neighborhood: | North Camano | Map ID: | 563 |
| Neighborhood CD: | 06-C |
Owner |
| Name: | STACH, TAUBER | Owner ID: | 304022 |
| Mailing Address: | JULIE STACH 518 WAYNES RIDGE CIR CAMANO ISLAND, WA 98282 | % Ownership: | 100.0000000000% |
| | | Exemptions: | |
Taxes and Assessment Details
Values
| (+) Improvement Homesite Value: | + | $0 | |
| (+) Improvement Non-Homesite Value: | + | $445,470 | |
| (+) Land Homesite Value: | + | $0 | |
| (+) Land Non-Homesite Value: | + | $425,000 | |
| (+) Curr Use (HS): | + | $0 | $0 |
| (+) Curr Use (NHS): | + | $0 | $0 |
| | | -------------------------- | |
| (=) Market Value: | = | $870,470 | |
| (–) Productivity Loss: | – | $0 | |
| | | -------------------------- | |
| (=) Subtotal: | = | $870,470 | |
| (+) Senior Appraised Value: | + | $0 | |
| (+) Non-Senior Appraised Value: | + | $870,470 | |
| | | -------------------------- | |
| (=) Total Appraised Value: | = | $870,470 | |
| (–) Senior Exemption Loss: | – | $0 | |
| (–) Exemption Loss: | – | $0 | |
| | | -------------------------- | |
| (=) Taxable Value: | = | $870,470 | |
Taxing Jurisdiction
| Owner: | STACH, TAUBER | | |
| % Ownership: | 100.0000000000% | | |
| Total Value: | $870,470 | | |
| Tax Area: | 512 - APPRAISER-Stan/Cam Schl Dist, improved, greater than 1 acre |
| CF | Conservation Futures | 0.0316035091 | $870,470 | $870,470 | $27.51 | | |
| EMS1 | Fire & Rescue Dist #1 Camano GEN (EMS) | 0.3677864386 | $870,470 | $870,470 | $320.15 | | |
| FIRE1 | Fire & Rescue Dist #1 Camano GEN | 1.2502910536 | $870,470 | $870,470 | $1,088.34 | | |
| FIRE1BOND | Fire & Rescue Dist #1 Camano BOND | 0.1570001679 | $870,470 | $870,470 | $136.66 | | |
| CE | County Current Expense | 0.3708482477 | $870,470 | $870,470 | $322.81 | | |
| CR | County Roads | 0.4584763726 | $870,470 | $870,470 | $399.09 | | |
| LCIB | Library Sno-Isle BOND (Camano Island) | 0.0396325772 | $870,470 | $870,470 | $34.50 | | |
| LIB | Library Sno-Isle GEN | 0.3153421757 | $870,470 | $870,470 | $274.50 | | |
| SCH205_401 | School 205-401 Enrichment | 1.2698420524 | $870,470 | $870,470 | $1,105.36 | | |
| SCH205BOND | School 205-401 BOND | 0.9396497583 | $870,470 | $870,470 | $817.94 | | |
| ST | State School | 1.3035497053 | $870,470 | $870,470 | $1,134.70 | | |
| ST2 | State School Part 2 | 0.8169543533 | $870,470 | $870,470 | $711.13 | | |
| | Total Tax Rate: | 7.3209764117 | | | | | |
| | | | | Taxes w/Current Exemptions: | $6,372.69 | | |
| | | | | Taxes w/o Exemptions: | $6,372.69 | | |
Improvement / Building
| Improvement #1: | RESIDENTIAL | State Code: | Y | 2173.0 sqft | Value: | $445,470 |
| Bathrooms: | 3 | Bedrooms: | 3 | | Ceiling: | DRYWALL PAINTED | Cooling: | HEAT PUMP/CONV/V | | Exterior Wall/Cover: | WOOD SIDING | Floor Covering: | CARPET/VINYL 80-20 | | Floor Structure: | WOOD W/SUBFLOOR | Foundation: | CONCRETE | | Interior Finish: | DRYWALL PAINT | Plumbing Fixture Cnt: | 12 | | Roof Slope: | 4" IN 12" | Roof Structure/Cover: | CJ ASPHALT |
|
| | Type | Description | Class CD | Sub Class CD | Year Built | Area |
| | BAS | BASE/MAIN FLOOR | 3 | 0 | 1988 | 1933.0 |
| | UB8 | BASEMENT UNFINISHED 8" | 3 | 0 | 1988 | 1919.0 |
| | OP3 | OPEN PORCH W/ROOF | 3 | 0 | 1988 | 49.0 |
| | AGR | ATTACHED GARAGE | 3 | 0 | 1988 | 598.0 |
| | OWP | OPEN WOOD PORCH W/STEPS | 3 | 0 | 1988 | 274.0 |
| | OWC | OPEN WOOD PORCH W/STEPS/ROOF/C | 3 | 0 | 1988 | 216.0 |
| | DGR | DETACHED GARAGE | 3 | 0 | 1988 | 1200.0 |
| | LOF | LOFT | 3 | 0 | 1988 | 240.0 |
| | OCP | OPEN CARPORT | 3 | 0 | 1988 | 600.0 |
Sketch
Property Image
Land
| 1 | 18 | AC (02.01-03.00) | 0.0000 | 0.00 | 0.00 | 0.00 | 1.00 | $425,000 | $0 |
Roll Value History
| 2026 | N/A | N/A | N/A | N/A | N/A |
| 2025 | $445,470 | $425,000 | $0 | $870,470 | $870,470 |
| 2024 | $451,164 | $420,000 | $0 | $871,164 | $871,164 |
| 2023 | $456,857 | $420,000 | $0 | $876,857 | $876,857 |
| 2022 | $403,386 | $370,000 | $0 | $773,386 | $773,386 |
| 2021 | $355,253 | $240,000 | $0 | $595,253 | $595,253 |
| 2020 | $346,544 | $240,000 | $0 | $586,544 | $586,544 |
| 2019 | $265,106 | $300,000 | $0 | $565,106 | $565,106 |
| 2018 | $265,920 | $250,000 | $0 | $515,920 | $515,920 |
| 2017 | $267,551 | $180,000 | $0 | $447,551 | $447,551 |
| 2016 | $230,304 | $120,000 | $0 | $350,304 | $350,304 |
| 2015 | $233,546 | $96,720 | $0 | $330,266 | $330,266 |
| 2014 | $236,790 | $96,720 | $0 | $333,510 | $333,510 |
| 2013 | $240,034 | $96,720 | $0 | $336,754 | $336,754 |
| 2012 | $243,280 | $96,720 | $0 | $340,000 | $340,000 |
| 2011 | $206,969 | $120,900 | $0 | $327,869 | $327,869 |
| 2010 | $226,367 | $120,900 | $0 | $347,267 | $347,267 |
| 2009 | $236,122 | $200,000 | $0 | $436,122 | $436,122 |
| 2008 | $239,137 | $205,600 | $0 | $444,737 | $444,737 |
| 2007 | $183,642 | $264,266 | $0 | $447,908 | $447,908 |
Deed and Sales History
| 1 | 01/09/2025 | WD | Warranty Deed | NILS K GRUNERUD, PR | STACH, TAUBER | | | $750,000.00 | 62298 | 4581225 |
| 2 | 04/01/1988 | WD | Warranty Deed | KELLER, WILLIAM B | GRUNERUD, DAVID A | | | $43,500.00 | 81172 | 88004421 |
| 3 | 09/01/1981 | TRUSTEED | Trustee's Deed | Unknown | KELLER, WILLIAM B | | | $33,500.00 | 12855 | 387856 |
Payout Agreement
| No payout information available.. |