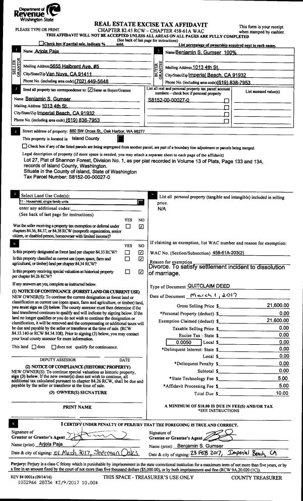
Property
Account |
| Property ID: | 539215 | Abbreviated Legal Description: | CAMANO WEST #3 LOT 5 |
| Geographic ID: | S6285-03-00005-0 | Agent Code: | |
| Type: | Real | | |
| Tax Area: | 510 - APPRAISER-Stan/Cam Schl Dist, improved & 1 acre or less | Land Use Code | 11 |
| Open Space: | N | DFL | N |
| Historic Property: | N | Remodel Property: | N |
| Multi-Family Redevelopment: | N | | |
| Township: | | Section: | |
| Range: | |
Location |
| Address: | ARBOR TERRACE CAMANO ISLAND, WA 98282 | Mapsco: | |
| Neighborhood: | North Camano | Map ID: | 574 |
| Neighborhood CD: | 06-C |
Owner |
| Name: | UCHIDA, BARRY K | Owner ID: | 29899 |
| Mailing Address: | JODY T UCHIDA 217 ARBOR TER CAMANO ISLAND, WA 98282-8612 | % Ownership: | 100.0000000000% |
| | | Exemptions: | |
Taxes and Assessment Details
Values
| (+) Improvement Homesite Value: | + | $0 | |
| (+) Improvement Non-Homesite Value: | + | $610,257 | |
| (+) Land Homesite Value: | + | $0 | |
| (+) Land Non-Homesite Value: | + | $450,000 | |
| (+) Curr Use (HS): | + | $0 | $0 |
| (+) Curr Use (NHS): | + | $0 | $0 |
| | | -------------------------- | |
| (=) Market Value: | = | $1,060,257 | |
| (–) Productivity Loss: | – | $0 | |
| | | -------------------------- | |
| (=) Subtotal: | = | $1,060,257 | |
| (+) Senior Appraised Value: | + | $0 | |
| (+) Non-Senior Appraised Value: | + | $1,060,257 | |
| | | -------------------------- | |
| (=) Total Appraised Value: | = | $1,060,257 | |
| (–) Senior Exemption Loss: | – | $0 | |
| (–) Exemption Loss: | – | $0 | |
| | | -------------------------- | |
| (=) Taxable Value: | = | $1,060,257 | |
Taxing Jurisdiction
| Owner: | UCHIDA, BARRY K | | |
| % Ownership: | 100.0000000000% | | |
| Total Value: | $1,060,257 | | |
| Tax Area: | 510 - APPRAISER-Stan/Cam Schl Dist, improved & 1 acre or less |
| CF | Conservation Futures | 0.0316035091 | $1,060,257 | $1,060,257 | $33.51 | | |
| EMS1 | Fire & Rescue Dist #1 Camano GEN (EMS) | 0.3677864386 | $1,060,257 | $1,060,257 | $389.95 | | |
| FIRE1 | Fire & Rescue Dist #1 Camano GEN | 1.2502910536 | $1,060,257 | $1,060,257 | $1,325.63 | | |
| FIRE1BOND | Fire & Rescue Dist #1 Camano BOND | 0.1570001679 | $1,060,257 | $1,060,257 | $166.46 | | |
| CE | County Current Expense | 0.3708482477 | $1,060,257 | $1,060,257 | $393.19 | | |
| CR | County Roads | 0.4584763726 | $1,060,257 | $1,060,257 | $486.10 | | |
| LCIB | Library Sno-Isle BOND (Camano Island) | 0.0396325772 | $1,060,257 | $1,060,257 | $42.02 | | |
| LIB | Library Sno-Isle GEN | 0.3153421757 | $1,060,257 | $1,060,257 | $334.34 | | |
| SCH205_401 | School 205-401 Enrichment | 1.2698420524 | $1,060,257 | $1,060,257 | $1,346.36 | | |
| SCH205BOND | School 205-401 BOND | 0.9396497583 | $1,060,257 | $1,060,257 | $996.27 | | |
| ST | State School | 1.3035497053 | $1,060,257 | $1,060,257 | $1,382.10 | | |
| ST2 | State School Part 2 | 0.8169543533 | $1,060,257 | $1,060,257 | $866.18 | | |
| | Total Tax Rate: | 7.3209764117 | | | | | |
| | | | | Taxes w/Current Exemptions: | $7,762.11 | | |
| | | | | Taxes w/o Exemptions: | $7,762.11 | | |
Improvement / Building
| Improvement #1: | RESIDENTIAL | State Code: | Y | 4168.6 sqft | Value: | $610,257 |
| Bathrooms: | 3 | Bedrooms: | 3 | | Ceiling: | DRYWALL PAINTED | Cooling: | HEAT PUMP/CONV/V | | Exterior Wall/Cover: | CEMENT FIBER | Floor Covering: | HARDWOOD/CARP 20-80 | | Floor Structure: | WOOD W/SUBFLOOR | Foundation: | CONCRETE | | Interior Finish: | DRYWALL PAINT | Plumbing Fixture Cnt: | 16 | | Roof Slope: | 10" IN 12" | Roof Structure/Cover: | CJ ASPHALT |
|
| | Type | Description | Class CD | Sub Class CD | Year Built | Area |
| | BAS | BASE/MAIN FLOOR | 4 | 0 | 2004 | 2114.1 |
| | OP4 | OPEN PORCH W/CEILING-ROOF | 4 | 0 | 2004 | 51.3 |
| | AGR | ATTACHED GARAGE | 4 | 0 | 2004 | 689.1 |
| | OWP | OPEN WOOD PORCH W/STEPS | 4 | 0 | 2004 | 697.2 |
| | OWP | OPEN WOOD PORCH W/STEPS | 4 | 0 | 2004 | 341.6 |
| | DWN | DOWNSTAIRS LIVING AREA | 4 | 0 | 2004 | 2054.5 |
Sketch
Property Image
Land
| 1 | 15 | SQ (12001-21780) | 0.0000 | 0.00 | 0.00 | 0.00 | 1.00 | $450,000 | $0 |
Roll Value History
| 2026 | N/A | N/A | N/A | N/A | N/A |
| 2025 | $610,257 | $450,000 | $0 | $1,060,257 | $1,060,257 |
| 2024 | $617,860 | $450,000 | $0 | $1,067,860 | $1,067,860 |
| 2023 | $625,465 | $450,000 | $0 | $1,075,465 | $1,075,465 |
| 2022 | $573,284 | $360,000 | $0 | $933,284 | $933,284 |
| 2021 | $504,470 | $300,000 | $0 | $804,470 | $804,470 |
| 2020 | $492,706 | $220,000 | $0 | $712,706 | $712,706 |
| 2019 | $411,206 | $275,000 | $0 | $686,206 | $686,206 |
| 2018 | $412,398 | $225,000 | $0 | $637,398 | $637,398 |
| 2017 | $414,759 | $150,000 | $0 | $564,759 | $564,759 |
| 2016 | $419,480 | $130,000 | $0 | $549,480 | $549,480 |
| 2015 | $424,302 | $92,800 | $0 | $517,102 | $517,102 |
| 2014 | $429,123 | $92,800 | $0 | $521,923 | $521,923 |
| 2013 | $433,945 | $92,800 | $0 | $526,745 | $526,745 |
| 2012 | $438,766 | $92,800 | $0 | $531,566 | $531,566 |
| 2011 | $443,588 | $116,000 | $0 | $559,588 | $559,588 |
| 2010 | $457,748 | $116,000 | $0 | $573,748 | $573,748 |
| 2009 | $481,886 | $200,000 | $0 | $681,886 | $681,886 |
| 2008 | $492,172 | $200,000 | $0 | $692,172 | $692,172 |
| 2007 | $497,800 | $200,000 | $0 | $697,800 | $697,800 |
Deed and Sales History
| 1 | 03/13/2003 | WD | Warranty Deed | NORTH PUGET CONSTRUCTON INC, | UCHIDA, BARRY K | | | $89,000.00 | 31077 | 4051304 |
| 2 | 11/14/2000 | WD | Warranty Deed | DYMOND, PATRICK | NORTH PUGET CONSTRUCTON INC, | | | $55,000.00 | 4525 | 20020879 |
| 3 | 09/01/1987 | WD | Warranty Deed | LINDAUER, CO | DYMOND, PATRICK | | | $23,500.00 | 73076 | 87013610 |
| 4 | 01/01/1979 | OTHER | Other - Misc. Documents | Unknown | LINDAUER, CO | | | $0.00 | 90353 | 0 |
Payout Agreement
| No payout information available.. |