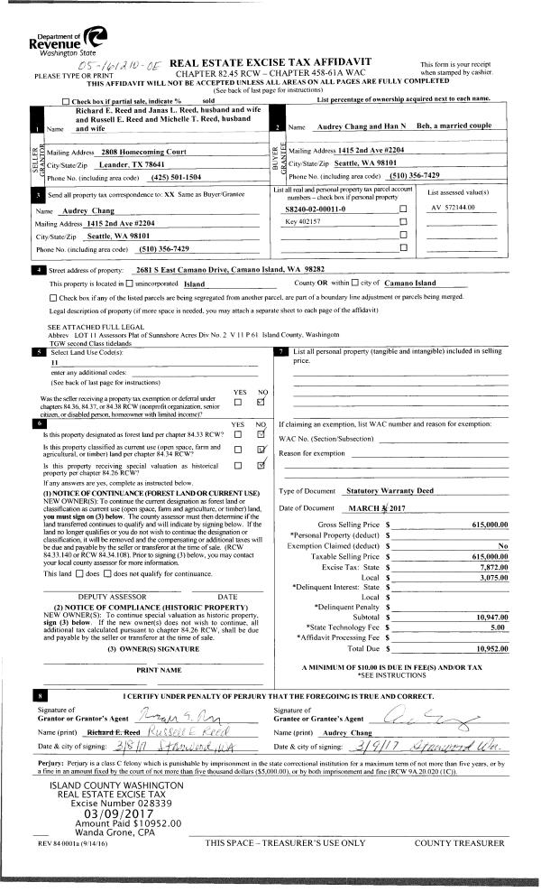
Property
Account |
| Property ID: | 539297 | Abbreviated Legal Description: | CAMANO WEST #3 LOT 14 |
| Geographic ID: | S6285-03-00014-0 | Agent Code: | |
| Type: | Real | | |
| Tax Area: | 510 - APPRAISER-Stan/Cam Schl Dist, improved & 1 acre or less | Land Use Code | 11 |
| Open Space: | N | DFL | N |
| Historic Property: | N | Remodel Property: | N |
| Multi-Family Redevelopment: | N | | |
| Township: | | Section: | |
| Range: | |
Location |
| Address: | 245 GRANDVIEW AVE CAMANO ISLAND, WA 98282 | Mapsco: | |
| Neighborhood: | North Camano | Map ID: | 574 |
| Neighborhood CD: | 06-C |
Owner |
| Name: | WIGHT, JAMES | Owner ID: | 261240 |
| Mailing Address: | NICKI WIGHT 245 GRANDVIEW CIRCLE CAMANO ISLAND, WA 98282 | % Ownership: | 100.0000000000% |
| | | Exemptions: | |
Taxes and Assessment Details
Values
| (+) Improvement Homesite Value: | + | $0 | |
| (+) Improvement Non-Homesite Value: | + | $699,199 | |
| (+) Land Homesite Value: | + | $0 | |
| (+) Land Non-Homesite Value: | + | $450,000 | |
| (+) Curr Use (HS): | + | $0 | $0 |
| (+) Curr Use (NHS): | + | $0 | $0 |
| | | -------------------------- | |
| (=) Market Value: | = | $1,149,199 | |
| (–) Productivity Loss: | – | $0 | |
| | | -------------------------- | |
| (=) Subtotal: | = | $1,149,199 | |
| (+) Senior Appraised Value: | + | $0 | |
| (+) Non-Senior Appraised Value: | + | $1,149,199 | |
| | | -------------------------- | |
| (=) Total Appraised Value: | = | $1,149,199 | |
| (–) Senior Exemption Loss: | – | $0 | |
| (–) Exemption Loss: | – | $0 | |
| | | -------------------------- | |
| (=) Taxable Value: | = | $1,149,199 | |
Taxing Jurisdiction
| Owner: | WIGHT, JAMES | | |
| % Ownership: | 100.0000000000% | | |
| Total Value: | $1,149,199 | | |
| Tax Area: | 510 - APPRAISER-Stan/Cam Schl Dist, improved & 1 acre or less |
| CF | Conservation Futures | 0.0316035091 | $1,149,199 | $1,149,199 | $36.32 | | |
| EMS1 | Fire & Rescue Dist #1 Camano GEN (EMS) | 0.3677864386 | $1,149,199 | $1,149,199 | $422.66 | | |
| FIRE1 | Fire & Rescue Dist #1 Camano GEN | 1.2502910536 | $1,149,199 | $1,149,199 | $1,436.83 | | |
| FIRE1BOND | Fire & Rescue Dist #1 Camano BOND | 0.1570001679 | $1,149,199 | $1,149,199 | $180.42 | | |
| CE | County Current Expense | 0.3708482477 | $1,149,199 | $1,149,199 | $426.18 | | |
| CR | County Roads | 0.4584763726 | $1,149,199 | $1,149,199 | $526.88 | | |
| LCIB | Library Sno-Isle BOND (Camano Island) | 0.0396325772 | $1,149,199 | $1,149,199 | $45.55 | | |
| LIB | Library Sno-Isle GEN | 0.3153421757 | $1,149,199 | $1,149,199 | $362.39 | | |
| SCH205_401 | School 205-401 Enrichment | 1.2698420524 | $1,149,199 | $1,149,199 | $1,459.30 | | |
| SCH205BOND | School 205-401 BOND | 0.9396497583 | $1,149,199 | $1,149,199 | $1,079.84 | | |
| ST | State School | 1.3035497053 | $1,149,199 | $1,149,199 | $1,498.04 | | |
| ST2 | State School Part 2 | 0.8169543533 | $1,149,199 | $1,149,199 | $938.84 | | |
| | Total Tax Rate: | 7.3209764117 | | | | | |
| | | | | Taxes w/Current Exemptions: | $8,413.25 | | |
| | | | | Taxes w/o Exemptions: | $8,413.25 | | |
Improvement / Building
| Improvement #1: | RESIDENTIAL | State Code: | Y | 4451.0 sqft | Value: | $699,199 |
| Bathrooms: | 2.5 | Bedrooms: | 3 | | Ceiling: | DRYWALL PAINTED | Exterior Wall/Cover: | PLY/HARDBOARD T-111 | | Floor Covering: | CARPET/VINYL 20-80 | Floor Structure: | WOOD W/SUBFLOOR | | Foundation: | CONCRETE | Heating: | FHA GAS | | Interior Finish: | DRYWALL PAINT | Plumbing Fixture Cnt: | 11 | | Roof Slope: | 4" IN 12" | Roof Structure/Cover: | CJ ASPHALT |
|
| | Type | Description | Class CD | Sub Class CD | Year Built | Area |
| | BAS | BASE/MAIN FLOOR | 4 | 0 | 2014 | 2509.0 |
| | DWN | DOWNSTAIRS LIVING AREA | 4 | 0 | 2014 | 1942.0 |
| | AGR | ATTACHED GARAGE | 4 | 0 | 2014 | 585.0 |
| | OP4 | OPEN PORCH W/CEILING-ROOF | 4 | 0 | 2014 | 102.0 |
| | OWP | OPEN WOOD PORCH W/STEPS | 4 | 0 | 2014 | 223.5 |
| | OWP | OPEN WOOD PORCH W/STEPS | 4 | 0 | 2014 | 412.5 |
| | OWC | OPEN WOOD PORCH W/STEPS/ROOF/C | 4 | 0 | 2014 | 336.0 |
| | OWP | OPEN WOOD PORCH W/STEPS | 4 | 0 | 2014 | 972.0 |
Sketch
Property Image
Land
| 1 | 15 | SQ (12001-21780) | 0.0000 | 0.00 | 0.00 | 0.00 | 1.00 | $450,000 | $0 |
Roll Value History
| 2026 | N/A | N/A | N/A | N/A | N/A |
| 2025 | $699,199 | $450,000 | $0 | $1,149,199 | $1,149,199 |
| 2024 | $704,590 | $450,000 | $0 | $1,154,590 | $1,154,590 |
| 2023 | $710,365 | $450,000 | $0 | $1,160,365 | $1,160,365 |
| 2022 | $638,011 | $360,000 | $0 | $998,011 | $998,011 |
| 2021 | $559,385 | $300,000 | $0 | $859,385 | $859,385 |
| 2020 | $545,299 | $220,000 | $0 | $765,299 | $765,299 |
| 2019 | $470,626 | $275,000 | $0 | $745,626 | $745,626 |
| 2018 | $471,861 | $210,000 | $0 | $681,861 | $681,861 |
| 2017 | $474,330 | $150,000 | $0 | $624,330 | $624,330 |
| 2016 | $478,074 | $130,000 | $0 | $608,074 | $608,074 |
| 2015 | $483,003 | $83,520 | $0 | $566,523 | $566,523 |
| 2014 | $492,860 | $83,520 | $0 | $576,380 | $576,380 |
| 2013 | $0 | $83,520 | $0 | $83,520 | $83,520 |
| 2012 | $0 | $83,520 | $0 | $83,520 | $83,520 |
| 2011 | $0 | $104,400 | $0 | $104,400 | $104,400 |
| 2010 | $0 | $104,400 | $0 | $104,400 | $104,400 |
| 2009 | $0 | $150,000 | $0 | $150,000 | $150,000 |
| 2008 | $0 | $270,000 | $0 | $270,000 | $270,000 |
| 2007 | $0 | $270,000 | $0 | $270,000 | $270,000 |
Deed and Sales History
| 1 | 03/15/2013 | WD | Warranty Deed | CAREY, SALLY I | WIGHT, JAMES | | | $115,000.00 | 10755 | 4336046 |
| 2 | 07/01/1997 | 5 | DNU - Marriage License/Name Change | TRUDEAU, SALLY I | CAREY, SALLY I | | | $0.00 | 67495 | 0 |
| 3 | 03/01/1983 | WD | Warranty Deed | LINDAUER, CO | TRUDEAU, SALLY I | | | $29,000.00 | 30620 | 406965 |
| 4 | 01/01/1979 | OTHER | Other - Misc. Documents | Unknown | LINDAUER, CO | | | $0.00 | 90353 | 0 |
Payout Agreement
| No payout information available.. |