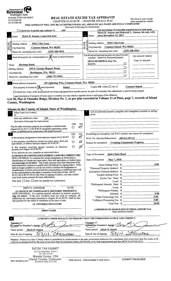
Property
Account |
| Property ID: | 539830 | Abbreviated Legal Description: | S/2 LOT 25 BLK 3 CCC EST #1 V4 SUR P88-89 AF#308040 PT OF SW SW TGW & SUB EZ FR 035-0300 (LOT 25-A SP 79-317 AF#389322) |
| Geographic ID: | R33119-029-0350 | Agent Code: | |
| Type: | Real | | |
| Tax Area: | 512 - APPRAISER-Stan/Cam Schl Dist, improved, greater than 1 acre | Land Use Code | 11 |
| Open Space: | N | DFL | N |
| Historic Property: | N | Remodel Property: | N |
| Multi-Family Redevelopment: | N | | |
| Township: | 31 | Section: | 19 |
| Range: | R3 |
Location |
| Address: | 1588 BONNIE LN CAMANO ISLAND, WA 98282 | Mapsco: | |
| Neighborhood: | Cycle 5 | Map ID: | 929 |
| Neighborhood CD: | 5 |
Owner |
| Name: | ROHLING, SCOTT | Owner ID: | 285891 |
| Mailing Address: | 1588 BONNIE LN CAMANO ISLAND, WA 98282 | % Ownership: | 100.0000000000% |
| | | Exemptions: | |
Taxes and Assessment Details
Values
| (+) Improvement Homesite Value: | + | $0 | |
| (+) Improvement Non-Homesite Value: | + | $119,660 | |
| (+) Land Homesite Value: | + | $0 | |
| (+) Land Non-Homesite Value: | + | $300,000 | |
| (+) Curr Use (HS): | + | $0 | $0 |
| (+) Curr Use (NHS): | + | $0 | $0 |
| | | -------------------------- | |
| (=) Market Value: | = | $419,660 | |
| (–) Productivity Loss: | – | $0 | |
| | | -------------------------- | |
| (=) Subtotal: | = | $419,660 | |
| (+) Senior Appraised Value: | + | $0 | |
| (+) Non-Senior Appraised Value: | + | $419,660 | |
| | | -------------------------- | |
| (=) Total Appraised Value: | = | $419,660 | |
| (–) Senior Exemption Loss: | – | $0 | |
| (–) Exemption Loss: | – | $0 | |
| | | -------------------------- | |
| (=) Taxable Value: | = | $419,660 | |
Taxing Jurisdiction
| Owner: | ROHLING, SCOTT | | |
| % Ownership: | 100.0000000000% | | |
| Total Value: | $419,660 | | |
| Tax Area: | 512 - APPRAISER-Stan/Cam Schl Dist, improved, greater than 1 acre |
| CF | Conservation Futures | 0.0316035091 | $419,660 | $419,660 | $13.26 | | |
| EMS1 | Fire & Rescue Dist #1 Camano GEN (EMS) | 0.3677864386 | $419,660 | $419,660 | $154.35 | | |
| FIRE1 | Fire & Rescue Dist #1 Camano GEN | 1.2502910536 | $419,660 | $419,660 | $524.70 | | |
| FIRE1BOND | Fire & Rescue Dist #1 Camano BOND | 0.1570001679 | $419,660 | $419,660 | $65.89 | | |
| CE | County Current Expense | 0.3708482477 | $419,660 | $419,660 | $155.63 | | |
| CR | County Roads | 0.4584763726 | $419,660 | $419,660 | $192.40 | | |
| LCIB | Library Sno-Isle BOND (Camano Island) | 0.0396325772 | $419,660 | $419,660 | $16.63 | | |
| LIB | Library Sno-Isle GEN | 0.3153421757 | $419,660 | $419,660 | $132.34 | | |
| SCH205_401 | School 205-401 Enrichment | 1.2698420524 | $419,660 | $419,660 | $532.90 | | |
| SCH205BOND | School 205-401 BOND | 0.9396497583 | $419,660 | $419,660 | $394.33 | | |
| ST | State School | 1.3035497053 | $419,660 | $419,660 | $547.05 | | |
| ST2 | State School Part 2 | 0.8169543533 | $419,660 | $419,660 | $342.84 | | |
| | Total Tax Rate: | 7.3209764117 | | | | | |
| | | | | Taxes w/Current Exemptions: | $3,072.32 | | |
| | | | | Taxes w/o Exemptions: | $3,072.32 | | |
Improvement / Building
| Improvement #1: | MANUFACTURED HOME | State Code: | Y | 1848.0 sqft | Value: | $119,660 |
| Bathrooms: | 0 | Bedrooms: | 0 | | Ceiling: | PLASTER PAINTED | Cooling: | EVAP NO DUCT | | Exterior Wall/Cover: | VINYL | Floor Covering: | CARPET 100% | | Floor Structure: | SLAB ON GRADE | Foundation: | SLAB | | Heating: | FHA ELECTRIC | Interior Finish: | PLASTER | | Plumbing Fixture Cnt: | 1 | Roof Slope: | FLAT | | Roof Structure/Cover: | CJ ALUMINIUM HEAVY |   |   |
|
| | Type | Description | Class CD | Sub Class CD | Year Built | Area |
| | BAS | BASE/MAIN FLOOR | 4 | 0 | 1991 | 1848.0 |
| | OWP | OPEN WOOD PORCH W/STEPS | 4 | 0 | 1991 | 510.0 |
Sketch
Property Image
Land
| 1 | 18 | AC (02.01-03.00) | 2.5000 | 108900.00 | 0.00 | 0.00 | 1.00 | $300,000 | $0 |
Roll Value History
| 2026 | N/A | N/A | N/A | N/A | N/A |
| 2025 | $119,660 | $300,000 | $0 | $419,660 | $419,660 |
| 2024 | $123,399 | $280,000 | $0 | $403,399 | $403,399 |
| 2023 | $110,547 | $270,000 | $0 | $380,547 | $380,547 |
| 2022 | $103,052 | $260,000 | $0 | $363,052 | $363,052 |
| 2021 | $87,049 | $180,000 | $0 | $267,049 | $267,049 |
| 2020 | $86,988 | $150,000 | $0 | $236,988 | $236,988 |
| 2019 | $70,490 | $200,000 | $0 | $270,490 | $270,490 |
| 2018 | $56,538 | $150,000 | $0 | $206,538 | $206,538 |
| 2017 | $58,252 | $135,000 | $0 | $193,252 | $193,252 |
| 2016 | $59,965 | $100,000 | $0 | $159,965 | $159,965 |
| 2015 | $65,315 | $83,328 | $0 | $148,643 | $148,643 |
| 2014 | $66,974 | $83,328 | $0 | $150,302 | $150,302 |
| 2013 | $68,632 | $83,328 | $0 | $151,960 | $151,960 |
| 2012 | $70,290 | $83,328 | $0 | $153,618 | $153,618 |
| 2011 | $71,120 | $104,160 | $0 | $175,280 | $175,280 |
| 2010 | $67,220 | $104,160 | $0 | $171,380 | $171,380 |
| 2009 | $70,842 | $150,000 | $0 | $220,842 | $220,842 |
| 2008 | $71,147 | $162,500 | $0 | $233,647 | $233,647 |
| 2007 | $73,061 | $162,500 | $0 | $235,561 | $235,561 |
Deed and Sales History
| 1 | 07/03/2018 | WD | Warranty Deed | 1588 BONNIE LANE GROUP, JV | ROHLING, SCOTT | | | $269,000.00 | 34885 | 4447525 |
| 2 | 01/24/2018 | WD | Warranty Deed | POLLARD, JESS L | 1588 BONNIE LANE GROUP, JV | | | $124,277.00 | 33201 | 4440365 |
| 3 | 05/21/2004 | ESTSEPPROP | Establish Separate Property | POLLARD, JESS L | POLLARD, JESS L | | | $0.00 | 43561 | 4108871 |
| 4 | 09/01/1996 | WD | Warranty Deed | LINDSEY, GWENETH J | POLLARD, JESS L | | | $41,000.00 | 63509 | 96017157 |
| 5 | 09/01/1989 | QCD | Quit Claim Deed | LINDSEY, EDNA J | LINDSEY, GWENETH J | | | $0.00 | 94026 | 89013320 |
| 6 | 09/01/1986 | QCD | Quit Claim Deed | LINDSEY, EDNA J | LINDSEY, EDNA J | | | $0.00 | 62705 | 86012213 |
| 7 | 11/01/1981 | CD | DNU - Correction Deed | LINDSEY, EDNA J | LINDSEY, EDNA J | | | $1.00 | 20091 | 392067 |
| 8 | 10/01/1978 | OTHER | Other - Misc. Documents | POLLARD, JESS | LINDSEY, EDNA J | | | $18,500.00 | 85118 | 341446 |
| 9 | 01/01/1900 | OTHER | Other - Misc. Documents | Unknown | POLLARD, JESS | | | $0.00 | 0 | 0 |
Payout Agreement
| No payout information available.. |