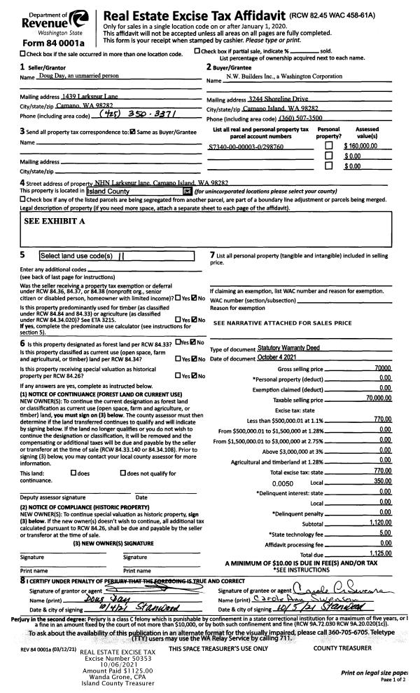
Property
Account |
| Property ID: | 539885 | Abbreviated Legal Description: | IN SW NE: BG SWCR SW NE TPB N130' E116' S130' W116' TPB FR PT 284-3100 & PT 296-319 COMB 11/81 |
| Geographic ID: | R32814-287-2980 | Agent Code: | |
| Type: | Real | | |
| Tax Area: | 710 - APPRAISER-S Whid Schl Dist, outside Langley, improved & 1 acre or less | Land Use Code | 11 |
| Open Space: | N | DFL | N |
| Historic Property: | N | Remodel Property: | N |
| Multi-Family Redevelopment: | N | | |
| Township: | 28 | Section: | 14 |
| Range: | R3 |
Location |
| Address: | 8198 CULTUS BAY RD CLINTON, WA 98236 | Mapsco: | |
| Neighborhood: | Cycle 4 | Map ID: | 711 |
| Neighborhood CD: | 4 |
Owner |
| Name: | BOWMAN JTWROS, AARON | Owner ID: | 292962 |
| Mailing Address: | TERESA SMEDLEY, JTWROS 8198 CULTUS BAY RD CLINTON, WA 98236 | % Ownership: | 100.0000000000% |
| | | Exemptions: | |
Taxes and Assessment Details
Values
| (+) Improvement Homesite Value: | + | $0 | |
| (+) Improvement Non-Homesite Value: | + | $213,716 | |
| (+) Land Homesite Value: | + | $0 | |
| (+) Land Non-Homesite Value: | + | $250,000 | |
| (+) Curr Use (HS): | + | $0 | $0 |
| (+) Curr Use (NHS): | + | $0 | $0 |
| | | -------------------------- | |
| (=) Market Value: | = | $463,716 | |
| (–) Productivity Loss: | – | $0 | |
| | | -------------------------- | |
| (=) Subtotal: | = | $463,716 | |
| (+) Senior Appraised Value: | + | $0 | |
| (+) Non-Senior Appraised Value: | + | $463,716 | |
| | | -------------------------- | |
| (=) Total Appraised Value: | = | $463,716 | |
| (–) Senior Exemption Loss: | – | $0 | |
| (–) Exemption Loss: | – | $0 | |
| | | -------------------------- | |
| (=) Taxable Value: | = | $463,716 | |
Taxing Jurisdiction
| Owner: | BOWMAN JTWROS, AARON | | |
| % Ownership: | 100.0000000000% | | |
| Total Value: | $463,716 | | |
| Tax Area: | 710 - APPRAISER-S Whid Schl Dist, outside Langley, improved & 1 acre or less |
| CF | Conservation Futures | 0.0316035091 | $463,716 | $463,716 | $14.66 | | |
| FIRE3 | Fire & Rescue Dist #3 S Whidbey GEN | 1.2004855531 | $463,716 | $463,716 | $556.68 | | |
| HOBOND | Hospital BOND | 0.1910887512 | $463,716 | $463,716 | $88.61 | | |
| HOGEN | Hospital GEN | 0.3902502903 | $463,716 | $463,716 | $180.97 | | |
| CE | County Current Expense | 0.3708482477 | $463,716 | $463,716 | $171.97 | | |
| CR | County Roads | 0.4584763726 | $463,716 | $463,716 | $212.60 | | |
| ISLANDEMS | Hospital GEN (EMS) | 0.5000000000 | $463,716 | $463,716 | $231.86 | | |
| LIB | Library Sno-Isle GEN | 0.3153421757 | $463,716 | $463,716 | $146.23 | | |
| PORTWHID | Port of S Whidbey GEN | 0.1094540357 | $463,716 | $463,716 | $50.76 | | |
| SCH206BOND | School 206 BOND | 0.3161759235 | $463,716 | $463,716 | $146.62 | | |
| SCH206MO | School 206 Enrichment | 0.4547169547 | $463,716 | $463,716 | $210.86 | | |
| ST | State School | 1.3035497053 | $463,716 | $463,716 | $604.48 | | |
| ST2 | State School Part 2 | 0.8169543533 | $463,716 | $463,716 | $378.83 | | |
| SWHIDPRBD | P & R S Whidbey BOND | 0.0152817568 | $463,716 | $463,716 | $7.09 | | |
| SWHIDPRBD2 | P & R S Whidbey BOND2 | 0.0138911264 | $463,716 | $463,716 | $6.44 | | |
| SWHIDPRMT | P & R S Whidbey GEN | 0.2053334452 | $463,716 | $463,716 | $95.22 | | |
| | Total Tax Rate: | 6.6934522006 | | | | | |
| | | | | Taxes w/Current Exemptions: | $3,103.88 | | |
| | | | | Taxes w/o Exemptions: | $3,103.88 | | |
Improvement / Building
| Improvement #1: | RESIDENTIAL | State Code: | Y | 1009.4 sqft | Value: | $213,716 |
| Bathrooms: | 1 | Bedrooms: | 3 | | Ceiling: | DRYWALL PAINTED | Exterior Wall/Cover: | ASBESTOES/ASPHALT | | Floor Covering: | HARDWOOD/CARP 80-20 | Floor Structure: | WOOD W/SUBFLOOR | | Foundation: | CONCRETE | Heating: | RADIANT FLOOR | | Interior Finish: | DRYWALL PAINT | Plumbing Fixture Cnt: | 7 | | Roof Slope: | 8" IN 12" | Roof Structure/Cover: | CJ ASPHALT |
|
| | Type | Description | Class CD | Sub Class CD | Year Built | Area |
| | BAS | BASE/MAIN FLOOR | 3 | 0 | 1930 | 697.4 |
| | OP4 | OPEN PORCH W/CEILING-ROOF | 3 | 0 | 1930 | 30.0 |
| | OP4 | OPEN PORCH W/CEILING-ROOF | 3 | 0 | 1930 | 30.0 |
| | UPH | HALF STORY | 3 | 0 | 1930 | 312.0 |
| | DGR | DETACHED GARAGE | 3 | 0 | 1930 | 664.1 |
| | UTY | STORAGE/UTILITY | 3 | 0 | 1930 | 308.0 |
Sketch
| No sketches available for this property. |
Property Image
Land
| 1 | 15 | SQ (12001-21780) | 0.0000 | 0.00 | 0.00 | 0.00 | 1.00 | $250,000 | $0 |
Roll Value History
| 2026 | N/A | N/A | N/A | N/A | N/A |
| 2025 | $213,716 | $250,000 | $0 | $463,716 | $463,716 |
| 2024 | $216,378 | $230,000 | $0 | $446,378 | $446,378 |
| 2023 | $219,042 | $230,000 | $0 | $449,042 | $449,042 |
| 2022 | $200,763 | $210,000 | $0 | $410,763 | $410,763 |
| 2021 | $176,678 | $150,000 | $0 | $326,678 | $326,678 |
| 2020 | $161,981 | $180,000 | $0 | $341,981 | $341,981 |
| 2019 | $112,829 | $240,000 | $0 | $352,829 | $352,829 |
| 2018 | $113,157 | $240,000 | $0 | $353,157 | $353,157 |
| 2017 | $76,587 | $200,000 | $0 | $276,587 | $276,587 |
| 2016 | $77,633 | $170,000 | $0 | $247,633 | $247,633 |
| 2015 | $78,677 | $140,000 | $0 | $218,677 | $218,677 |
| 2014 | $84,325 | $140,000 | $0 | $224,325 | $224,325 |
| 2013 | $85,379 | $125,000 | $0 | $210,379 | $210,379 |
| 2012 | $86,429 | $64,600 | $0 | $151,029 | $151,029 |
| 2011 | $87,483 | $76,000 | $0 | $163,483 | $163,483 |
| 2010 | $96,619 | $76,000 | $0 | $172,619 | $172,619 |
| 2009 | $99,253 | $95,000 | $0 | $194,253 | $194,253 |
| 2008 | $98,342 | $85,000 | $0 | $183,342 | $183,342 |
| 2007 | $99,836 | $85,000 | $0 | $184,836 | $184,836 |
Deed and Sales History
| 1 | 12/17/2019 | WD | Warranty Deed | GUNDEL, ANDREW B | BOWMAN JTWROS, AARON | | | $435,000.00 | 41544 | 4477887 |
| 2 | 06/23/2017 | WD | Warranty Deed | ACKOR JR, JEFFERSON D | GUNDEL, ANDREW B | | | $380,000.00 | 29997 | 4425334 |
| 3 | 03/01/1998 | WD | Warranty Deed | SWOPE, JOHN L | ACKOR, JEFFERSON D | | | $140,000.00 | 81159 | 98006349 |
| 4 | 07/01/1993 | WD | Warranty Deed | WYATT, BETH J | SWOPE, JOHN L | | | $119,000.00 | 32783 | 93014391 |
| 5 | 03/01/1987 | QCD | Quit Claim Deed | DIEM, BETH J | WYATT, BETH J | | | $0.00 | 70722 | 87003923 |
| 6 | 01/01/1985 | DECREE | Divorce Decree/Legal Separation | DIEM, BETH W | DIEM, BETH J | | | $0.00 | 50354 | 85001631 |
| 7 | 09/01/1983 | OTHER | Other - Misc. Documents | HAFNER, BETH J | DIEM, BETH W | | | $0.00 | 60225 | 0 |
| 8 | 07/01/1982 | OTHER | Other - Misc. Documents | HAFNER, WAYNE D | HAFNER, BETH J | | | $0.00 | 21616 | 398168 |
| 9 | 11/01/1981 | OTHER | Other - Misc. Documents | HAFNER, WAYNE D | HAFNER, WAYNE D | | | $0.00 | 59268 | 0 |
| 10 | 01/01/1980 | EXECUTORD | Executor Deed | Unknown | HAFNER, WAYNE D | | | $35,000.00 | 337 | 364594 |
Payout Agreement
| No payout information available.. |