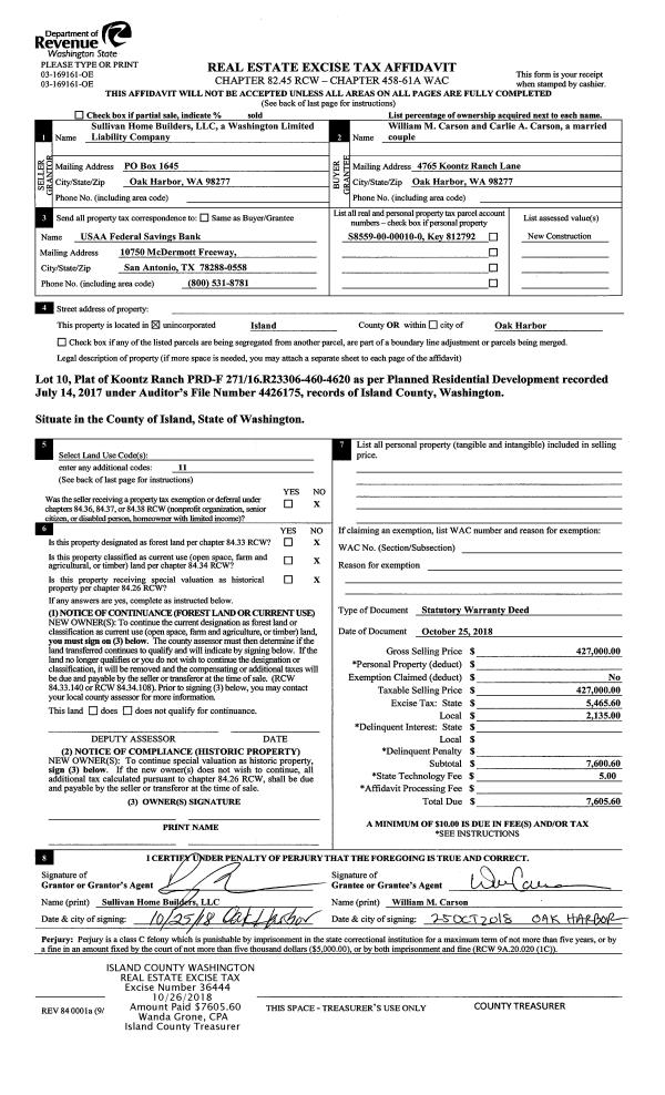
Property
Account |
| Property ID: | 539901 | Abbreviated Legal Description: | REPLACES 299-0650 IN GL2: BG NWCR SEC 7 S517 .02' S8*E2162.55' S19*E308 .25' TPB S89*E241.03' N6*E 291.26' S89*E133.49' TO WLN E CAMANO DR S12*W22.93' SWLY ALG CUR/L 301.24' S6*W 387.08' TO NECR LOT 19 DRIFTWOOD HTS #4 N73*W65' S82*W119.43' S86*W60' N1*W |
| Geographic ID: | R33107-229-0650 | Agent Code: | |
| Type: | Real | | |
| Tax Area: | 519 - APPRAISER-Stan/Cam Schl Dist, vacant & 50 acres or less | Land Use Code | 91 |
| Open Space: | N | DFL | N |
| Historic Property: | N | Remodel Property: | N |
| Multi-Family Redevelopment: | N | | |
| Township: | 31 | Section: | 07 |
| Range: | R3 |
Location |
| Address: | | Mapsco: | |
| Neighborhood: | Cycle 5 | Map ID: | 922 |
| Neighborhood CD: | 5 |
Owner |
| Name: | HOFFMAN, RUDY G | Owner ID: | 283231 |
| Mailing Address: | PAULA R HOFFMAN 597 VESPER WAY CAMANO ISLAND, WA 98282 | % Ownership: | 100.0000000000% |
| | | Exemptions: | |
Taxes and Assessment Details
Values
| (+) Improvement Homesite Value: | + | $0 | |
| (+) Improvement Non-Homesite Value: | + | $0 | |
| (+) Land Homesite Value: | + | $0 | |
| (+) Land Non-Homesite Value: | + | $140,000 | |
| (+) Curr Use (HS): | + | $0 | $0 |
| (+) Curr Use (NHS): | + | $0 | $0 |
| | | -------------------------- | |
| (=) Market Value: | = | $140,000 | |
| (–) Productivity Loss: | – | $0 | |
| | | -------------------------- | |
| (=) Subtotal: | = | $140,000 | |
| (+) Senior Appraised Value: | + | $0 | |
| (+) Non-Senior Appraised Value: | + | $140,000 | |
| | | -------------------------- | |
| (=) Total Appraised Value: | = | $140,000 | |
| (–) Senior Exemption Loss: | – | $0 | |
| (–) Exemption Loss: | – | $0 | |
| | | -------------------------- | |
| (=) Taxable Value: | = | $140,000 | |
Taxing Jurisdiction
| Owner: | HOFFMAN, RUDY G | | |
| % Ownership: | 100.0000000000% | | |
| Total Value: | $140,000 | | |
| Tax Area: | 519 - APPRAISER-Stan/Cam Schl Dist, vacant & 50 acres or less |
| CF | Conservation Futures | 0.0316035091 | $140,000 | $140,000 | $4.42 | | |
| EMS1 | Fire & Rescue Dist #1 Camano GEN (EMS) | 0.3677864386 | $140,000 | $140,000 | $51.49 | | |
| CE | County Current Expense | 0.3708482477 | $140,000 | $140,000 | $51.92 | | |
| CR | County Roads | 0.4584763726 | $140,000 | $140,000 | $64.19 | | |
| LCIB | Library Sno-Isle BOND (Camano Island) | 0.0396325772 | $140,000 | $140,000 | $5.55 | | |
| LIB | Library Sno-Isle GEN | 0.3153421757 | $140,000 | $140,000 | $44.15 | | |
| SCH205_401 | School 205-401 Enrichment | 1.2698420524 | $140,000 | $140,000 | $177.78 | | |
| SCH205BOND | School 205-401 BOND | 0.9396497583 | $140,000 | $140,000 | $131.55 | | |
| ST | State School | 1.3035497053 | $140,000 | $140,000 | $182.50 | | |
| ST2 | State School Part 2 | 0.8169543533 | $140,000 | $140,000 | $114.37 | | |
| | Total Tax Rate: | 5.9136851902 | | | | | |
| | | | | Taxes w/Current Exemptions: | $827.92 | | |
| | | | | Taxes w/o Exemptions: | $827.92 | | |
Improvement / Building
Sketch
| No sketches available for this property. |
Property Image
Land
| 1 | 32 | AC (03.01-09.99) | 3.4300 | 0.00 | 0.00 | 0.00 | 1.00 | $140,000 | $0 |
Roll Value History
| 2026 | N/A | N/A | N/A | N/A | N/A |
| 2025 | $0 | $140,000 | $0 | $140,000 | $140,000 |
| 2024 | $0 | $130,000 | $0 | $130,000 | $130,000 |
| 2023 | $0 | $120,000 | $0 | $120,000 | $120,000 |
| 2022 | $0 | $110,000 | $0 | $110,000 | $110,000 |
| 2021 | $0 | $80,000 | $0 | $80,000 | $80,000 |
| 2020 | $0 | $80,000 | $0 | $80,000 | $80,000 |
| 2019 | $0 | $100,000 | $0 | $100,000 | $100,000 |
| 2018 | $0 | $90,000 | $0 | $90,000 | $90,000 |
| 2017 | $0 | $90,000 | $0 | $90,000 | $90,000 |
| 2016 | $0 | $85,000 | $0 | $85,000 | $85,000 |
| 2015 | $0 | $85,000 | $0 | $85,000 | $85,000 |
| 2014 | $0 | $85,000 | $0 | $85,000 | $85,000 |
| 2013 | $0 | $85,000 | $0 | $85,000 | $85,000 |
| 2012 | $0 | $82,320 | $0 | $82,320 | $82,320 |
| 2011 | $0 | $82,320 | $0 | $82,320 | $82,320 |
| 2010 | $0 | $82,320 | $0 | $82,320 | $82,320 |
| 2009 | $0 | $102,900 | $0 | $102,900 | $102,900 |
| 2008 | $0 | $104,615 | $0 | $104,615 | $104,615 |
| 2007 | $0 | $89,180 | $0 | $89,180 | $89,180 |
Deed and Sales History
| 1 | 12/07/2017 | WD | Warranty Deed | HALLIWELL, WINIFRED I | HOFFMAN, RUDY G | | | $91,500.00 | 32232 | 4435576 |
| 2 | 03/01/1995 | WD | Warranty Deed | HALLIWELL, WINIFRED I | HALLIWELL, WINIFRED I | | | $0.00 | 50785 | 95003991 |
| 3 | 11/01/1989 | OTHER | Other - Misc. Documents | HALLIWELL, ARNOLD | HALLIWELL, WINIFRED I | | | $0.00 | 63404 | 0 |
| 4 | 08/01/1986 | WD | Warranty Deed | SHAW, H E | HALLIWELL, ARNOLD | | | $20,500.00 | 62341 | 86010669 |
| 5 | 01/01/1900 | OTHER | Other - Misc. Documents | Unknown | SHAW, H E | | | $0.00 | 0 | 0 |
Payout Agreement
| No payout information available.. |