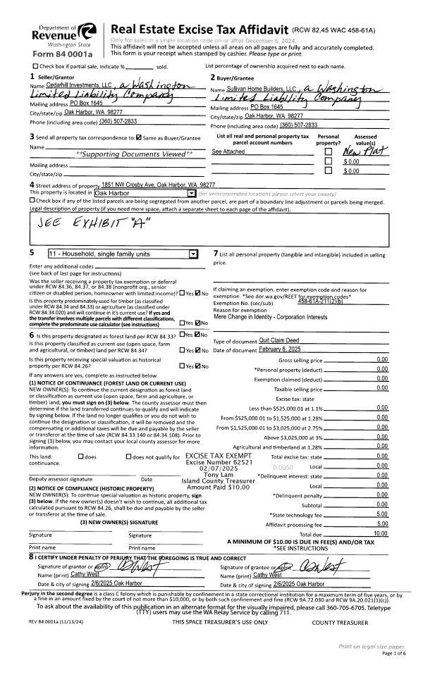
Property
Account |
| Property ID: | 540285 | Abbreviated Legal Description: | IN SW SE: BG SWCR SE N165' TPB N165.58' S89*E81' S165 .56' N89*W80' TPB TGW & SUB EZ FR 016 3020 (TR 1 UNREC WALKER'S HTS) |
| Geographic ID: | R13210-025-2660 | Agent Code: | |
| Type: | Real | | |
| Tax Area: | 110 - APPRAISER-OH Schl Dist, outside OH, improved & 1 acre or less | Land Use Code | 11 |
| Open Space: | N | DFL | N |
| Historic Property: | N | Remodel Property: | N |
| Multi-Family Redevelopment: | N | | |
| Township: | 32 | Section: | 10 |
| Range: | R1 |
Location |
| Address: | 992 WALKER HEIGHTS PL OAK HARBOR, WA 98277 | Mapsco: | |
| Neighborhood: | Cycle 1 | Map ID: | 117 |
| Neighborhood CD: | 1 |
Owner |
| Name: | QUINN, JESSICA SYLVIANE | Owner ID: | 317190 |
| Mailing Address: | TIMOTHY DANIEL QUINN 992 WALKER HEIGHTS PL OAK HARBOR, WA 98277 | % Ownership: | 100.0000000000% |
| | | Exemptions: | |
Taxes and Assessment Details
Values
| (+) Improvement Homesite Value: | + | $0 | |
| (+) Improvement Non-Homesite Value: | + | $570,710 | |
| (+) Land Homesite Value: | + | $0 | |
| (+) Land Non-Homesite Value: | + | $200,000 | |
| (+) Curr Use (HS): | + | $0 | $0 |
| (+) Curr Use (NHS): | + | $0 | $0 |
| | | -------------------------- | |
| (=) Market Value: | = | $770,710 | |
| (–) Productivity Loss: | – | $0 | |
| | | -------------------------- | |
| (=) Subtotal: | = | $770,710 | |
| (+) Senior Appraised Value: | + | $0 | |
| (+) Non-Senior Appraised Value: | + | $770,710 | |
| | | -------------------------- | |
| (=) Total Appraised Value: | = | $770,710 | |
| (–) Senior Exemption Loss: | – | $0 | |
| (–) Exemption Loss: | – | $0 | |
| | | -------------------------- | |
| (=) Taxable Value: | = | $770,710 | |
Taxing Jurisdiction
| Owner: | QUINN, JESSICA SYLVIANE | | |
| % Ownership: | 100.0000000000% | | |
| Total Value: | $770,710 | | |
| Tax Area: | 110 - APPRAISER-OH Schl Dist, outside OH, improved & 1 acre or less |
| CF | Conservation Futures | 0.0316035091 | $770,710 | $770,710 | $24.36 | | |
| CEM1 | Cemetery #1 | 0.0040320932 | $770,710 | $770,710 | $3.11 | | |
| FIRE2 | Fire & Rescue Dist #2 N Whidbey GEN | 0.5475949600 | $770,710 | $770,710 | $422.04 | | |
| HOBOND | Hospital BOND | 0.1910887512 | $770,710 | $770,710 | $147.27 | | |
| HOGEN | Hospital GEN | 0.3902502903 | $770,710 | $770,710 | $300.77 | | |
| CE | County Current Expense | 0.3708482477 | $770,710 | $770,710 | $285.82 | | |
| CR | County Roads | 0.4584763726 | $770,710 | $770,710 | $353.35 | | |
| ISLANDEMS | Hospital GEN (EMS) | 0.5000000000 | $770,710 | $770,710 | $385.36 | | |
| LIB | Library Sno-Isle GEN | 0.3153421757 | $770,710 | $770,710 | $243.04 | | |
| NWHIDPRMT | P & R N Whidbey GEN | 0.2004466701 | $770,710 | $770,710 | $154.49 | | |
| SCH201MO | School 201 Enrichment | 1.8559231640 | $770,710 | $770,710 | $1,430.38 | | |
| ST | State School | 1.3035497053 | $770,710 | $770,710 | $1,004.66 | | |
| ST2 | State School Part 2 | 0.8169543533 | $770,710 | $770,710 | $629.63 | | |
| | Total Tax Rate: | 6.9861102925 | | | | | |
| | | | | Taxes w/Current Exemptions: | $5,384.28 | | |
| | | | | Taxes w/o Exemptions: | $5,384.28 | | |
Improvement / Building
| Improvement #1: | RESIDENTIAL | State Code: | Y | 2348.0 sqft | Value: | $570,710 |
| Bathrooms: | 2.5 | Bedrooms: | 3 | | Ceiling: | DRYWALL PAINTED | Exterior Wall/Cover: | CEMENT FIBER | | Floor Covering: | LAMINATE/LVP | Floor Structure: | WOOD W/SUBFLOOR | | Foundation: | CONCRETE | Heating: | HEAT PUMP | | Interior Finish: | DRYWALL PAINT | Plumbing Fixture Cnt: | 15 | | Roof Slope: | 6" IN 12" | Roof Structure/Cover: | CJ ASPHALT |
|
| | Type | Description | Class CD | Sub Class CD | Year Built | Area |
| | BAS | BASE/MAIN FLOOR | 4 | 0 | 2025 | 2348.0 |
| | AGR | ATTACHED GARAGE | 4 | 0 | 2025 | 720.0 |
| | OWP | OPEN WOOD PORCH W/STEPS | 4 | 0 | 2025 | 52.5 |
| | OWR | OPEN WOOD PORCH W/STEPS/ROOF | 4 | 0 | 2025 | 307.9 |
Sketch
Property Image
Land
| 1 | 15 | SQ (12001-21780) | 0.0000 | 0.00 | 0.00 | 0.00 | 1.00 | $200,000 | $0 |
Roll Value History
| 2026 | N/A | N/A | N/A | N/A | N/A |
| 2025 | $570,710 | $200,000 | $0 | $770,710 | $770,710 |
| 2024 | $0 | $80,000 | $0 | $80,000 | $80,000 |
| 2023 | $0 | $80,000 | $0 | $80,000 | $80,000 |
| 2022 | $0 | $80,000 | $0 | $80,000 | $80,000 |
| 2021 | $0 | $70,000 | $0 | $70,000 | $70,000 |
| 2020 | $0 | $60,000 | $0 | $60,000 | $60,000 |
| 2019 | $0 | $100,000 | $0 | $100,000 | $100,000 |
| 2018 | $0 | $75,000 | $0 | $75,000 | $75,000 |
| 2017 | $0 | $60,000 | $0 | $60,000 | $60,000 |
| 2016 | $0 | $60,000 | $0 | $60,000 | $60,000 |
| 2015 | $0 | $60,000 | $0 | $60,000 | $60,000 |
| 2014 | $0 | $60,000 | $0 | $60,000 | $60,000 |
| 2013 | $0 | $74,000 | $0 | $74,000 | $74,000 |
| 2012 | $0 | $74,000 | $0 | $74,000 | $74,000 |
| 2011 | $0 | $74,000 | $0 | $74,000 | $74,000 |
| 2010 | $0 | $74,000 | $0 | $74,000 | $74,000 |
| 2009 | $0 | $81,000 | $0 | $81,000 | $81,000 |
| 2008 | $0 | $30,250 | $0 | $30,250 | $30,250 |
| 2007 | $0 | $30,250 | $0 | $30,250 | $30,250 |
Deed and Sales History
| 1 | 06/26/2025 | WD | Warranty Deed | POLNEIL PROPERTIES LLC | QUINN, JESSICA SYLVIANE | | | $810,000.00 | 64014 | 4587671 |
|   | |
| 2 | 08/15/2024 | WD | Warranty Deed | PLATT 1/2 INT EA, BRUCE H | POLNEIL PROPERTIES LLC | | | $114,500.00 | 61036 | 4576124 |
|   | |
| 3 | 11/01/1987 | QCD | Quit Claim Deed | HURLEY, IDA | PLATT, BRUCE H | | | $2,500.00 | 73590 | 87015643 |
| 4 | 11/01/1987 | QCD | Quit Claim Deed | PLATT, BRUCE H | PLATT, BRUCE H | | | $0.00 | 73593 | 87015646 |
| 5 | 10/01/1981 | TRUSTEED | Trustee's Deed | WALKER, MABEL | HURLEY, IDA | | | $1.00 | 13210 | 388957 |
| 6 | 01/01/1900 | OTHER | Other - Misc. Documents | Unknown | WALKER, MABEL | | | $0.00 | 0 | 0 |
Payout Agreement
| No payout information available.. |