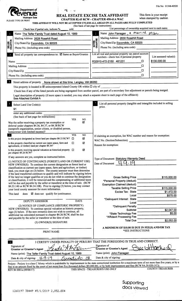
Property
Account |
| Property ID: | 540347 | Abbreviated Legal Description: | IN SW SE: BG SWCR SE S89*E 552'N165'TPB N165.47' S89*E 100' S165.46' N89*W100'TPB TGW & SUB EZ TR 7 UNREC WALKER'S HTS FR 016 3020 |
| Geographic ID: | R13210-025-3250 | Agent Code: | |
| Type: | Real | | |
| Tax Area: | 110 - APPRAISER-OH Schl Dist, outside OH, improved & 1 acre or less | Land Use Code | 11 |
| Open Space: | N | DFL | N |
| Historic Property: | N | Remodel Property: | N |
| Multi-Family Redevelopment: | N | | |
| Township: | 32 | Section: | 10 |
| Range: | R1 |
Location |
| Address: | 942 WALKER HEIGHTS PLACE OAK HARBOR, WA 98277 | Mapsco: | |
| Neighborhood: | Cycle 1 | Map ID: | 117 |
| Neighborhood CD: | 1 |
Owner |
| Name: | ROGER, MICHAEL | Owner ID: | 308568 |
| Mailing Address: | COLETTE LANDRENEAU 942 WALKER HEIGHTS PL OAK HARBOR, WA 98277 | % Ownership: | 100.0000000000% |
| | | Exemptions: | |
Taxes and Assessment Details
Values
| (+) Improvement Homesite Value: | + | $0 | |
| (+) Improvement Non-Homesite Value: | + | $377,468 | |
| (+) Land Homesite Value: | + | $0 | |
| (+) Land Non-Homesite Value: | + | $200,000 | |
| (+) Curr Use (HS): | + | $0 | $0 |
| (+) Curr Use (NHS): | + | $0 | $0 |
| | | -------------------------- | |
| (=) Market Value: | = | $577,468 | |
| (–) Productivity Loss: | – | $0 | |
| | | -------------------------- | |
| (=) Subtotal: | = | $577,468 | |
| (+) Senior Appraised Value: | + | $0 | |
| (+) Non-Senior Appraised Value: | + | $577,468 | |
| | | -------------------------- | |
| (=) Total Appraised Value: | = | $577,468 | |
| (–) Senior Exemption Loss: | – | $0 | |
| (–) Exemption Loss: | – | $0 | |
| | | -------------------------- | |
| (=) Taxable Value: | = | $577,468 | |
Taxing Jurisdiction
| Owner: | ROGER, MICHAEL | | |
| % Ownership: | 100.0000000000% | | |
| Total Value: | $577,468 | | |
| Tax Area: | 110 - APPRAISER-OH Schl Dist, outside OH, improved & 1 acre or less |
| CF | Conservation Futures | 0.0316035091 | $577,468 | $577,468 | $18.25 | | |
| CEM1 | Cemetery #1 | 0.0040320932 | $577,468 | $577,468 | $2.33 | | |
| FIRE2 | Fire & Rescue Dist #2 N Whidbey GEN | 0.5475949600 | $577,468 | $577,468 | $316.22 | | |
| HOBOND | Hospital BOND | 0.1910887512 | $577,468 | $577,468 | $110.35 | | |
| HOGEN | Hospital GEN | 0.3902502903 | $577,468 | $577,468 | $225.36 | | |
| CE | County Current Expense | 0.3708482477 | $577,468 | $577,468 | $214.15 | | |
| CR | County Roads | 0.4584763726 | $577,468 | $577,468 | $264.76 | | |
| ISLANDEMS | Hospital GEN (EMS) | 0.5000000000 | $577,468 | $577,468 | $288.73 | | |
| LIB | Library Sno-Isle GEN | 0.3153421757 | $577,468 | $577,468 | $182.10 | | |
| NWHIDPRMT | P & R N Whidbey GEN | 0.2004466701 | $577,468 | $577,468 | $115.75 | | |
| SCH201MO | School 201 Enrichment | 1.8559231640 | $577,468 | $577,468 | $1,071.74 | | |
| ST | State School | 1.3035497053 | $577,468 | $577,468 | $752.76 | | |
| ST2 | State School Part 2 | 0.8169543533 | $577,468 | $577,468 | $471.76 | | |
| | Total Tax Rate: | 6.9861102925 | | | | | |
| | | | | Taxes w/Current Exemptions: | $4,034.26 | | |
| | | | | Taxes w/o Exemptions: | $4,034.26 | | |
Improvement / Building
| Improvement #1: | RESIDENTIAL | State Code: | Y | 2126.0 sqft | Value: | $377,468 |
| Bathrooms: | 2.5 | Bedrooms: | 3 | | Ceiling: | DRYWALL PAINTED | Cooling: | HEAT PUMP/CONV/V | | Exterior Wall/Cover: | CEMENT FIBER | Floor Covering: | HARDWOOD/CARP 60-40 | | Floor Structure: | WOOD W/SUBFLOOR | Foundation: | CONCRETE | | Interior Finish: | DRYWALL PAINT | Plumbing Fixture Cnt: | 14 | | Roof Slope: | 5" IN 12" | Roof Structure/Cover: | CJ ASPHALT |
|
| | Type | Description | Class CD | Sub Class CD | Year Built | Area |
| | BAS | BASE/MAIN FLOOR | 3 | 0 | 2014 | 862.0 |
| | UPS | UPPER STORY | 3 | 0 | 2014 | 1264.0 |
| | BIG | BUILT IN GARAGE | 3 | 0 | 2014 | 655.8 |
| | OP3 | OPEN PORCH W/ROOF | 3 | 0 | 2014 | 68.2 |
| | OWP | OPEN WOOD PORCH W/STEPS | 3 | 0 | 2014 | 144.0 |
Sketch
Property Image
Land
| 1 | 15 | SQ (12001-21780) | 0.3800 | 16552.80 | 0.00 | 0.00 | 1.00 | $200,000 | $0 |
Roll Value History
| 2026 | N/A | N/A | N/A | N/A | N/A |
| 2025 | $377,468 | $200,000 | $0 | $577,468 | $577,468 |
| 2024 | $380,536 | $190,000 | $0 | $570,536 | $570,536 |
| 2023 | $392,357 | $180,000 | $0 | $572,357 | $572,357 |
| 2022 | $349,160 | $180,000 | $0 | $529,160 | $307,173 |
| 2021 | $306,120 | $150,000 | $0 | $456,120 | $307,173 |
| 2020 | $296,901 | $100,000 | $0 | $396,901 | $307,173 |
| 2019 | $227,173 | $150,000 | $0 | $377,173 | $307,173 |
| 2018 | $227,769 | $130,000 | $0 | $357,769 | $357,769 |
| 2017 | $233,798 | $100,000 | $0 | $333,798 | $333,798 |
| 2016 | $236,233 | $100,000 | $0 | $336,233 | $336,233 |
| 2015 | $238,667 | $60,000 | $0 | $298,667 | $298,667 |
| 2014 | $243,538 | $60,000 | $0 | $303,538 | $303,538 |
| 2013 | $0 | $74,000 | $0 | $74,000 | $74,000 |
| 2012 | $0 | $74,000 | $0 | $74,000 | $74,000 |
| 2011 | $0 | $74,000 | $0 | $74,000 | $74,000 |
| 2010 | $0 | $74,000 | $0 | $74,000 | $74,000 |
| 2009 | $0 | $81,000 | $0 | $81,000 | $81,000 |
| 2008 | $0 | $30,250 | $0 | $30,250 | $30,250 |
| 2007 | $0 | $30,250 | $0 | $30,250 | $30,250 |
Deed and Sales History
| 1 | 04/27/2023 | WD | Warranty Deed | CHIARALUCE, BETSY | ROGER, MICHAEL | | | $625,000.00 | 56541 | 4559309 |
| 2 | 05/02/2019 | QCD | Quit Claim Deed | CHIARALUCE, JOHN | CHIARALUCE, BETSY | | | $0.00 | 38370 | 4462720 |
| 3 | 06/19/2014 | WD | Warranty Deed | WALDRON CONSTRUCTION INC | CHIARALUCE, JOHN | | | $314,500.00 | 15752 | 4361338 |
| 4 | 11/13/2013 | WD | Warranty Deed | WALDRON CONSTRUCTION INC | WALDRON CONSTRUCTION INC | | | $0.00 | 13477 | 4351555 |
| 5 | 11/13/2013 | WD | Warranty Deed | LAFOUNTAIN, GRACE | WALDRON CONSTRUCTION INC | | | $55,000.00 | 13405 | 4351235 |
| 6 | 06/01/1982 | QCD | Quit Claim Deed | LAFOUNTAIN, GRACE | LAFOUNTAIN, GRACE & | | | $0.00 | 21801 | 398896 |
| 7 | 10/01/1981 | PRD | Personal Representatives Deed | Unknown | LAFOUNTAIN, GRACE | | | $0.00 | 13202 | 388965 |
Payout Agreement
| No payout information available.. |