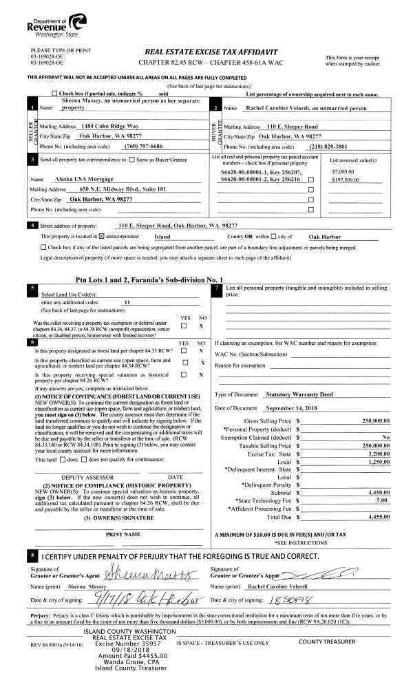
Property
Account |
| Property ID: | 540409 | Abbreviated Legal Description: | IN SW SE: BG SWCR SE S89*E 552'TPB N165' S89*E100' S165' N89*W100'TPB TGW & SUB EZ TR 21 UNREC WALKER'S HTS FR 016 3020 |
| Geographic ID: | R13210-008-3250 | Agent Code: | |
| Type: | Real | | |
| Tax Area: | 110 - APPRAISER-OH Schl Dist, outside OH, improved & 1 acre or less | Land Use Code | 11 |
| Open Space: | N | DFL | N |
| Historic Property: | N | Remodel Property: | N |
| Multi-Family Redevelopment: | N | | |
| Township: | 32 | Section: | 10 |
| Range: | R1 |
Location |
| Address: | 941 WALKER HEIGHTS PL OAK HARBOR, WA 98277 | Mapsco: | |
| Neighborhood: | Cycle 1 | Map ID: | 117 |
| Neighborhood CD: | 1 |
Owner |
| Name: | BACK-YORTON, SUZANNE JEAN | Owner ID: | 289487 |
| Mailing Address: | MARK B YORTON 941 WALKER HEIGHTS PL OAK HARBOR, WA 98277-8189 | % Ownership: | 100.0000000000% |
| | | Exemptions: | |
Taxes and Assessment Details
Values
| (+) Improvement Homesite Value: | + | $0 | |
| (+) Improvement Non-Homesite Value: | + | $603,070 | |
| (+) Land Homesite Value: | + | $0 | |
| (+) Land Non-Homesite Value: | + | $250,000 | |
| (+) Curr Use (HS): | + | $0 | $0 |
| (+) Curr Use (NHS): | + | $0 | $0 |
| | | -------------------------- | |
| (=) Market Value: | = | $853,070 | |
| (–) Productivity Loss: | – | $0 | |
| | | -------------------------- | |
| (=) Subtotal: | = | $853,070 | |
| (+) Senior Appraised Value: | + | $0 | |
| (+) Non-Senior Appraised Value: | + | $853,070 | |
| | | -------------------------- | |
| (=) Total Appraised Value: | = | $853,070 | |
| (–) Senior Exemption Loss: | – | $0 | |
| (–) Exemption Loss: | – | $0 | |
| | | -------------------------- | |
| (=) Taxable Value: | = | $853,070 | |
Taxing Jurisdiction
| Owner: | BACK-YORTON, SUZANNE JEAN | | |
| % Ownership: | 100.0000000000% | | |
| Total Value: | $853,070 | | |
| Tax Area: | 110 - APPRAISER-OH Schl Dist, outside OH, improved & 1 acre or less |
| CF | Conservation Futures | 0.0316035091 | $853,070 | $853,070 | $26.96 | | |
| CEM1 | Cemetery #1 | 0.0040320932 | $853,070 | $853,070 | $3.44 | | |
| FIRE2 | Fire & Rescue Dist #2 N Whidbey GEN | 0.5475949600 | $853,070 | $853,070 | $467.14 | | |
| HOBOND | Hospital BOND | 0.1910887512 | $853,070 | $853,070 | $163.01 | | |
| HOGEN | Hospital GEN | 0.3902502903 | $853,070 | $853,070 | $332.91 | | |
| CE | County Current Expense | 0.3708482477 | $853,070 | $853,070 | $316.36 | | |
| CR | County Roads | 0.4584763726 | $853,070 | $853,070 | $391.11 | | |
| ISLANDEMS | Hospital GEN (EMS) | 0.5000000000 | $853,070 | $853,070 | $426.54 | | |
| LIB | Library Sno-Isle GEN | 0.3153421757 | $853,070 | $853,070 | $269.01 | | |
| NWHIDPRMT | P & R N Whidbey GEN | 0.2004466701 | $853,070 | $853,070 | $171.00 | | |
| SCH201MO | School 201 Enrichment | 1.8559231640 | $853,070 | $853,070 | $1,583.23 | | |
| ST | State School | 1.3035497053 | $853,070 | $853,070 | $1,112.02 | | |
| ST2 | State School Part 2 | 0.8169543533 | $853,070 | $853,070 | $696.92 | | |
| | Total Tax Rate: | 6.9861102925 | | | | | |
| | | | | Taxes w/Current Exemptions: | $5,959.65 | | |
| | | | | Taxes w/o Exemptions: | $5,959.65 | | |
Improvement / Building
| Improvement #1: | RESIDENTIAL | State Code: | Y | 2874.1 sqft | Value: | $603,070 |
| Bathrooms: | 3.5 | Bedrooms: | 3 | | Ceiling: | DRYWALL PAINTED | Cooling: | HEAT PUMP/CONV/V | | Exterior Wall/Cover: | CEMENT FIBER | Floor Covering: | CARPET/VINYL 60-40 | | Floor Structure: | WOOD W/SUBFLOOR | Foundation: | CONCRETE | | Interior Finish: | DRYWALL PAINT | Plumbing Fixture Cnt: | 16 | | Roof Slope: | 8" IN 12" | Roof Structure/Cover: | CJ ASPHALT |
|
| | Type | Description | Class CD | Sub Class CD | Year Built | Area |
| | BAS | BASE/MAIN FLOOR | 4 | 0 | 2019 | 1908.8 |
| | AGR | ATTACHED GARAGE | 4 | 0 | 2019 | 648.0 |
| | DWN | DOWNSTAIRS LIVING AREA | 4 | 0 | 2019 | 965.3 |
| | UB8 | BASEMENT UNFINISHED 8" | 4 | 0 | 2019 | 266.0 |
| | OWC | OPEN WOOD PORCH W/STEPS/ROOF/C | 4 | 0 | 2019 | 128.0 |
| | OWC | OPEN WOOD PORCH W/STEPS/ROOF/C | 4 | 0 | 2019 | 117.0 |
Sketch
Property Image
Land
| 1 | 15 | SQ (12001-21780) | 0.0000 | 0.00 | 0.00 | 0.00 | 1.00 | $250,000 | $0 |
Roll Value History
| 2026 | N/A | N/A | N/A | N/A | N/A |
| 2025 | $603,070 | $250,000 | $0 | $853,070 | $853,070 |
| 2024 | $607,935 | $220,000 | $0 | $827,935 | $827,935 |
| 2023 | $515,243 | $220,000 | $0 | $735,243 | $735,243 |
| 2022 | $470,257 | $220,000 | $0 | $690,257 | $690,257 |
| 2021 | $413,220 | $170,000 | $0 | $583,220 | $583,220 |
| 2020 | $405,303 | $125,000 | $0 | $530,303 | $530,303 |
| 2019 | $0 | $100,000 | $0 | $100,000 | $100,000 |
| 2018 | $0 | $75,000 | $0 | $75,000 | $75,000 |
| 2017 | $0 | $60,000 | $0 | $60,000 | $60,000 |
| 2016 | $0 | $60,000 | $0 | $60,000 | $60,000 |
| 2015 | $0 | $60,000 | $0 | $60,000 | $60,000 |
| 2014 | $0 | $60,000 | $0 | $60,000 | $60,000 |
| 2013 | $0 | $74,000 | $0 | $74,000 | $74,000 |
| 2012 | $0 | $74,000 | $0 | $74,000 | $74,000 |
| 2011 | $0 | $74,000 | $0 | $74,000 | $74,000 |
| 2010 | $0 | $74,000 | $0 | $74,000 | $74,000 |
| 2009 | $0 | $81,000 | $0 | $81,000 | $81,000 |
| 2008 | $0 | $30,250 | $0 | $30,250 | $30,250 |
| 2007 | $0 | $30,250 | $0 | $30,250 | $30,250 |
Deed and Sales History
| 1 | 04/25/2019 | QCD | Quit Claim Deed | BACKMAN-YORTON, SUZANNE JEAN | BACK-YORTON, SUZANNE JEAN | | | $0.00 | 38226 | 4462084 |
| 2 | 10/03/2018 | QCD | Quit Claim Deed | BACKMAN-YORTON, SUZANNE JEAN | BACKMAN-YORTON, SUZANNE JEAN | | | $0.00 | 36233 | 4453180 |
| 3 | 10/03/2018 | WD | Warranty Deed | MCKENZIE, PHYLLIS | BACKMAN-YORTON, SUZANNE JEAN | | | $100,000.00 | 36234 | 4453181 |
| 4 | 10/01/1981 | TRUSTEED | Trustee's Deed | Unknown | WALKER, MABEL | | | $1.00 | 13204 | 388963 |
| 5 | 10/01/1981 | TRUSTEED | Trustee's Deed | WALKER, MABEL | MCKENZIE, PHYLLIS | | | $1.00 | 13725 | 390936 |
Payout Agreement
| No payout information available.. |