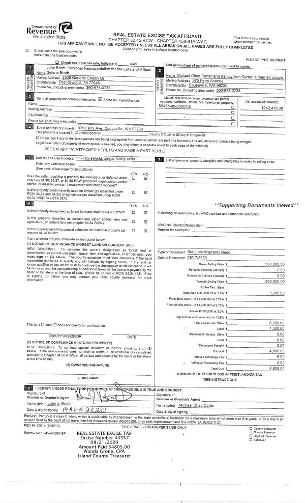
Property
Account |
| Property ID: | 54158 | Abbreviated Legal Description: | 81 - IN GL2:BG PT SLN N/2 GL2 N88*E530.52' FR SW CR N17*E61.98' TPB N17*E61.98' N88*E150' M/L TP S88*W229. 62' & N17*E123.96' FR SE CR SD N/2 GL2 S17*W61.98' S88* W150' M/L TPB TGW EZ DESC AF#84003017 TGW EZ AF#96006399 AF#96007688 |
| Geographic ID: | R22915-200-2370 | Agent Code: | |
| Type: | Real | | |
| Tax Area: | 710 - APPRAISER-S Whid Schl Dist, outside Langley, improved & 1 acre or less | Land Use Code | 11 |
| Open Space: | N | DFL | N |
| Historic Property: | N | Remodel Property: | N |
| Multi-Family Redevelopment: | N | | |
| Township: | 29 | Section: | 15 |
| Range: | R2 |
Location |
| Address: | 5746 ALPHA LN FREELAND, WA 98249 | Mapsco: | |
| Neighborhood: | Cycle 3 | Map ID: | 329 |
| Neighborhood CD: | 3 |
Owner |
| Name: | MCPHERSON, MISHA | Owner ID: | 296967 |
| Mailing Address: | 5746 ALPHA LN FREELAND, WA 98249 | % Ownership: | 100.0000000000% |
| | | Exemptions: | |
Taxes and Assessment Details
Values
| (+) Improvement Homesite Value: | + | $0 | |
| (+) Improvement Non-Homesite Value: | + | $34,162 | |
| (+) Land Homesite Value: | + | $0 | |
| (+) Land Non-Homesite Value: | + | $240,000 | |
| (+) Curr Use (HS): | + | $0 | $0 |
| (+) Curr Use (NHS): | + | $0 | $0 |
| | | -------------------------- | |
| (=) Market Value: | = | $274,162 | |
| (–) Productivity Loss: | – | $0 | |
| | | -------------------------- | |
| (=) Subtotal: | = | $274,162 | |
| (+) Senior Appraised Value: | + | $0 | |
| (+) Non-Senior Appraised Value: | + | $274,162 | |
| | | -------------------------- | |
| (=) Total Appraised Value: | = | $274,162 | |
| (–) Senior Exemption Loss: | – | $0 | |
| (–) Exemption Loss: | – | $0 | |
| | | -------------------------- | |
| (=) Taxable Value: | = | $274,162 | |
Taxing Jurisdiction
| Owner: | MCPHERSON, MISHA | | |
| % Ownership: | 100.0000000000% | | |
| Total Value: | $274,162 | | |
| Tax Area: | 710 - APPRAISER-S Whid Schl Dist, outside Langley, improved & 1 acre or less |
| CF | Conservation Futures | 0.0316035091 | $274,162 | $274,162 | $8.66 | | |
| FIRE3 | Fire & Rescue Dist #3 S Whidbey GEN | 1.2004855531 | $274,162 | $274,162 | $329.13 | | |
| HOBOND | Hospital BOND | 0.1910887512 | $274,162 | $274,162 | $52.39 | | |
| HOGEN | Hospital GEN | 0.3902502903 | $274,162 | $274,162 | $106.99 | | |
| CE | County Current Expense | 0.3708482477 | $274,162 | $274,162 | $101.67 | | |
| CR | County Roads | 0.4584763726 | $274,162 | $274,162 | $125.70 | | |
| ISLANDEMS | Hospital GEN (EMS) | 0.5000000000 | $274,162 | $274,162 | $137.08 | | |
| LIB | Library Sno-Isle GEN | 0.3153421757 | $274,162 | $274,162 | $86.45 | | |
| PORTWHID | Port of S Whidbey GEN | 0.1094540357 | $274,162 | $274,162 | $30.01 | | |
| SCH206BOND | School 206 BOND | 0.3161759235 | $274,162 | $274,162 | $86.68 | | |
| SCH206MO | School 206 Enrichment | 0.4547169547 | $274,162 | $274,162 | $124.67 | | |
| ST | State School | 1.3035497053 | $274,162 | $274,162 | $357.38 | | |
| ST2 | State School Part 2 | 0.8169543533 | $274,162 | $274,162 | $223.98 | | |
| SWHIDPRBD | P & R S Whidbey BOND | 0.0152817568 | $274,162 | $274,162 | $4.19 | | |
| SWHIDPRBD2 | P & R S Whidbey BOND2 | 0.0138911264 | $274,162 | $274,162 | $3.81 | | |
| SWHIDPRMT | P & R S Whidbey GEN | 0.2053334452 | $274,162 | $274,162 | $56.29 | | |
| | Total Tax Rate: | 6.6934522006 | | | | | |
| | | | | Taxes w/Current Exemptions: | $1,835.08 | | |
| | | | | Taxes w/o Exemptions: | $1,835.08 | | |
Improvement / Building
| Improvement #1: | MANUFACTURED HOME | State Code: | Y | 1440.0 sqft | Value: | $34,162 |
| Bathrooms: | 0 | Bedrooms: | 0 | | Ceiling: | PLASTER PAINTED | Cooling: | EVAP NO DUCT | | Exterior Wall/Cover: | VINYL | Floor Covering: | CARPET 100% | | Floor Structure: | SLAB ON GRADE | Foundation: | SLAB | | Heating: | FHA ELECTRIC | Interior Finish: | PLASTER | | Plumbing Fixture Cnt: | 1 | Roof Slope: | FLAT | | Roof Structure/Cover: | CJ ALUMINIUM HEAVY |   |   |
|
| | Type | Description | Class CD | Sub Class CD | Year Built | Area |
| | BAS | BASE/MAIN FLOOR | 3 | 0 | 1972 | 1440.0 |
| | oBSU | UNF BASEMT | 3 | 0 | 1972 | 576.0 |
| | oSEP | SEPTIC | 3 | 0 | 1972 | 0.0 |
Sketch
Property Image
Land
| 1 | 14 | SQ (08001-12000) | 0.2100 | 9147.60 | 0.00 | 0.00 | 1.00 | $240,000 | $0 |
Roll Value History
| 2026 | N/A | N/A | N/A | N/A | N/A |
| 2025 | $34,162 | $240,000 | $0 | $274,162 | $274,162 |
| 2024 | $34,162 | $230,000 | $0 | $264,162 | $264,162 |
| 2023 | $34,162 | $230,000 | $0 | $264,162 | $264,162 |
| 2022 | $34,068 | $210,000 | $0 | $244,068 | $244,068 |
| 2021 | $32,871 | $140,000 | $0 | $172,871 | $172,871 |
| 2020 | $33,120 | $130,000 | $0 | $163,120 | $163,120 |
| 2019 | $29,778 | $170,000 | $0 | $199,778 | $199,778 |
| 2018 | $30,483 | $160,000 | $0 | $190,483 | $190,483 |
| 2017 | $31,893 | $110,000 | $0 | $141,893 | $141,893 |
| 2016 | $32,598 | $100,000 | $0 | $132,598 | $132,598 |
| 2015 | $34,008 | $100,000 | $0 | $134,008 | $134,008 |
| 2014 | $35,418 | $100,000 | $0 | $135,418 | $135,418 |
| 2013 | $36,489 | $100,000 | $0 | $136,489 | $136,489 |
| 2012 | $37,194 | $106,250 | $0 | $143,444 | $143,444 |
| 2011 | $38,604 | $125,000 | $0 | $163,604 | $163,604 |
| 2010 | $47,323 | $125,000 | $0 | $172,323 | $172,323 |
| 2009 | $48,490 | $150,000 | $0 | $198,490 | $198,490 |
| 2008 | $48,803 | $146,000 | $0 | $194,803 | $194,803 |
| 2007 | $48,638 | $93,000 | $0 | $141,638 | $141,638 |
Deed and Sales History
| 1 | 10/07/2020 | WD | Warranty Deed | GANZ, GRETCHEN | MCPHERSON, MISHA | | | $282,000.00 | 45264 | 4499619 |
|   | |
| 2 | 10/07/2020 | MANHOME | Manufactured Home | GANZ, GRETCHEN | MCPHERSON, MISHA | | | $33,000.00 | 45265 | |
| 3 | 05/28/2008 | QCD | Quit Claim Deed | GANZ, GRETCHEN V | GANZ, GRETCHEN | | | $0.00 | 81786 | 4232493 |
| 4 | 01/01/1998 | OTHER | Other - Misc. Documents | GANZ, GRETCHEN | GANZ, GRETCHEN V | | | $24,573.00 | 80158 | 0 |
| 5 | 12/01/1997 | WD | Warranty Deed | RICHARDS, CHRIS & | GANZ, GRETCHEN | | | $42,327.00 | 74577 | 97021681 |
| 6 | 08/01/1989 | OTHER | Other - Misc. Documents | RICHARDS, CHRISTOPHER L | RICHARDS, CHRIS & | | | $16,500.00 | 1954 | 0 |
| 7 | 09/01/1984 | REC | Real Estate Contract | EVANS, LYNN C | RICHARDS, CHRISTOPHER L | | | $8,950.00 | 42659 | 84003018 |
| 8 | 01/01/1900 | OTHER | Other - Misc. Documents | Unknown | EVANS, LYNN C | | | $0.00 | 0 | 0 |
Payout Agreement
| No payout information available.. |