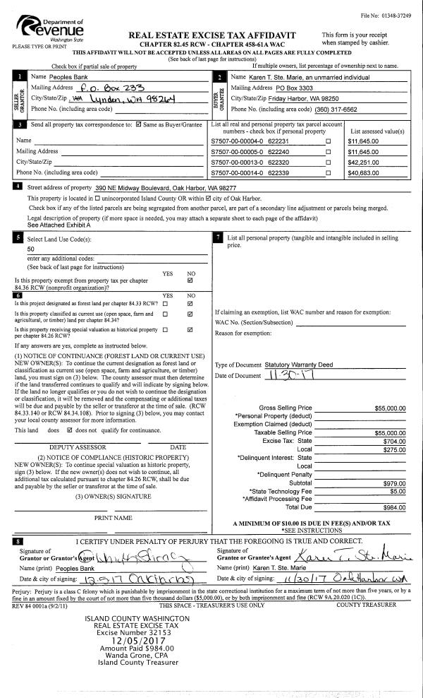
Property
Account |
| Property ID: | 54185 | Abbreviated Legal Description: | 27 BRUNN DC - INCL ADJ TIDELANDS |
| Geographic ID: | R22915-206-1300 | Agent Code: | |
| Type: | Real | | |
| Tax Area: | 710 - APPRAISER-S Whid Schl Dist, outside Langley, improved & 1 acre or less | Land Use Code | 11 |
| Open Space: | N | DFL | N |
| Historic Property: | N | Remodel Property: | N |
| Multi-Family Redevelopment: | N | | |
| Township: | 29 | Section: | 15 |
| Range: | R2 |
Location |
| Address: | 5818 MUTINY BAY RD FREELAND, WA 98249 | Mapsco: | |
| Neighborhood: | Cycle 3 | Map ID: | 329 |
| Neighborhood CD: | 3 |
Owner |
| Name: | MUTINY BAY HOLDINGS LLC | Owner ID: | 316064 |
| Mailing Address: | 2212 102ND PL SE BELLEVUE, WA 98004 | % Ownership: | 100.0000000000% |
| | | Exemptions: | |
Taxes and Assessment Details
Values
| (+) Improvement Homesite Value: | + | $0 | |
| (+) Improvement Non-Homesite Value: | + | $148,209 | |
| (+) Land Homesite Value: | + | $0 | |
| (+) Land Non-Homesite Value: | + | $1,150,130 | |
| (+) Curr Use (HS): | + | $0 | $0 |
| (+) Curr Use (NHS): | + | $0 | $0 |
| | | -------------------------- | |
| (=) Market Value: | = | $1,298,339 | |
| (–) Productivity Loss: | – | $0 | |
| | | -------------------------- | |
| (=) Subtotal: | = | $1,298,339 | |
| (+) Senior Appraised Value: | + | $0 | |
| (+) Non-Senior Appraised Value: | + | $1,298,339 | |
| | | -------------------------- | |
| (=) Total Appraised Value: | = | $1,298,339 | |
| (–) Senior Exemption Loss: | – | $0 | |
| (–) Exemption Loss: | – | $0 | |
| | | -------------------------- | |
| (=) Taxable Value: | = | $1,298,339 | |
Taxing Jurisdiction
| Owner: | MUTINY BAY HOLDINGS LLC | | |
| % Ownership: | 100.0000000000% | | |
| Total Value: | $1,298,339 | | |
| Tax Area: | 710 - APPRAISER-S Whid Schl Dist, outside Langley, improved & 1 acre or less |
| CF | Conservation Futures | 0.0316035091 | $1,298,339 | $1,298,339 | $41.03 | | |
| FIRE3 | Fire & Rescue Dist #3 S Whidbey GEN | 1.2004855531 | $1,298,339 | $1,298,339 | $1,558.64 | | |
| HOBOND | Hospital BOND | 0.1910887512 | $1,298,339 | $1,298,339 | $248.10 | | |
| HOGEN | Hospital GEN | 0.3902502903 | $1,298,339 | $1,298,339 | $506.68 | | |
| CE | County Current Expense | 0.3708482477 | $1,298,339 | $1,298,339 | $481.49 | | |
| CR | County Roads | 0.4584763726 | $1,298,339 | $1,298,339 | $595.26 | | |
| ISLANDEMS | Hospital GEN (EMS) | 0.5000000000 | $1,298,339 | $1,298,339 | $649.17 | | |
| LIB | Library Sno-Isle GEN | 0.3153421757 | $1,298,339 | $1,298,339 | $409.42 | | |
| PORTWHID | Port of S Whidbey GEN | 0.1094540357 | $1,298,339 | $1,298,339 | $142.11 | | |
| SCH206BOND | School 206 BOND | 0.3161759235 | $1,298,339 | $1,298,339 | $410.50 | | |
| SCH206MO | School 206 Enrichment | 0.4547169547 | $1,298,339 | $1,298,339 | $590.38 | | |
| ST | State School | 1.3035497053 | $1,298,339 | $1,298,339 | $1,692.45 | | |
| ST2 | State School Part 2 | 0.8169543533 | $1,298,339 | $1,298,339 | $1,060.68 | | |
| SWHIDPRBD | P & R S Whidbey BOND | 0.0152817568 | $1,298,339 | $1,298,339 | $19.84 | | |
| SWHIDPRBD2 | P & R S Whidbey BOND2 | 0.0138911264 | $1,298,339 | $1,298,339 | $18.04 | | |
| SWHIDPRMT | P & R S Whidbey GEN | 0.2053334452 | $1,298,339 | $1,298,339 | $266.59 | | |
| | Total Tax Rate: | 6.6934522006 | | | | | |
| | | | | Taxes w/Current Exemptions: | $8,690.38 | | |
| | | | | Taxes w/o Exemptions: | $8,690.38 | | |
Improvement / Building
| Improvement #1: | RESIDENTIAL | State Code: | Y | 609.0 sqft | Value: | $148,209 |
| Bathrooms: | 1 | Bedrooms: | 2 | | Ceiling: | TONGUE & GROOVE | Exterior Wall/Cover: | SHINGLE | | Floor Covering: | HARDWOOD/CARP 60-40 | Floor Structure: | WOOD W/SUBFLOOR | | Foundation: | CONCRETE | Heating: | WALL HEAT ELECTRIC | | Interior Finish: | DRYWALL PAINT | Plumbing Fixture Cnt: | 6 | | Roof Slope: | 8" IN 12" | Roof Structure/Cover: | BEAM ASPHALT |
|
| | Type | Description | Class CD | Sub Class CD | Year Built | Area |
| | BAS | BASE/MAIN FLOOR | 3 | 0 | 1953 | 609.0 |
| | OWC | OPEN WOOD PORCH W/STEPS/ROOF/C | 3 | 0 | 1953 | 174.0 |
| | OWP | OPEN WOOD PORCH W/STEPS | 3 | 0 | 1953 | 236.0 |
| | OWP | OPEN WOOD PORCH W/STEPS | 3 | 0 | 1953 | 261.0 |
| | oUTI | UTILITY | 2 | 0 | 1953 | 266.0 |
Sketch
Property Image
Land
| 1 | LB | LOW BANK | 0.0000 | 0.00 | 22.00 | 0.00 | 1.00 | $1,150,000 | $0 |
| 2 | 55 | TIDES | 0.0000 | 0.00 | 13.00 | 0.00 | 1.00 | $130 | $0 |
Roll Value History
| 2026 | N/A | N/A | N/A | N/A | N/A |
| 2025 | $148,209 | $1,150,130 | $0 | $1,298,339 | $1,298,339 |
| 2024 | $135,131 | $1,375,130 | $0 | $1,510,261 | $1,510,261 |
| 2023 | $136,902 | $1,375,130 | $0 | $1,512,032 | $1,512,032 |
| 2022 | $125,574 | $1,200,130 | $0 | $1,325,704 | $1,325,704 |
| 2021 | $110,588 | $850,130 | $0 | $960,718 | $960,718 |
| 2020 | $99,478 | $700,130 | $0 | $799,608 | $799,608 |
| 2019 | $53,109 | $750,130 | $0 | $803,239 | $803,239 |
| 2018 | $53,325 | $650,130 | $0 | $703,455 | $703,455 |
| 2017 | $53,752 | $400,130 | $0 | $453,882 | $453,882 |
| 2016 | $54,621 | $400,130 | $0 | $454,751 | $454,751 |
| 2015 | $55,490 | $400,130 | $0 | $455,620 | $455,620 |
| 2014 | $56,358 | $400,130 | $0 | $456,488 | $456,488 |
| 2013 | $55,490 | $363,551 | $0 | $419,041 | $419,041 |
| 2012 | $34,811 | $363,551 | $0 | $398,362 | $398,362 |
| 2011 | $35,478 | $363,551 | $0 | $399,029 | $399,029 |
| 2010 | $43,774 | $363,551 | $0 | $407,325 | $407,325 |
| 2009 | $45,920 | $434,590 | $0 | $480,510 | $480,510 |
| 2008 | $46,948 | $497,404 | $0 | $544,352 | $544,352 |
| 2007 | $47,968 | $497,313 | $0 | $545,281 | $545,281 |
Deed and Sales History
| 1 | 04/04/2025 | QCD | Quit Claim Deed | EVANS, JAMES SCOTT | MUTINY BAY HOLDINGS LLC | | | $0.00 | 63051 | 4584168 |
| 2 | 08/28/2024 | WD | Warranty Deed | BEARD, CAROLYN EMILY | EVANS, JAMES SCOTT | | | $1,180,000.00 | 61200 | 4576825 |
| 3 | 08/25/2020 | WD | Warranty Deed | PEEK, THERESA | BEARD, CAROLYN EMILY | | | $995,000.00 | 44469 | 4495104 |
| 4 | 09/22/2017 | WD | Warranty Deed | ZECH, RICHARD | PEEK, THERESA | | | $750,000.00 | 31258 | 4430954 |
| 5 | 05/16/2016 | WD | Warranty Deed | MUTINY BAY HOLDING LLC | ZECH, RICHARD | | | $650,000.00 | 24399 | 4399708 |
| 6 | 07/22/2013 | QCD | Quit Claim Deed | EVANS, JAMES SCOT | MUTINY BAY HOLDING LLC | | | $0.00 | 12240 | 4345381 |
| 7 | 11/29/2011 | BARGSLD | Bargain And Sale Deed | WHITE, LILLIAN B | EVANS, JAMES SCOT | | | $435,000.00 | 6278 | 4305646 |
| 8 | 07/01/1985 | OTHER | Other - Misc. Documents | WHITE, THOMAS E | WHITE, LILLIAN B | | | $0.00 | 61254 | 0 |
| 9 | 01/01/1900 | OTHER | Other - Misc. Documents | Unknown | WHITE, THOMAS E | | | $0.00 | 0 | 0 |
Payout Agreement
| No payout information available.. |