Property
Account |
| Property ID: | 542121 | Abbreviated Legal Description: | TR 4 - SP 79-288 BG SWCR SEC 9 N01*E1007.50' S88*E290.58'TPB N01*E73.75' S88*E387'TO SHLN SELY TP S88*E FR TPB N88*W TO TPB TGW TIDES TGW & SUB EZ FR 108 0350 |
| Geographic ID: | R23009-104-0550 | Agent Code: | |
| Type: | Real | | |
| Tax Area: | 319 - APPRAISER-Cpvl Schl Dist, outside Cpvl, vacant & 50 acres or less | Land Use Code | 91 |
| Open Space: | N | DFL | N |
| Historic Property: | N | Remodel Property: | N |
| Multi-Family Redevelopment: | N | | |
| Township: | 30 | Section: | 09 |
| Range: | R2 |
Location |
| Address: | 818 QUAIL RUN LN GREENBANK, WA 98253 | Mapsco: | |
| Neighborhood: | Cycle 3 | Map ID: | 367 |
| Neighborhood CD: | 3 |
Owner |
| Name: | KASETER TTEE, ARNON | Owner ID: | 315456 |
| Mailing Address: | JO KASETER TTEE 17712 16TH PL W LYNNWOOD, WA 98037 | % Ownership: | 100.0000000000% |
| | | Exemptions: | |
Taxes and Assessment Details
Values
| (+) Improvement Homesite Value: | + | $0 | |
| (+) Improvement Non-Homesite Value: | + | $0 | |
| (+) Land Homesite Value: | + | $0 | |
| (+) Land Non-Homesite Value: | + | $325,740 | |
| (+) Curr Use (HS): | + | $0 | $0 |
| (+) Curr Use (NHS): | + | $0 | $0 |
| | | -------------------------- | |
| (=) Market Value: | = | $325,740 | |
| (–) Productivity Loss: | – | $0 | |
| | | -------------------------- | |
| (=) Subtotal: | = | $325,740 | |
| (+) Senior Appraised Value: | + | $0 | |
| (+) Non-Senior Appraised Value: | + | $325,740 | |
| | | -------------------------- | |
| (=) Total Appraised Value: | = | $325,740 | |
| (–) Senior Exemption Loss: | – | $0 | |
| (–) Exemption Loss: | – | $0 | |
| | | -------------------------- | |
| (=) Taxable Value: | = | $325,740 | |
Taxing Jurisdiction
| Owner: | KASETER TTEE, ARNON | | |
| % Ownership: | 100.0000000000% | | |
| Total Value: | $325,740 | | |
| Tax Area: | 319 - APPRAISER-Cpvl Schl Dist, outside Cpvl, vacant & 50 acres or less |
| CF | Conservation Futures | 0.0316035091 | $325,740 | $325,740 | $10.29 | | |
| CEM2 | Cemetery #2 | 0.0095056933 | $325,740 | $325,740 | $3.10 | | |
| HOBOND | Hospital BOND | 0.1910887512 | $325,740 | $325,740 | $62.25 | | |
| HOGEN | Hospital GEN | 0.3902502903 | $325,740 | $325,740 | $127.12 | | |
| CE | County Current Expense | 0.3708482477 | $325,740 | $325,740 | $120.80 | | |
| CR | County Roads | 0.4584763726 | $325,740 | $325,740 | $149.34 | | |
| ISLANDEMS | Hospital GEN (EMS) | 0.5000000000 | $325,740 | $325,740 | $162.87 | | |
| LIB | Library Sno-Isle GEN | 0.3153421757 | $325,740 | $325,740 | $102.72 | | |
| LIBCAP | Library Sno-Isle BOND (Cap Fac Imp Area) | 0.0543427938 | $325,740 | $325,740 | $17.70 | | |
| POCOUP | Port of Coupeville GEN | 0.1093371703 | $325,740 | $325,740 | $35.62 | | |
| POCOUPIDD | Port of Coupeville IDD | 0.3409740022 | $325,740 | $325,740 | $111.07 | | |
| COUPSDTECH | School 204 CP (TECH) | 0.7545480007 | $325,740 | $325,740 | $245.79 | | |
| SCH204MO | School 204 Enrichment | 0.6716186034 | $325,740 | $325,740 | $218.77 | | |
| ST | State School | 1.3035497053 | $325,740 | $325,740 | $424.62 | | |
| ST2 | State School Part 2 | 0.8169543533 | $325,740 | $325,740 | $266.11 | | |
| | Total Tax Rate: | 6.3184396689 | | | | | |
| | | | | Taxes w/Current Exemptions: | $2,058.17 | | |
| | | | | Taxes w/o Exemptions: | $2,058.17 | | |
Improvement / Building
Sketch
| No sketches available for this property. |
Property Image
Land
| 1 | HB | HIGH BLUFF | 0.6385 | 27813.06 | 74.00 | 0.00 | 1.00 | $325,000 | $0 |
| 2 | 55 | TIDES | 0.0000 | 0.00 | 74.00 | 0.00 | 1.00 | $740 | $0 |
Roll Value History
| 2026 | N/A | N/A | N/A | N/A | N/A |
| 2025 | $0 | $325,740 | $0 | $325,740 | $325,740 |
| 2024 | $0 | $325,740 | $0 | $325,740 | $325,740 |
| 2023 | $0 | $300,740 | $0 | $300,740 | $300,740 |
| 2022 | $0 | $250,740 | $0 | $250,740 | $250,740 |
| 2021 | $0 | $200,740 | $0 | $200,740 | $200,740 |
| 2020 | $0 | $175,740 | $0 | $175,740 | $175,740 |
| 2019 | $0 | $200,740 | $0 | $200,740 | $200,740 |
| 2018 | $0 | $200,740 | $0 | $200,740 | $200,740 |
| 2017 | $0 | $200,740 | $0 | $200,740 | $200,740 |
| 2016 | $0 | $200,740 | $0 | $200,740 | $200,740 |
| 2015 | $0 | $200,740 | $0 | $200,740 | $200,740 |
| 2014 | $0 | $200,740 | $0 | $200,740 | $200,740 |
| 2013 | $0 | $148,013 | $0 | $148,013 | $148,013 |
| 2012 | $0 | $148,013 | $0 | $148,013 | $148,013 |
| 2011 | $0 | $148,013 | $0 | $148,013 | $148,013 |
| 2010 | $0 | $148,013 | $0 | $148,013 | $148,013 |
| 2009 | $0 | $133,943 | $0 | $133,943 | $133,943 |
| 2008 | $0 | $124,362 | $0 | $124,362 | $124,362 |
| 2007 | $0 | $106,967 | $0 | $106,967 | $106,967 |
Deed and Sales History
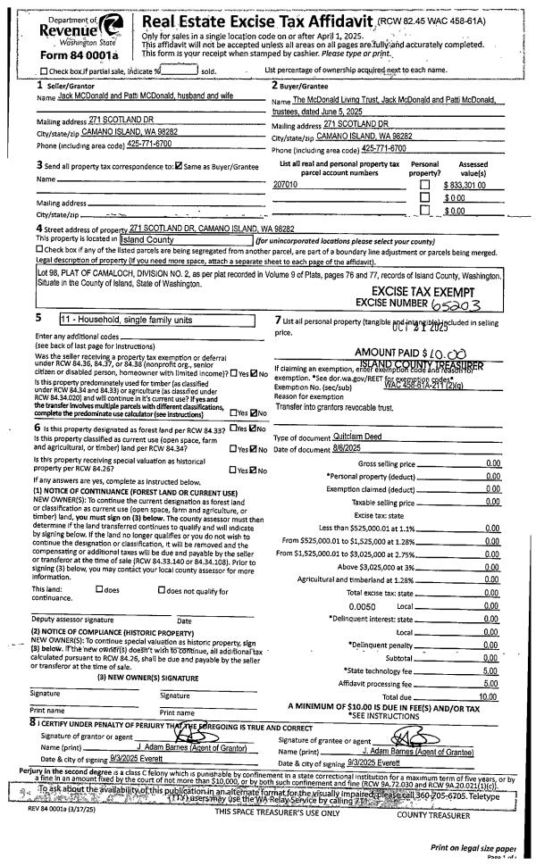
| 1 | 10/15/2024 | QCD | Quit Claim Deed | KASETER, JO | KASETER TTEE, ARNON | | | $10.00 | 62545 | 4582173 |
| 2 | 11/12/2016 | WD | Warranty Deed | STEWART, DOROTHY C | KASETER, JO | | | $140,000.00 | 27348 | 4413375 |
| 3 | 07/16/2016 | QCD | Quit Claim Deed | STEWART, DONALD L | STEWART, DOROTHY C | | | $0.00 | 25300 | 4403472 |
Payout Agreement
| No payout information available.. |