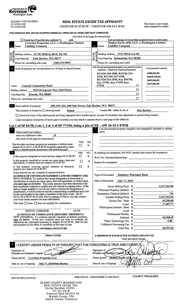
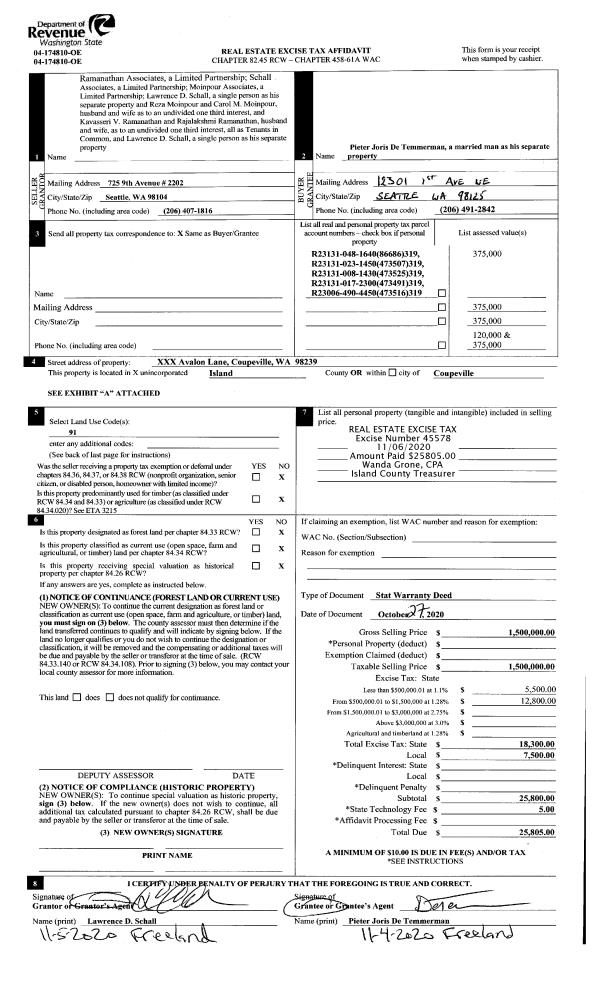
Property
Account |
| Property ID: | 542345 | Abbreviated Legal Description: | IN SE NE:BG INTER SEC ELN RD & NLN SE NE E780' TPB S145' E180' N145' W180' TPB FR 386 4940 & 386 4850 TAX PURPOSES ONLY 12/81 TGW EZ AF#85004341 |
| Geographic ID: | R22922-386-4900 | Agent Code: | |
| Type: | Real | | |
| Tax Area: | 710 - APPRAISER-S Whid Schl Dist, outside Langley, improved & 1 acre or less | Land Use Code | 11 |
| Open Space: | N | DFL | N |
| Historic Property: | N | Remodel Property: | N |
| Multi-Family Redevelopment: | N | | |
| Township: | 29 | Section: | 22 |
| Range: | R2 |
Location |
| Address: | 1567 ROY RD FREELAND, WA 98249 | Mapsco: | |
| Neighborhood: | Cycle 3 | Map ID: | 337 |
| Neighborhood CD: | 3 |
Owner |
| Name: | WEST, ARIC D | Owner ID: | 299610 |
| Mailing Address: | KANANI M KEMP 1567 ROY RD FREELAND, WA 98249 | % Ownership: | 100.0000000000% |
| | | Exemptions: | |
Taxes and Assessment Details
Values
| (+) Improvement Homesite Value: | + | $0 | |
| (+) Improvement Non-Homesite Value: | + | $317,904 | |
| (+) Land Homesite Value: | + | $0 | |
| (+) Land Non-Homesite Value: | + | $240,000 | |
| (+) Curr Use (HS): | + | $0 | $0 |
| (+) Curr Use (NHS): | + | $0 | $0 |
| | | -------------------------- | |
| (=) Market Value: | = | $557,904 | |
| (–) Productivity Loss: | – | $0 | |
| | | -------------------------- | |
| (=) Subtotal: | = | $557,904 | |
| (+) Senior Appraised Value: | + | $0 | |
| (+) Non-Senior Appraised Value: | + | $557,904 | |
| | | -------------------------- | |
| (=) Total Appraised Value: | = | $557,904 | |
| (–) Senior Exemption Loss: | – | $0 | |
| (–) Exemption Loss: | – | $0 | |
| | | -------------------------- | |
| (=) Taxable Value: | = | $557,904 | |
Taxing Jurisdiction
| Owner: | WEST, ARIC D | | |
| % Ownership: | 100.0000000000% | | |
| Total Value: | $557,904 | | |
| Tax Area: | 710 - APPRAISER-S Whid Schl Dist, outside Langley, improved & 1 acre or less |
| CF | Conservation Futures | 0.0316035091 | $557,904 | $557,904 | $17.63 | | |
| FIRE3 | Fire & Rescue Dist #3 S Whidbey GEN | 1.2004855531 | $557,904 | $557,904 | $669.76 | | |
| HOBOND | Hospital BOND | 0.1910887512 | $557,904 | $557,904 | $106.61 | | |
| HOGEN | Hospital GEN | 0.3902502903 | $557,904 | $557,904 | $217.72 | | |
| CE | County Current Expense | 0.3708482477 | $557,904 | $557,904 | $206.90 | | |
| CR | County Roads | 0.4584763726 | $557,904 | $557,904 | $255.79 | | |
| ISLANDEMS | Hospital GEN (EMS) | 0.5000000000 | $557,904 | $557,904 | $278.95 | | |
| LIB | Library Sno-Isle GEN | 0.3153421757 | $557,904 | $557,904 | $175.93 | | |
| PORTWHID | Port of S Whidbey GEN | 0.1094540357 | $557,904 | $557,904 | $61.06 | | |
| SCH206BOND | School 206 BOND | 0.3161759235 | $557,904 | $557,904 | $176.40 | | |
| SCH206MO | School 206 Enrichment | 0.4547169547 | $557,904 | $557,904 | $253.69 | | |
| ST | State School | 1.3035497053 | $557,904 | $557,904 | $727.26 | | |
| ST2 | State School Part 2 | 0.8169543533 | $557,904 | $557,904 | $455.78 | | |
| SWHIDPRBD | P & R S Whidbey BOND | 0.0152817568 | $557,904 | $557,904 | $8.53 | | |
| SWHIDPRBD2 | P & R S Whidbey BOND2 | 0.0138911264 | $557,904 | $557,904 | $7.75 | | |
| SWHIDPRMT | P & R S Whidbey GEN | 0.2053334452 | $557,904 | $557,904 | $114.56 | | |
| | Total Tax Rate: | 6.6934522006 | | | | | |
| | | | | Taxes w/Current Exemptions: | $3,734.32 | | |
| | | | | Taxes w/o Exemptions: | $3,734.32 | | |
Improvement / Building
| Improvement #1: | RESIDENTIAL | State Code: | Y | 2048.0 sqft | Value: | $317,904 |
| Bathrooms: | 2 | Bedrooms: | 2 | | Ceiling: | DRY WALL SPRAYED | Exterior Wall/Cover: | PLY/HARDBOARD T-111 | | Floor Covering: | CERAMIC TILE/CPT 40-60 | Floor Structure: | WOOD W/SUBFLOOR | | Foundation: | CONCRETE | Heating: | BASEBOARD ELECTRIC | | Interior Finish: | DRYWALL PAINT | Plumbing Fixture Cnt: | 9 | | Roof Slope: | 4" IN 12" | Roof Structure/Cover: | STEEL TERNE |
|
| | Type | Description | Class CD | Sub Class CD | Year Built | Area |
| | BAS | BASE/MAIN FLOOR | 3 | 0 | 1974 | 1024.0 |
| | UTY | STORAGE/UTILITY | 3 | 0 | 1974 | 437.2 |
| | OWP | OPEN WOOD PORCH W/STEPS | 3 | 0 | 1974 | 288.0 |
| | OWR | OPEN WOOD PORCH W/STEPS/ROOF | 3 | 0 | 1974 | 203.5 |
| | OWC | OPEN WOOD PORCH W/STEPS/ROOF/C | 3 | 0 | 1974 | 384.0 |
| | DWN | DOWNSTAIRS LIVING AREA | 3 | 0 | 1974 | 1024.0 |
| | CPD | OPEN CARPORT DIRT FLOOR | 3 | 0 | 1974 | 288.0 |
Sketch
Property Image
Land
| 1 | 16 | AC (00.51-01.00) | 0.6000 | 26136.00 | 0.00 | 0.00 | 1.00 | $240,000 | $0 |
Roll Value History
| 2026 | N/A | N/A | N/A | N/A | N/A |
| 2025 | $317,904 | $240,000 | $0 | $557,904 | $557,904 |
| 2024 | $328,407 | $220,000 | $0 | $548,407 | $548,407 |
| 2023 | $332,714 | $240,000 | $0 | $572,714 | $572,714 |
| 2022 | $305,192 | $240,000 | $0 | $545,192 | $545,192 |
| 2021 | $268,777 | $160,000 | $0 | $428,777 | $428,777 |
| 2020 | $262,715 | $150,000 | $0 | $412,715 | $412,715 |
| 2019 | $203,115 | $170,000 | $0 | $373,115 | $373,115 |
| 2018 | $170,100 | $130,000 | $0 | $300,100 | $300,100 |
| 2017 | $171,136 | $110,000 | $0 | $281,136 | $255,365 |
| 2016 | $173,250 | $100,000 | $0 | $273,250 | $255,365 |
| 2015 | $175,365 | $80,000 | $0 | $255,365 | $255,365 |
| 2014 | $170,241 | $59,500 | $0 | $229,741 | $229,741 |
| 2013 | $128,224 | $100,000 | $0 | $228,224 | $228,224 |
| 2012 | $129,701 | $110,500 | $0 | $240,201 | $240,201 |
| 2011 | $131,612 | $130,000 | $0 | $261,612 | $261,612 |
| 2010 | $154,849 | $130,000 | $0 | $284,849 | $284,849 |
| 2009 | $162,039 | $160,000 | $0 | $322,039 | $322,039 |
| 2008 | $164,887 | $121,000 | $0 | $285,887 | $285,887 |
| 2007 | $157,371 | $70,000 | $0 | $227,371 | $227,371 |
Deed and Sales History
| 1 | 05/25/2021 | WD | Warranty Deed | GRACE, ILANA | WEST, ARIC D | | | $575,000.00 | 48482 | 4520615 |
| 2 | 08/21/2018 | WD | Warranty Deed | BAILEY, ELAINE M | GRACE, ILANA | | | $430,000.00 | 35581 | 4450475 |
| 3 | 04/02/2018 | QCD | Quit Claim Deed | BAILEY, STEVEN L | BAILEY, ELAINE M | | | $0.00 | 33557 | 4442023 |
| 4 | 06/18/2014 | WD | Warranty Deed | CARROLL, JAMES S | BAILEY, STEVEN L | | | $280,000.00 | 15766 | 4361404 |
|   | |
| 5 | 09/27/2005 | WD | Warranty Deed | RUDDICK, DAVID W | CARROLL, JAMES S | | | $274,000.00 | 55000 | 4149656 |
| 6 | 08/01/1997 | WD | Warranty Deed | MCCANN, DOROTHY M | RUDDICK, DAVID W | | | $132,500.00 | 72761 | 97013134 |
| 7 | 03/01/1995 | OTHER | Other - Misc. Documents | MCCANN, LEONARD A | MCCANN, DOROTHY M | | | $0.00 | 66343 | 0 |
| 8 | 12/01/1981 | OTHER | Other - Misc. Documents | MCCANN, LEONARD A | MCCANN, LEONARD A | | | $0.00 | 59321 | 0 |
| 9 | 01/01/1900 | OTHER | Other - Misc. Documents | Unknown | MCCANN, LEONARD A | | | $0.00 | 0 | 0 |
Payout Agreement
| No payout information available.. |