Property
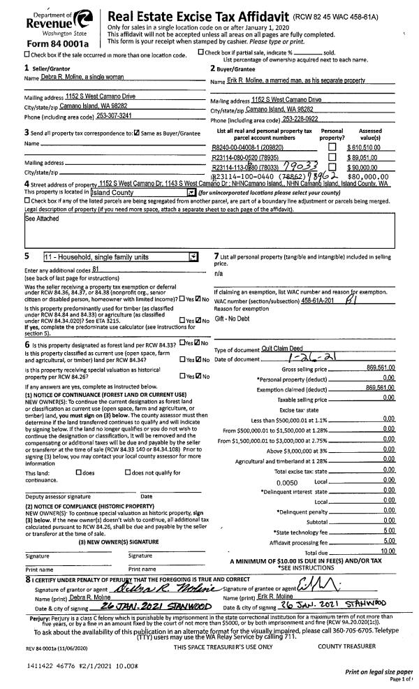
Account |
| Property ID: | 542416 | Abbreviated Legal Description: | REPLACES 035 4800 W/2 SE SE SE TGW & SUBJ EZ OUT 065 4630 |
| Geographic ID: | R32802-035-4700 | Agent Code: | |
| Type: | Real | | |
| Tax Area: | 712 - APPRAISER-S Whid Schl Dist, outside Langley, improved, greater than 1 acre | Land Use Code | 11 |
| Open Space: | N | DFL | N |
| Historic Property: | N | Remodel Property: | N |
| Multi-Family Redevelopment: | N | | |
| Township: | 28 | Section: | 02 |
| Range: | R3 |
Location |
| Address: | 4360 TERRA BELLA LN CLINTON, WA 98236 | Mapsco: | |
| Neighborhood: | Cycle 4 | Map ID: | 680 |
| Neighborhood CD: | 4 |
Owner |
| Name: | KING, MARGARET | Owner ID: | 253518 |
| Mailing Address: | 4360 TERRA BELLA LN CLINTON, WA 98236 | % Ownership: | 100.0000000000% |
| | | Exemptions: | |
Taxes and Assessment Details
Values
| (+) Improvement Homesite Value: | + | $0 | |
| (+) Improvement Non-Homesite Value: | + | $413,738 | |
| (+) Land Homesite Value: | + | $0 | |
| (+) Land Non-Homesite Value: | + | $360,000 | |
| (+) Curr Use (HS): | + | $0 | $0 |
| (+) Curr Use (NHS): | + | $0 | $0 |
| | | -------------------------- | |
| (=) Market Value: | = | $773,738 | |
| (–) Productivity Loss: | – | $0 | |
| | | -------------------------- | |
| (=) Subtotal: | = | $773,738 | |
| (+) Senior Appraised Value: | + | $0 | |
| (+) Non-Senior Appraised Value: | + | $773,738 | |
| | | -------------------------- | |
| (=) Total Appraised Value: | = | $773,738 | |
| (–) Senior Exemption Loss: | – | $0 | |
| (–) Exemption Loss: | – | $0 | |
| | | -------------------------- | |
| (=) Taxable Value: | = | $773,738 | |
Taxing Jurisdiction
| Owner: | KING, MARGARET | | |
| % Ownership: | 100.0000000000% | | |
| Total Value: | $773,738 | | |
| Tax Area: | 712 - APPRAISER-S Whid Schl Dist, outside Langley, improved, greater than 1 acre |
| CF | Conservation Futures | 0.0316035091 | $773,738 | $773,738 | $24.45 | | |
| FIRE3 | Fire & Rescue Dist #3 S Whidbey GEN | 1.2004855531 | $773,738 | $773,738 | $928.86 | | |
| HOBOND | Hospital BOND | 0.1910887512 | $773,738 | $773,738 | $147.85 | | |
| HOGEN | Hospital GEN | 0.3902502903 | $773,738 | $773,738 | $301.95 | | |
| CE | County Current Expense | 0.3708482477 | $773,738 | $773,738 | $286.94 | | |
| CR | County Roads | 0.4584763726 | $773,738 | $773,738 | $354.74 | | |
| ISLANDEMS | Hospital GEN (EMS) | 0.5000000000 | $773,738 | $773,738 | $386.87 | | |
| LIB | Library Sno-Isle GEN | 0.3153421757 | $773,738 | $773,738 | $243.99 | | |
| PORTWHID | Port of S Whidbey GEN | 0.1094540357 | $773,738 | $773,738 | $84.69 | | |
| SCH206BOND | School 206 BOND | 0.3161759235 | $773,738 | $773,738 | $244.64 | | |
| SCH206MO | School 206 Enrichment | 0.4547169547 | $773,738 | $773,738 | $351.83 | | |
| ST | State School | 1.3035497053 | $773,738 | $773,738 | $1,008.61 | | |
| ST2 | State School Part 2 | 0.8169543533 | $773,738 | $773,738 | $632.11 | | |
| SWHIDPRBD | P & R S Whidbey BOND | 0.0152817568 | $773,738 | $773,738 | $11.82 | | |
| SWHIDPRBD2 | P & R S Whidbey BOND2 | 0.0138911264 | $773,738 | $773,738 | $10.75 | | |
| SWHIDPRMT | P & R S Whidbey GEN | 0.2053334452 | $773,738 | $773,738 | $158.87 | | |
| | Total Tax Rate: | 6.6934522006 | | | | | |
| | | | | Taxes w/Current Exemptions: | $5,178.97 | | |
| | | | | Taxes w/o Exemptions: | $5,178.97 | | |
Improvement / Building
| Improvement #1: | RESIDENTIAL | State Code: | Y | 2574.5 sqft | Value: | $413,738 |
| Bathrooms: | 2.5 | Bedrooms: | 2 | | Ceiling: | DRYWALL PAINTED | Exterior Wall/Cover: | SHINGLE | | Floor Covering: | HARDWOOD/CARP 60-40 | Floor Structure: | WOOD W/SUBFLOOR | | Foundation: | CONCRETE | Heating: | FHA GAS | | Interior Finish: | DRYWALL PAINT | Plumbing Fixture Cnt: | 9 | | Roof Slope: | 8" IN 12" | Roof Structure/Cover: | CJ ASPHALT |
|
| | Type | Description | Class CD | Sub Class CD | Year Built | Area |
| | BAS | BASE/MAIN FLOOR | 3 | 0 | 2000 | 1046.0 |
| | UPS | UPPER STORY | 3 | 0 | 2000 | 482.5 |
| | BAW | BALCONY WOOD RAIL | 3 | 0 | 2000 | 84.0 |
| | OWP | OPEN WOOD PORCH W/STEPS | 3 | 0 | 2000 | 384.0 |
| | OWR | OPEN WOOD PORCH W/STEPS/ROOF | 3 | 0 | 2000 | 168.0 |
| | LOF | LOFT | 3 | 0 | 2000 | 150.0 |
| | DWN | DOWNSTAIRS LIVING AREA | 3 | 0 | 2000 | 896.0 |
| | DGR | DETACHED GARAGE | 3 | 0 | 2000 | 1152.0 |
| | UTY | STORAGE/UTILITY | 3 | 0 | 2000 | 410.0 |
Sketch
| No sketches available for this property. |
Property Image
Land
| 1 | 32 | AC (03.01-09.99) | 5.0000 | 0.00 | 0.00 | 0.00 | 1.00 | $360,000 | $0 |
Roll Value History
| 2026 | N/A | N/A | N/A | N/A | N/A |
| 2025 | $413,738 | $360,000 | $0 | $773,738 | $773,738 |
| 2024 | $418,721 | $340,000 | $0 | $758,721 | $758,721 |
| 2023 | $423,691 | $330,000 | $0 | $753,691 | $753,691 |
| 2022 | $388,143 | $280,000 | $0 | $668,143 | $668,143 |
| 2021 | $341,425 | $230,000 | $0 | $571,425 | $571,425 |
| 2020 | $305,940 | $190,000 | $0 | $495,940 | $495,940 |
| 2019 | $242,059 | $220,000 | $0 | $462,059 | $462,059 |
| 2018 | $242,754 | $210,000 | $0 | $452,754 | $452,754 |
| 2017 | $244,087 | $165,000 | $0 | $409,087 | $409,087 |
| 2016 | $246,858 | $165,000 | $0 | $411,858 | $411,858 |
| 2015 | $249,631 | $150,000 | $0 | $399,631 | $399,631 |
| 2014 | $244,905 | $150,000 | $0 | $394,905 | $394,905 |
| 2013 | $247,334 | $200,000 | $0 | $447,334 | $447,334 |
| 2012 | $249,764 | $170,000 | $0 | $419,764 | $419,764 |
| 2011 | $252,192 | $170,000 | $0 | $422,192 | $422,192 |
| 2010 | $260,226 | $170,000 | $0 | $430,226 | $430,226 |
| 2009 | $269,997 | $220,000 | $0 | $489,997 | $489,997 |
| 2008 | $242,759 | $250,000 | $0 | $492,759 | $492,759 |
| 2007 | $243,147 | $210,000 | $0 | $453,147 | $453,147 |
Deed and Sales History
| 1 | 02/16/2011 | ESTSEPPROP | Establish Separate Property | KING, MARGARET | KING, MARGARET | | | $0.00 | 3670 | 4290988 |
| 2 | 02/11/2011 | WD | Warranty Deed | FEDERAL NATIONAL MORTGAGE ASSOCIATION | KING, MARGARET | | | $0.00 | 3669 | 4290987 |
| 3 | 12/06/2010 | TRUSTEED | Trustee's Deed | HEGGENES, JACOB M | FEDERAL NATIONAL MORTGAGE ASSOCIATION | | | $0.00 | 3084 | 4286591 |
| 4 | 01/07/2008 | WD | Warranty Deed | LIDRAL, ADAM M | HEGGENES, JACOB M | | | $515,000.00 | 80059 | 4219375 |
| 5 | 12/16/1999 | QCD | Quit Claim Deed | LIDRAL, ADAM M | LIDRAL, ADAM M | | | $0.00 | 95174 | 99028812 |
| 6 | 03/01/1994 | OTHER | Other - Misc. Documents | LIDRAL, LANCE | LIDRAL, ADAM M | | | $0.00 | 40801 | 0 |
| 7 | 06/01/1985 | REC | Real Estate Contract | SISSON, DARRELL | LIDRAL, LANCE | | | $16,500.00 | 51835 | 85007147 |
| 8 | 11/01/1983 | TRUSTEED | Trustee's Deed | REDFORD, CHARLES V | SISSON, DARRELL | | | $0.00 | 33430 | 417858 |
| 9 | 05/01/1979 | TRUSTEED | Trustee's Deed | LIDRAL, LANCE | REDFORD, CHARLES V | | | $0.00 | 92230 | 352188 |
| 10 | 01/01/1900 | OTHER | Other - Misc. Documents | Unknown | LIDRAL, LANCE | | | $0.00 | 0 | 0 |
Payout Agreement
| No payout information available.. |