Property
Account |
| Property ID: | 543068 | Abbreviated Legal Description: | TR A SP 80-67.32928.131-1821 & 131 1822 V1 SP P114 AF#390160 TGW & SUB EZ AF#89008415 |
| Geographic ID: | R32928-078-1500 | Agent Code: | |
| Type: | Real | | |
| Tax Area: | 712 - APPRAISER-S Whid Schl Dist, outside Langley, improved, greater than 1 acre | Land Use Code | 11 |
| Open Space: | N | DFL | N |
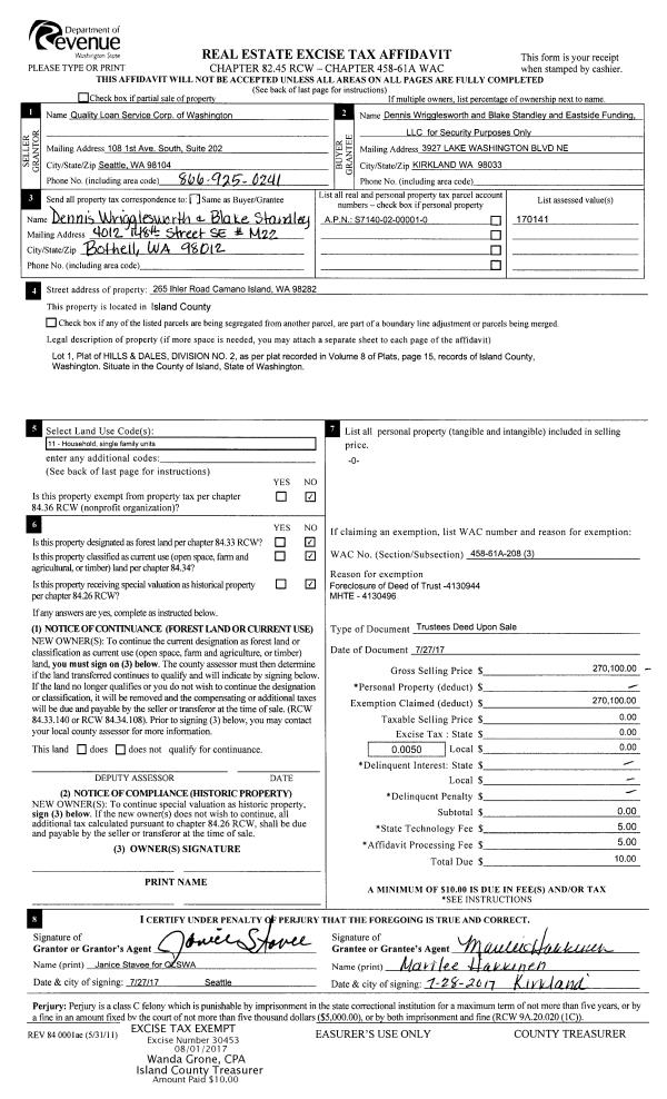
| Historic Property: | N | Remodel Property: | N |
| Multi-Family Redevelopment: | N | | |
| Township: | 29 | Section: | 28 |
| Range: | R3 |
Location |
| Address: | 3345 COYOTE TRAIL WAY CLINTON, WA 98236 | Mapsco: | |
| Neighborhood: | Cycle 4 | Map ID: | 824 |
| Neighborhood CD: | 4 |
Owner |
| Name: | SCHUCH, NATHAN | Owner ID: | 303588 |
| Mailing Address: | VERENA SCHUCH THOMAS SCHUCH PO BOX 1049 LANGLEY, WA 98260 | % Ownership: | 100.0000000000% |
| | | Exemptions: | |
Taxes and Assessment Details
Values
| (+) Improvement Homesite Value: | + | $0 | |
| (+) Improvement Non-Homesite Value: | + | $574,325 | |
| (+) Land Homesite Value: | + | $0 | |
| (+) Land Non-Homesite Value: | + | $310,000 | |
| (+) Curr Use (HS): | + | $0 | $0 |
| (+) Curr Use (NHS): | + | $0 | $0 |
| | | -------------------------- | |
| (=) Market Value: | = | $884,325 | |
| (–) Productivity Loss: | – | $0 | |
| | | -------------------------- | |
| (=) Subtotal: | = | $884,325 | |
| (+) Senior Appraised Value: | + | $0 | |
| (+) Non-Senior Appraised Value: | + | $884,325 | |
| | | -------------------------- | |
| (=) Total Appraised Value: | = | $884,325 | |
| (–) Senior Exemption Loss: | – | $0 | |
| (–) Exemption Loss: | – | $0 | |
| | | -------------------------- | |
| (=) Taxable Value: | = | $884,325 | |
Taxing Jurisdiction
| Owner: | SCHUCH, NATHAN | | |
| % Ownership: | 100.0000000000% | | |
| Total Value: | $884,325 | | |
| Tax Area: | 712 - APPRAISER-S Whid Schl Dist, outside Langley, improved, greater than 1 acre |
| CF | Conservation Futures | 0.0316035091 | $884,325 | $884,325 | $27.95 | | |
| FIRE3 | Fire & Rescue Dist #3 S Whidbey GEN | 1.2004855531 | $884,325 | $884,325 | $1,061.62 | | |
| HOBOND | Hospital BOND | 0.1910887512 | $884,325 | $884,325 | $168.98 | | |
| HOGEN | Hospital GEN | 0.3902502903 | $884,325 | $884,325 | $345.11 | | |
| CE | County Current Expense | 0.3708482477 | $884,325 | $884,325 | $327.95 | | |
| CR | County Roads | 0.4584763726 | $884,325 | $884,325 | $405.44 | | |
| ISLANDEMS | Hospital GEN (EMS) | 0.5000000000 | $884,325 | $884,325 | $442.16 | | |
| LIB | Library Sno-Isle GEN | 0.3153421757 | $884,325 | $884,325 | $278.86 | | |
| PORTWHID | Port of S Whidbey GEN | 0.1094540357 | $884,325 | $884,325 | $96.79 | | |
| SCH206BOND | School 206 BOND | 0.3161759235 | $884,325 | $884,325 | $279.60 | | |
| SCH206MO | School 206 Enrichment | 0.4547169547 | $884,325 | $884,325 | $402.12 | | |
| ST | State School | 1.3035497053 | $884,325 | $884,325 | $1,152.76 | | |
| ST2 | State School Part 2 | 0.8169543533 | $884,325 | $884,325 | $722.45 | | |
| SWHIDPRBD | P & R S Whidbey BOND | 0.0152817568 | $884,325 | $884,325 | $13.51 | | |
| SWHIDPRBD2 | P & R S Whidbey BOND2 | 0.0138911264 | $884,325 | $884,325 | $12.28 | | |
| SWHIDPRMT | P & R S Whidbey GEN | 0.2053334452 | $884,325 | $884,325 | $181.58 | | |
| | Total Tax Rate: | 6.6934522006 | | | | | |
| | | | | Taxes w/Current Exemptions: | $5,919.16 | | |
| | | | | Taxes w/o Exemptions: | $5,919.16 | | |
Improvement / Building
| Improvement #1: | RESIDENTIAL | State Code: | Y | 1903.0 sqft | Value: | $352,223 |
| Bathrooms: | 2 | Bedrooms: | 3 | | Ceiling: | DRYWALL PAINTED | Cooling: | HEAT PUMP/CONV/V | | Exterior Wall/Cover: | COMMON BRICK VENEER | Floor Covering: | CERAMIC TILE/HWD 40/60 | | Floor Structure: | WOOD W/SUBFLOOR | Foundation: | CONCRETE | | Interior Finish: | DRYWALL PAINT | Plumbing Fixture Cnt: | 10 | | Roof Slope: | 5" IN 12" | Roof Structure/Cover: | CJ ASPHALT |
|
| | Type | Description | Class CD | Sub Class CD | Year Built | Area |
| | BAS | BASE/MAIN FLOOR | 3 | 0 | 1954 | 1903.0 |
| | UB6 | BASEMENT UNFINISHED 6" | 3 | 0 | 1954 | 1874.0 |
| | OP2 | OPEN PORCH W/STEPS | 3 | 0 | 1954 | 168.0 |
| | OP3 | OPEN PORCH W/ROOF | 3 | 0 | 1954 | 422.0 |
| | DGR | DETACHED GARAGE | 3 | 0 | 1954 | 390.0 |
| Improvement #2: | RESIDENTIAL | State Code: | Y | 1000.3 sqft | Value: | $222,102 |
| Bathrooms: | 1 | Bedrooms: | 2 | | Ceiling: | DRYWALL PAINTED | Cooling: | HEAT PUMP/CONV/V | | Exterior Wall/Cover: | CEMENT FIBER | Floor Covering: | SOFTWOOD/VINYL 80-20 | | Floor Structure: | SLAB ON GRADE | Foundation: | SLAB | | Interior Finish: | DRYWALL PAINT | Plumbing Fixture Cnt: | 6 | | Roof Slope: | 4" IN 12" | Roof Structure/Cover: | CJ ALUMINIUM HEAVY |
|
| | Type | Description | Class CD | Sub Class CD | Year Built | Area |
| | BAS | BASE/MAIN FLOOR | 3 | 0 | 2018 | 1000.3 |
| | OWP | OPEN WOOD PORCH W/STEPS | 3 | 0 | 2018 | 225.8 |
| | UTY | STORAGE/UTILITY | 3 | 0 | 2018 | 180.0 |
| | OP4 | OPEN PORCH W/CEILING-ROOF | 3 | 0 | 2018 | 132.0 |
Sketch
Property Image
Land
| 1 | 18 | AC (02.01-03.00) | 0.0000 | 0.00 | 0.00 | 0.00 | 1.00 | $310,000 | $0 |
Roll Value History
| 2026 | N/A | N/A | N/A | N/A | N/A |
| 2025 | $574,325 | $310,000 | $0 | $884,325 | $884,325 |
| 2024 | $581,512 | $300,000 | $0 | $881,512 | $881,512 |
| 2023 | $588,704 | $290,000 | $0 | $878,704 | $878,704 |
| 2022 | $539,588 | $270,000 | $0 | $809,588 | $809,588 |
| 2021 | $475,329 | $175,000 | $0 | $650,329 | $650,329 |
| 2020 | $465,378 | $165,000 | $0 | $630,378 | $630,378 |
| 2019 | $347,622 | $200,000 | $0 | $547,622 | $547,622 |
| 2018 | $225,549 | $170,000 | $0 | $395,549 | $395,549 |
| 2017 | $218,762 | $150,000 | $0 | $368,762 | $368,762 |
| 2016 | $183,512 | $150,000 | $0 | $333,512 | $333,512 |
| 2015 | $186,641 | $95,000 | $0 | $281,641 | $281,641 |
| 2014 | $168,787 | $95,000 | $0 | $263,787 | $263,787 |
| 2013 | $172,140 | $119,000 | $0 | $291,140 | $291,140 |
| 2012 | $175,492 | $119,000 | $0 | $294,492 | $294,492 |
| 2011 | $178,845 | $140,000 | $0 | $318,845 | $318,845 |
| 2010 | $201,665 | $140,000 | $0 | $341,665 | $341,665 |
| 2009 | $125,714 | $83,809 | $0 | $209,523 | $209,523 |
| 2007 | $170,894 | $47,186 | $1,759 | $216,321 | $216,321 |
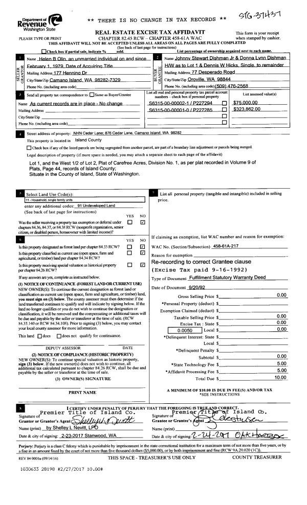
Deed and Sales History
| 1 | 03/29/2022 | QCD | Quit Claim Deed | SCHUCH, NATHAN | SCHUCH, NATHAN | | | $378,975.00 | 52497 | 4542386 |
| 2 | 05/24/2017 | EZ | Easement | SCHUCH, NATHAN | PUGET SOUND ENERGY | | | $0.00 | 37021 | 4456729 |
| 3 | 05/24/2017 | EZ | Easement | SCHUCH, NATHAN | SCHUCH, NATHAN | | | $1,500.00 | 29558 | 4423585 |
| 4 | 01/12/2017 | WD | Warranty Deed | GRAHAM, LARRY | SCHUCH, NATHAN | | | $370,000.00 | 27730 | 4415139 |
| 5 | 05/07/2016 | EZ | Easement | GRAHAM, LARRY | GRAHAM, LARRY | | | $10.00 | 24730 | 4401014 |
| 6 | 10/29/2009 | WD | Warranty Deed | MEAD, JOSEPH X | GRAHAM, LARRY | | | $325,000.00 | 92633 | 4262771 |
| 7 | 08/19/2009 | QCD | Quit Claim Deed | MEAD, JOSEPH X | MEAD, JOSEPH X | | | $0.00 | 91991 | 4259101 |
| 8 | 08/19/2009 | QCD | Quit Claim Deed | MEAD, JOSEPH X | MEAD, JOSEPH X | | | $0.00 | 91992 | 4259100 |
| 9 | 02/19/2009 | QCD | Quit Claim Deed | MEAD, CATHLEEN HANLEY | MEAD, JOSEPH X | | | $0.00 | 90408 | 4245401 |
| 10 | 08/06/2008 | QCD | Quit Claim Deed | Unknown | MEAD, CATHLEEN HANLEY | | | $0.00 | 82246 | 4235712 |
Payout Agreement
| No payout information available.. |