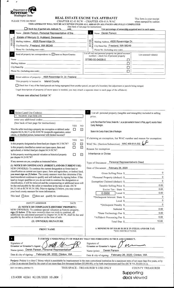
Property
Account |
| Property ID: | 544290 | Abbreviated Legal Description: | W/2 W/2 NE NW NE EX RD & R/ 0/W EX BG NW CR NE NW NE E300' SWLY TP 20'S TPB N TPB FR 494 3640 TGW SEPTIC & DRAIN SYSTEM ON 494-3720 TGW EZ AF#85001556 |
| Geographic ID: | R23024-494-3380 | Agent Code: | |
| Type: | Real | | |
| Tax Area: | 712 - APPRAISER-S Whid Schl Dist, outside Langley, improved, greater than 1 acre | Land Use Code | 11 |
| Open Space: | N | DFL | N |
| Historic Property: | N | Remodel Property: | N |
| Multi-Family Redevelopment: | N | | |
| Township: | 30 | Section: | 24 |
| Range: | R2 |
Location |
| Address: | 2260 ROSE RIDGE DR LANGLEY, WA 98260 | Mapsco: | |
| Neighborhood: | Cycle 3 | Map ID: | 411 |
| Neighborhood CD: | 3 |
Owner |
| Name: | HEGGENES, JOSHUA P | Owner ID: | 278469 |
| Mailing Address: | EMILY R HEGGENES 2260 ROSE RIDGE DR LANGLEY, WA 98260 | % Ownership: | 100.0000000000% |
| | | Exemptions: | |
Taxes and Assessment Details
Values
| (+) Improvement Homesite Value: | + | $0 | |
| (+) Improvement Non-Homesite Value: | + | $411,080 | |
| (+) Land Homesite Value: | + | $0 | |
| (+) Land Non-Homesite Value: | + | $310,000 | |
| (+) Curr Use (HS): | + | $0 | $0 |
| (+) Curr Use (NHS): | + | $0 | $0 |
| | | -------------------------- | |
| (=) Market Value: | = | $721,080 | |
| (–) Productivity Loss: | – | $0 | |
| | | -------------------------- | |
| (=) Subtotal: | = | $721,080 | |
| (+) Senior Appraised Value: | + | $0 | |
| (+) Non-Senior Appraised Value: | + | $721,080 | |
| | | -------------------------- | |
| (=) Total Appraised Value: | = | $721,080 | |
| (–) Senior Exemption Loss: | – | $0 | |
| (–) Exemption Loss: | – | $0 | |
| | | -------------------------- | |
| (=) Taxable Value: | = | $721,080 | |
Taxing Jurisdiction
| Owner: | HEGGENES, JOSHUA P | | |
| % Ownership: | 100.0000000000% | | |
| Total Value: | $721,080 | | |
| Tax Area: | 712 - APPRAISER-S Whid Schl Dist, outside Langley, improved, greater than 1 acre |
| CF | Conservation Futures | 0.0316035091 | $721,080 | $721,080 | $22.79 | | |
| FIRE3 | Fire & Rescue Dist #3 S Whidbey GEN | 1.2004855531 | $721,080 | $721,080 | $865.65 | | |
| HOBOND | Hospital BOND | 0.1910887512 | $721,080 | $721,080 | $137.79 | | |
| HOGEN | Hospital GEN | 0.3902502903 | $721,080 | $721,080 | $281.40 | | |
| CE | County Current Expense | 0.3708482477 | $721,080 | $721,080 | $267.41 | | |
| CR | County Roads | 0.4584763726 | $721,080 | $721,080 | $330.60 | | |
| ISLANDEMS | Hospital GEN (EMS) | 0.5000000000 | $721,080 | $721,080 | $360.54 | | |
| LIB | Library Sno-Isle GEN | 0.3153421757 | $721,080 | $721,080 | $227.39 | | |
| PORTWHID | Port of S Whidbey GEN | 0.1094540357 | $721,080 | $721,080 | $78.93 | | |
| SCH206BOND | School 206 BOND | 0.3161759235 | $721,080 | $721,080 | $227.99 | | |
| SCH206MO | School 206 Enrichment | 0.4547169547 | $721,080 | $721,080 | $327.89 | | |
| ST | State School | 1.3035497053 | $721,080 | $721,080 | $939.96 | | |
| ST2 | State School Part 2 | 0.8169543533 | $721,080 | $721,080 | $589.09 | | |
| SWHIDPRBD | P & R S Whidbey BOND | 0.0152817568 | $721,080 | $721,080 | $11.02 | | |
| SWHIDPRBD2 | P & R S Whidbey BOND2 | 0.0138911264 | $721,080 | $721,080 | $10.02 | | |
| SWHIDPRMT | P & R S Whidbey GEN | 0.2053334452 | $721,080 | $721,080 | $148.06 | | |
| | Total Tax Rate: | 6.6934522006 | | | | | |
| | | | | Taxes w/Current Exemptions: | $4,826.53 | | |
| | | | | Taxes w/o Exemptions: | $4,826.53 | | |
Improvement / Building
| Improvement #1: | RESIDENTIAL | State Code: | Y | 2914.4 sqft | Value: | $411,080 |
| Bathrooms: | 3 | Bedrooms: | 2 | | Ceiling: | DRYWALL PAINTED | Exterior Wall/Cover: | WOOD SIDING | | Floor Covering: | HARDWOOD/CARP 60-40 | Floor Structure: | SLAB ON GRADE | | Foundation: | SLAB | Heating: | BASEBOARD ELECTRIC | | Interior Finish: | DRYWALL PAINT | Plumbing Fixture Cnt: | 12 | | Roof Slope: | 8" IN 12" | Roof Structure/Cover: | CJ ALUMINIUM HEAVY |
|
| | Type | Description | Class CD | Sub Class CD | Year Built | Area |
| | BAS | BASE/MAIN FLOOR | 4 | 0 | 1985 | 1666.4 |
| | BIG | BUILT IN GARAGE | 4 | 0 | 1985 | 288.0 |
| | UPS | UPPER STORY | 4 | 0 | 1985 | 840.0 |
| | OWP | OPEN WOOD PORCH W/STEPS | 4 | 0 | 1985 | 208.0 |
| | OWP | OPEN WOOD PORCH W/STEPS | 4 | 0 | 1985 | 516.0 |
| | OWC | OPEN WOOD PORCH W/STEPS/ROOF/C | 4 | 0 | 1985 | 112.0 |
| | UPH | HALF STORY | 4 | 0 | 1985 | 288.0 |
| | LOF | LOFT | 4 | 0 | 1985 | 120.0 |
| | UTY | STORAGE/UTILITY | 4 | 0 | 1985 | 212.0 |
Sketch
Property Image
Land
| 1 | 18 | AC (02.01-03.00) | 0.0000 | 0.00 | 0.00 | 0.00 | 1.00 | $310,000 | $0 |
Roll Value History
| 2026 | N/A | N/A | N/A | N/A | N/A |
| 2025 | $411,080 | $310,000 | $0 | $721,080 | $721,080 |
| 2024 | $425,205 | $290,000 | $0 | $715,205 | $715,205 |
| 2023 | $430,781 | $330,000 | $0 | $760,781 | $760,781 |
| 2022 | $395,117 | $270,000 | $0 | $665,117 | $665,117 |
| 2021 | $347,966 | $190,000 | $0 | $537,966 | $537,966 |
| 2020 | $339,891 | $165,000 | $0 | $504,891 | $504,891 |
| 2019 | $257,239 | $200,000 | $0 | $457,239 | $457,239 |
| 2018 | $258,053 | $170,000 | $0 | $428,053 | $428,053 |
| 2017 | $259,674 | $150,000 | $0 | $409,674 | $409,674 |
| 2016 | $262,921 | $125,000 | $0 | $387,921 | $387,921 |
| 2015 | $213,509 | $100,000 | $0 | $313,509 | $313,509 |
| 2014 | $216,236 | $85,000 | $0 | $301,236 | $301,236 |
| 2013 | $223,460 | $95,000 | $0 | $318,460 | $318,460 |
| 2012 | $226,344 | $103,275 | $0 | $329,619 | $329,619 |
| 2011 | $229,227 | $121,500 | $0 | $350,727 | $350,727 |
| 2010 | $234,726 | $135,000 | $0 | $369,726 | $369,726 |
| 2009 | $244,721 | $155,000 | $0 | $399,721 | $399,721 |
| 2008 | $247,758 | $120,000 | $0 | $367,758 | $367,758 |
| 2007 | $210,317 | $120,000 | $0 | $330,317 | $330,317 |
Deed and Sales History
| 1 | 02/07/2017 | WD | Warranty Deed | ALLEN, JASON D | HEGGENES, JOSHUA P | | | $420,000.00 | 28012 | 4416714 |
| 2 | 06/16/2015 | WD | Warranty Deed | ROSE, FRANCIS I | ALLEN, JASON D | | | $384,500.00 | 20320 | 4381486 |
| 3 | 05/20/1998 | QCD | Quit Claim Deed | ROSE, FRANCIS I | ROSE, FRANCIS I | | | $0.00 | 81903 | 98010056 |
| 4 | 03/01/1983 | EZ | Easement | ROSE, FRANCIS I | ROSE, FRANCIS I | | | $0.00 | 60680 | 407271 |
| 5 | 01/01/1982 | CD | DNU - Correction Deed | ROSE, FRANCIS I | ROSE, FRANCIS I | | | $1.00 | 20136 | 392245 |
| 6 | 02/01/1978 | TRUSTEED | Trustee's Deed | Unknown | ROSE, FRANCIS I | | | $35,000.00 | 95560 | 362022 |
Payout Agreement
| No payout information available.. |