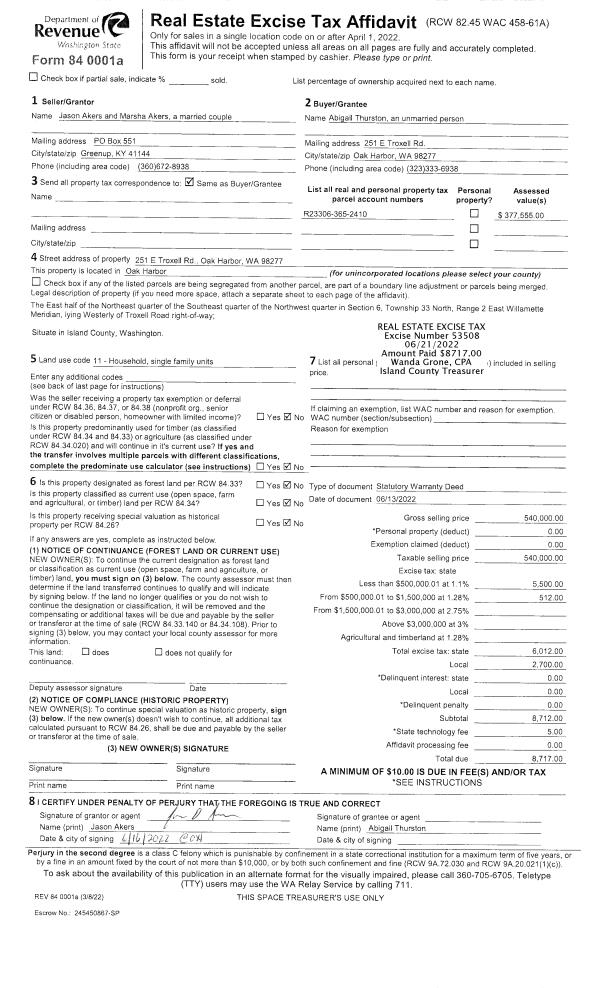
Property
Account |
| Property ID: | 544637 | Abbreviated Legal Description: | LOT 14-B SP 80-11 33130 423 0730 (L14 B2 COUNTRY CLUB EST #1 V4 SUR P88&89 AF#308040 EX N163.20' EZ) |
| Geographic ID: | R33130-409-0710 | Agent Code: | |
| Type: | Real | | |
| Tax Area: | 512 - APPRAISER-Stan/Cam Schl Dist, improved, greater than 1 acre | Land Use Code | 11 |
| Open Space: | N | DFL | N |
| Historic Property: | N | Remodel Property: | N |
| Multi-Family Redevelopment: | N | | |
| Township: | 31 | Section: | 30 |
| Range: | R3 |
Location |
| Address: | 1696 BONNIE LN CAMANO ISLAND, WA 98282 | Mapsco: | |
| Neighborhood: | Cycle 5 | Map ID: | 938 |
| Neighborhood CD: | 5 |
Owner |
| Name: | ST. CLAIR, MICHAEL A | Owner ID: | 295216 |
| Mailing Address: | KYMBERLY M ST. CLAIR 1696 BONNIE LN CAMANO ISLAND, WA 98282 | % Ownership: | 100.0000000000% |
| | | Exemptions: | |
Taxes and Assessment Details
Values
| (+) Improvement Homesite Value: | + | $0 | |
| (+) Improvement Non-Homesite Value: | + | $158,750 | |
| (+) Land Homesite Value: | + | $0 | |
| (+) Land Non-Homesite Value: | + | $300,000 | |
| (+) Curr Use (HS): | + | $0 | $0 |
| (+) Curr Use (NHS): | + | $0 | $0 |
| | | -------------------------- | |
| (=) Market Value: | = | $458,750 | |
| (–) Productivity Loss: | – | $0 | |
| | | -------------------------- | |
| (=) Subtotal: | = | $458,750 | |
| (+) Senior Appraised Value: | + | $0 | |
| (+) Non-Senior Appraised Value: | + | $458,750 | |
| | | -------------------------- | |
| (=) Total Appraised Value: | = | $458,750 | |
| (–) Senior Exemption Loss: | – | $0 | |
| (–) Exemption Loss: | – | $0 | |
| | | -------------------------- | |
| (=) Taxable Value: | = | $458,750 | |
Taxing Jurisdiction
| Owner: | ST. CLAIR, MICHAEL A | | |
| % Ownership: | 100.0000000000% | | |
| Total Value: | $458,750 | | |
| Tax Area: | 512 - APPRAISER-Stan/Cam Schl Dist, improved, greater than 1 acre |
| CF | Conservation Futures | 0.0316035091 | $458,750 | $458,750 | $14.50 | | |
| EMS1 | Fire & Rescue Dist #1 Camano GEN (EMS) | 0.3677864386 | $458,750 | $458,750 | $168.72 | | |
| FIRE1 | Fire & Rescue Dist #1 Camano GEN | 1.2502910536 | $458,750 | $458,750 | $573.57 | | |
| FIRE1BOND | Fire & Rescue Dist #1 Camano BOND | 0.1570001679 | $458,750 | $458,750 | $72.02 | | |
| CE | County Current Expense | 0.3708482477 | $458,750 | $458,750 | $170.13 | | |
| CR | County Roads | 0.4584763726 | $458,750 | $458,750 | $210.33 | | |
| LCIB | Library Sno-Isle BOND (Camano Island) | 0.0396325772 | $458,750 | $458,750 | $18.18 | | |
| LIB | Library Sno-Isle GEN | 0.3153421757 | $458,750 | $458,750 | $144.66 | | |
| SCH205_401 | School 205-401 Enrichment | 1.2698420524 | $458,750 | $458,750 | $582.54 | | |
| SCH205BOND | School 205-401 BOND | 0.9396497583 | $458,750 | $458,750 | $431.06 | | |
| ST | State School | 1.3035497053 | $458,750 | $458,750 | $598.00 | | |
| ST2 | State School Part 2 | 0.8169543533 | $458,750 | $458,750 | $374.78 | | |
| | Total Tax Rate: | 7.3209764117 | | | | | |
| | | | | Taxes w/Current Exemptions: | $3,358.49 | | |
| | | | | Taxes w/o Exemptions: | $3,358.49 | | |
Improvement / Building
| Improvement #1: | MANUFACTURED HOME | State Code: | Y | 1580.0 sqft | Value: | $158,750 |
| Bathrooms: | 2 | Bedrooms: | 3 | | Ceiling: | PLASTER PAINTED | Cooling: | EVAP NO DUCT | | Exterior Wall/Cover: | VINYL | Floor Covering: | CARPET 100% | | Floor Structure: | SLAB ON GRADE | Foundation: | SLAB | | Heating: | FHA ELECTRIC | Interior Finish: | PLASTER | | Plumbing Fixture Cnt: | 1 | Roof Slope: | FLAT | | Roof Structure/Cover: | CJ ALUMINIUM HEAVY |   |   |
|
| | Type | Description | Class CD | Sub Class CD | Year Built | Area |
| | BAS | BASE/MAIN FLOOR | 4 | 0 | 1990 | 1580.0 |
| | OP1 | OPEN PORCH SLAB | 4 | 0 | 1990 | 144.0 |
| | CPD | OPEN CARPORT DIRT FLOOR | 4 | 0 | 1990 | 270.0 |
| | DGR | DETACHED GARAGE | 4 | 0 | 1990 | 840.0 |
| | OCP | OPEN CARPORT | 4 | 0 | 1990 | 182.0 |
| | UTY | STORAGE/UTILITY | 4 | 0 | 1990 | 120.0 |
Sketch
Property Image
Land
| 1 | 18 | AC (02.01-03.00) | 0.0000 | 0.00 | 0.00 | 0.00 | 1.00 | $300,000 | $0 |
Roll Value History
| 2026 | N/A | N/A | N/A | N/A | N/A |
| 2025 | $158,750 | $300,000 | $0 | $458,750 | $458,750 |
| 2024 | $163,419 | $280,000 | $0 | $443,419 | $443,419 |
| 2023 | $146,157 | $270,000 | $0 | $416,157 | $416,157 |
| 2022 | $134,191 | $260,000 | $0 | $394,191 | $394,191 |
| 2021 | $95,891 | $180,000 | $0 | $275,891 | $275,891 |
| 2020 | $95,827 | $150,000 | $0 | $245,827 | $245,827 |
| 2019 | $77,646 | $200,000 | $0 | $277,646 | $277,646 |
| 2018 | $78,723 | $150,000 | $0 | $228,723 | $228,723 |
| 2017 | $80,880 | $135,000 | $0 | $215,880 | $215,880 |
| 2016 | $83,036 | $100,000 | $0 | $183,036 | $183,036 |
| 2015 | $89,404 | $83,200 | $0 | $172,604 | $172,604 |
| 2014 | $90,841 | $83,200 | $0 | $174,041 | $174,041 |
| 2013 | $92,279 | $83,200 | $0 | $175,479 | $175,479 |
| 2012 | $93,717 | $83,200 | $0 | $176,917 | $176,917 |
| 2011 | $94,435 | $104,000 | $0 | $198,435 | $198,435 |
| 2010 | $90,076 | $104,000 | $0 | $194,076 | $194,076 |
| 2009 | $98,569 | $130,000 | $0 | $228,569 | $228,569 |
| 2008 | $100,828 | $130,000 | $0 | $230,828 | $230,828 |
| 2007 | $103,814 | $130,000 | $0 | $233,814 | $233,814 |
Deed and Sales History
| 1 | 03/05/2020 | QCD | Quit Claim Deed | ST CLAIR, MICHAEL A | ST. CLAIR, MICHAEL A | | | $0.00 | 43831 | 4491437 |
| 2 | 02/26/2018 | WD | Warranty Deed | BRUNSDON, PAUL W | ST CLAIR, MICHAEL A | | | $88,000.00 | 33107 | 4439958 |
| 3 | 11/05/2012 | WD | Warranty Deed | ST CLAIR, MICHAEL A | BRUNSDON, PAUL W | | | $74,000.00 | 9413 | 4326911 |
| 4 | 10/01/1990 | OTHER | Other - Misc. Documents | GARRISON, COMPANY | ST, CLAIR, M | | | $35,750.00 | 11111111 | 0 |
| 5 | 09/01/1988 | QCD | Quit Claim Deed | ST, CLAIR, M | GARRISON, COMPANY | | | $10,500.00 | 82957 | 88011043 |
| 6 | 08/01/1988 | QCD | Quit Claim Deed | ROHWER, ROBERT W | HAVENS, CAROL L | | | $0.00 | 82956 | 88011042 |
| 7 | 08/01/1988 | WD | Warranty Deed | HAVENS, CAROL L | ST, CLAIR, M | | | $13,995.00 | 82958 | 88011044 |
| 8 | 05/01/1985 | WD | Warranty Deed | WICKSTROM, DANIEL L | ROHWER, ROBERT W | | | $15,000.00 | 51452 | 85005903 |
| 9 | 03/01/1982 | CD | DNU - Correction Deed | ZONNEVELD, CORNELIS J | ZONNEVELD, CORNELIS J | | | $1.00 | 20602 | 394129 |
| 10 | 03/01/1982 | TRUSTEED | Trustee's Deed | ZONNEVELD, CORNELIS J | WICKSTROM, DANIEL L | | | $14,000.00 | 20604 | 394131 |
| 11 | 06/01/1978 | OTHER | Other - Misc. Documents | Unknown | ZONNEVELD, CORNELIS J | | | $13,950.00 | 82890 | 334815 |
Payout Agreement
| No payout information available.. |