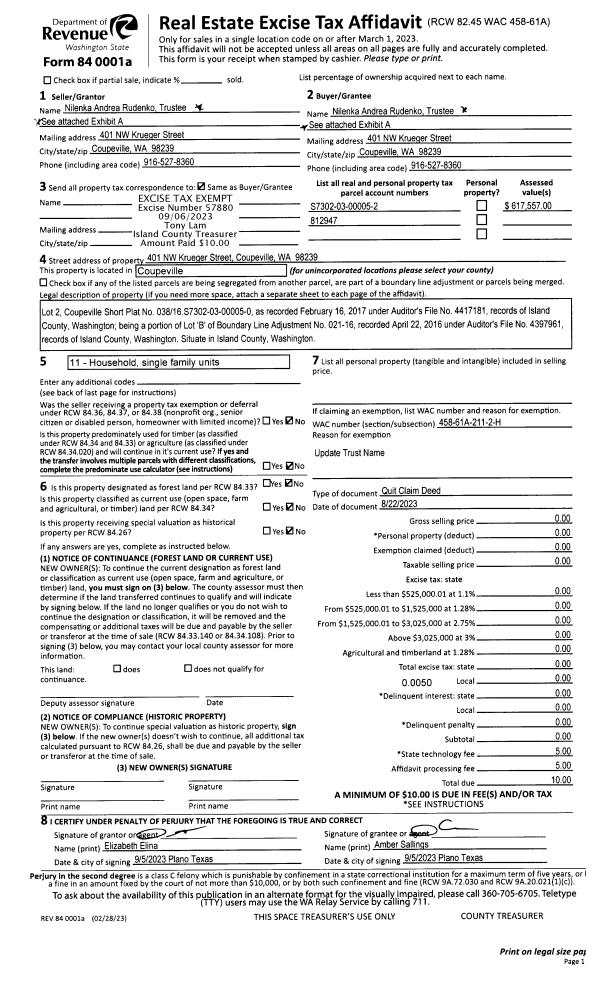
Property
Account |
| Property ID: | 544708 | Abbreviated Legal Description: | W330' SW SE EX RD FR 053 3200 2/5/82 |
| Geographic ID: | R23321-066-2800 | Agent Code: | |
| Type: | Real | | |
| Tax Area: | 112 - APPRAISER-OH Schl Dist, outside OH, improved, greater than 1 acre | Land Use Code | 83 |
| Open Space: | Y | DFL | N |
| Historic Property: | N | Remodel Property: | N |
| Multi-Family Redevelopment: | N | | |
| Township: | 33 | Section: | 21 |
| Range: | R2 |
Location |
| Address: | 1010 DEVRIES RD OAK HARBOR, WA 98277 | Mapsco: | |
| Neighborhood: | Cycle 6 | Map ID: | 617 |
| Neighborhood CD: | 6 |
Owner |
| Name: | CHRISTENSEN, ARLISS | Owner ID: | 27588 |
| Mailing Address: | 1010 DEVRIES RD OAK HARBOR, WA 98277-9028 | % Ownership: | 100.0000000000% |
| | | Exemptions: | |
Taxes and Assessment Details
Values
| (+) Improvement Homesite Value: | + | $0 | |
| (+) Improvement Non-Homesite Value: | + | $405,896 | |
| (+) Land Homesite Value: | + | $0 | |
| (+) Land Non-Homesite Value: | + | $0 | |
| (+) Curr Use (HS): | + | $0 | $0 |
| (+) Curr Use (NHS): | + | $340,000 | $2,429 |
| | | -------------------------- | |
| (=) Market Value: | = | $745,896 | |
| (–) Productivity Loss: | – | $337,571 | |
| | | -------------------------- | |
| (=) Subtotal: | = | $408,325 | |
| (+) Senior Appraised Value: | + | $0 | |
| (+) Non-Senior Appraised Value: | + | $408,325 | |
| | | -------------------------- | |
| (=) Total Appraised Value: | = | $408,325 | |
| (–) Senior Exemption Loss: | – | $0 | |
| (–) Exemption Loss: | – | $0 | |
| | | -------------------------- | |
| (=) Taxable Value: | = | $408,325 | |
Taxing Jurisdiction
| Owner: | CHRISTENSEN, ARLISS | | |
| % Ownership: | 100.0000000000% | | |
| Total Value: | $745,896 | | |
| Tax Area: | 112 - APPRAISER-OH Schl Dist, outside OH, improved, greater than 1 acre |
| CF | Conservation Futures | 0.0316035091 | $408,325 | $408,325 | $12.90 | | |
| CEM1 | Cemetery #1 | 0.0040320932 | $408,325 | $408,325 | $1.65 | | |
| FIRE2 | Fire & Rescue Dist #2 N Whidbey GEN | 0.5475949600 | $408,325 | $408,325 | $223.60 | | |
| HOBOND | Hospital BOND | 0.1910887512 | $408,325 | $408,325 | $78.03 | | |
| HOGEN | Hospital GEN | 0.3902502903 | $408,325 | $408,325 | $159.35 | | |
| CE | County Current Expense | 0.3708482477 | $408,325 | $408,325 | $151.43 | | |
| CR | County Roads | 0.4584763726 | $408,325 | $408,325 | $187.21 | | |
| ISLANDEMS | Hospital GEN (EMS) | 0.5000000000 | $408,325 | $408,325 | $204.16 | | |
| LIB | Library Sno-Isle GEN | 0.3153421757 | $408,325 | $408,325 | $128.76 | | |
| NWHIDPRMT | P & R N Whidbey GEN | 0.2004466701 | $408,325 | $408,325 | $81.85 | | |
| SCH201MO | School 201 Enrichment | 1.8559231640 | $408,325 | $408,325 | $757.82 | | |
| ST | State School | 1.3035497053 | $408,325 | $408,325 | $532.27 | | |
| ST2 | State School Part 2 | 0.8169543533 | $408,325 | $408,325 | $333.58 | | |
| | Total Tax Rate: | 6.9861102925 | | | | | |
| | | | | Taxes w/Current Exemptions: | $2,852.61 | | |
| | | | | Taxes w/o Exemptions: | $2,852.61 | | |
Improvement / Building
| Improvement #1: | RESIDENTIAL | State Code: | Y | 2223.0 sqft | Value: | $405,896 |
| Bathrooms: | 2.5 | Bedrooms: | 3 | | Ceiling: | DRYWALL PAINTED | Exterior Wall/Cover: | WOOD SIDING | | Floor Covering: | CARPET/VINYL 80-20 | Floor Structure: | WOOD W/SUBFLOOR | | Foundation: | CONCRETE | Heating: | FHA ELECTRIC | | Interior Finish: | DRYWALL PAINT | Plumbing Fixture Cnt: | 12 | | Roof Slope: | 4" IN 12" | Roof Structure/Cover: | CJ ALUMINIUM HEAVY |
|
| | Type | Description | Class CD | Sub Class CD | Year Built | Area |
| | BAS | BASE/MAIN FLOOR | 3 | 0 | 1981 | 2223.0 |
| | OP4 | OPEN PORCH W/CEILING-ROOF | 3 | 0 | 1981 | 49.0 |
| | AGR | ATTACHED GARAGE | 3 | 0 | 1981 | 624.0 |
| | CPD | OPEN CARPORT DIRT FLOOR | 3 | 0 | 1981 | 2448.0 |
| | CPD | OPEN CARPORT DIRT FLOOR | 3 | 0 | 1981 | 3600.0 |
| | UTY | STORAGE/UTILITY | 3 | 0 | 1981 | 720.0 |
Sketch
Property Image
Land
| 1 | 35 | AC (10.00-30.99) | 10.0000 | 435600.00 | 0.00 | 0.00 | 1.00 | $340,000 | $2,429 |
Roll Value History
| 2026 | N/A | N/A | N/A | N/A | N/A |
| 2025 | $405,896 | $340,000 | $2,429 | $408,325 | $408,325 |
| 2024 | $411,675 | $300,000 | $2,429 | $414,104 | $414,104 |
| 2023 | $417,453 | $280,000 | $2,429 | $419,882 | $419,882 |
| 2022 | $356,453 | $270,000 | $2,429 | $358,882 | $358,882 |
| 2021 | $314,354 | $210,000 | $2,429 | $316,783 | $316,783 |
| 2020 | $307,129 | $200,000 | $2,429 | $309,558 | $309,558 |
| 2019 | $235,799 | $250,000 | $2,429 | $238,228 | $238,228 |
| 2018 | $236,602 | $220,000 | $2,429 | $239,031 | $239,031 |
| 2017 | $238,213 | $200,000 | $2,429 | $240,642 | $240,642 |
| 2016 | $248,405 | $170,000 | $2,429 | $250,834 | $250,834 |
| 2015 | $251,142 | $155,000 | $2,429 | $253,571 | $253,571 |
| 2014 | $253,880 | $170,000 | $2,429 | $256,309 | $256,309 |
| 2013 | $256,616 | $170,000 | $2,429 | $259,045 | $259,045 |
| 2012 | $259,354 | $85,000 | $2,429 | $261,783 | $261,783 |
| 2011 | $262,090 | $100,000 | $2,561 | $264,651 | $264,651 |
| 2010 | $253,231 | $100,000 | $2,561 | $255,792 | $255,792 |
| 2009 | $143,627 | $124,910 | $2,561 | $265,975 | $265,975 |
| 2008 | $165,700 | $104,119 | $2,561 | $267,258 | $267,258 |
| 2007 | $181,779 | $92,094 | $2,561 | $271,312 | $271,312 |
Deed and Sales History
| 1 | 10/01/1980 | WD | Warranty Deed | CHRISTENSEN, ARLISS | CHRISTENSEN, ARLISS | | | $0.00 | 59371 | 375898 |
| 2 | 12/01/1978 | OTHER | Other - Misc. Documents | Unknown | CHRISTENSEN, ARLISS | | | $65,000.00 | 86267 | 345231 |
Payout Agreement
| No payout information available.. |