Property
Account |
| Property ID: | 544735 | Abbreviated Legal Description: | NW NW EX S50'; EX W415'OF N 264'; EX N30'; EX E290'LY S OF N523.944'; EX W 15'S OF N264'; EX BG SW CR NW NW N 50'E15'TPB E492.97'N406.26' W92.40'N75*W417.04'S532.11' TPB FR 412 0620 |
| Geographic ID: | R33227-415-0630 | Agent Code: | |
| Type: | Real | | |
| Tax Area: | 519 - APPRAISER-Stan/Cam Schl Dist, vacant & 50 acres or less | Land Use Code | 91 |
| Open Space: | N | DFL | N |
| Historic Property: | N | Remodel Property: | N |
| Multi-Family Redevelopment: | N | | |
| Township: | 32 | Section: | 27 |
| Range: | R3 |
Location |
| Address: | | Mapsco: | |
| Neighborhood: | Cycle 5 | Map ID: | 978 |
| Neighborhood CD: | 5 |
Owner |
| Name: | DEBOER, JOHN P | Owner ID: | 61323 |
| Mailing Address: | KAIA A DEBOER 1051 JUNIPER BEACH RD CAMANO ISLAND, WA 98282-8851 | % Ownership: | 100.0000000000% |
| | | Exemptions: | |
Taxes and Assessment Details
Values
| (+) Improvement Homesite Value: | + | $0 | |
| (+) Improvement Non-Homesite Value: | + | $0 | |
| (+) Land Homesite Value: | + | $0 | |
| (+) Land Non-Homesite Value: | + | $290,000 | |
| (+) Curr Use (HS): | + | $0 | $0 |
| (+) Curr Use (NHS): | + | $0 | $0 |
| | | -------------------------- | |
| (=) Market Value: | = | $290,000 | |
| (–) Productivity Loss: | – | $0 | |
| | | -------------------------- | |
| (=) Subtotal: | = | $290,000 | |
| (+) Senior Appraised Value: | + | $0 | |
| (+) Non-Senior Appraised Value: | + | $290,000 | |
| | | -------------------------- | |
| (=) Total Appraised Value: | = | $290,000 | |
| (–) Senior Exemption Loss: | – | $0 | |
| (–) Exemption Loss: | – | $0 | |
| | | -------------------------- | |
| (=) Taxable Value: | = | $290,000 | |
Taxing Jurisdiction
| Owner: | DEBOER, JOHN P | | |
| % Ownership: | 100.0000000000% | | |
| Total Value: | $290,000 | | |
| Tax Area: | 519 - APPRAISER-Stan/Cam Schl Dist, vacant & 50 acres or less |
| CF | Conservation Futures | 0.0316035091 | $290,000 | $290,000 | $9.17 | | |
| EMS1 | Fire & Rescue Dist #1 Camano GEN (EMS) | 0.3677864386 | $290,000 | $290,000 | $106.66 | | |
| CE | County Current Expense | 0.3708482477 | $290,000 | $290,000 | $107.55 | | |
| CR | County Roads | 0.4584763726 | $290,000 | $290,000 | $132.96 | | |
| LCIB | Library Sno-Isle BOND (Camano Island) | 0.0396325772 | $290,000 | $290,000 | $11.49 | | |
| LIB | Library Sno-Isle GEN | 0.3153421757 | $290,000 | $290,000 | $91.45 | | |
| SCH205_401 | School 205-401 Enrichment | 1.2698420524 | $290,000 | $290,000 | $368.25 | | |
| SCH205BOND | School 205-401 BOND | 0.9396497583 | $290,000 | $290,000 | $272.50 | | |
| ST | State School | 1.3035497053 | $290,000 | $290,000 | $378.03 | | |
| ST2 | State School Part 2 | 0.8169543533 | $290,000 | $290,000 | $236.92 | | |
| | Total Tax Rate: | 5.9136851902 | | | | | |
| | | | | Taxes w/Current Exemptions: | $1,714.98 | | |
| | | | | Taxes w/o Exemptions: | $1,714.98 | | |
Improvement / Building
Sketch
| No sketches available for this property. |
Property Image
Land
| 1 | 35 | AC (10.00-30.99) | 25.0700 | 1092049.20 | 0.00 | 0.00 | 1.00 | $290,000 | $0 |
Roll Value History
| 2026 | N/A | N/A | N/A | N/A | N/A |
| 2025 | $0 | $290,000 | $0 | $290,000 | $290,000 |
| 2024 | $0 | $270,000 | $0 | $270,000 | $270,000 |
| 2023 | $0 | $340,000 | $0 | $340,000 | $340,000 |
| 2022 | $0 | $340,000 | $0 | $340,000 | $340,000 |
| 2021 | $0 | $320,000 | $0 | $320,000 | $320,000 |
| 2020 | $0 | $300,000 | $0 | $300,000 | $300,000 |
| 2019 | $0 | $300,000 | $0 | $300,000 | $300,000 |
| 2018 | $0 | $300,000 | $0 | $300,000 | $300,000 |
| 2017 | $0 | $300,000 | $0 | $300,000 | $300,000 |
| 2016 | $0 | $300,840 | $0 | $300,840 | $300,840 |
| 2015 | $0 | $300,840 | $0 | $300,840 | $300,840 |
| 2014 | $0 | $300,840 | $0 | $300,840 | $300,840 |
| 2013 | $0 | $300,840 | $0 | $300,840 | $300,840 |
| 2012 | $0 | $300,840 | $0 | $300,840 | $300,840 |
| 2011 | $0 | $300,840 | $0 | $300,840 | $300,840 |
| 2010 | $0 | $300,840 | $0 | $300,840 | $300,840 |
| 2009 | $0 | $376,050 | $0 | $376,050 | $376,050 |
| 2008 | $0 | $500,000 | $0 | $500,000 | $500,000 |
| 2007 | $0 | $475,000 | $0 | $475,000 | $475,000 |
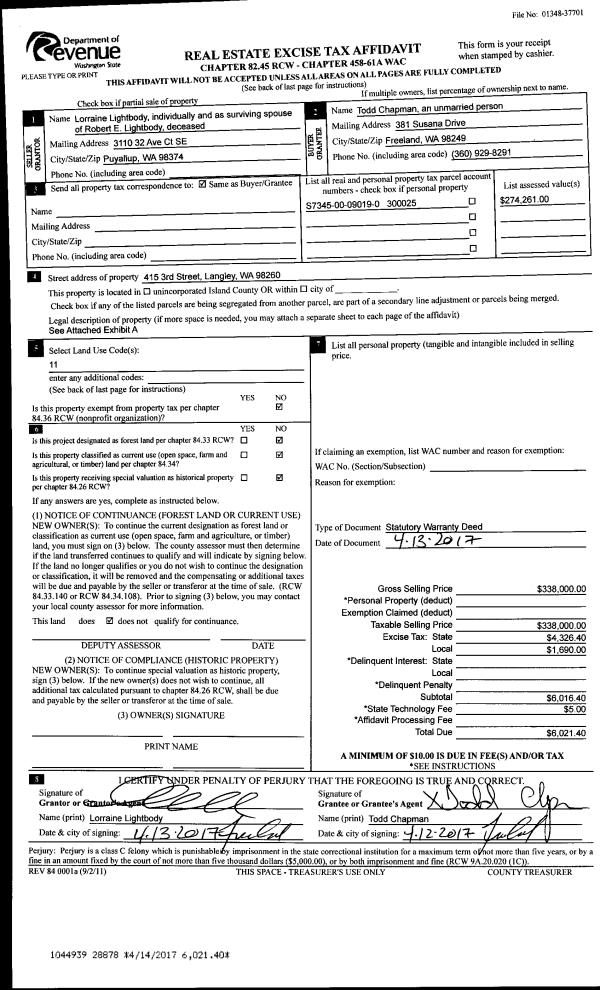
Deed and Sales History
| 1 | 06/09/2020 | WD | Warranty Deed | CLOSE, C LOUISE R | DEBOER, JOHN P | | | $325,000.00 | 43328 | 4488640 |
| 2 | 04/27/2017 | QCD | Quit Claim Deed | CLOSE, ROD | CLOSE, C LOUISE R | | | $0.00 | 29039 | 4421462 |
| 3 | 10/17/2014 | EZ | Easement | CLOSE, ROD | CLOSE, ROD | | | $3,972.00 | 17568 | 4368617 |
| 4 | 04/01/1995 | QCD | Quit Claim Deed | CLOSE, ROD | CLOSE, ROD | | | $0.00 | 51473 | 95006869 |
| 5 | 09/01/1986 | WD | Warranty Deed | HERSHAW, WILLIAM C | CLOSE, ROD | | | $65,500.00 | 62888 | 86013066 |
| 6 | 02/01/1982 | OTHER | Other - Misc. Documents | Unknown | HERSHAW, WILLIAM C | | | $1.00 | 20257 | 392758 |
Payout Agreement
| No payout information available.. |