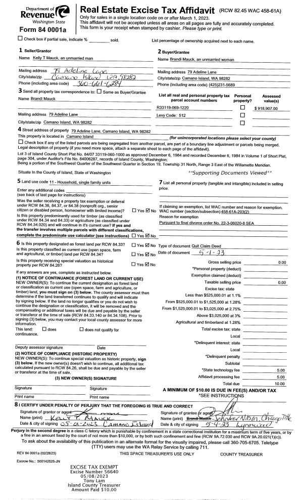
Property
Account |
| Property ID: | 545592 | Abbreviated Legal Description: | TR 1 SP 82-01.33217.358-2000 V1 SP P129 AF#394154 W/2 SW SE SW EX RD SC RECOMBINED 7-18-94 |
| Geographic ID: | R33217-037-1510 | Agent Code: | |
| Type: | Real | | |
| Tax Area: | 512 - APPRAISER-Stan/Cam Schl Dist, improved, greater than 1 acre | Land Use Code | 11 |
| Open Space: | N | DFL | N |
| Historic Property: | N | Remodel Property: | N |
| Multi-Family Redevelopment: | N | | |
| Township: | 32 | Section: | 17 |
| Range: | R3 |
Location |
| Address: | 1214 ROLFSON RD CAMANO ISLAND, WA 98282 | Mapsco: | |
| Neighborhood: | North Camano | Map ID: | 953 |
| Neighborhood CD: | 06-C |
Owner |
| Name: | SCOTT JTWROS, DONAL E | Owner ID: | 289660 |
| Mailing Address: | RHONDA TABOR GUILFORD 1214 ROLFSON RD CAMANO ISLAND, WA 98282 | % Ownership: | 100.0000000000% |
| | | Exemptions: | |
Taxes and Assessment Details
Values
| (+) Improvement Homesite Value: | + | $0 | |
| (+) Improvement Non-Homesite Value: | + | $139,590 | |
| (+) Land Homesite Value: | + | $0 | |
| (+) Land Non-Homesite Value: | + | $330,000 | |
| (+) Curr Use (HS): | + | $0 | $0 |
| (+) Curr Use (NHS): | + | $0 | $0 |
| | | -------------------------- | |
| (=) Market Value: | = | $469,590 | |
| (–) Productivity Loss: | – | $0 | |
| | | -------------------------- | |
| (=) Subtotal: | = | $469,590 | |
| (+) Senior Appraised Value: | + | $0 | |
| (+) Non-Senior Appraised Value: | + | $469,590 | |
| | | -------------------------- | |
| (=) Total Appraised Value: | = | $469,590 | |
| (–) Senior Exemption Loss: | – | $0 | |
| (–) Exemption Loss: | – | $0 | |
| | | -------------------------- | |
| (=) Taxable Value: | = | $469,590 | |
Taxing Jurisdiction
| Owner: | SCOTT JTWROS, DONAL E | | |
| % Ownership: | 100.0000000000% | | |
| Total Value: | $469,590 | | |
| Tax Area: | 512 - APPRAISER-Stan/Cam Schl Dist, improved, greater than 1 acre |
| CF | Conservation Futures | 0.0316035091 | $469,590 | $469,590 | $14.84 | | |
| EMS1 | Fire & Rescue Dist #1 Camano GEN (EMS) | 0.3677864386 | $469,590 | $469,590 | $172.71 | | |
| FIRE1 | Fire & Rescue Dist #1 Camano GEN | 1.2502910536 | $469,590 | $469,590 | $587.12 | | |
| FIRE1BOND | Fire & Rescue Dist #1 Camano BOND | 0.1570001679 | $469,590 | $469,590 | $73.73 | | |
| CE | County Current Expense | 0.3708482477 | $469,590 | $469,590 | $174.15 | | |
| CR | County Roads | 0.4584763726 | $469,590 | $469,590 | $215.30 | | |
| LCIB | Library Sno-Isle BOND (Camano Island) | 0.0396325772 | $469,590 | $469,590 | $18.61 | | |
| LIB | Library Sno-Isle GEN | 0.3153421757 | $469,590 | $469,590 | $148.08 | | |
| SCH205_401 | School 205-401 Enrichment | 1.2698420524 | $469,590 | $469,590 | $596.31 | | |
| SCH205BOND | School 205-401 BOND | 0.9396497583 | $469,590 | $469,590 | $441.25 | | |
| ST | State School | 1.3035497053 | $469,590 | $469,590 | $612.13 | | |
| ST2 | State School Part 2 | 0.8169543533 | $469,590 | $469,590 | $383.63 | | |
| | Total Tax Rate: | 7.3209764117 | | | | | |
| | | | | Taxes w/Current Exemptions: | $3,437.86 | | |
| | | | | Taxes w/o Exemptions: | $3,437.86 | | |
Improvement / Building
| Improvement #1: | MANUFACTURED HOME | State Code: | Y | 2182.0 sqft | Value: | $139,590 |
| Bathrooms: | 0 | Bedrooms: | 0 | | Ceiling: | PLASTER PAINTED | Cooling: | EVAP NO DUCT | | Exterior Wall/Cover: | VINYL | Floor Covering: | CARPET 100% | | Floor Structure: | SLAB ON GRADE | Foundation: | SLAB | | Heating: | FHA ELECTRIC | Interior Finish: | PLASTER | | Plumbing Fixture Cnt: | 1 | Roof Slope: | FLAT | | Roof Structure/Cover: | CJ ALUMINIUM HEAVY |   |   |
|
| | Type | Description | Class CD | Sub Class CD | Year Built | Area |
| | BAS | BASE/MAIN FLOOR | 4 | 0 | 1990 | 2182.0 |
| | OWP | OPEN WOOD PORCH W/STEPS | 4 | 0 | 1990 | 60.0 |
| | OWR | OPEN WOOD PORCH W/STEPS/ROOF | 4 | 0 | 1990 | 48.0 |
| | OCP | OPEN CARPORT | 4 | 0 | 1990 | 324.0 |
| | oGAR | GARAGE | 4 | 0 | 1990 | 1296.0 |
| | ENP | ENCLOSED PORCH | 4 | 0 | 1990 | 68.0 |
| | CPD | OPEN CARPORT DIRT FLOOR | 4 | 0 | 1990 | 432.0 |
| | CPD | OPEN CARPORT DIRT FLOOR | 4 | 0 | 1990 | 432.0 |
Sketch
Property Image
Land
| 1 | 32 | AC (03.01-09.99) | 4.7000 | 0.00 | 0.00 | 0.00 | 1.00 | $330,000 | $0 |
Roll Value History
| 2026 | N/A | N/A | N/A | N/A | N/A |
| 2025 | $139,590 | $330,000 | $0 | $469,590 | $469,590 |
| 2024 | $143,915 | $340,000 | $0 | $483,915 | $483,915 |
| 2023 | $132,161 | $320,000 | $0 | $452,161 | $452,161 |
| 2022 | $108,758 | $300,000 | $0 | $408,758 | $408,758 |
| 2021 | $100,574 | $190,000 | $0 | $290,574 | $290,574 |
| 2020 | $101,030 | $190,000 | $0 | $291,030 | $291,030 |
| 2019 | $88,067 | $220,000 | $0 | $308,067 | $308,067 |
| 2018 | $90,170 | $190,000 | $0 | $280,170 | $280,170 |
| 2017 | $92,274 | $170,000 | $0 | $262,274 | $75,779 |
| 2016 | $64,860 | $135,000 | $0 | $199,860 | $75,779 |
| 2015 | $67,941 | $117,500 | $0 | $185,441 | $74,176 |
| 2014 | $69,993 | $117,500 | $0 | $187,493 | $121,870 |
| 2013 | $72,048 | $150,400 | $0 | $222,448 | $123,141 |
| 2012 | $74,100 | $150,400 | $0 | $224,500 | $123,141 |
| 2011 | $73,027 | $188,000 | $0 | $261,027 | $123,141 |
| 2010 | $116,830 | $188,000 | $0 | $304,830 | $123,141 |
| 2009 | $121,879 | $211,500 | $0 | $333,379 | $189,448 |
| 2008 | $125,824 | $173,756 | $0 | $299,580 | $75,779 |
| 2007 | $129,487 | $173,900 | $0 | $303,387 | $189,448 |
Deed and Sales History
| 1 | 05/06/2019 | | | SCOTT, JUNIOR M | SCOTT JTWROS, DONAL E | | | $0.00 | 37627 | |
| 2 | 05/06/2019 | QCD | Quit Claim Deed | SCOTT, DONAL E | SCOTT JTWROS, DONAL E | | | $0.00 | 37626 | 4459446 |
| 3 | 05/06/2019 | PRD | Personal Representatives Deed | SCOTT, JUNIOR M | SCOTT, DONAL E | | | $0.00 | 37625 | 4459445 |
| 4 | 02/01/1990 | OTHER | Other - Misc. Documents | SCOTT, JUNIOR M | SCOTT, JUNIOR M | | | $33,545.00 | 11111111 | 0 |
| 5 | 12/01/1989 | WD | Warranty Deed | BRAY, GARY C | SCOTT, JUNIOR M | | | $36,000.00 | 95980 | 89019261 |
| 6 | 10/01/1982 | WD | Warranty Deed | BRAY, RUBEN O | BRAY, GARY C | | | $0.00 | 22559 | 402042 |
| 7 | 10/01/1981 | OTHER | Other - Misc. Documents | Unknown | BRAY, RUBEN O | | | $0.00 | 59242 | 388848 |
Payout Agreement
| No payout information available.. |