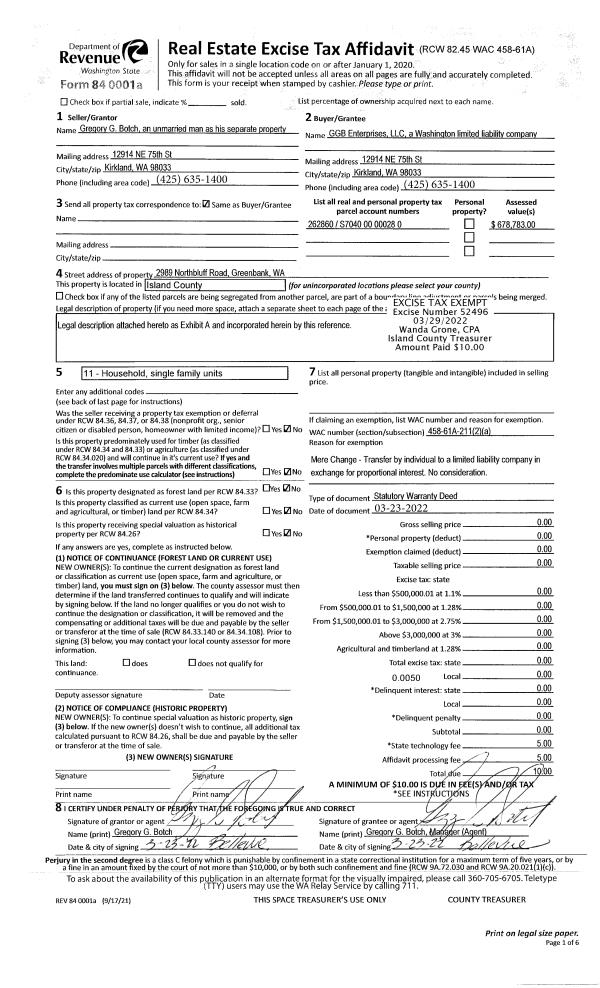
Property
Account |
| Property ID: | 549623 | Abbreviated Legal Description: | LOT 2 SP 81-15.33106.513-158 V1 SP P140 AF#397379 |
| Geographic ID: | R33106-520-1590 | Agent Code: | |
| Type: | Real | | |
| Tax Area: | 592 - APPRAISER-Stan/Cam Schl Dist, Special Dist, improved, greater than 1 acre | Land Use Code | 66 |
| Open Space: | N | DFL | N |
| Historic Property: | N | Remodel Property: | N |
| Multi-Family Redevelopment: | N | | |
| Township: | 31 | Section: | 06 |
| Range: | R3 |
Location |
| Address: | 6 S SAPPHIRE DR CAMANO ISLAND, WA 98282 | Mapsco: | |
| Neighborhood: | 53cRR-necamano rd | Map ID: | 920 |
| Neighborhood CD: | 53cRRnecam |
Owner |
| Name: | BIRCH TREE HOLDINGS LLC | Owner ID: | 299840 |
| Mailing Address: | 628 COVE PL CAMANO ISLAND, WA 98282 | % Ownership: | 100.0000000000% |
| | | Exemptions: | |
Taxes and Assessment Details
Values
| (+) Improvement Homesite Value: | + | $0 | |
| (+) Improvement Non-Homesite Value: | + | $140,444 | |
| (+) Land Homesite Value: | + | $0 | |
| (+) Land Non-Homesite Value: | + | $290,000 | |
| (+) Curr Use (HS): | + | $0 | $0 |
| (+) Curr Use (NHS): | + | $0 | $0 |
| | | -------------------------- | |
| (=) Market Value: | = | $430,444 | |
| (–) Productivity Loss: | – | $0 | |
| | | -------------------------- | |
| (=) Subtotal: | = | $430,444 | |
| (+) Senior Appraised Value: | + | $0 | |
| (+) Non-Senior Appraised Value: | + | $430,444 | |
| | | -------------------------- | |
| (=) Total Appraised Value: | = | $430,444 | |
| (–) Senior Exemption Loss: | – | $0 | |
| (–) Exemption Loss: | – | $0 | |
| | | -------------------------- | |
| (=) Taxable Value: | = | $430,444 | |
Taxing Jurisdiction
| Owner: | BIRCH TREE HOLDINGS LLC | | |
| % Ownership: | 100.0000000000% | | |
| Total Value: | $430,444 | | |
| Tax Area: | 592 - APPRAISER-Stan/Cam Schl Dist, Special Dist, improved, greater than 1 acre |
| CF | Conservation Futures | 0.0316035091 | $430,444 | $430,444 | $13.60 | | |
| EMS1 | Fire & Rescue Dist #1 Camano GEN (EMS) | 0.3677864386 | $430,444 | $430,444 | $158.31 | | |
| FIRE1 | Fire & Rescue Dist #1 Camano GEN | 1.2502910536 | $430,444 | $430,444 | $538.18 | | |
| FIRE1BOND | Fire & Rescue Dist #1 Camano BOND | 0.1570001679 | $430,444 | $430,444 | $67.58 | | |
| CE | County Current Expense | 0.3708482477 | $430,444 | $430,444 | $159.63 | | |
| CR | County Roads | 0.4584763726 | $430,444 | $430,444 | $197.35 | | |
| LCIB | Library Sno-Isle BOND (Camano Island) | 0.0396325772 | $430,444 | $430,444 | $17.06 | | |
| LIB | Library Sno-Isle GEN | 0.3153421757 | $430,444 | $430,444 | $135.74 | | |
| SCH205_401 | School 205-401 Enrichment | 1.2698420524 | $430,444 | $430,444 | $546.60 | | |
| SCH205BOND | School 205-401 BOND | 0.9396497583 | $430,444 | $430,444 | $404.47 | | |
| ST | State School | 1.3035497053 | $430,444 | $430,444 | $561.11 | | |
| ST2 | State School Part 2 | 0.8169543533 | $430,444 | $430,444 | $351.65 | | |
| | Total Tax Rate: | 7.3209764117 | | | | | |
| | | | | Taxes w/Current Exemptions: | $3,151.28 | | |
| | | | | Taxes w/o Exemptions: | $3,151.28 | | |
Improvement / Building
| Improvement #1: | COMMERCIAL | State Code: | F1 | 2400.0 sqft | Value: | $140,444 |
| Bathrooms: | 1 | Ceiling: | ROOF STR/CO CJ MH MT | | Exterior Wall/Cover: | STL/ALUM/SINGWL WD F | Floor Covering: | COLORED CONCRETE | | Floor Structure: | SLAB ON GRADE | Foundation: | SLAB | | Heating: | SPACE HEATERS | Interior Finish: | SERVICE GARAGE | | Plumbing Fixture Cnt: | 6 | Roof Structure/Cover: | STEEL TERNE |
|
Sketch
Property Image
Land
| 1 | 18 | AC (02.01-03.00) | 2.5000 | 108900.00 | 0.00 | 0.00 | 1.00 | $290,000 | $0 |
Roll Value History
| 2026 | N/A | N/A | N/A | N/A | N/A |
| 2025 | $140,444 | $290,000 | $0 | $430,444 | $430,444 |
| 2024 | $146,997 | $280,000 | $0 | $426,997 | $426,997 |
| 2023 | $153,552 | $230,000 | $0 | $383,552 | $383,552 |
| 2022 | $116,067 | $220,000 | $0 | $336,067 | $336,067 |
| 2021 | $49,908 | $190,000 | $0 | $239,908 | $239,908 |
| 2020 | $49,908 | $190,000 | $0 | $239,908 | $239,908 |
| 2019 | $60,980 | $190,000 | $0 | $250,980 | $250,980 |
| 2018 | $60,980 | $180,000 | $0 | $240,980 | $240,980 |
| 2017 | $60,980 | $160,000 | $0 | $220,980 | $220,980 |
| 2016 | $60,980 | $160,000 | $0 | $220,980 | $220,980 |
| 2015 | $35,136 | $189,525 | $0 | $224,661 | $224,661 |
| 2014 | $35,136 | $189,525 | $0 | $224,661 | $224,661 |
| 2013 | $35,136 | $189,525 | $0 | $224,661 | $224,661 |
| 2012 | $35,136 | $189,525 | $0 | $224,661 | $224,661 |
| 2011 | $35,136 | $189,525 | $0 | $224,661 | $224,661 |
| 2010 | $35,136 | $189,525 | $0 | $224,661 | $224,661 |
| 2009 | $37,440 | $189,525 | $0 | $226,965 | $226,965 |
| 2008 | $39,168 | $199,500 | $0 | $238,668 | $238,668 |
| 2007 | $40,896 | $199,500 | $0 | $240,396 | $240,396 |
Deed and Sales History
| 1 | 06/16/2021 | WD | Warranty Deed | IMPEL PROPERTIES, LLC | BIRCH TREE HOLDINGS LLC | | | $343,000.00 | 48742 | 4522190 |
| 2 | 10/15/2018 | WD | Warranty Deed | TRIANGLE COVE LLC | IMPEL PROPERTIES, LLC | | | $265,000.00 | 36401 | 4453891 |
| 3 | 11/28/2005 | 5 | DNU - Marriage License/Name Change | ERICKSON, GORDON L | TRIANGLE COVE LLC, | | | $0.00 | 56138 | 4156624 |
| 4 | 03/11/2005 | WD | Warranty Deed | THEES, CLINTON W | ERICKSON, GORDON L | | | $100,000.00 | 51089 | 4128781 |
| 5 | 09/01/1993 | WD | Warranty Deed | HOLMES, JOHN G | THEES, CLINTON W | | | $30,000.00 | 33881 | 93020175 |
| 6 | 06/01/1982 | OTHER | Other - Misc. Documents | Unknown | HOLMES, JOHN G | | | $0.00 | 59664 | 0 |
Payout Agreement
| No payout information available.. |