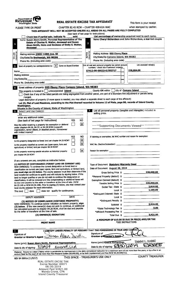
Property
Account |
| Property ID: | 54988 | Abbreviated Legal Description: | 56 - IN N/2 SW NW NE: BG NWCR N/2 SW NW NE E460' M/L TO WLN OF E200' SD N/2 S130 W460' N130' TPB TGW EZ TR A (REV) SP 76-61 AF#305855 |
| Geographic ID: | R22915-449-2890 | Agent Code: | |
| Type: | Real | | |
| Tax Area: | 762 - APPRAISER-S Whid Schl Dist, Special District, improved, greater than 1 acre | Land Use Code | 11 |
| Open Space: | N | DFL | N |
| Historic Property: | N | Remodel Property: | N |
| Multi-Family Redevelopment: | N | | |
| Township: | 29 | Section: | 15 |
| Range: | R2 |
Location |
| Address: | 5652 WOODARD AVE FREELAND, WA 98249 | Mapsco: | |
| Neighborhood: | Cycle 3 | Map ID: | 332 |
| Neighborhood CD: | 3 |
Owner |
| Name: | KAPONO, EILEEN M | Owner ID: | 191536 |
| Mailing Address: | BOX 994 FREELAND, WA 98249-0994 | % Ownership: | 100.0000000000% |
| | | Exemptions: | SNR/DSBL |
Taxes and Assessment Details
Values
| (+) Improvement Homesite Value: | + | $69,536 | |
| (+) Improvement Non-Homesite Value: | + | $0 | |
| (+) Land Homesite Value: | + | $370,000 | |
| (+) Land Non-Homesite Value: | + | $0 | |
| (+) Curr Use (HS): | + | $0 | $0 |
| (+) Curr Use (NHS): | + | $0 | $0 |
| | | -------------------------- | |
| (=) Market Value: | = | $439,536 | |
| (–) Productivity Loss: | – | $0 | |
| | | -------------------------- | |
| (=) Subtotal: | = | $439,536 | |
| (+) Senior Appraised Value: | + | $352,547 | |
| (+) Non-Senior Appraised Value: | + | $0 | |
| | | -------------------------- | |
| (=) Total Appraised Value: | = | $352,547 | |
| (–) Senior Exemption Loss: | – | $211,528 | |
| (–) Exemption Loss: | – | $0 | |
| | | -------------------------- | |
| (=) Taxable Value: | = | $141,019 | |
Taxing Jurisdiction
| Owner: | KAPONO, EILEEN M | | |
| % Ownership: | 100.0000000000% | | |
| Total Value: | $439,536 | | |
| Tax Area: | 762 - APPRAISER-S Whid Schl Dist, Special District, improved, greater than 1 acre |
| CF | Conservation Futures | 0.0316035091 | $439,536 | $141,019 | $4.46 | | |
| FIRE3 | Fire & Rescue Dist #3 S Whidbey GEN | 1.2004855531 | $439,536 | $141,019 | $169.29 | | |
| HOBOND | Hospital BOND | 0.0000000000 | $439,536 | $0 | $0.00 | | |
| HOGEN | Hospital GEN | 0.3902502903 | $439,536 | $141,019 | $55.03 | | |
| CE | County Current Expense | 0.3708482477 | $439,536 | $141,019 | $52.30 | | |
| CR | County Roads | 0.4584763726 | $439,536 | $141,019 | $64.65 | | |
| ISLANDEMS | Hospital GEN (EMS) | 0.5000000000 | $439,536 | $141,019 | $70.51 | | |
| LIB | Library Sno-Isle GEN | 0.3153421757 | $439,536 | $141,019 | $44.47 | | |
| PORTWHID | Port of S Whidbey GEN | 0.1094540357 | $439,536 | $141,019 | $15.44 | | |
| SCH206BOND | School 206 BOND | 0.3161759235 | $439,536 | $141,019 | $44.59 | | |
| SCH206MO | School 206 Enrichment | 0.0000000000 | $439,536 | $0 | $0.00 | | |
| ST | State School | 1.3035497053 | $439,536 | $141,019 | $183.83 | | |
| ST2 | State School Part 2 | 0.0000000000 | $439,536 | $0 | $0.00 | | |
| SWHIDPRBD | P & R S Whidbey BOND | 0.0000000000 | $439,536 | $0 | $0.00 | | |
| SWHIDPRBD2 | P & R S Whidbey BOND2 | 0.0000000000 | $439,536 | $0 | $0.00 | | |
| SWHIDPRMT | P & R S Whidbey GEN | 0.2053334452 | $439,536 | $141,019 | $28.96 | | |
| | Total Tax Rate: | 5.2015192582 | | | | | |
| | | | | Taxes w/Current Exemptions: | $733.53 | | |
| | | | | Taxes w/o Exemptions: | $2,942.02 | | |
Improvement / Building
| Improvement #1: | MANUFACTURED HOME | State Code: | Y | 1510.0 sqft | Value: | $69,536 |
| Bathrooms: | 2 | Bedrooms: | 2 | | Ceiling: | PLASTER PAINTED | Cooling: | EVAP NO DUCT | | Exterior Wall/Cover: | VINYL | Floor Covering: | CARPET 100% | | Floor Structure: | SLAB ON GRADE | Foundation: | SLAB | | Heating: | FHA ELECTRIC | Interior Finish: | PLASTER | | Plumbing Fixture Cnt: | 1 | Roof Slope: | FLAT | | Roof Structure/Cover: | CJ ALUMINIUM HEAVY |   |   |
|
| | Type | Description | Class CD | Sub Class CD | Year Built | Area |
| | BAS | BASE/MAIN FLOOR | 3 | 0 | 1976 | 1510.0 |
| | UTY | STORAGE/UTILITY | 3 | 0 | 1976 | 395.0 |
| | CPD | OPEN CARPORT DIRT FLOOR | 3 | 0 | 1976 | 256.0 |
| | OWP | OPEN WOOD PORCH W/STEPS | 3 | 0 | 1976 | 144.0 |
| | OP3 | OPEN PORCH W/ROOF | 3 | 0 | 1976 | 717.0 |
Sketch
Property Image
Land
| 1 | 17 | AC (01.01-02.00) | 0.0000 | 0.00 | 0.00 | 0.00 | 1.00 | $370,000 | $0 |
Roll Value History
| 2026 | N/A | N/A | N/A | N/A | N/A |
| 2025 | $69,536 | $370,000 | $0 | $439,536 | $141,019 |
| 2024 | $72,560 | $350,000 | $0 | $422,560 | $141,019 |
| 2023 | $77,095 | $360,000 | $0 | $437,095 | $141,019 |
| 2022 | $72,547 | $280,000 | $0 | $352,547 | $141,019 |
| 2021 | $65,468 | $260,000 | $0 | $325,468 | $325,468 |
| 2020 | $65,869 | $220,000 | $0 | $285,869 | $285,869 |
| 2019 | $43,668 | $260,000 | $0 | $303,668 | $303,668 |
| 2018 | $45,381 | $230,000 | $0 | $275,381 | $275,381 |
| 2017 | $47,095 | $165,000 | $0 | $212,095 | $212,095 |
| 2016 | $48,805 | $160,000 | $0 | $208,805 | $208,805 |
| 2015 | $51,375 | $178,500 | $0 | $229,875 | $229,875 |
| 2014 | $53,087 | $178,500 | $0 | $231,587 | $231,587 |
| 2013 | $61,327 | $178,500 | $0 | $239,827 | $239,827 |
| 2012 | $62,871 | $178,500 | $0 | $241,371 | $241,371 |
| 2011 | $65,188 | $210,000 | $0 | $275,188 | $275,188 |
| 2010 | $78,150 | $210,000 | $0 | $288,150 | $288,150 |
| 2009 | $81,838 | $255,000 | $0 | $336,838 | $336,838 |
| 2008 | $83,463 | $255,000 | $0 | $338,463 | $338,463 |
| 2007 | $86,427 | $124,655 | $0 | $211,082 | $211,082 |
Deed and Sales History
| 1 | 11/04/2003 | WD | Warranty Deed | CURRY, KATHRYN E | KAPONO, EILEEN M | | | $199,503.00 | 35110 | 4082373 |
| 2 | 07/22/1999 | OTHER | Other - Misc. Documents | ROBINSON, GERALDINE HELWING | CURRY, KATHRYN E | | | $38,000.00 | 92973 | 0 |
| 3 | 07/22/1999 | WD | Warranty Deed | CURRY, KATHRYN E | CURRY, KATHRYN E | | | $175,000.00 | 92972 | 99017522 |
| 4 | 07/01/1998 | WD | Warranty Deed | ROBINSON, IAN / | ROBINSON, GERALDINE H | | | $0.00 | 82690 | 0 |
| 5 | 07/01/1998 | OTHER | Other - Misc. Documents | ROBINSON, GERALDINE HELWING | ROBINSON, GERALDINE HELWING | | | $0.00 | 82690 | 0 |
| 6 | 07/01/1998 | ESTSEPPROP | Establish Separate Property | ROBINSON, GERALDINE H | ROBINSON, GERALDINE HELWING | | | $0.00 | 82691 | 98013903 |
| 7 | 07/01/1995 | OTHER | Other - Misc. Documents | ROBINSON, IAN & | ROBINSON, IAN / | | | $36,278.00 | 52270 | 0 |
| 8 | 06/01/1995 | WD | Warranty Deed | FLANSBURG, MERVIN F | ROBINSON, IAN & | | | $107,722.00 | 52259 | 95010310 |
| 9 | 09/01/1994 | QCD | Quit Claim Deed | FLANSBURG, MERVIN | FLANSBURG, MERVIN F | | | $0.00 | 44117 | 94021165 |
| 10 | 07/01/1983 | OTHER | Other - Misc. Documents | FLANSBURG, MERVIN | FLANSBURG, MERVIN | | | $0.00 | 60153 | 411735 |
| 11 | 01/01/1900 | OTHER | Other - Misc. Documents | Unknown | ROBINSON, GERALDINE H | | | $0.00 | 82691 | 98013903 |
| 12 | 01/01/1900 | OTHER | Other - Misc. Documents | ROBINSON, GERALDINE H | FLANSBURG, MERVIN | | | $0.00 | 0 | 0 |
Payout Agreement
| No payout information available.. |