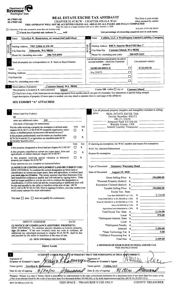
Property
Account |
| Property ID: | 549927 | Abbreviated Legal Description: | 48 - IN SE SE: S113' OF: BG NECR OF SD SE SE W363' M/L TO EINARSON TR S548' E363' M/L TO ELN SD SE SE N ALG ELN 548' TPB EX PT SE SE DESC: BG NECR OF SD SE SE N89*W ALG NLN 363' S435' TO SLN OF N435' SD SUBD TPB S19.98' TO INTER E-W FENCE S89*E FOLL SD FE |
| Geographic ID: | R33220-082-5130 | Agent Code: | |
| Type: | Real | | |
| Tax Area: | 592 - APPRAISER-Stan/Cam Schl Dist, Special Dist, improved, greater than 1 acre | Land Use Code | 11 |
| Open Space: | N | DFL | N |
| Historic Property: | N | Remodel Property: | N |
| Multi-Family Redevelopment: | N | | |
| Township: | 32 | Section: | 20 |
| Range: | R3 |
Location |
| Address: | 863 HEICHEL RD CAMANO ISLAND, WA 98282 | Mapsco: | |
| Neighborhood: | North Camano | Map ID: | 965 |
| Neighborhood CD: | 06-C |
Owner |
| Name: | ANDERSEN JTWROS, DANIEL D | Owner ID: | 293217 |
| Mailing Address: | ROBIN ANDERSEN, JTWROS 863 HEICHEL RD CAMANO ISLAND, WA 98282 | % Ownership: | 100.0000000000% |
| | | Exemptions: | |
Taxes and Assessment Details
Values
| (+) Improvement Homesite Value: | + | $0 | |
| (+) Improvement Non-Homesite Value: | + | $231,605 | |
| (+) Land Homesite Value: | + | $0 | |
| (+) Land Non-Homesite Value: | + | $305,000 | |
| (+) Curr Use (HS): | + | $0 | $0 |
| (+) Curr Use (NHS): | + | $0 | $0 |
| | | -------------------------- | |
| (=) Market Value: | = | $536,605 | |
| (–) Productivity Loss: | – | $0 | |
| | | -------------------------- | |
| (=) Subtotal: | = | $536,605 | |
| (+) Senior Appraised Value: | + | $0 | |
| (+) Non-Senior Appraised Value: | + | $536,605 | |
| | | -------------------------- | |
| (=) Total Appraised Value: | = | $536,605 | |
| (–) Senior Exemption Loss: | – | $0 | |
| (–) Exemption Loss: | – | $0 | |
| | | -------------------------- | |
| (=) Taxable Value: | = | $536,605 | |
Taxing Jurisdiction
| Owner: | ANDERSEN JTWROS, DANIEL D | | |
| % Ownership: | 100.0000000000% | | |
| Total Value: | $536,605 | | |
| Tax Area: | 592 - APPRAISER-Stan/Cam Schl Dist, Special Dist, improved, greater than 1 acre |
| CF | Conservation Futures | 0.0316035091 | $536,605 | $536,605 | $16.96 | | |
| EMS1 | Fire & Rescue Dist #1 Camano GEN (EMS) | 0.3677864386 | $536,605 | $536,605 | $197.36 | | |
| FIRE1 | Fire & Rescue Dist #1 Camano GEN | 1.2502910536 | $536,605 | $536,605 | $670.91 | | |
| FIRE1BOND | Fire & Rescue Dist #1 Camano BOND | 0.1570001679 | $536,605 | $536,605 | $84.25 | | |
| CE | County Current Expense | 0.3708482477 | $536,605 | $536,605 | $199.00 | | |
| CR | County Roads | 0.4584763726 | $536,605 | $536,605 | $246.02 | | |
| LCIB | Library Sno-Isle BOND (Camano Island) | 0.0396325772 | $536,605 | $536,605 | $21.27 | | |
| LIB | Library Sno-Isle GEN | 0.3153421757 | $536,605 | $536,605 | $169.21 | | |
| SCH205_401 | School 205-401 Enrichment | 1.2698420524 | $536,605 | $536,605 | $681.40 | | |
| SCH205BOND | School 205-401 BOND | 0.9396497583 | $536,605 | $536,605 | $504.22 | | |
| ST | State School | 1.3035497053 | $536,605 | $536,605 | $699.49 | | |
| ST2 | State School Part 2 | 0.8169543533 | $536,605 | $536,605 | $438.38 | | |
| | Total Tax Rate: | 7.3209764117 | | | | | |
| | | | | Taxes w/Current Exemptions: | $3,928.47 | | |
| | | | | Taxes w/o Exemptions: | $3,928.47 | | |
Improvement / Building
| Improvement #1: | RESIDENTIAL | State Code: | Y | 2136.0 sqft | Value: | $231,605 |
| Bathrooms: | 2 | Bedrooms: | 3 | | Ceiling: | DRYWALL PAINTED | Exterior Wall/Cover: | (NONE) | | Floor Structure: | WOOD W/SUBFLOOR | Foundation: | CONCRETE | | Heating: | FHA GAS | Interior Finish: | DRYWALL PAINT | | Plumbing Fixture Cnt: | 14 | Roof Slope: | 4" IN 12" | | Roof Structure/Cover: | CJ ASPHALT |   |   |
|
| | Type | Description | Class CD | Sub Class CD | Year Built | Area |
| | BAS | BASE/MAIN FLOOR | 3 | 0 | 1965 | 1609.0 |
| | UB8 | BASEMENT UNFINISHED 8" | 3 | 0 | 1965 | 697.0 |
| | BIG | BUILT IN GARAGE | 3 | 0 | 1965 | 912.0 |
| | UPS | UPPER STORY | 3 | 0 | 1965 | 527.0 |
| | BAW | BALCONY WOOD RAIL | 3 | 0 | 1965 | 80.0 |
| | oPOL | POLE BARN | 3 | 0 | 1965 | 0.0 |
Sketch
Property Image
Land
| 1 | 17 | AC (01.01-02.00) | 0.0000 | 0.00 | 0.00 | 0.00 | 1.00 | $305,000 | $0 |
Roll Value History
| 2026 | N/A | N/A | N/A | N/A | N/A |
| 2025 | $231,605 | $305,000 | $0 | $536,605 | $536,605 |
| 2024 | $234,720 | $290,000 | $0 | $524,720 | $524,720 |
| 2023 | $237,834 | $290,000 | $0 | $527,834 | $527,834 |
| 2022 | $230,961 | $260,000 | $0 | $490,961 | $490,961 |
| 2021 | $204,586 | $230,000 | $0 | $434,586 | $434,586 |
| 2020 | $198,944 | $150,000 | $0 | $348,944 | $348,944 |
| 2019 | $150,018 | $180,000 | $0 | $330,018 | $330,018 |
| 2018 | $150,450 | $150,000 | $0 | $300,450 | $300,450 |
| 2017 | $151,290 | $120,000 | $0 | $271,290 | $271,290 |
| 2016 | $144,850 | $130,000 | $0 | $274,850 | $274,850 |
| 2015 | $146,474 | $100,000 | $0 | $246,474 | $246,474 |
| 2014 | $148,100 | $100,000 | $0 | $248,100 | $248,100 |
| 2013 | $149,724 | $100,000 | $0 | $249,724 | $249,724 |
| 2012 | $151,348 | $100,000 | $0 | $251,348 | $251,348 |
| 2011 | $152,973 | $125,000 | $0 | $277,973 | $277,973 |
| 2010 | $162,387 | $125,000 | $0 | $287,387 | $287,387 |
| 2009 | $168,680 | $150,000 | $0 | $318,680 | $318,680 |
| 2008 | $170,358 | $150,000 | $0 | $320,358 | $320,358 |
| 2007 | $170,358 | $150,000 | $0 | $320,358 | $320,358 |
Deed and Sales History
| 1 | 12/26/2019 | QCD | Quit Claim Deed | ANDERSEN, DANIEL D | ANDERSEN JTWROS, DANIEL D | | | $0.00 | 41815 | 4479399 |
| 2 | 04/16/2007 | 5 | DNU - Marriage License/Name Change | ANDERSEN, DANIEL D | ANDERSEN, DANIEL D | | | $88,559.00 | 71309 | 4200196 |
| 3 | 02/21/1998 | QCD | Quit Claim Deed | ANDERSEN, DANIEL D | ANDERSEN, DANIEL D | | | $0.00 | 85172 | 98028316 |
| 4 | 10/01/1995 | WD | Warranty Deed | MOA, DONALD K | ANDERSEN, DANIEL D | | | $65,000.00 | 54219 | 95019534 |
| 5 | 07/01/1982 | OTHER | Other - Misc. Documents | Unknown | MOA, DONALD K | | | $0.00 | 59575 | 0 |
Payout Agreement
| No payout information available.. |