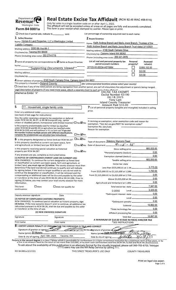
Property
Account |
| Property ID: | 55 | Abbreviated Legal Description: | 43 - N/2 S/2 GL4 EX RD |
| Geographic ID: | R03213-049-3470 | Agent Code: | |
| Type: | Real | | |
| Tax Area: | 112 - APPRAISER-OH Schl Dist, outside OH, improved, greater than 1 acre | Land Use Code | 11 |
| Open Space: | N | DFL | N |
| Historic Property: | N | Remodel Property: | N |
| Multi-Family Redevelopment: | N | | |
| Township: | 32 | Section: | 13 |
| Range: | R0 |
Location |
| Address: | 1241 WEST BEACH RD OAK HARBOR, WA 98277 | Mapsco: | |
| Neighborhood: | Area 2 Waterfront Westside Residential | Map ID: | 1 |
| Neighborhood CD: | 2WFW01R |
Owner |
| Name: | HANSON TTEE, POUL O | Owner ID: | 310932 |
| Mailing Address: | ELIZABETH M LEPEY TTEE 1241 WEST BEACH RD OAK HARBOR, WA 98277 | % Ownership: | 100.0000000000% |
| | | Exemptions: | |
Taxes and Assessment Details
Values
| (+) Improvement Homesite Value: | + | $0 | |
| (+) Improvement Non-Homesite Value: | + | $1,268,578 | |
| (+) Land Homesite Value: | + | $0 | |
| (+) Land Non-Homesite Value: | + | $699,723 | |
| (+) Curr Use (HS): | + | $0 | $0 |
| (+) Curr Use (NHS): | + | $0 | $0 |
| | | -------------------------- | |
| (=) Market Value: | = | $1,968,301 | |
| (–) Productivity Loss: | – | $0 | |
| | | -------------------------- | |
| (=) Subtotal: | = | $1,968,301 | |
| (+) Senior Appraised Value: | + | $0 | |
| (+) Non-Senior Appraised Value: | + | $1,968,301 | |
| | | -------------------------- | |
| (=) Total Appraised Value: | = | $1,968,301 | |
| (–) Senior Exemption Loss: | – | $0 | |
| (–) Exemption Loss: | – | $0 | |
| | | -------------------------- | |
| (=) Taxable Value: | = | $1,968,301 | |
Taxing Jurisdiction
| Owner: | HANSON TTEE, POUL O | | |
| % Ownership: | 100.0000000000% | | |
| Total Value: | $1,968,301 | | |
| Tax Area: | 112 - APPRAISER-OH Schl Dist, outside OH, improved, greater than 1 acre |
| CF | Conservation Futures | 0.0316035091 | $1,968,301 | $1,968,301 | $62.21 | | |
| CEM1 | Cemetery #1 | 0.0040320932 | $1,968,301 | $1,968,301 | $7.94 | | |
| FIRE2 | Fire & Rescue Dist #2 N Whidbey GEN | 0.5475949600 | $1,968,301 | $1,968,301 | $1,077.83 | | |
| HOBOND | Hospital BOND | 0.1910887512 | $1,968,301 | $1,968,301 | $376.12 | | |
| HOGEN | Hospital GEN | 0.3902502903 | $1,968,301 | $1,968,301 | $768.13 | | |
| CE | County Current Expense | 0.3708482477 | $1,968,301 | $1,968,301 | $729.94 | | |
| CR | County Roads | 0.4584763726 | $1,968,301 | $1,968,301 | $902.42 | | |
| ISLANDEMS | Hospital GEN (EMS) | 0.5000000000 | $1,968,301 | $1,968,301 | $984.15 | | |
| LIB | Library Sno-Isle GEN | 0.3153421757 | $1,968,301 | $1,968,301 | $620.69 | | |
| NWHIDPRMT | P & R N Whidbey GEN | 0.2004466701 | $1,968,301 | $1,968,301 | $394.54 | | |
| SCH201MO | School 201 Enrichment | 1.8559231640 | $1,968,301 | $1,968,301 | $3,653.02 | | |
| ST | State School | 1.3035497053 | $1,968,301 | $1,968,301 | $2,565.78 | | |
| ST2 | State School Part 2 | 0.8169543533 | $1,968,301 | $1,968,301 | $1,608.01 | | |
| | Total Tax Rate: | 6.9861102925 | | | | | |
| | | | | Taxes w/Current Exemptions: | $13,750.78 | | |
| | | | | Taxes w/o Exemptions: | $13,750.78 | | |
Improvement / Building
| Improvement #1: | RESIDENTIAL | State Code: | Y | 4697.9 sqft | Value: | $1,268,578 |
| Bathrooms: | 4.5 | Bedrooms: | 4 | | Ceiling: | DRYWALL PAINTED | Cooling: | HEAT PUMP/CONV/V | | Exterior Wall/Cover: | SHINGLE | Floor Covering: | VINYL TILE/HARWD 20-80 | | Floor Structure: | WOOD W/SUBFLOOR | Foundation: | CONCRETE | | Interior Finish: | DRYWALL PAINT | Plumbing Fixture Cnt: | 21 | | Roof Slope: | 5" IN 12" | Roof Structure/Cover: | BEAM CONCRETE TILE |
|
| | Type | Description | Class CD | Sub Class CD | Year Built | Area |
| | BAS | BASE/MAIN FLOOR | 6 | 0 | 1992 | 1825.8 |
| | BAS | BASE/MAIN FLOOR | 6 | 0 | 1992 | 712.0 |
| | OWC | OPEN WOOD PORCH W/STEPS/ROOF/C | 6 | 0 | 1992 | 169.6 |
| | AGR | ATTACHED GARAGE | 6 | 0 | 1992 | 729.0 |
| | OCP | OPEN CARPORT | 6 | 0 | 1992 | 620.7 |
| | UTY | STORAGE/UTILITY | 6 | 0 | 1992 | 180.0 |
| | DWN | DOWNSTAIRS LIVING AREA | 6 | 0 | 1992 | 936.8 |
| | UPS | UPPER STORY | 6 | 0 | 1992 | 1223.3 |
| | OWP | OPEN WOOD PORCH W/STEPS | 6 | 0 | 1992 | 649.1 |
| | OWP | OPEN WOOD PORCH W/STEPS | 6 | 0 | 1992 | 1038.4 |
| | ENP | ENCLOSED PORCH | 6 | 0 | 1992 | 237.2 |
Sketch
Property Image
Land
| 1 | HB | HIGH BLUFF | 0.0000 | 0.00 | 350.00 | 0.00 | 1.00 | $316,452 | $0 |
| 2 | HS | HOMESITE | 1.0000 | 43560.00 | 0.00 | 0.00 | 1.00 | $340,000 | $0 |
| 3 | 91 | UNDEVELOPED LAND-METES AND BOUNDS | 6.0700 | 264409.20 | 0.00 | 0.00 | 1.00 | $43,271 | $0 |
Roll Value History
| 2026 | N/A | N/A | N/A | N/A | N/A |
| 2025 | $1,268,578 | $699,723 | $0 | $1,968,301 | $1,968,301 |
| 2024 | $1,283,460 | $700,000 | $0 | $1,983,460 | $1,983,460 |
| 2023 | $877,457 | $675,000 | $0 | $1,552,457 | $1,552,457 |
| 2022 | $804,091 | $675,000 | $0 | $1,479,091 | $1,479,091 |
| 2021 | $707,490 | $650,000 | $0 | $1,357,490 | $1,357,490 |
| 2020 | $690,196 | $585,000 | $0 | $1,275,196 | $1,275,196 |
| 2019 | $675,108 | $600,000 | $0 | $1,275,108 | $1,275,108 |
| 2018 | $614,499 | $500,000 | $0 | $1,114,499 | $1,114,499 |
| 2017 | $614,499 | $500,000 | $0 | $1,114,499 | $1,114,499 |
| 2016 | $622,277 | $500,000 | $0 | $1,122,277 | $1,122,277 |
| 2015 | $630,055 | $600,000 | $0 | $1,230,055 | $1,230,055 |
| 2014 | $637,833 | $600,000 | $0 | $1,237,833 | $1,237,833 |
| 2013 | $645,611 | $632,590 | $0 | $1,278,201 | $1,278,201 |
| 2012 | $654,004 | $632,590 | $0 | $1,286,594 | $1,286,594 |
| 2011 | $661,917 | $632,590 | $0 | $1,294,507 | $1,294,507 |
| 2010 | $707,283 | $632,590 | $0 | $1,339,873 | $1,339,873 |
| 2009 | $619,653 | $800,203 | $0 | $1,419,856 | $1,419,856 |
| 2008 | $627,351 | $800,203 | $0 | $1,427,554 | $1,427,554 |
| 2007 | $636,636 | $800,203 | $0 | $1,436,839 | $1,436,839 |
Deed and Sales History
| 1 | 12/11/2023 | WD | Warranty Deed | JEFFERDS, IAN W | HANSON TTEE, POUL O | | | $2,100,000.00 | 58766 | 4567693 |
| 2 | 12/02/2008 | WD | Warranty Deed | SWOBODA, SCOTT ANTONE | JEFFERDS, IAN W | | | $1,450,000.00 | 83162 | 4241443 |
| 3 | 05/11/2006 | WD | Warranty Deed | KNOPH, RICHARD D | SWOBODA, SCOTT ANTONE | | | $1,350,000.00 | 62140 | 4170564 |
| 4 | 05/01/1990 | WD | Warranty Deed | PRINDLE, KIRK | KNOPH, RICHARD D | | | $202,400.00 | 2442 | 90007879 |
| 5 | 04/01/1989 | WD | Warranty Deed | GAUDIN, MAY R | PRINDLE, KIRK | | | $53,500.00 | 91488 | 89005207 |
| 6 | 10/01/1988 | WD | Warranty Deed | GAUDIN, FRANK H | GAUDIN, MAY R | | | $0.00 | 84246 | 88015842 |
| 7 | 04/01/1977 | TRUSTEED | Trustee's Deed | GAUDIN, FRANK H | GAUDIN, FRANK H | | | $0.00 | 71619 | 0 |
| 8 | 01/01/1900 | OTHER | Other - Misc. Documents | Unknown | GAUDIN, FRANK H | | | $0.00 | 0 | 0 |
Payout Agreement
| No payout information available.. |