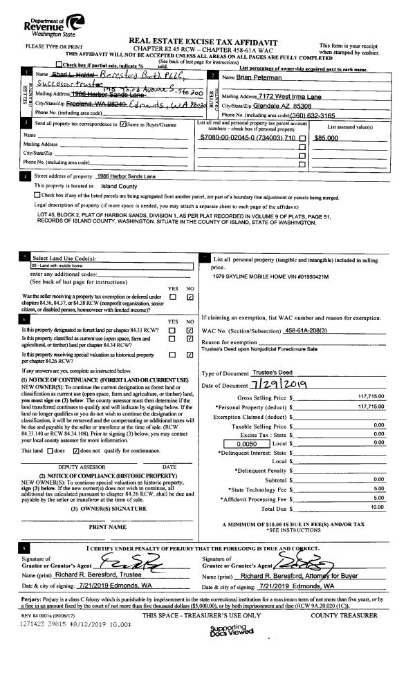
Property
Account |
| Property ID: | 55031 | Abbreviated Legal Description: | 7 BRUNN DC - BG SWCR BRUNN DLC N285.09' E351.90' TPB S81*E81' N269.21' TO CO RD N46*W ALG CO RD 110.19' S332.31' TPB ALSO: BG SWCR BRUNN DLC N285.09' E351.90' TPB S81*E81' S543.04' TO ML N62*W ALG ML 90.15' N514.15 TPB INCL ADJ TIDES |
| Geographic ID: | R22916-445-4300 | Agent Code: | |
| Type: | Real | | |
| Tax Area: | 712 - APPRAISER-S Whid Schl Dist, outside Langley, improved, greater than 1 acre | Land Use Code | 11 |
| Open Space: | N | DFL | N |
| Historic Property: | N | Remodel Property: | N |
| Multi-Family Redevelopment: | N | | |
| Township: | 29 | Section: | 16 |
| Range: | R2 |
Location |
| Address: | 5644 MUTINY BAY RD FREELAND, WA 98249 | Mapsco: | |
| Neighborhood: | Cycle 3 | Map ID: | 333 |
| Neighborhood CD: | 3 |
Owner |
| Name: | FESTER TRUSTEE, DAVID ALAN | Owner ID: | 283372 |
| Mailing Address: | PAULA SUSAN NORTIER FESTER TRUSTEE 5644 MUTINY BAY RD FREELAND, WA 98249 | % Ownership: | 100.0000000000% |
| | | Exemptions: | |
Taxes and Assessment Details
Values
| (+) Improvement Homesite Value: | + | $0 | |
| (+) Improvement Non-Homesite Value: | + | $947,524 | |
| (+) Land Homesite Value: | + | $0 | |
| (+) Land Non-Homesite Value: | + | $2,650,810 | |
| (+) Curr Use (HS): | + | $0 | $0 |
| (+) Curr Use (NHS): | + | $0 | $0 |
| | | -------------------------- | |
| (=) Market Value: | = | $3,598,334 | |
| (–) Productivity Loss: | – | $0 | |
| | | -------------------------- | |
| (=) Subtotal: | = | $3,598,334 | |
| (+) Senior Appraised Value: | + | $0 | |
| (+) Non-Senior Appraised Value: | + | $3,598,334 | |
| | | -------------------------- | |
| (=) Total Appraised Value: | = | $3,598,334 | |
| (–) Senior Exemption Loss: | – | $0 | |
| (–) Exemption Loss: | – | $0 | |
| | | -------------------------- | |
| (=) Taxable Value: | = | $3,598,334 | |
Taxing Jurisdiction
| Owner: | FESTER TRUSTEE, DAVID ALAN | | |
| % Ownership: | 100.0000000000% | | |
| Total Value: | $3,598,334 | | |
| Tax Area: | 712 - APPRAISER-S Whid Schl Dist, outside Langley, improved, greater than 1 acre |
| CF | Conservation Futures | 0.0316035091 | $3,598,334 | $3,598,334 | $113.72 | | |
| FIRE3 | Fire & Rescue Dist #3 S Whidbey GEN | 1.2004855531 | $3,598,334 | $3,598,334 | $4,319.75 | | |
| HOBOND | Hospital BOND | 0.1910887512 | $3,598,334 | $3,598,334 | $687.60 | | |
| HOGEN | Hospital GEN | 0.3902502903 | $3,598,334 | $3,598,334 | $1,404.25 | | |
| CE | County Current Expense | 0.3708482477 | $3,598,334 | $3,598,334 | $1,334.44 | | |
| CR | County Roads | 0.4584763726 | $3,598,334 | $3,598,334 | $1,649.75 | | |
| ISLANDEMS | Hospital GEN (EMS) | 0.5000000000 | $3,598,334 | $3,598,334 | $1,799.17 | | |
| LIB | Library Sno-Isle GEN | 0.3153421757 | $3,598,334 | $3,598,334 | $1,134.71 | | |
| PORTWHID | Port of S Whidbey GEN | 0.1094540357 | $3,598,334 | $3,598,334 | $393.85 | | |
| SCH206BOND | School 206 BOND | 0.3161759235 | $3,598,334 | $3,598,334 | $1,137.71 | | |
| SCH206MO | School 206 Enrichment | 0.4547169547 | $3,598,334 | $3,598,334 | $1,636.22 | | |
| ST | State School | 1.3035497053 | $3,598,334 | $3,598,334 | $4,690.61 | | |
| ST2 | State School Part 2 | 0.8169543533 | $3,598,334 | $3,598,334 | $2,939.67 | | |
| SWHIDPRBD | P & R S Whidbey BOND | 0.0152817568 | $3,598,334 | $3,598,334 | $54.99 | | |
| SWHIDPRBD2 | P & R S Whidbey BOND2 | 0.0138911264 | $3,598,334 | $3,598,334 | $49.98 | | |
| SWHIDPRMT | P & R S Whidbey GEN | 0.2053334452 | $3,598,334 | $3,598,334 | $738.86 | | |
| | Total Tax Rate: | 6.6934522006 | | | | | |
| | | | | Taxes w/Current Exemptions: | $24,085.28 | | |
| | | | | Taxes w/o Exemptions: | $24,085.28 | | |
Improvement / Building
| Improvement #1: | RESIDENTIAL | State Code: | Y | 2972.8 sqft | Value: | $584,207 |
| Bathrooms: | 3 | Bedrooms: | 3 | | Ceiling: | DRYWALL PAINTED | Exterior Wall/Cover: | PLYWD/WD OR ST STUDS | | Floor Covering: | HARDWOOD 100% | Floor Structure: | WOOD W/SUBFLOOR | | Foundation: | CONCRETE | Heating: | FHA GAS | | Interior Finish: | DRYWALL PAINT | Plumbing Fixture Cnt: | 16 | | Roof Slope: | 5" IN 12" | Roof Structure/Cover: | CJ ASPHALT |
|
| | Type | Description | Class CD | Sub Class CD | Year Built | Area |
| | BAS | BASE/MAIN FLOOR | 5 | 0 | 1962 | 2138.6 |
| | OP1 | OPEN PORCH SLAB | 5 | 0 | 1962 | 982.2 |
| | UPS | UPPER STORY | 5 | 0 | 1962 | 834.2 |
| | DGR | DETACHED GARAGE | 5 | 0 | 1962 | 1181.6 |
| Improvement #2: | RESIDENTIAL | State Code: | Y | 1002.0 sqft | Value: | $363,317 |
| Bathrooms: | 2.5 | Bedrooms: | 2 | | Ceiling: | TONGUE & GROOVE | Exterior Wall/Cover: | CEMENT FIBER | | Floor Covering: | HARDWOOD/CARP 60-40 | Floor Structure: | WOOD W/SUBFLOOR | | Foundation: | CONCRETE | Heating: | FHA GAS | | Interior Finish: | DRYWALL PAINT | Plumbing Fixture Cnt: | 14 | | Roof Slope: | 5" IN 12" | Roof Structure/Cover: | BEAM ASPHALT |
|
| | Type | Description | Class CD | Sub Class CD | Year Built | Area |
| | BAS | BASE/MAIN FLOOR | 4 | 0 | 2017 | 499.0 |
| | UPS | UPPER STORY | 4 | 0 | 2017 | 503.0 |
| | AGR | ATTACHED GARAGE | 4 | 0 | 2017 | 491.0 |
| | UTY | STORAGE/UTILITY | 4 | 0 | 2017 | 70.0 |
| | OWP | OPEN WOOD PORCH W/STEPS | 4 | 0 | 2017 | 117.0 |
| | ATU | ATTIC UNFINISHED | 4 | 0 | 2017 | 240.1 |
Sketch
Property Image
Land
| 1 | LB | LOW BANK | 1.5100 | 65775.60 | 90.00 | 0.00 | 1.00 | $2,650,000 | $0 |
| 2 | 55 | TIDES | 0.0000 | 0.00 | 81.00 | 0.00 | 1.00 | $810 | $0 |
Roll Value History
| 2026 | N/A | N/A | N/A | N/A | N/A |
| 2025 | $947,524 | $2,650,810 | $0 | $3,598,334 | $3,598,334 |
| 2024 | $957,497 | $2,650,810 | $0 | $3,608,307 | $3,608,307 |
| 2023 | $967,469 | $2,650,810 | $0 | $3,618,279 | $3,618,279 |
| 2022 | $885,067 | $2,300,810 | $0 | $3,185,877 | $3,185,877 |
| 2021 | $777,482 | $1,600,810 | $0 | $2,378,292 | $2,378,292 |
| 2020 | $753,496 | $1,350,810 | $0 | $2,104,306 | $2,104,306 |
| 2019 | $575,504 | $1,400,810 | $0 | $1,976,314 | $1,976,314 |
| 2018 | $351,633 | $1,461,069 | $0 | $1,812,702 | $1,812,702 |
| 2017 | $270,574 | $1,461,069 | $0 | $1,731,643 | $1,731,643 |
| 2016 | $248,633 | $1,461,069 | $0 | $1,709,702 | $1,709,702 |
| 2015 | $251,773 | $1,461,069 | $0 | $1,712,842 | $1,712,842 |
| 2014 | $255,281 | $1,461,069 | $0 | $1,716,350 | $1,716,350 |
| 2013 | $257,011 | $1,461,069 | $0 | $1,718,080 | $1,718,080 |
| 2012 | $260,165 | $1,461,069 | $0 | $1,721,234 | $1,721,234 |
| 2011 | $263,316 | $1,461,069 | $0 | $1,724,385 | $1,724,385 |
| 2010 | $276,422 | $1,461,069 | $0 | $1,737,491 | $1,737,491 |
| 2009 | $287,971 | $1,739,213 | $0 | $2,027,184 | $2,027,184 |
| 2008 | $284,323 | $1,746,554 | $0 | $2,030,877 | $2,030,877 |
| 2007 | $267,711 | $1,738,646 | $0 | $2,006,357 | $2,006,357 |
Deed and Sales History
| 1 | 12/15/2017 | QCD | Quit Claim Deed | FESTER, DAVID A | FESTER TRUSTEE, DAVID ALAN | | | $0.00 | 32373 | 4436243 |
| 2 | 09/07/1999 | WD | Warranty Deed | CHAPMAN, LAWRENCE E | FESTER, DAVID A | | | $974,950.00 | 93792 | 99021238 |
| 3 | 09/01/1995 | OTHER | Other - Misc. Documents | CHAPMAN, LAWRENCE E | CHAPMAN, LAWRENCE E | | | $6,800.00 | 53216 | 0 |
| 4 | 09/01/1995 | WD | Warranty Deed | CONSTANS, HARRIET E | CHAPMAN, LAWRENCE E | | | $608,200.00 | 53217 | 95014827 |
| 5 | 11/01/1991 | QCD | Quit Claim Deed | CONSTANS, WILLIAM F | CONSTANS, HARRIET E | | | $0.00 | 13982 | 91016974 |
| 6 | 01/01/1900 | OTHER | Other - Misc. Documents | CONSTANS, HARRIETT E | CONSTANS, WILLIAM F | | | $0.00 | 0 | 0 |
| 7 | 01/01/1900 | OTHER | Other - Misc. Documents | Unknown | CONSTANS, HARRIETT E | | | $0.00 | 0 | 0 |
Payout Agreement
| No payout information available.. |