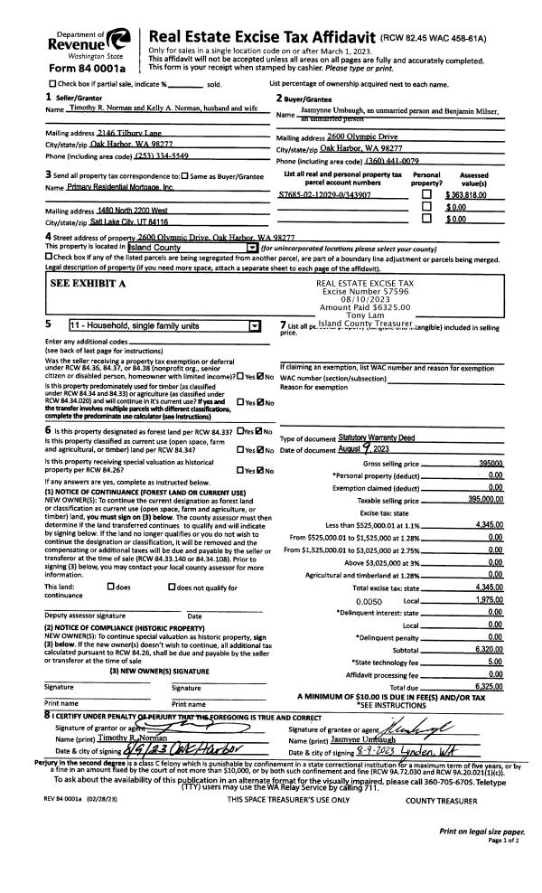
Property
Account |
| Property ID: | 550665 | Abbreviated Legal Description: | N/2 W/2 E/2 SW NW FR PT 330-0750 & 330-0900 |
| Geographic ID: | R13302-360-0810 | Agent Code: | |
| Type: | Real | | |
| Tax Area: | 112 - APPRAISER-OH Schl Dist, outside OH, improved, greater than 1 acre | Land Use Code | 11 |
| Open Space: | N | DFL | N |
| Historic Property: | N | Remodel Property: | N |
| Multi-Family Redevelopment: | N | | |
| Township: | 33 | Section: | 02 |
| Range: | R1 |
Location |
| Address: | 758 SOUNDVIEW LN OAK HARBOR, WA 98277 | Mapsco: | |
| Neighborhood: | Cycle 6 | Map ID: | 195 |
| Neighborhood CD: | 6 |
Owner |
| Name: | WILLIAMS TRUSTEE, JOSEPH | Owner ID: | 274351 |
| Mailing Address: | ILSE WILLIAMS TRUSTEE PO BOX 328 OAK HARBOR, WA 98277 | % Ownership: | 100.0000000000% |
| | | Exemptions: | |
Taxes and Assessment Details
Values
| (+) Improvement Homesite Value: | + | $0 | |
| (+) Improvement Non-Homesite Value: | + | $88,336 | |
| (+) Land Homesite Value: | + | $0 | |
| (+) Land Non-Homesite Value: | + | $340,000 | |
| (+) Curr Use (HS): | + | $0 | $0 |
| (+) Curr Use (NHS): | + | $0 | $0 |
| | | -------------------------- | |
| (=) Market Value: | = | $428,336 | |
| (–) Productivity Loss: | – | $0 | |
| | | -------------------------- | |
| (=) Subtotal: | = | $428,336 | |
| (+) Senior Appraised Value: | + | $0 | |
| (+) Non-Senior Appraised Value: | + | $428,336 | |
| | | -------------------------- | |
| (=) Total Appraised Value: | = | $428,336 | |
| (–) Senior Exemption Loss: | – | $0 | |
| (–) Exemption Loss: | – | $0 | |
| | | -------------------------- | |
| (=) Taxable Value: | = | $428,336 | |
Taxing Jurisdiction
| Owner: | WILLIAMS TRUSTEE, JOSEPH | | |
| % Ownership: | 100.0000000000% | | |
| Total Value: | $428,336 | | |
| Tax Area: | 112 - APPRAISER-OH Schl Dist, outside OH, improved, greater than 1 acre |
| CF | Conservation Futures | 0.0316035091 | $428,336 | $428,336 | $13.54 | | |
| CEM1 | Cemetery #1 | 0.0040320932 | $428,336 | $428,336 | $1.73 | | |
| FIRE2 | Fire & Rescue Dist #2 N Whidbey GEN | 0.5475949600 | $428,336 | $428,336 | $234.55 | | |
| HOBOND | Hospital BOND | 0.1910887512 | $428,336 | $428,336 | $81.85 | | |
| HOGEN | Hospital GEN | 0.3902502903 | $428,336 | $428,336 | $167.16 | | |
| CE | County Current Expense | 0.3708482477 | $428,336 | $428,336 | $158.85 | | |
| CR | County Roads | 0.4584763726 | $428,336 | $428,336 | $196.38 | | |
| ISLANDEMS | Hospital GEN (EMS) | 0.5000000000 | $428,336 | $428,336 | $214.17 | | |
| LIB | Library Sno-Isle GEN | 0.3153421757 | $428,336 | $428,336 | $135.07 | | |
| NWHIDPRMT | P & R N Whidbey GEN | 0.2004466701 | $428,336 | $428,336 | $85.86 | | |
| SCH201MO | School 201 Enrichment | 1.8559231640 | $428,336 | $428,336 | $794.96 | | |
| ST | State School | 1.3035497053 | $428,336 | $428,336 | $558.36 | | |
| ST2 | State School Part 2 | 0.8169543533 | $428,336 | $428,336 | $349.93 | | |
| | Total Tax Rate: | 6.9861102925 | | | | | |
| | | | | Taxes w/Current Exemptions: | $2,992.41 | | |
| | | | | Taxes w/o Exemptions: | $2,992.41 | | |
Improvement / Building
| Improvement #1: | MANUFACTURED HOME | State Code: | Y | 1381.5 sqft | Value: | $88,336 |
| Bathrooms: | 0 | Bedrooms: | 3 | | Ceiling: | PLASTER PAINTED | Cooling: | EVAP NO DUCT | | Exterior Wall/Cover: | VINYL | Floor Covering: | CARPET 100% | | Floor Structure: | SLAB ON GRADE | Foundation: | SLAB | | Heating: | FHA ELECTRIC | Interior Finish: | PLASTER | | Plumbing Fixture Cnt: | 1 | Roof Slope: | FLAT | | Roof Structure/Cover: | CJ ALUMINIUM HEAVY |   |   |
|
| | Type | Description | Class CD | Sub Class CD | Year Built | Area |
| | BAS | BASE/MAIN FLOOR | 4 | 0 | 1999 | 1381.5 |
| | OWP | OPEN WOOD PORCH W/STEPS | 4 | 0 | 1999 | 408.0 |
Sketch
Property Image
Land
| 1 | 32 | AC (03.01-09.99) | 5.0000 | 0.00 | 0.00 | 0.00 | 1.00 | $340,000 | $0 |
Roll Value History
| 2026 | N/A | N/A | N/A | N/A | N/A |
| 2025 | $88,336 | $340,000 | $0 | $428,336 | $428,336 |
| 2024 | $92,985 | $320,000 | $0 | $412,985 | $412,985 |
| 2023 | $83,555 | $320,000 | $0 | $403,555 | $403,555 |
| 2022 | $68,343 | $300,000 | $0 | $368,343 | $368,343 |
| 2021 | $61,281 | $200,000 | $0 | $261,281 | $261,281 |
| 2020 | $61,299 | $160,000 | $0 | $221,299 | $221,299 |
| 2019 | $48,205 | $220,000 | $0 | $268,205 | $268,205 |
| 2018 | $49,582 | $200,000 | $0 | $249,582 | $249,582 |
| 2017 | $50,271 | $155,000 | $0 | $205,271 | $205,271 |
| 2016 | $51,640 | $155,000 | $0 | $206,640 | $206,640 |
| 2015 | $53,017 | $150,000 | $0 | $203,017 | $203,017 |
| 2014 | $54,394 | $150,000 | $0 | $204,394 | $204,394 |
| 2013 | $55,771 | $157,500 | $0 | $213,271 | $213,271 |
| 2012 | $57,148 | $157,500 | $0 | $214,648 | $214,648 |
| 2011 | $58,525 | $175,000 | $0 | $233,525 | $233,525 |
| 2010 | $63,370 | $175,000 | $0 | $238,370 | $238,370 |
| 2009 | $65,984 | $175,000 | $0 | $240,984 | $240,984 |
| 2008 | $67,625 | $175,000 | $0 | $242,625 | $242,625 |
| 2007 | $69,224 | $175,000 | $0 | $244,224 | $244,224 |
Deed and Sales History
| 1 | 03/10/2016 | TRUSTEED | Trustee's Deed | WILLIAMS, JOSEPH C | WILLIAMS TRUSTEE, JOSEPH | | | $0.00 | 23798 | 4397117 |
| 2 | 08/18/1998 | WD | Warranty Deed | HARVEY, YVONNE R | WILLIAMS, JOSEPH C | | | $85,000.00 | 83333 | 98017470 |
| 3 | 06/01/1995 | OTHER | Other - Misc. Documents | CRAIN, YVONNE R | HARVEY, YVONNE R | | | $0.00 | 66498 | 0 |
| 4 | 02/01/1991 | WD | Warranty Deed | SELTVEIT, ARNE | CRAIN, YVONNE R | | | $37,000.00 | 10499 | 91002315 |
| 5 | 11/01/1987 | EZ | Easement | SELTVEIT, ARNE | SELTVEIT, ARNE | | | $0.00 | 62436 | 86006629 |
| 6 | 08/01/1984 | EZ | Easement | SELTVEIT, ARNE | SELTVEIT, ARNE | | | $0.00 | 60738 | 424736 |
| 7 | 08/01/1982 | QCD | Quit Claim Deed | SELTVEIT, ARNE | SELTVEIT, ARNE | | | $0.00 | 59615 | 399569 |
| 8 | 03/01/1981 | QCD | Quit Claim Deed | WILLIAMS, JOSEPH C | SELTVEIT, ARNE | | | $0.00 | 10752 | 380579 |
| 9 | 01/01/1900 | OTHER | Other - Misc. Documents | WILLIAMS, JOSEPH C | WILLIAMS, JOSEPH C | | | $0.00 | 83333 | 98017470 |
| 10 | 01/01/1900 | OTHER | Other - Misc. Documents | Unknown | WILLIAMS, JOSEPH C | | | $0.00 | 0 | 0 |
Payout Agreement
| No payout information available.. |