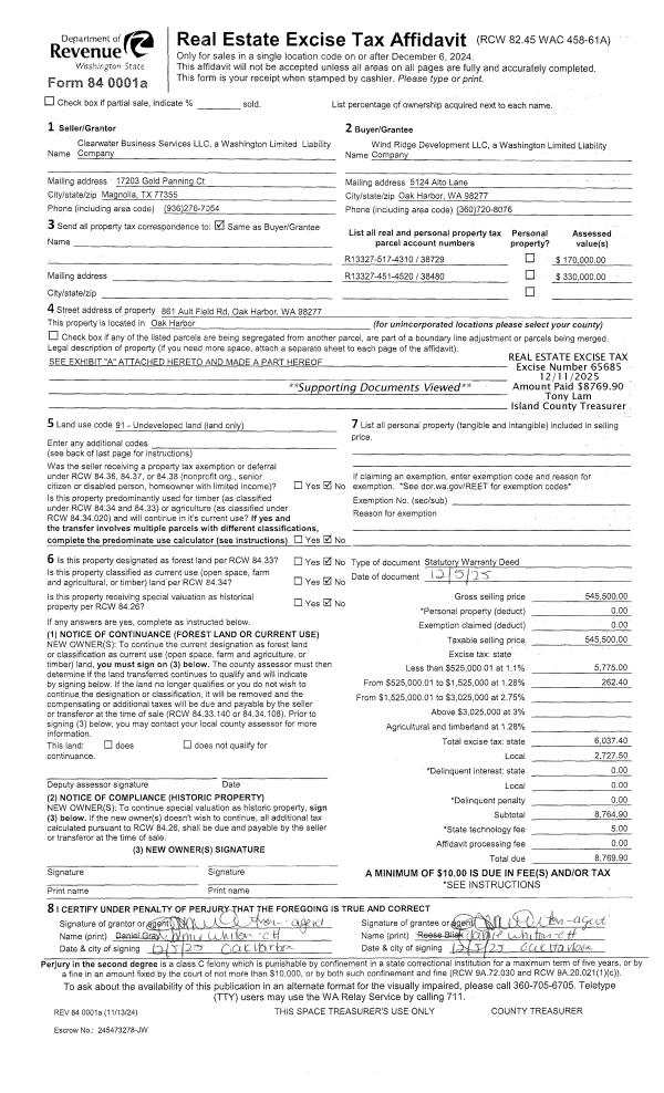
Property
Account |
| Property ID: | 550692 | Abbreviated Legal Description: | TR A SP81-18.13111.017-4630 V1 SP P124 AF#392987 (N/2 S/2 S/2 SE SE EX RD) |
| Geographic ID: | R13111-024-4630 | Agent Code: | |
| Type: | Real | | |
| Tax Area: | 312 - APPRAISER-Cpvl Schl Dist, outside Cpvl, improved, greater than 1 acre | Land Use Code | 11 |
| Open Space: | N | DFL | N |
| Historic Property: | N | Remodel Property: | N |
| Multi-Family Redevelopment: | N | | |
| Township: | 31 | Section: | 11 |
| Range: | R1 |
Location |
| Address: | 780 KEYSTONE RD COUPEVILLE, WA 98239 | Mapsco: | |
| Neighborhood: | Cycle 2 | Map ID: | 51 |
| Neighborhood CD: | 2 |
Owner |
| Name: | CROWN, JUDITH A | Owner ID: | 274882 |
| Mailing Address: | FRANCIS J CROWN JR PO BOX 278 CAPSHAW, AL 35742 | % Ownership: | 100.0000000000% |
| | | Exemptions: | |
Taxes and Assessment Details
Values
| (+) Improvement Homesite Value: | + | $41,951 | |
| (+) Improvement Non-Homesite Value: | + | $0 | |
| (+) Land Homesite Value: | + | $340,100 | |
| (+) Land Non-Homesite Value: | + | $0 | |
| (+) Curr Use (HS): | + | $0 | $0 |
| (+) Curr Use (NHS): | + | $0 | $0 |
| | | -------------------------- | |
| (=) Market Value: | = | $382,051 | |
| (–) Productivity Loss: | – | $0 | |
| | | -------------------------- | |
| (=) Subtotal: | = | $382,051 | |
| (+) Senior Appraised Value: | + | $0 | |
| (+) Non-Senior Appraised Value: | + | $382,051 | |
| | | -------------------------- | |
| (=) Total Appraised Value: | = | $382,051 | |
| (–) Senior Exemption Loss: | – | $0 | |
| (–) Exemption Loss: | – | $0 | |
| | | -------------------------- | |
| (=) Taxable Value: | = | $382,051 | |
Taxing Jurisdiction
| Owner: | CROWN, JUDITH A | | |
| % Ownership: | 100.0000000000% | | |
| Total Value: | $382,051 | | |
| Tax Area: | 312 - APPRAISER-Cpvl Schl Dist, outside Cpvl, improved, greater than 1 acre |
| CF | Conservation Futures | 0.0316035091 | $382,051 | $382,051 | $12.07 | | |
| CEM2 | Cemetery #2 | 0.0095056933 | $382,051 | $382,051 | $3.63 | | |
| FIRE5 | Fire & Rescue Dist #5 C Whidbey GEN | 1.2008080668 | $382,051 | $382,051 | $458.77 | | |
| FIRE5BOND | Fire & Rescue Dist #5 C Whidbey BOND | 0.1400090713 | $382,051 | $382,051 | $53.49 | | |
| HOBOND | Hospital BOND | 0.1910887512 | $382,051 | $382,051 | $73.01 | | |
| HOGEN | Hospital GEN | 0.3902502903 | $382,051 | $382,051 | $149.10 | | |
| CE | County Current Expense | 0.3708482477 | $382,051 | $382,051 | $141.68 | | |
| CR | County Roads | 0.4584763726 | $382,051 | $382,051 | $175.16 | | |
| ISLANDEMS | Hospital GEN (EMS) | 0.5000000000 | $382,051 | $382,051 | $191.03 | | |
| LIB | Library Sno-Isle GEN | 0.3153421757 | $382,051 | $382,051 | $120.48 | | |
| LIBCAP | Library Sno-Isle BOND (Cap Fac Imp Area) | 0.0543427938 | $382,051 | $382,051 | $20.76 | | |
| POCOUP | Port of Coupeville GEN | 0.1093371703 | $382,051 | $382,051 | $41.77 | | |
| POCOUPIDD | Port of Coupeville IDD | 0.3409740022 | $382,051 | $382,051 | $130.27 | | |
| COUPSDTECH | School 204 CP (TECH) | 0.7545480007 | $382,051 | $382,051 | $288.28 | | |
| SCH204MO | School 204 Enrichment | 0.6716186034 | $382,051 | $382,051 | $256.59 | | |
| ST | State School | 1.3035497053 | $382,051 | $382,051 | $498.02 | | |
| ST2 | State School Part 2 | 0.8169543533 | $382,051 | $382,051 | $312.12 | | |
| | Total Tax Rate: | 7.6592568070 | | | | | |
| | | | | Taxes w/Current Exemptions: | $2,926.23 | | |
| | | | | Taxes w/o Exemptions: | $2,926.23 | | |
Improvement / Building
| Improvement #1: | MANUFACTURED HOME | State Code: | Y | 1336.0 sqft | Value: | $41,951 |
| Bathrooms: | 0 | Bedrooms: | 0 | | Ceiling: | PLASTER PAINTED | Cooling: | EVAP NO DUCT | | Exterior Wall/Cover: | VINYL | Floor Covering: | CARPET 100% | | Floor Structure: | SLAB ON GRADE | Foundation: | SLAB | | Heating: | FHA ELECTRIC | Interior Finish: | PLASTER | | Plumbing Fixture Cnt: | 1 | Roof Slope: | FLAT | | Roof Structure/Cover: | CJ ALUMINIUM HEAVY |   |   |
|
| | Type | Description | Class CD | Sub Class CD | Year Built | Area |
| | BAS | BASE/MAIN FLOOR | 4 | 0 | 1973 | 1336.0 |
| | OWC | OPEN WOOD PORCH W/STEPS/ROOF/C | 4 | 0 | 1973 | 7.5 |
| | OWP | OPEN WOOD PORCH W/STEPS | 4 | 0 | 1973 | 144.0 |
| | ENP | ENCLOSED PORCH | 4 | 0 | 1973 | 384.0 |
Sketch
Property Image
Land
| 1 | HS | HOMESITE | 1.0000 | 43560.00 | 0.00 | 0.00 | 1.00 | $220,000 | $0 |
| 2 | 91 | UNDEVELOPED LAND-METES AND BOUNDS | 4.0200 | 175111.20 | 0.00 | 0.00 | 1.00 | $120,100 | $0 |
Roll Value History
| 2026 | N/A | N/A | N/A | N/A | N/A |
| 2025 | $41,951 | $340,100 | $0 | $382,051 | $382,051 |
| 2024 | $41,951 | $300,000 | $0 | $341,951 | $341,951 |
| 2023 | $39,796 | $280,000 | $0 | $319,796 | $319,796 |
| 2022 | $37,538 | $260,000 | $0 | $297,538 | $297,538 |
| 2021 | $35,252 | $170,000 | $0 | $205,252 | $205,252 |
| 2020 | $35,492 | $160,000 | $0 | $195,492 | $195,492 |
| 2019 | $29,957 | $230,000 | $0 | $259,957 | $259,957 |
| 2018 | $29,866 | $200,000 | $0 | $229,866 | $229,866 |
| 2017 | $30,541 | $200,000 | $0 | $230,541 | $230,541 |
| 2016 | $31,891 | $150,000 | $0 | $181,891 | $181,891 |
| 2015 | $32,566 | $125,500 | $0 | $158,066 | $75,944 |
| 2014 | $33,916 | $125,500 | $0 | $159,416 | $125,944 |
| 2013 | $34,590 | $108,486 | $0 | $143,076 | $126,430 |
| 2012 | $41,457 | $108,486 | $0 | $149,943 | $138,420 |
| 2011 | $42,807 | $120,540 | $0 | $163,347 | $88,474 |
| 2010 | $55,253 | $120,540 | $0 | $175,793 | $88,474 |
| 2009 | $45,129 | $135,600 | $135,600 | $180,729 | $75,944 |
| 2008 | $181,634 | $135,600 | $135,600 | $181,634 | $50,377 |
| 2007 | $170,671 | $123,783 | $123,783 | $170,671 | $50,377 |
Deed and Sales History
| 1 | 05/20/2016 | ESTSEPPROP | Establish Separate Property | HAY LE, MARGARET I | CROWN, JUDITH A | | | | 0 | 4209124 |
| 2 | 08/07/2007 | QCD | Quit Claim Deed | HAY, WILLIAM E | HAY LE, MARGARET I | | | $0.00 | 72707 | 4209124 |
| 3 | 08/01/1990 | OTHER | Other - Misc. Documents | BECKER, MARY L | HAY, WILLIAM E | | | $20,000.00 | 4819 | 0 |
| 4 | 08/01/1990 | WD | Warranty Deed | HAY, WILLIAM E | HAY, WILLIAM E | | | $32,500.00 | 4820 | 90015996 |
| 5 | 08/01/1982 | CD | DNU - Correction Deed | BECKER, MARY L | BECKER, MARY L | | | $0.00 | 59376 | 0 |
| 6 | 05/01/1980 | CD | DNU - Correction Deed | BECKER, MARY L | BECKER, MARY L | | | $0.00 | 1828 | 369323 |
| 7 | 11/01/1979 | OTHER | Other - Misc. Documents | HAY, MARGARET I | BECKER, MARY L | | | $16,500.00 | 95480 | 0 |
| 8 | 01/01/1900 | OTHER | Other - Misc. Documents | Unknown | HAY, MARGARET I | | | $0.00 | 0 | 0 |
Payout Agreement
| No payout information available.. |