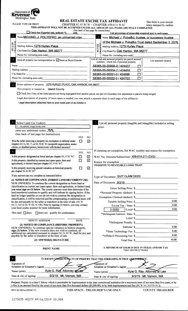
Property
Account |
| Property ID: | 55184 | Abbreviated Legal Description: | 30 - IN GL4 SEC 22-29-2E & GL1 SEC 27-29-2E: BG 2054 .39'WLY FR SECR GL4 N88*W 122.42' N63*W96.61' N34*E50 TPB MST NLY CR JACKSON TR AF#150220 N63*W TO GL LN GL4 NLY ALG SD LN TO SWLY CR BATES TR AF#103692 S63*E 257' M/L TO SECR SD TR S34*W TO MST ELY CR |
| Geographic ID: | R22922-007-0510 | Agent Code: | |
| Type: | Real | | |
| Tax Area: | 710 - APPRAISER-S Whid Schl Dist, outside Langley, improved & 1 acre or less | Land Use Code | 11 |
| Open Space: | N | DFL | N |
| Historic Property: | N | Remodel Property: | N |
| Multi-Family Redevelopment: | N | | |
| Township: | 29 | Section: | 22 |
| Range: | R2 |
Location |
| Address: | 6398 BAY RD FREELAND, WA 98249 | Mapsco: | |
| Neighborhood: | Cycle 3 | Map ID: | 334 |
| Neighborhood CD: | 3 |
Owner |
| Name: | ARNOLD (50%), JANE R | Owner ID: | 292205 |
| Mailing Address: | HILLBAY, LLC (25%) MARGOT MCLAUGHLIN (25%) 4600 NE 40TH ST SEATTLE, WA 98105 | % Ownership: | 100.0000000000% |
| | | Exemptions: | |
Taxes and Assessment Details
Values
| (+) Improvement Homesite Value: | + | $0 | |
| (+) Improvement Non-Homesite Value: | + | $137,653 | |
| (+) Land Homesite Value: | + | $0 | |
| (+) Land Non-Homesite Value: | + | $1,300,500 | |
| (+) Curr Use (HS): | + | $0 | $0 |
| (+) Curr Use (NHS): | + | $0 | $0 |
| | | -------------------------- | |
| (=) Market Value: | = | $1,438,153 | |
| (–) Productivity Loss: | – | $0 | |
| | | -------------------------- | |
| (=) Subtotal: | = | $1,438,153 | |
| (+) Senior Appraised Value: | + | $0 | |
| (+) Non-Senior Appraised Value: | + | $1,438,153 | |
| | | -------------------------- | |
| (=) Total Appraised Value: | = | $1,438,153 | |
| (–) Senior Exemption Loss: | – | $0 | |
| (–) Exemption Loss: | – | $0 | |
| | | -------------------------- | |
| (=) Taxable Value: | = | $1,438,153 | |
Taxing Jurisdiction
| Owner: | ARNOLD (50%), JANE R | | |
| % Ownership: | 100.0000000000% | | |
| Total Value: | $1,438,153 | | |
| Tax Area: | 710 - APPRAISER-S Whid Schl Dist, outside Langley, improved & 1 acre or less |
| CF | Conservation Futures | 0.0316035091 | $1,438,153 | $1,438,153 | $45.45 | | |
| FIRE3 | Fire & Rescue Dist #3 S Whidbey GEN | 1.2004855531 | $1,438,153 | $1,438,153 | $1,726.48 | | |
| HOBOND | Hospital BOND | 0.1910887512 | $1,438,153 | $1,438,153 | $274.81 | | |
| HOGEN | Hospital GEN | 0.3902502903 | $1,438,153 | $1,438,153 | $561.24 | | |
| CE | County Current Expense | 0.3708482477 | $1,438,153 | $1,438,153 | $533.34 | | |
| CR | County Roads | 0.4584763726 | $1,438,153 | $1,438,153 | $659.36 | | |
| ISLANDEMS | Hospital GEN (EMS) | 0.5000000000 | $1,438,153 | $1,438,153 | $719.08 | | |
| LIB | Library Sno-Isle GEN | 0.3153421757 | $1,438,153 | $1,438,153 | $453.51 | | |
| PORTWHID | Port of S Whidbey GEN | 0.1094540357 | $1,438,153 | $1,438,153 | $157.41 | | |
| SCH206BOND | School 206 BOND | 0.3161759235 | $1,438,153 | $1,438,153 | $454.71 | | |
| SCH206MO | School 206 Enrichment | 0.4547169547 | $1,438,153 | $1,438,153 | $653.95 | | |
| ST | State School | 1.3035497053 | $1,438,153 | $1,438,153 | $1,874.70 | | |
| ST2 | State School Part 2 | 0.8169543533 | $1,438,153 | $1,438,153 | $1,174.91 | | |
| SWHIDPRBD | P & R S Whidbey BOND | 0.0152817568 | $1,438,153 | $1,438,153 | $21.98 | | |
| SWHIDPRBD2 | P & R S Whidbey BOND2 | 0.0138911264 | $1,438,153 | $1,438,153 | $19.98 | | |
| SWHIDPRMT | P & R S Whidbey GEN | 0.2053334452 | $1,438,153 | $1,438,153 | $295.30 | | |
| | Total Tax Rate: | 6.6934522006 | | | | | |
| | | | | Taxes w/Current Exemptions: | $9,626.21 | | |
| | | | | Taxes w/o Exemptions: | $9,626.21 | | |
Improvement / Building
| Improvement #1: | RESIDENTIAL | State Code: | Y | 960.0 sqft | Value: | $137,653 |
| Bathrooms: | 1 | Bedrooms: | 2 | | Ceiling: | DRYWALL PAINTED | Exterior Wall/Cover: | PLY/HARDBOARD T-111 | | Floor Covering: | CARPET/VINYL 80-20 | Floor Structure: | WOOD W/SUBFLOOR | | Foundation: | CONCRETE | Heating: | BASEBOARD ELECTRIC | | Interior Finish: | DRYWALL PAINT | Plumbing Fixture Cnt: | 6 | | Roof Slope: | 3" IN 12" | Roof Structure/Cover: | BEAM BUILT-UP ROCK |
|
| | Type | Description | Class CD | Sub Class CD | Year Built | Area |
| | BAS | BASE/MAIN FLOOR | 3 | 0 | 1963 | 960.0 |
| | DGR | DETACHED GARAGE | 3 | 0 | 1963 | 400.0 |
| | OWP | OPEN WOOD PORCH W/STEPS | 3 | 0 | 1963 | 352.0 |
| | OWP | OPEN WOOD PORCH W/STEPS | 3 | 0 | 1963 | 321.0 |
| | OWR | OPEN WOOD PORCH W/STEPS/ROOF | 3 | 0 | 1963 | 128.0 |
Sketch
Property Image
Land
| 1 | LB | LOW BANK | 0.2300 | 10018.80 | 50.00 | 0.00 | 1.00 | $1,300,000 | $0 |
| 2 | 55 | TIDES | 0.0000 | 0.00 | 50.00 | 0.00 | 1.00 | $500 | $0 |
Roll Value History
| 2026 | N/A | N/A | N/A | N/A | N/A |
| 2025 | $137,653 | $1,300,500 | $0 | $1,438,153 | $1,438,153 |
| 2024 | $142,948 | $1,100,500 | $0 | $1,243,448 | $1,243,448 |
| 2023 | $145,361 | $1,100,500 | $0 | $1,245,861 | $1,245,861 |
| 2022 | $133,814 | $1,050,500 | $0 | $1,184,314 | $1,184,314 |
| 2021 | $118,256 | $800,500 | $0 | $918,756 | $918,756 |
| 2020 | $115,642 | $675,500 | $0 | $791,142 | $791,142 |
| 2019 | $69,476 | $725,500 | $0 | $794,976 | $794,976 |
| 2018 | $69,796 | $700,500 | $0 | $770,296 | $770,296 |
| 2017 | $70,436 | $700,500 | $0 | $770,936 | $770,936 |
| 2016 | $71,718 | $700,500 | $0 | $772,218 | $772,218 |
| 2015 | $72,997 | $700,500 | $0 | $773,497 | $773,497 |
| 2014 | $74,278 | $700,500 | $0 | $774,778 | $774,778 |
| 2013 | $74,134 | $773,896 | $0 | $848,030 | $848,030 |
| 2012 | $75,492 | $773,896 | $0 | $849,388 | $849,388 |
| 2011 | $76,850 | $773,896 | $0 | $850,746 | $850,746 |
| 2010 | $85,171 | $773,896 | $0 | $859,067 | $859,067 |
| 2009 | $89,058 | $925,075 | $0 | $1,014,133 | $1,014,133 |
| 2008 | $85,832 | $1,058,748 | $0 | $1,144,580 | $1,144,580 |
| 2007 | $81,609 | $1,058,398 | $0 | $1,140,007 | $1,140,007 |
Deed and Sales History
| 1 | 10/11/2019 | QCD | Quit Claim Deed | ARNOLD, JANE R | ARNOLD (50%), JANE R | | | $0.00 | 40684 | 4473304 |
| 2 | 08/27/2019 | TRUSTEED | Trustee's Deed | ARNOLD, JANE R | ARNOLD, JANE R | | | $0.00 | 40263 | 4471405 |
| 3 | 12/13/2000 | QCD | Quit Claim Deed | ARNOLD, JANE R | ARNOLD, JANE R & | | | $0.00 | 4695 | 20022047 |
| 4 | 08/01/1990 | WD | Warranty Deed | ARNOLD, JANE R | ARNOLD, JANE R | | | $300,000.00 | 4604 | 90015259 |
| 5 | 08/01/1990 | QCD | Quit Claim Deed | GRIGWARE, JOSEPHINE | ARNOLD, JANE R | | | $0.00 | 4603 | 90015258 |
| 6 | 01/01/1900 | OTHER | Other - Misc. Documents | GRIGWARE, JOSEPHINE | GRIGWARE, JOSEPHINE | | | $0.00 | 0 | 0 |
| 7 | 01/01/1900 | OTHER | Other - Misc. Documents | Unknown | GRIGWARE, JOSEPHINE | | | $0.00 | 58872 | 0 |
Payout Agreement
| No payout information available.. |