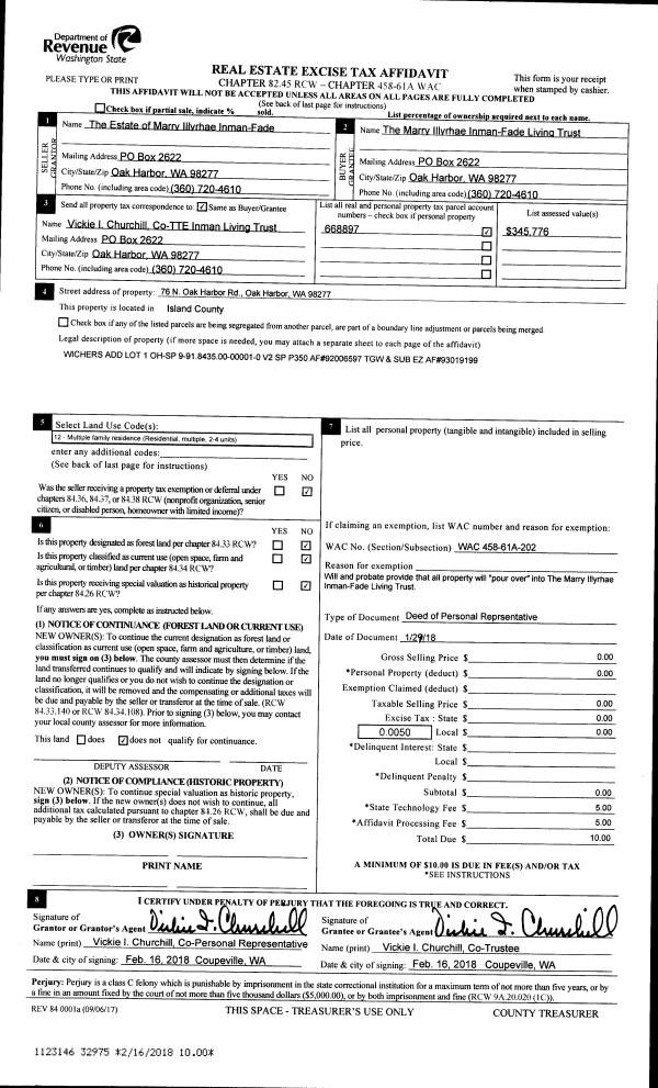
Property
Account |
| Property ID: | 55362 | Abbreviated Legal Description: | 34 - IN GL4: BG PT ON SLN GL4 2054.39'W OF SECR SD GL N34*E346.49' TPB N63*W257' TO HITIDLN N34*E50' S63*E 257' TP N34*E FR TPB S34*W 50' TPB INCL ADJ TIDES |
| Geographic ID: | R22922-038-0700 | Agent Code: | |
| Type: | Real | | |
| Tax Area: | 710 - APPRAISER-S Whid Schl Dist, outside Langley, improved & 1 acre or less | Land Use Code | 11 |
| Open Space: | N | DFL | N |
| Historic Property: | N | Remodel Property: | N |
| Multi-Family Redevelopment: | N | | |
| Township: | 29 | Section: | 22 |
| Range: | R2 |
Location |
| Address: | 6376 BAY RD FREELAND, WA 98249 | Mapsco: | |
| Neighborhood: | Cycle 3 | Map ID: | 334 |
| Neighborhood CD: | 3 |
Owner |
| Name: | LAMBERT, KENT CONRAD | Owner ID: | 282873 |
| Mailing Address: | PO BOX 785 FREELAND, WA 98249 | % Ownership: | 100.0000000000% |
| | | Exemptions: | |
Taxes and Assessment Details
Values
| (+) Improvement Homesite Value: | + | $0 | |
| (+) Improvement Non-Homesite Value: | + | $195,939 | |
| (+) Land Homesite Value: | + | $0 | |
| (+) Land Non-Homesite Value: | + | $1,300,500 | |
| (+) Curr Use (HS): | + | $0 | $0 |
| (+) Curr Use (NHS): | + | $0 | $0 |
| | | -------------------------- | |
| (=) Market Value: | = | $1,496,439 | |
| (–) Productivity Loss: | – | $0 | |
| | | -------------------------- | |
| (=) Subtotal: | = | $1,496,439 | |
| (+) Senior Appraised Value: | + | $0 | |
| (+) Non-Senior Appraised Value: | + | $1,496,439 | |
| | | -------------------------- | |
| (=) Total Appraised Value: | = | $1,496,439 | |
| (–) Senior Exemption Loss: | – | $0 | |
| (–) Exemption Loss: | – | $0 | |
| | | -------------------------- | |
| (=) Taxable Value: | = | $1,496,439 | |
Taxing Jurisdiction
| Owner: | LAMBERT, KENT CONRAD | | |
| % Ownership: | 100.0000000000% | | |
| Total Value: | $1,496,439 | | |
| Tax Area: | 710 - APPRAISER-S Whid Schl Dist, outside Langley, improved & 1 acre or less |
| CF | Conservation Futures | 0.0316035091 | $1,496,439 | $1,496,439 | $47.29 | | |
| FIRE3 | Fire & Rescue Dist #3 S Whidbey GEN | 1.2004855531 | $1,496,439 | $1,496,439 | $1,796.45 | | |
| HOBOND | Hospital BOND | 0.1910887512 | $1,496,439 | $1,496,439 | $285.95 | | |
| HOGEN | Hospital GEN | 0.3902502903 | $1,496,439 | $1,496,439 | $583.99 | | |
| CE | County Current Expense | 0.3708482477 | $1,496,439 | $1,496,439 | $554.95 | | |
| CR | County Roads | 0.4584763726 | $1,496,439 | $1,496,439 | $686.08 | | |
| ISLANDEMS | Hospital GEN (EMS) | 0.5000000000 | $1,496,439 | $1,496,439 | $748.22 | | |
| LIB | Library Sno-Isle GEN | 0.3153421757 | $1,496,439 | $1,496,439 | $471.89 | | |
| PORTWHID | Port of S Whidbey GEN | 0.1094540357 | $1,496,439 | $1,496,439 | $163.79 | | |
| SCH206BOND | School 206 BOND | 0.3161759235 | $1,496,439 | $1,496,439 | $473.14 | | |
| SCH206MO | School 206 Enrichment | 0.4547169547 | $1,496,439 | $1,496,439 | $680.46 | | |
| ST | State School | 1.3035497053 | $1,496,439 | $1,496,439 | $1,950.68 | | |
| ST2 | State School Part 2 | 0.8169543533 | $1,496,439 | $1,496,439 | $1,222.52 | | |
| SWHIDPRBD | P & R S Whidbey BOND | 0.0152817568 | $1,496,439 | $1,496,439 | $22.87 | | |
| SWHIDPRBD2 | P & R S Whidbey BOND2 | 0.0138911264 | $1,496,439 | $1,496,439 | $20.79 | | |
| SWHIDPRMT | P & R S Whidbey GEN | 0.2053334452 | $1,496,439 | $1,496,439 | $307.27 | | |
| | Total Tax Rate: | 6.6934522006 | | | | | |
| | | | | Taxes w/Current Exemptions: | $10,016.34 | | |
| | | | | Taxes w/o Exemptions: | $10,016.34 | | |
Improvement / Building
| Improvement #1: | RESIDENTIAL | State Code: | Y | 1560.0 sqft | Value: | $195,939 |
| Bathrooms: | 1 | Bedrooms: | 1 | | Ceiling: | TONGUE & GROOVE | Exterior Wall/Cover: | WOOD SIDING | | Floor Covering: | VINYL 100% | Floor Structure: | WOOD W/SUBFLOOR | | Foundation: | CONCRETE BLOCKS | Heating: | BASEBOARD ELECTRIC | | Interior Finish: | PLASTER | Plumbing Fixture Cnt: | 8 | | Roof Slope: | 4" IN 12" | Roof Structure/Cover: | BEAM BUILT-UP ROCK |
|
| | Type | Description | Class CD | Sub Class CD | Year Built | Area |
| | BAS | BASE/MAIN FLOOR | 3 | 0 | 1961 | 1080.0 |
| | OP1 | OPEN PORCH SLAB | 3 | 0 | 1961 | 452.0 |
| | OWP | OPEN WOOD PORCH W/STEPS | 3 | 0 | 1961 | 324.0 |
| | OWC | OPEN WOOD PORCH W/STEPS/ROOF/C | 3 | 0 | 1961 | 30.0 |
| | BAS | BASE/MAIN FLOOR | 3 | 0 | 1961 | 480.0 |
| | OP4 | OPEN PORCH W/CEILING-ROOF | 3 | 0 | 1961 | 192.5 |
Sketch
Property Image
Land
| 1 | LB | LOW BANK | 0.3000 | 13068.00 | 50.00 | 0.00 | 1.00 | $1,300,000 | $0 |
| 2 | 55 | TIDES | 0.0000 | 0.00 | 50.00 | 0.00 | 1.00 | $500 | $0 |
Roll Value History
| 2026 | N/A | N/A | N/A | N/A | N/A |
| 2025 | $195,939 | $1,300,500 | $0 | $1,496,439 | $1,496,439 |
| 2024 | $203,229 | $1,100,500 | $0 | $1,303,729 | $1,303,729 |
| 2023 | $206,493 | $1,100,500 | $0 | $1,306,993 | $1,306,993 |
| 2022 | $189,940 | $1,050,500 | $0 | $1,240,440 | $1,240,440 |
| 2021 | $167,741 | $800,500 | $0 | $968,241 | $968,241 |
| 2020 | $164,203 | $675,500 | $0 | $839,703 | $839,703 |
| 2019 | $114,468 | $725,500 | $0 | $839,968 | $839,968 |
| 2018 | $114,914 | $700,500 | $0 | $815,414 | $815,414 |
| 2017 | $108,046 | $700,500 | $0 | $808,546 | $808,546 |
| 2016 | $109,708 | $700,500 | $0 | $810,208 | $810,208 |
| 2015 | $111,371 | $700,500 | $0 | $811,871 | $811,871 |
| 2014 | $113,031 | $700,500 | $0 | $813,531 | $813,531 |
| 2013 | $113,599 | $773,896 | $0 | $887,495 | $887,495 |
| 2012 | $115,386 | $773,896 | $0 | $889,282 | $889,282 |
| 2011 | $117,171 | $773,896 | $0 | $891,067 | $891,067 |
| 2010 | $128,998 | $773,896 | $0 | $902,894 | $902,894 |
| 2009 | $134,296 | $925,075 | $0 | $1,059,371 | $1,059,371 |
| 2008 | $123,717 | $1,058,748 | $0 | $1,182,465 | $1,182,465 |
| 2007 | $124,762 | $1,058,398 | $0 | $1,183,160 | $1,183,160 |
Deed and Sales History
| 1 | 11/06/2017 | QCD | Quit Claim Deed | LAMBERT, KENT C | LAMBERT, KENT CONRAD | | | $0.00 | 31879 | 4433935 |
| 2 | 04/01/1995 | PRD | Personal Representatives Deed | LAMBERT, WILLIAM S | LAMBERT, KENT C | | | $0.00 | 51456 | 95006801 |
| 3 | 11/01/1983 | PACD | Purchaser's Assignment | LAMBERT, WILLIAM S | LAMBERT, WILLIAM S | | | $0.00 | 33587 | 418466 |
| 4 | 01/01/1900 | OTHER | Other - Misc. Documents | Unknown | LAMBERT, WILLIAM S | | | $0.00 | 0 | 0 |
Payout Agreement
| No payout information available.. |