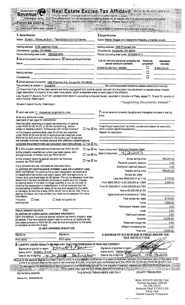
Property
Account |
| Property ID: | 555045 | Abbreviated Legal Description: | REPLACES 175 6700 16 - S/2 N/2 S/2 NW SW EX RD |
| Geographic ID: | R33217-175-0670 | Agent Code: | |
| Type: | Real | | |
| Tax Area: | 512 - APPRAISER-Stan/Cam Schl Dist, improved, greater than 1 acre | Land Use Code | 11 |
| Open Space: | N | DFL | N |
| Historic Property: | N | Remodel Property: | N |
| Multi-Family Redevelopment: | N | | |
| Township: | 32 | Section: | 17 |
| Range: | R3 |
Location |
| Address: | 1331 ROLFSON RD CAMANO ISLAND, WA 98282 | Mapsco: | |
| Neighborhood: | North Camano | Map ID: | 953 |
| Neighborhood CD: | 06-C |
Owner |
| Name: | BROWN, KEITH R | Owner ID: | 28709 |
| Mailing Address: | 1331 ROLFSON RD CAMANO ISLAND, WA 98282-8789 | % Ownership: | 100.0000000000% |
| | | Exemptions: | |
Taxes and Assessment Details
Values
| (+) Improvement Homesite Value: | + | $0 | |
| (+) Improvement Non-Homesite Value: | + | $239,012 | |
| (+) Land Homesite Value: | + | $0 | |
| (+) Land Non-Homesite Value: | + | $330,000 | |
| (+) Curr Use (HS): | + | $0 | $0 |
| (+) Curr Use (NHS): | + | $0 | $0 |
| | | -------------------------- | |
| (=) Market Value: | = | $569,012 | |
| (–) Productivity Loss: | – | $0 | |
| | | -------------------------- | |
| (=) Subtotal: | = | $569,012 | |
| (+) Senior Appraised Value: | + | $0 | |
| (+) Non-Senior Appraised Value: | + | $569,012 | |
| | | -------------------------- | |
| (=) Total Appraised Value: | = | $569,012 | |
| (–) Senior Exemption Loss: | – | $0 | |
| (–) Exemption Loss: | – | $0 | |
| | | -------------------------- | |
| (=) Taxable Value: | = | $569,012 | |
Taxing Jurisdiction
| Owner: | BROWN, KEITH R | | |
| % Ownership: | 100.0000000000% | | |
| Total Value: | $569,012 | | |
| Tax Area: | 512 - APPRAISER-Stan/Cam Schl Dist, improved, greater than 1 acre |
| CF | Conservation Futures | 0.0316035091 | $569,012 | $569,012 | $17.98 | | |
| EMS1 | Fire & Rescue Dist #1 Camano GEN (EMS) | 0.3677864386 | $569,012 | $569,012 | $209.27 | | |
| FIRE1 | Fire & Rescue Dist #1 Camano GEN | 1.2502910536 | $569,012 | $569,012 | $711.43 | | |
| FIRE1BOND | Fire & Rescue Dist #1 Camano BOND | 0.1570001679 | $569,012 | $569,012 | $89.33 | | |
| CE | County Current Expense | 0.3708482477 | $569,012 | $569,012 | $211.02 | | |
| CR | County Roads | 0.4584763726 | $569,012 | $569,012 | $260.88 | | |
| LCIB | Library Sno-Isle BOND (Camano Island) | 0.0396325772 | $569,012 | $569,012 | $22.55 | | |
| LIB | Library Sno-Isle GEN | 0.3153421757 | $569,012 | $569,012 | $179.43 | | |
| SCH205_401 | School 205-401 Enrichment | 1.2698420524 | $569,012 | $569,012 | $722.56 | | |
| SCH205BOND | School 205-401 BOND | 0.9396497583 | $569,012 | $569,012 | $534.67 | | |
| ST | State School | 1.3035497053 | $569,012 | $569,012 | $741.74 | | |
| ST2 | State School Part 2 | 0.8169543533 | $569,012 | $569,012 | $464.86 | | |
| | Total Tax Rate: | 7.3209764117 | | | | | |
| | | | | Taxes w/Current Exemptions: | $4,165.72 | | |
| | | | | Taxes w/o Exemptions: | $4,165.72 | | |
Improvement / Building
| Improvement #1: | RESIDENTIAL | State Code: | Y | 1977.0 sqft | Value: | $239,012 |
| Bathrooms: | 2 | Bedrooms: | 3 | | Ceiling: | DRYWALL PAINTED | Exterior Wall/Cover: | WOOD SIDING | | Floor Covering: | CARPET/VINYL 80-20 | Floor Structure: | SLAB ON GRADE | | Foundation: | CONCRETE | Heating: | WALL HEAT ELECTRIC | | Interior Finish: | DRYWALL PAINT | Plumbing Fixture Cnt: | 9 | | Roof Slope: | 4" IN 12" | Roof Structure/Cover: | CJ ASPHALT |
|
| | Type | Description | Class CD | Sub Class CD | Year Built | Area |
| | BAS | BASE/MAIN FLOOR | 3 | 0 | 1971 | 1977.0 |
| | OP1 | OPEN PORCH SLAB | 3 | 0 | 1971 | 525.0 |
Sketch
Property Image
Land
| 1 | 32 | AC (03.01-09.99) | 4.8900 | 0.00 | 0.00 | 0.00 | 1.00 | $330,000 | $0 |
Roll Value History
| 2026 | N/A | N/A | N/A | N/A | N/A |
| 2025 | $239,012 | $330,000 | $0 | $569,012 | $569,012 |
| 2024 | $242,106 | $340,000 | $0 | $582,106 | $582,106 |
| 2023 | $245,200 | $320,000 | $0 | $565,200 | $565,200 |
| 2022 | $213,616 | $300,000 | $0 | $513,616 | $513,616 |
| 2021 | $188,193 | $190,000 | $0 | $378,193 | $378,193 |
| 2020 | $183,748 | $190,000 | $0 | $373,748 | $373,748 |
| 2019 | $140,056 | $220,000 | $0 | $360,056 | $360,056 |
| 2018 | $140,497 | $190,000 | $0 | $330,497 | $330,497 |
| 2017 | $141,381 | $170,000 | $0 | $311,381 | $311,381 |
| 2016 | $129,482 | $135,000 | $0 | $264,482 | $264,482 |
| 2015 | $131,256 | $122,250 | $0 | $253,506 | $253,506 |
| 2014 | $133,030 | $122,250 | $0 | $255,280 | $255,280 |
| 2013 | $134,804 | $109,536 | $0 | $244,340 | $244,340 |
| 2012 | $136,577 | $109,536 | $0 | $246,113 | $246,113 |
| 2011 | $138,350 | $136,920 | $0 | $275,270 | $275,270 |
| 2010 | $146,215 | $136,920 | $0 | $283,135 | $283,135 |
| 2009 | $152,456 | $156,480 | $0 | $308,936 | $308,936 |
| 2008 | $154,285 | $156,480 | $0 | $310,765 | $310,765 |
| 2007 | $156,125 | $156,480 | $0 | $312,605 | $312,605 |
Deed and Sales History
| 1 | 09/01/1984 | WD | Warranty Deed | WRAY, EDWARD A | BROWN, KEITH R | | | $51,000.00 | 42668 | 84003034 |
| 2 | 06/01/1984 | QCD | Quit Claim Deed | WRAY, EDWARD A | WRAY, EDWARD A | | | $0.00 | 41697 | 425818 |
| 3 | 01/01/1900 | OTHER | Other - Misc. Documents | Unknown | WRAY, EDWARD A | | | $0.00 | 0 | 0 |
Payout Agreement
| No payout information available.. |