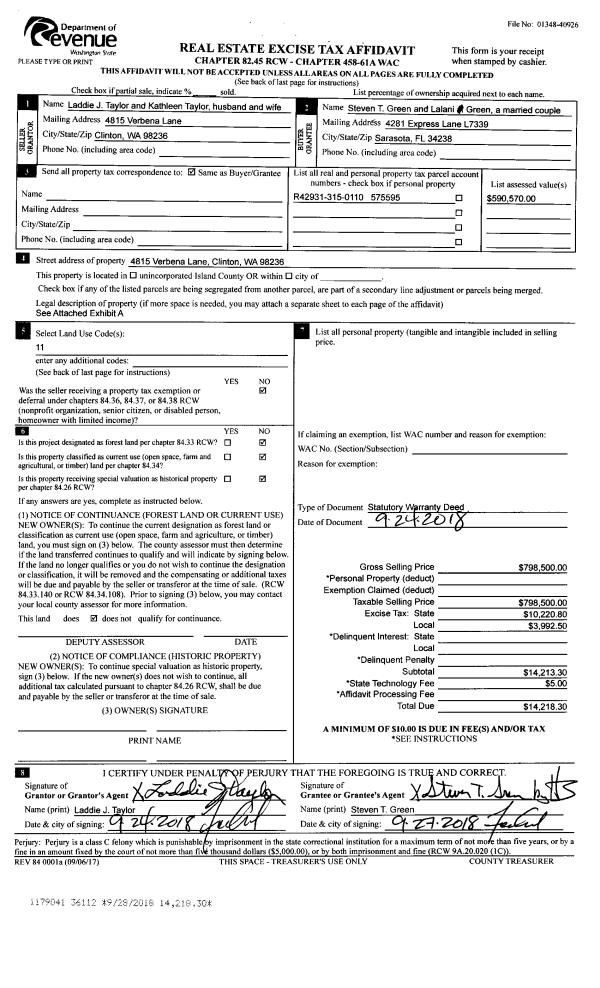
Property
Account |
| Property ID: | 55512 | Abbreviated Legal Description: | 2.50 AC OF W330' OF: 28 - IN SE SE: S/2 N/2 SE SE & N/2 S/2 SE SE EX WAHL RD |
| Geographic ID: | R22922-065-4620 | Agent Code: | |
| Type: | Real | | |
| Tax Area: | 712 - APPRAISER-S Whid Schl Dist, outside Langley, improved, greater than 1 acre | Land Use Code | 75 |
| Open Space: | N | DFL | N |
| Historic Property: | N | Remodel Property: | N |
| Multi-Family Redevelopment: | N | | |
| Township: | 29 | Section: | 22 |
| Range: | R2 |
Location |
| Address: | 6339 WAHL RD FREELAND, WA 98249 | Mapsco: | |
| Neighborhood: | Cycle 3 | Map ID: | 335 |
| Neighborhood CD: | 3 |
Owner |
| Name: | TINYBLUE FOUNDATION | Owner ID: | 185970 |
| Mailing Address: | 3537 GYLANY WAY GREENBANK, WA 98253-9758 | % Ownership: | 100.0000000000% |
| | | Exemptions: | EX |
Taxes and Assessment Details
Values
| (+) Improvement Homesite Value: | + | $0 | |
| (+) Improvement Non-Homesite Value: | + | $713,412 | |
| (+) Land Homesite Value: | + | $0 | |
| (+) Land Non-Homesite Value: | + | $271,309 | |
| (+) Curr Use (HS): | + | $0 | $0 |
| (+) Curr Use (NHS): | + | $0 | $0 |
| | | -------------------------- | |
| (=) Market Value: | = | $984,721 | |
| (–) Productivity Loss: | – | $0 | |
| | | -------------------------- | |
| (=) Subtotal: | = | $984,721 | |
| (+) Senior Appraised Value: | + | $0 | |
| (+) Non-Senior Appraised Value: | + | $984,721 | |
| | | -------------------------- | |
| (=) Total Appraised Value: | = | $984,721 | |
| (–) Senior Exemption Loss: | – | $0 | |
| (–) Exemption Loss: | – | $984,721 | |
| | | -------------------------- | |
| (=) Taxable Value: | = | $0 | |
Taxing Jurisdiction
| Owner: | TINYBLUE FOUNDATION | | |
| % Ownership: | 100.0000000000% | | |
| Total Value: | $984,721 | | |
| Tax Area: | 712 - APPRAISER-S Whid Schl Dist, outside Langley, improved, greater than 1 acre |
| CF | Conservation Futures | 0.0316035091 | $984,721 | $0 | $0.00 | | |
| FIRE3 | Fire & Rescue Dist #3 S Whidbey GEN | 1.2004855531 | $984,721 | $0 | $0.00 | | |
| HOBOND | Hospital BOND | 0.1910887512 | $984,721 | $0 | $0.00 | | |
| HOGEN | Hospital GEN | 0.3902502903 | $984,721 | $0 | $0.00 | | |
| CE | County Current Expense | 0.3708482477 | $984,721 | $0 | $0.00 | | |
| CR | County Roads | 0.4584763726 | $984,721 | $0 | $0.00 | | |
| ISLANDEMS | Hospital GEN (EMS) | 0.5000000000 | $984,721 | $0 | $0.00 | | |
| LIB | Library Sno-Isle GEN | 0.3153421757 | $984,721 | $0 | $0.00 | | |
| PORTWHID | Port of S Whidbey GEN | 0.1094540357 | $984,721 | $0 | $0.00 | | |
| SCH206BOND | School 206 BOND | 0.3161759235 | $984,721 | $0 | $0.00 | | |
| SCH206MO | School 206 Enrichment | 0.4547169547 | $984,721 | $0 | $0.00 | | |
| ST | State School | 1.3035497053 | $984,721 | $0 | $0.00 | | |
| ST2 | State School Part 2 | 0.8169543533 | $984,721 | $0 | $0.00 | | |
| SWHIDPRBD | P & R S Whidbey BOND | 0.0152817568 | $984,721 | $0 | $0.00 | | |
| SWHIDPRBD2 | P & R S Whidbey BOND2 | 0.0138911264 | $984,721 | $0 | $0.00 | | |
| SWHIDPRMT | P & R S Whidbey GEN | 0.2053334452 | $984,721 | $0 | $0.00 | | |
| | Total Tax Rate: | 6.6934522006 | | | | | |
| | | | | Taxes w/Current Exemptions: | $0.00 | | |
| | | | | Taxes w/o Exemptions: | $6,591.18 | | |
Improvement / Building
| Improvement #1: | RESIDENTIAL | State Code: | F1 | 4088.1 sqft | Value: | $626,603 |
| Bathrooms: | 3.5 | Bedrooms: | 6 | | Ceiling: | TONGUE & GROOVE | Exterior Wall/Cover: | WOOD SIDING | | Floor Covering: | VINYL TILE/HARWD 20-80 | Floor Structure: | WOOD W/SUBFLOOR | | Foundation: | CONCRETE | Heating: | RAD HOT WATER-GAS | | Interior Finish: | DRYWALL PAINT | Plumbing Fixture Cnt: | 15 | | Roof Slope: | 4" IN 12" | Roof Structure/Cover: | BEAM ASPHALT |
|
| | Type | Description | Class CD | Sub Class CD | Year Built | Area |
| | BAS | BASE/MAIN FLOOR | 4 | 0 | 1978 | 3008.1 |
| | OP4 | OPEN PORCH W/CEILING-ROOF | 4 | 0 | 1978 | 64.0 |
| | OCP | OPEN CARPORT | 4 | 0 | 1978 | 696.0 |
| | UTY | STORAGE/UTILITY | 4 | 0 | 1978 | 384.0 |
| | OWP | OPEN WOOD PORCH W/STEPS | 4 | 0 | 1978 | 142.7 |
| | OWP | OPEN WOOD PORCH W/STEPS | 4 | 0 | 1978 | 320.9 |
| | OWC | OPEN WOOD PORCH W/STEPS/ROOF/C | 4 | 0 | 1978 | 14.4 |
| | ENP | ENCLOSED PORCH | 4 | 0 | 1978 | 696.0 |
| | DWN | DOWNSTAIRS LIVING AREA | 4 | 0 | 1978 | 1080.0 |
| | oOBD | Out Buildings | 4 | 0 | 1978 | 0.0 |
| Improvement #2: | RESIDENTIAL | State Code: | F1 | 628.0 sqft | Value: | $86,809 |
| Bathrooms: | 1 | Bedrooms: | 1 | | Ceiling: | PLYWOOD PAINTED | Exterior Wall/Cover: | WOOD SIDING | | Floor Covering: | CARPET/VINYL 80-20 | Floor Structure: | WOOD W/SUBFLOOR | | Foundation: | CONCRETE BLOCKS | Heating: | BASEBOARD ELECTRIC | | Interior Finish: | DRYWALL PAINT | Plumbing Fixture Cnt: | 6 | | Roof Slope: | 6" IN 12" | Roof Structure/Cover: | CJ ASPHALT |
|
| | Type | Description | Class CD | Sub Class CD | Year Built | Area |
| | BAS | BASE/MAIN FLOOR | 3 | 0 | 1925 | 628.0 |
| | OP3 | OPEN PORCH W/ROOF | 3 | 0 | 1925 | 204.0 |
| | ENP | ENCLOSED PORCH | 3 | 0 | 1925 | 60.0 |
Sketch
Property Image
Land
| 1 | 35 | AC (10.00-30.99) | 1.0000 | 43560.00 | 0.00 | 0.00 | 1.00 | $260,000 | $0 |
| 2 | 35 | AC (10.00-30.99) | 1.5000 | 65340.00 | 0.00 | 0.00 | 1.00 | $11,309 | $0 |
Roll Value History
| 2026 | N/A | N/A | N/A | N/A | N/A |
| 2025 | $713,412 | $271,309 | $0 | $984,721 | $0 |
| 2024 | $725,500 | $248,540 | $0 | $974,040 | $0 |
| 2023 | $735,916 | $45,000 | $0 | $780,916 | $0 |
| 2022 | $676,777 | $35,000 | $0 | $711,777 | $0 |
| 2021 | $598,002 | $35,000 | $0 | $633,002 | $0 |
| 2020 | $585,288 | $30,658 | $0 | $615,946 | $0 |
| 2019 | $477,248 | $38,323 | $0 | $515,571 | $0 |
| 2018 | $468,098 | $25,549 | $0 | $493,647 | $0 |
| 2017 | $471,158 | $28,104 | $0 | $499,262 | $0 |
| 2016 | $477,454 | $31,250 | $0 | $508,704 | $0 |
| 2015 | $483,750 | $30,000 | $0 | $513,750 | $0 |
| 2014 | $490,047 | $30,000 | $0 | $520,047 | $0 |
| 2013 | $494,494 | $17,000 | $0 | $511,494 | $0 |
| 2012 | $500,943 | $55,284 | $0 | $556,227 | $0 |
| 2011 | $507,394 | $65,040 | $0 | $572,434 | $0 |
| 2010 | $537,060 | $65,040 | $0 | $602,100 | $0 |
| 2009 | $563,141 | $90,000 | $0 | $653,141 | $0 |
| 2008 | $560,756 | $221,042 | $0 | $781,798 | $0 |
| 2007 | $568,917 | $86,000 | $0 | $654,917 | $0 |
Deed and Sales History
| 1 | 03/14/2005 | OTHER | Other - Misc. Documents | TINYBLUE FOUNDATION, | TINYBLUE FOUNDATION, | | | $0.00 | 70500 | 0 |
| 2 | 06/23/2003 | 5 | DNU - Marriage License/Name Change | TROWBRIDGE JTWROS, DAVID | TINYBLUE FOUNDATION, | | | $0.00 | 32875 | 4065326 |
| 3 | 05/09/2003 | QCD | Quit Claim Deed | TINYBLUE FOUNDATION, | TROWBRIDGE JTWROS, DAVID | | | $0.00 | 32028 | 4059069 |
| 4 | 08/07/2001 | WD | Warranty Deed | RHINE, JON J | TINYBLUE FOUNDATION, | | | $525,000.00 | 13043 | 20039807 |
| 5 | 07/01/1993 | QCD | Quit Claim Deed | RHINE, JON J | RHINE, JON J | | | $0.00 | 32741 | 93014224 |
| 6 | 01/01/1988 | WD | Warranty Deed | CAPELL, W D | RHINE, JON J | | | $245,000.00 | 80232 | 88001049 |
| 7 | 12/01/1983 | WD | Warranty Deed | LEASK, S ( | CAPELL, W D | | | $210,000.00 | 33753 | 419226 |
| 8 | 01/01/1900 | OTHER | Other - Misc. Documents | Unknown | LEASK, S ( | | | $0.00 | 0 | 0 |
Payout Agreement
| No payout information available.. |