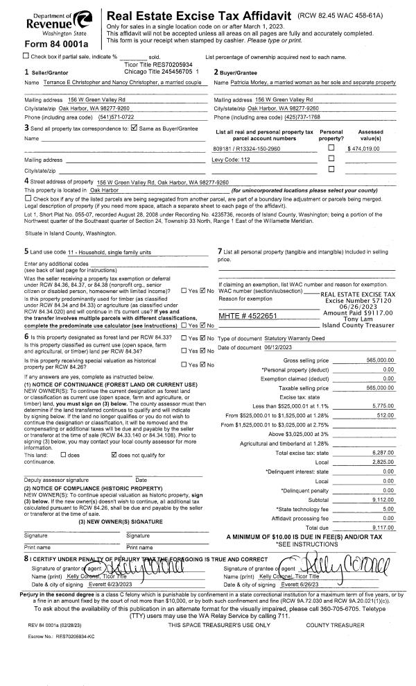
Property
Account |
| Property ID: | 555376 | Abbreviated Legal Description: | REPLACES 113-3300 20 - IN GL4: BG NECR GL4 W506' S306' W200' TPB W20' S12' E20' N12' TPB |
| Geographic ID: | R33218-103-3300 | Agent Code: | |
| Type: | Real | | |
| Tax Area: | 519 - APPRAISER-Stan/Cam Schl Dist, vacant & 50 acres or less | Land Use Code | 91 |
| Open Space: | N | DFL | N |
| Historic Property: | N | Remodel Property: | N |
| Multi-Family Redevelopment: | N | | |
| Township: | 32 | Section: | 18 |
| Range: | R3 |
Location |
| Address: | | Mapsco: | |
| Neighborhood: | North Camano | Map ID: | 957 |
| Neighborhood CD: | 06-C |
Owner |
| Name: | MOURACADE, JOHN M | Owner ID: | 312922 |
| Mailing Address: | 1273 GERDES RD CAMANO ISLAND, WA 98282 | % Ownership: | 100.0000000000% |
| | | Exemptions: | U500 |
Taxes and Assessment Details
Values
| (+) Improvement Homesite Value: | + | $0 | |
| (+) Improvement Non-Homesite Value: | + | $0 | |
| (+) Land Homesite Value: | + | $0 | |
| (+) Land Non-Homesite Value: | + | $10 | |
| (+) Curr Use (HS): | + | $0 | $0 |
| (+) Curr Use (NHS): | + | $0 | $0 |
| | | -------------------------- | |
| (=) Market Value: | = | $10 | |
| (–) Productivity Loss: | – | $0 | |
| | | -------------------------- | |
| (=) Subtotal: | = | $10 | |
| (+) Senior Appraised Value: | + | $0 | |
| (+) Non-Senior Appraised Value: | + | $10 | |
| | | -------------------------- | |
| (=) Total Appraised Value: | = | $10 | |
| (–) Senior Exemption Loss: | – | $0 | |
| (–) Exemption Loss: | – | $10 | |
| | | -------------------------- | |
| (=) Taxable Value: | = | $0 | |
Taxing Jurisdiction
| Owner: | MOURACADE, JOHN M | | |
| % Ownership: | 100.0000000000% | | |
| Total Value: | $10 | | |
| Tax Area: | 519 - APPRAISER-Stan/Cam Schl Dist, vacant & 50 acres or less |
| CF | Conservation Futures | 0.0316035091 | $10 | $0 | $0.00 | | |
| EMS1 | Fire & Rescue Dist #1 Camano GEN (EMS) | 0.3677864386 | $10 | $0 | $0.00 | | |
| CE | County Current Expense | 0.3708482477 | $10 | $0 | $0.00 | | |
| CR | County Roads | 0.4584763726 | $10 | $0 | $0.00 | | |
| LCIB | Library Sno-Isle BOND (Camano Island) | 0.0396325772 | $10 | $0 | $0.00 | | |
| LIB | Library Sno-Isle GEN | 0.3153421757 | $10 | $0 | $0.00 | | |
| SCH205_401 | School 205-401 Enrichment | 1.2698420524 | $10 | $0 | $0.00 | | |
| SCH205BOND | School 205-401 BOND | 0.9396497583 | $10 | $0 | $0.00 | | |
| ST | State School | 1.3035497053 | $10 | $0 | $0.00 | | |
| ST2 | State School Part 2 | 0.8169543533 | $10 | $0 | $0.00 | | |
| | Total Tax Rate: | 5.9136851902 | | | | | |
| | | | | Taxes w/Current Exemptions: | $0.00 | | |
| | | | | Taxes w/o Exemptions: | $0.04 | | |
Improvement / Building
Sketch
| No sketches available for this property. |
Property Image
Land
| 1 | 54 | WASTE LAND | 0.0000 | 0.00 | 0.00 | 0.00 | 1.00 | $10 | $0 |
Roll Value History
| 2026 | N/A | N/A | N/A | N/A | N/A |
| 2025 | $0 | $10 | $0 | $10 | $0 |
| 2024 | $0 | $10 | $0 | $10 | $0 |
| 2023 | $0 | $10 | $0 | $10 | $0 |
| 2022 | $0 | $10 | $0 | $10 | $0 |
| 2021 | $0 | $10 | $0 | $10 | $0 |
| 2020 | $0 | $10 | $0 | $10 | $0 |
| 2019 | $0 | $10 | $0 | $10 | $0 |
| 2018 | $0 | $10 | $0 | $10 | $0 |
| 2017 | $0 | $10 | $0 | $10 | $0 |
| 2016 | $0 | $10 | $0 | $10 | $0 |
| 2015 | $0 | $10 | $0 | $10 | $0 |
| 2014 | $0 | $150 | $0 | $150 | $0 |
| 2013 | $0 | $150 | $0 | $150 | $0 |
| 2012 | $0 | $150 | $0 | $150 | $0 |
| 2011 | $0 | $150 | $0 | $150 | $0 |
| 2010 | $0 | $150 | $0 | $150 | $0 |
| 2009 | $0 | $150 | $0 | $150 | $0 |
| 2008 | $0 | $150 | $0 | $150 | $150 |
| 2007 | $0 | $138 | $0 | $138 | $0 |
Deed and Sales History
| 1 | 04/05/2024 | QCD | Quit Claim Deed | MOURACADE, MICHAEL | MOURACADE, JOHN M | | | $0.00 | 60452 | 4573898 |
| 2 | 04/05/2024 | PRD | Personal Representatives Deed | ESTATE OF SALLYANNE MOURACADE | MOURACADE, MICHAEL | | | $0.00 | 60229 | 4573237 |
| 3 | 09/12/2003 | ESTSEPPROP | Establish Separate Property | MOURACADE, SALLYANNE & | MOURACADE, SALLYANNE | | | $0.00 | 34104 | 4075852 |
| 4 | 09/12/2003 | ESTSEPPROP | Establish Separate Property | Unknown | MOURACADE, SALLYANNE | | | $0.00 | 34104 | 4075852 |
| 5 | 03/01/1992 | QCD | Quit Claim Deed | MOURACADE, SALLYANNE | MOURACADE, SALLYANNE & | | | $0.00 | 20935 | 92004764 |
| 6 | 08/01/1989 | WD | Warranty Deed | ECKER, JOHN M | MOURACADE, SALLYANNE | | | $150.00 | 94125 | 89013651 |
| 7 | 08/01/1989 | QCD | Quit Claim Deed | MOURACADE, SALLYANNE | MOURACADE, SALLYANNE | | | $0.00 | 94126 | 89013652 |
| 8 | 02/01/1981 | REC | Real Estate Contract | MOURACADE, SALLYANNE | ECKER, JOHN M | | | $175,000.00 | 10591 | 379964 |
Payout Agreement
| No payout information available.. |