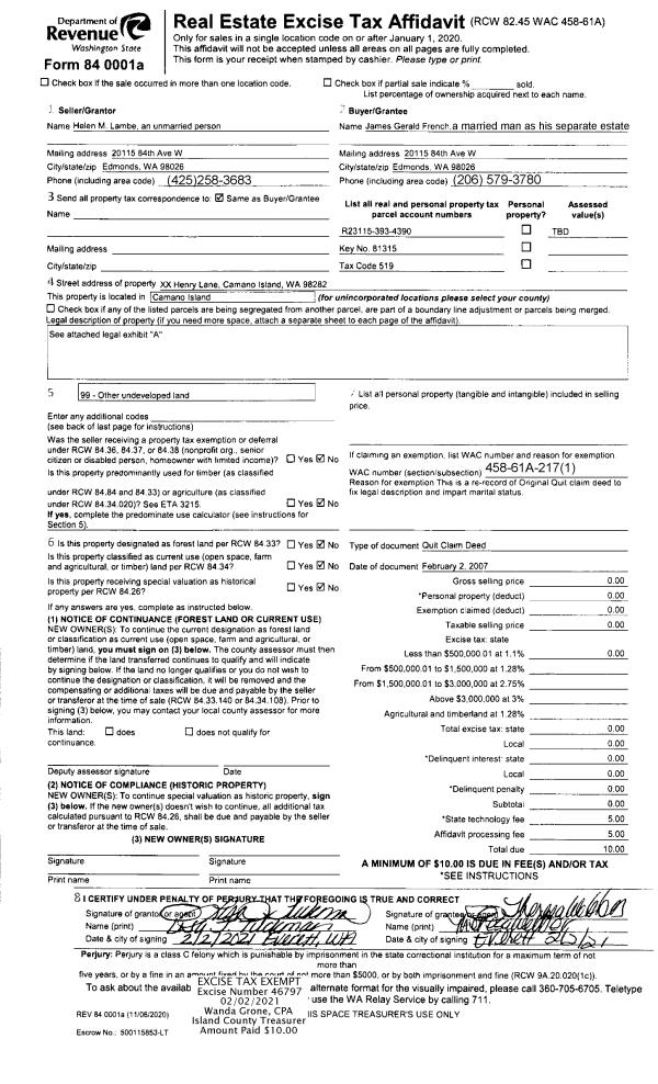
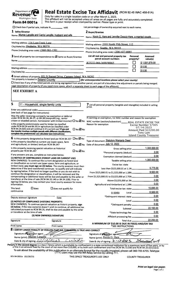
Property
Account |
| Property ID: | 555394 | Abbreviated Legal Description: | REPLACES 285-4810 23 - IN GL1: BG SW CR GL1 E729.72' N35.23' N19*E26.11 TPB N19*E61.89' N1.29' E190 HI TIDE S60' W207' TPB TGW TIDES |
| Geographic ID: | R32801-281-4810 | Agent Code: | |
| Type: | Real | | |
| Tax Area: | 729 - APPRAISER-S Whid Schl Dist, Special District, vacant & 50 acres or less | Land Use Code | 91 |
| Open Space: | N | DFL | N |
| Historic Property: | N | Remodel Property: | N |
| Multi-Family Redevelopment: | N | | |
| Township: | 28 | Section: | 01 |
| Range: | R3 |
Location |
| Address: | 7391 MIKE'S FISHING PL CLINTON, WA 98236 | Mapsco: | |
| Neighborhood: | Cycle 4 | Map ID: | 678 |
| Neighborhood CD: | 4 |
Owner |
| Name: | KOLBECK, CREIGHTON | Owner ID: | 306867 |
| Mailing Address: | TAEKO KOLBECK 14328 EDGEWATER LANE SEATTLE, WA 98125 | % Ownership: | 100.0000000000% |
| | | Exemptions: | |
Taxes and Assessment Details
Values
| (+) Improvement Homesite Value: | + | $0 | |
| (+) Improvement Non-Homesite Value: | + | $0 | |
| (+) Land Homesite Value: | + | $0 | |
| (+) Land Non-Homesite Value: | + | $225,610 | |
| (+) Curr Use (HS): | + | $0 | $0 |
| (+) Curr Use (NHS): | + | $0 | $0 |
| | | -------------------------- | |
| (=) Market Value: | = | $225,610 | |
| (–) Productivity Loss: | – | $0 | |
| | | -------------------------- | |
| (=) Subtotal: | = | $225,610 | |
| (+) Senior Appraised Value: | + | $0 | |
| (+) Non-Senior Appraised Value: | + | $225,610 | |
| | | -------------------------- | |
| (=) Total Appraised Value: | = | $225,610 | |
| (–) Senior Exemption Loss: | – | $0 | |
| (–) Exemption Loss: | – | $0 | |
| | | -------------------------- | |
| (=) Taxable Value: | = | $225,610 | |
Taxing Jurisdiction
| Owner: | KOLBECK, CREIGHTON | | |
| % Ownership: | 100.0000000000% | | |
| Total Value: | $225,610 | | |
| Tax Area: | 729 - APPRAISER-S Whid Schl Dist, Special District, vacant & 50 acres or less |
| CF | Conservation Futures | 0.0316035091 | $225,610 | $225,610 | $7.13 | | |
| HOBOND | Hospital BOND | 0.1910887512 | $225,610 | $225,610 | $43.11 | | |
| HOGEN | Hospital GEN | 0.3902502903 | $225,610 | $225,610 | $88.04 | | |
| CE | County Current Expense | 0.3708482477 | $225,610 | $225,610 | $83.67 | | |
| CR | County Roads | 0.4584763726 | $225,610 | $225,610 | $103.44 | | |
| ISLANDEMS | Hospital GEN (EMS) | 0.5000000000 | $225,610 | $225,610 | $112.81 | | |
| LIB | Library Sno-Isle GEN | 0.3153421757 | $225,610 | $225,610 | $71.14 | | |
| PORTWHID | Port of S Whidbey GEN | 0.1094540357 | $225,610 | $225,610 | $24.69 | | |
| SCH206BOND | School 206 BOND | 0.3161759235 | $225,610 | $225,610 | $71.33 | | |
| SCH206MO | School 206 Enrichment | 0.4547169547 | $225,610 | $225,610 | $102.59 | | |
| ST | State School | 1.3035497053 | $225,610 | $225,610 | $294.09 | | |
| ST2 | State School Part 2 | 0.8169543533 | $225,610 | $225,610 | $184.31 | | |
| SWHIDPRBD | P & R S Whidbey BOND | 0.0152817568 | $225,610 | $225,610 | $3.45 | | |
| SWHIDPRBD2 | P & R S Whidbey BOND2 | 0.0138911264 | $225,610 | $225,610 | $3.13 | | |
| SWHIDPRMT | P & R S Whidbey GEN | 0.2053334452 | $225,610 | $225,610 | $46.33 | | |
| | Total Tax Rate: | 5.4929666475 | | | | | |
| | | | | Taxes w/Current Exemptions: | $1,239.26 | | |
| | | | | Taxes w/o Exemptions: | $1,239.26 | | |
Improvement / Building
Sketch
| No sketches available for this property. |
Property Image
Land
| 1 | MB | MEDIUM BANK | 0.0000 | 0.00 | 60.00 | 0.00 | 1.00 | $225,000 | $0 |
| 2 | 55 | TIDES | 0.0000 | 0.00 | 61.00 | 0.00 | 1.00 | $610 | $0 |
Roll Value History
| 2026 | N/A | N/A | N/A | N/A | N/A |
| 2025 | $0 | $225,610 | $0 | $225,610 | $225,610 |
| 2024 | $0 | $225,610 | $0 | $225,610 | $225,610 |
| 2023 | $0 | $225,610 | $0 | $225,610 | $225,610 |
| 2022 | $0 | $40,610 | $0 | $40,610 | $40,610 |
| 2021 | $0 | $40,610 | $0 | $40,610 | $40,610 |
| 2020 | $0 | $40,610 | $0 | $40,610 | $40,610 |
| 2019 | $0 | $25,610 | $0 | $25,610 | $25,610 |
| 2018 | $0 | $25,610 | $0 | $25,610 | $25,610 |
| 2017 | $0 | $25,610 | $0 | $25,610 | $25,610 |
| 2016 | $0 | $25,610 | $0 | $25,610 | $25,610 |
| 2015 | $0 | $25,610 | $0 | $25,610 | $25,610 |
| 2014 | $0 | $25,610 | $0 | $25,610 | $25,610 |
| 2013 | $0 | $26,875 | $0 | $26,875 | $26,875 |
| 2012 | $0 | $26,875 | $0 | $26,875 | $26,875 |
| 2011 | $0 | $26,875 | $0 | $26,875 | $26,875 |
| 2010 | $0 | $26,875 | $0 | $26,875 | $26,875 |
| 2009 | $0 | $35,280 | $0 | $35,280 | $35,280 |
| 2008 | $0 | $35,280 | $0 | $35,280 | $35,280 |
| 2007 | $0 | $34,853 | $0 | $34,853 | $34,853 |
Deed and Sales History
| 1 | 07/20/2021 | WD | Warranty Deed | WILSON, HOWARD O | KOLBECK, CREIGHTON | | | $0.00 | 55350 | 4554756 |
| 2 | 06/01/1987 | WD | Warranty Deed | ALDRICH, GARY R | ALDRICH, GARY R | | | $0.00 | 71702 | 87007954 |
| 3 | 06/01/1987 | WD | Warranty Deed | ALDRICH, GARY R | WILSON, HOWARD O | | | $24,000.00 | 71973 | 87009054 |
| 4 | 03/01/1979 | OTHER | Other - Misc. Documents | Unknown | ALDRICH, GARY R | | | $21,000.00 | 91527 | 350279 |
Payout Agreement
| No payout information available.. |