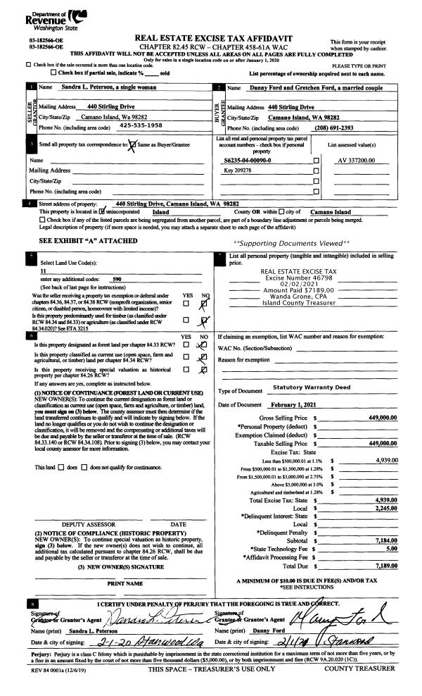
Property
Account |
| Property ID: | 555410 | Abbreviated Legal Description: | REPLACES 279-4810 22 - IN GL1: BG SWCR GL1 E729.72' TPB N35.23' N19*E 26.11' E207' M/L TO HITDLN S60' W210' TPB INCL ADJ TIDES |
| Geographic ID: | R32801-275-4810 | Agent Code: | |
| Type: | Real | | |
| Tax Area: | 729 - APPRAISER-S Whid Schl Dist, Special District, vacant & 50 acres or less | Land Use Code | 91 |
| Open Space: | N | DFL | N |
| Historic Property: | N | Remodel Property: | N |
| Multi-Family Redevelopment: | N | | |
| Township: | 28 | Section: | 01 |
| Range: | R3 |
Location |
| Address: | | Mapsco: | |
| Neighborhood: | Cycle 4 | Map ID: | 678 |
| Neighborhood CD: | 4 |
Owner |
| Name: | PONATH, THOMAS R | Owner ID: | 166891 |
| Mailing Address: | ATTN: JINX PONATH HARRISON 18211 24TH AVE NE SHORELINE, WA 98155 | % Ownership: | 100.0000000000% |
| | | Exemptions: | |
Taxes and Assessment Details
Values
| (+) Improvement Homesite Value: | + | $0 | |
| (+) Improvement Non-Homesite Value: | + | $0 | |
| (+) Land Homesite Value: | + | $0 | |
| (+) Land Non-Homesite Value: | + | $40,600 | |
| (+) Curr Use (HS): | + | $0 | $0 |
| (+) Curr Use (NHS): | + | $0 | $0 |
| | | -------------------------- | |
| (=) Market Value: | = | $40,600 | |
| (–) Productivity Loss: | – | $0 | |
| | | -------------------------- | |
| (=) Subtotal: | = | $40,600 | |
| (+) Senior Appraised Value: | + | $0 | |
| (+) Non-Senior Appraised Value: | + | $40,600 | |
| | | -------------------------- | |
| (=) Total Appraised Value: | = | $40,600 | |
| (–) Senior Exemption Loss: | – | $0 | |
| (–) Exemption Loss: | – | $0 | |
| | | -------------------------- | |
| (=) Taxable Value: | = | $40,600 | |
Taxing Jurisdiction
| Owner: | PONATH, THOMAS R | | |
| % Ownership: | 100.0000000000% | | |
| Total Value: | $40,600 | | |
| Tax Area: | 729 - APPRAISER-S Whid Schl Dist, Special District, vacant & 50 acres or less |
| CF | Conservation Futures | 0.0316035091 | $40,600 | $40,600 | $1.28 | | |
| HOBOND | Hospital BOND | 0.1910887512 | $40,600 | $40,600 | $7.76 | | |
| HOGEN | Hospital GEN | 0.3902502903 | $40,600 | $40,600 | $15.84 | | |
| CE | County Current Expense | 0.3708482477 | $40,600 | $40,600 | $15.06 | | |
| CR | County Roads | 0.4584763726 | $40,600 | $40,600 | $18.61 | | |
| ISLANDEMS | Hospital GEN (EMS) | 0.5000000000 | $40,600 | $40,600 | $20.30 | | |
| LIB | Library Sno-Isle GEN | 0.3153421757 | $40,600 | $40,600 | $12.80 | | |
| PORTWHID | Port of S Whidbey GEN | 0.1094540357 | $40,600 | $40,600 | $4.44 | | |
| SCH206BOND | School 206 BOND | 0.3161759235 | $40,600 | $40,600 | $12.84 | | |
| SCH206MO | School 206 Enrichment | 0.4547169547 | $40,600 | $40,600 | $18.46 | | |
| ST | State School | 1.3035497053 | $40,600 | $40,600 | $52.92 | | |
| ST2 | State School Part 2 | 0.8169543533 | $40,600 | $40,600 | $33.17 | | |
| SWHIDPRBD | P & R S Whidbey BOND | 0.0152817568 | $40,600 | $40,600 | $0.62 | | |
| SWHIDPRBD2 | P & R S Whidbey BOND2 | 0.0138911264 | $40,600 | $40,600 | $0.56 | | |
| SWHIDPRMT | P & R S Whidbey GEN | 0.2053334452 | $40,600 | $40,600 | $8.34 | | |
| | Total Tax Rate: | 5.4929666475 | | | | | |
| | | | | Taxes w/Current Exemptions: | $223.00 | | |
| | | | | Taxes w/o Exemptions: | $223.00 | | |
Improvement / Building
Sketch
| No sketches available for this property. |
Property Image
Land
| 1 | MB | MEDIUM BANK | 0.0000 | 0.00 | 60.00 | 0.00 | 1.00 | $40,000 | $0 |
| 2 | 55 | TIDES | 0.0000 | 0.00 | 60.00 | 0.00 | 1.00 | $600 | $0 |
Roll Value History
| 2026 | N/A | N/A | N/A | N/A | N/A |
| 2025 | $0 | $40,600 | $0 | $40,600 | $40,600 |
| 2024 | $0 | $40,600 | $0 | $40,600 | $40,600 |
| 2023 | $0 | $40,600 | $0 | $40,600 | $40,600 |
| 2022 | $0 | $40,600 | $0 | $40,600 | $40,600 |
| 2021 | $0 | $40,600 | $0 | $40,600 | $40,600 |
| 2020 | $0 | $40,600 | $0 | $40,600 | $40,600 |
| 2019 | $0 | $25,600 | $0 | $25,600 | $25,600 |
| 2018 | $0 | $25,600 | $0 | $25,600 | $25,600 |
| 2017 | $0 | $25,600 | $0 | $25,600 | $25,600 |
| 2016 | $0 | $25,600 | $0 | $25,600 | $25,600 |
| 2015 | $0 | $25,600 | $0 | $25,600 | $25,600 |
| 2014 | $0 | $25,600 | $0 | $25,600 | $25,600 |
| 2013 | $0 | $26,865 | $0 | $26,865 | $26,865 |
| 2012 | $0 | $26,865 | $0 | $26,865 | $26,865 |
| 2011 | $0 | $26,865 | $0 | $26,865 | $26,865 |
| 2010 | $0 | $26,865 | $0 | $26,865 | $26,865 |
| 2009 | $0 | $35,270 | $0 | $35,270 | $35,270 |
| 2008 | $0 | $35,270 | $0 | $35,270 | $35,270 |
| 2007 | $0 | $34,850 | $0 | $34,850 | $34,850 |
Deed and Sales History
| 1 | 07/01/1995 | DECREE | Divorce Decree/Legal Separation | PONATH, THOMAS R | PONATH, THOMAS R | | | $0.00 | 52451 | 95011304 |
| 2 | 01/01/1900 | OTHER | Other - Misc. Documents | Unknown | PONATH, THOMAS R | | | $0.00 | 0 | 0 |
Payout Agreement
| No payout information available.. |