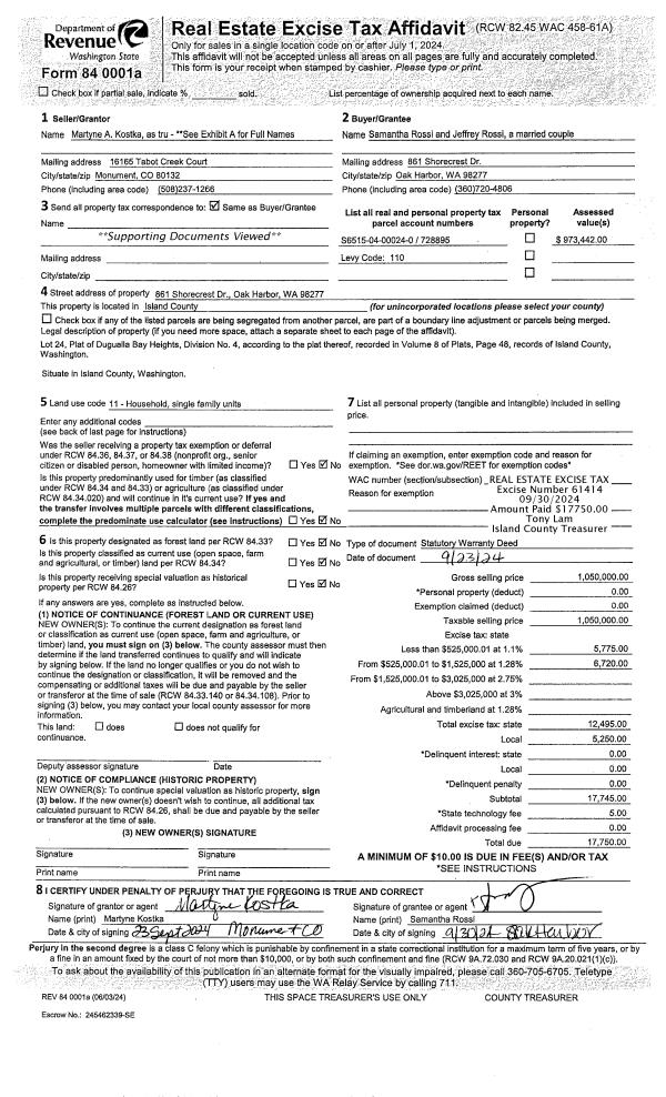
Property
Account |
| Property ID: | 555651 | Abbreviated Legal Description: | TR 1 SP 81-71.23120.086-1870 AF#396784 V1 SP P136/137 |
| Geographic ID: | R23120-085-1500 | Agent Code: | |
| Type: | Real | | |
| Tax Area: | 319 - APPRAISER-Cpvl Schl Dist, outside Cpvl, vacant & 50 acres or less | Land Use Code | 91 |
| Open Space: | N | DFL | N |
| Historic Property: | N | Remodel Property: | N |
| Multi-Family Redevelopment: | N | | |
| Township: | 31 | Section: | 20 |
| Range: | R2 |
Location |
| Address: | | Mapsco: | |
| Neighborhood: | Cycle 2 | Map ID: | 497 |
| Neighborhood CD: | 2 |
Owner |
| Name: | CHAPMAN TTEE, LAWRENCE WAYNE | Owner ID: | 311404 |
| Mailing Address: | MARY KAREN HULBERT CHAPMAN PO BOX 353 COUPEVILLE, WA 98239 | % Ownership: | 100.0000000000% |
| | | Exemptions: | |
Taxes and Assessment Details
Values
| (+) Improvement Homesite Value: | + | $0 | |
| (+) Improvement Non-Homesite Value: | + | $0 | |
| (+) Land Homesite Value: | + | $0 | |
| (+) Land Non-Homesite Value: | + | $157,500 | |
| (+) Curr Use (HS): | + | $0 | $0 |
| (+) Curr Use (NHS): | + | $0 | $0 |
| | | -------------------------- | |
| (=) Market Value: | = | $157,500 | |
| (–) Productivity Loss: | – | $0 | |
| | | -------------------------- | |
| (=) Subtotal: | = | $157,500 | |
| (+) Senior Appraised Value: | + | $0 | |
| (+) Non-Senior Appraised Value: | + | $157,500 | |
| | | -------------------------- | |
| (=) Total Appraised Value: | = | $157,500 | |
| (–) Senior Exemption Loss: | – | $0 | |
| (–) Exemption Loss: | – | $0 | |
| | | -------------------------- | |
| (=) Taxable Value: | = | $157,500 | |
Taxing Jurisdiction
| Owner: | CHAPMAN TTEE, LAWRENCE WAYNE | | |
| % Ownership: | 100.0000000000% | | |
| Total Value: | $157,500 | | |
| Tax Area: | 319 - APPRAISER-Cpvl Schl Dist, outside Cpvl, vacant & 50 acres or less |
| CF | Conservation Futures | 0.0316035091 | $157,500 | $157,500 | $4.98 | | |
| CEM2 | Cemetery #2 | 0.0095056933 | $157,500 | $157,500 | $1.50 | | |
| HOBOND | Hospital BOND | 0.1910887512 | $157,500 | $157,500 | $30.10 | | |
| HOGEN | Hospital GEN | 0.3902502903 | $157,500 | $157,500 | $61.46 | | |
| CE | County Current Expense | 0.3708482477 | $157,500 | $157,500 | $58.41 | | |
| CR | County Roads | 0.4584763726 | $157,500 | $157,500 | $72.21 | | |
| ISLANDEMS | Hospital GEN (EMS) | 0.5000000000 | $157,500 | $157,500 | $78.75 | | |
| LIB | Library Sno-Isle GEN | 0.3153421757 | $157,500 | $157,500 | $49.67 | | |
| LIBCAP | Library Sno-Isle BOND (Cap Fac Imp Area) | 0.0543427938 | $157,500 | $157,500 | $8.56 | | |
| POCOUP | Port of Coupeville GEN | 0.1093371703 | $157,500 | $157,500 | $17.22 | | |
| POCOUPIDD | Port of Coupeville IDD | 0.3409740022 | $157,500 | $157,500 | $53.70 | | |
| COUPSDTECH | School 204 CP (TECH) | 0.7545480007 | $157,500 | $157,500 | $118.84 | | |
| SCH204MO | School 204 Enrichment | 0.6716186034 | $157,500 | $157,500 | $105.78 | | |
| ST | State School | 1.3035497053 | $157,500 | $157,500 | $205.31 | | |
| ST2 | State School Part 2 | 0.8169543533 | $157,500 | $157,500 | $128.67 | | |
| | Total Tax Rate: | 6.3184396689 | | | | | |
| | | | | Taxes w/Current Exemptions: | $995.16 | | |
| | | | | Taxes w/o Exemptions: | $995.16 | | |
Improvement / Building
Sketch
| No sketches available for this property. |
Property Image
Land
| 1 | 32 | AC (03.01-09.99) | 5.0000 | 0.00 | 0.00 | 0.00 | 1.00 | $157,500 | $0 |
Roll Value History
| 2026 | N/A | N/A | N/A | N/A | N/A |
| 2025 | $0 | $157,500 | $0 | $157,500 | $157,500 |
| 2024 | $0 | $140,000 | $0 | $140,000 | $140,000 |
| 2023 | $0 | $140,000 | $0 | $140,000 | $140,000 |
| 2022 | $0 | $130,000 | $0 | $130,000 | $130,000 |
| 2021 | $0 | $130,000 | $0 | $130,000 | $130,000 |
| 2020 | $0 | $120,000 | $0 | $120,000 | $120,000 |
| 2019 | $0 | $100,000 | $0 | $100,000 | $100,000 |
| 2018 | $0 | $75,000 | $0 | $75,000 | $75,000 |
| 2017 | $0 | $75,000 | $0 | $75,000 | $75,000 |
| 2016 | $0 | $75,000 | $0 | $75,000 | $75,000 |
| 2015 | $0 | $100,000 | $0 | $100,000 | $100,000 |
| 2014 | $0 | $100,000 | $0 | $100,000 | $100,000 |
| 2013 | $0 | $100,000 | $0 | $100,000 | $100,000 |
| 2012 | $0 | $100,000 | $0 | $100,000 | $100,000 |
| 2011 | $0 | $100,000 | $0 | $100,000 | $100,000 |
| 2010 | $0 | $100,000 | $0 | $100,000 | $100,000 |
| 2009 | $0 | $122,500 | $0 | $122,500 | $122,500 |
| 2008 | $0 | $99,000 | $0 | $99,000 | $99,000 |
| 2007 | $0 | $99,000 | $0 | $99,000 | $99,000 |
Deed and Sales History
| 1 | 02/07/2024 | QCD | Quit Claim Deed | CHAPMAN, LAWRENCE W | CHAPMAN TTEE, LAWRENCE WAYNE | | | $0.00 | 59181 | 4569280 |
| 2 | 02/05/2002 | DECREE | Divorce Decree/Legal Separation | CHAPMAN, LAWRENCE W | CHAPMAN, LAWRENCE W | | | $0.00 | 20720 | 4012408 |
| 3 | 03/01/1992 | DECREE | Divorce Decree/Legal Separation | CHAPMAN, LAWRENCE W | CHAPMAN, LAWRENCE W | | | $0.00 | 33202 | 93016587 |
| 4 | 06/01/1986 | WD | Warranty Deed | FRITCH, LARRY B | CHAPMAN, LAWRENCE W | | | $18,000.00 | 61430 | 86006738 |
| 5 | 03/01/1983 | QCD | Quit Claim Deed | FRITCH, ALYCE & | FRITCH, LARRY B | | | $0.00 | 30729 | 407431 |
| 6 | 10/01/1982 | PACD | Purchaser's Assignment | FRITCH, ALYCE & | FRITCH, ALYCE & | | | $0.00 | 59671 | 396784 |
| 7 | 12/01/1981 | OTHER | Other - Misc. Documents | Unknown | FRITCH, ALYCE & | | | $0.00 | 59328 | 0 |
Payout Agreement
| No payout information available.. |