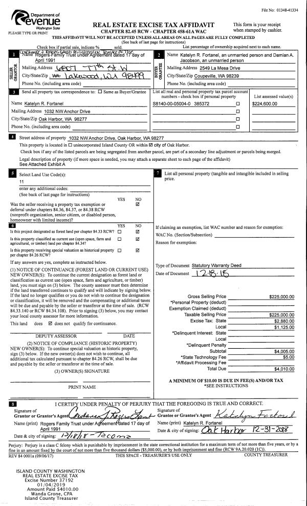
Property
Account |
| Property ID: | 555713 | Abbreviated Legal Description: | 45 - IN E/2 SE SE :BG @ ELN SEC 20 WHICH 335' S OF NE CR OF SE SE W129' S100' E129' TO ELN SEC 20 N ALG SD ELN TPB EX RD FR 093 5270 10/14/82 |
| Geographic ID: | R33220-094-5270 | Agent Code: | |
| Type: | Real | | |
| Tax Area: | 590 - APPRAISER-Stan/Cam Schl Dist, Special Dist, improved & less than 1 acre | Land Use Code | 11 |
| Open Space: | N | DFL | N |
| Historic Property: | N | Remodel Property: | N |
| Multi-Family Redevelopment: | N | | |
| Township: | 32 | Section: | 20 |
| Range: | R3 |
Location |
| Address: | 873 HEICHEL RD CAMANO ISLAND, WA 98282 | Mapsco: | |
| Neighborhood: | North Camano | Map ID: | 965 |
| Neighborhood CD: | 06-C |
Owner |
| Name: | MCLAUGHLIN, VON | Owner ID: | 308017 |
| Mailing Address: | HEATHER MCLAUGHLIN 873 HEICHEL RD CAMANO ISLAND, WA 98282 | % Ownership: | 100.0000000000% |
| | | Exemptions: | |
Taxes and Assessment Details
Values
| (+) Improvement Homesite Value: | + | $0 | |
| (+) Improvement Non-Homesite Value: | + | $240,359 | |
| (+) Land Homesite Value: | + | $0 | |
| (+) Land Non-Homesite Value: | + | $250,000 | |
| (+) Curr Use (HS): | + | $0 | $0 |
| (+) Curr Use (NHS): | + | $0 | $0 |
| | | -------------------------- | |
| (=) Market Value: | = | $490,359 | |
| (–) Productivity Loss: | – | $0 | |
| | | -------------------------- | |
| (=) Subtotal: | = | $490,359 | |
| (+) Senior Appraised Value: | + | $0 | |
| (+) Non-Senior Appraised Value: | + | $490,359 | |
| | | -------------------------- | |
| (=) Total Appraised Value: | = | $490,359 | |
| (–) Senior Exemption Loss: | – | $0 | |
| (–) Exemption Loss: | – | $0 | |
| | | -------------------------- | |
| (=) Taxable Value: | = | $490,359 | |
Taxing Jurisdiction
| Owner: | MCLAUGHLIN, VON | | |
| % Ownership: | 100.0000000000% | | |
| Total Value: | $490,359 | | |
| Tax Area: | 590 - APPRAISER-Stan/Cam Schl Dist, Special Dist, improved & less than 1 acre |
| CF | Conservation Futures | 0.0316035091 | $490,359 | $490,359 | $15.50 | | |
| EMS1 | Fire & Rescue Dist #1 Camano GEN (EMS) | 0.3677864386 | $490,359 | $490,359 | $180.35 | | |
| FIRE1 | Fire & Rescue Dist #1 Camano GEN | 1.2502910536 | $490,359 | $490,359 | $613.09 | | |
| FIRE1BOND | Fire & Rescue Dist #1 Camano BOND | 0.1570001679 | $490,359 | $490,359 | $76.99 | | |
| CE | County Current Expense | 0.3708482477 | $490,359 | $490,359 | $181.85 | | |
| CR | County Roads | 0.4584763726 | $490,359 | $490,359 | $224.82 | | |
| LCIB | Library Sno-Isle BOND (Camano Island) | 0.0396325772 | $490,359 | $490,359 | $19.43 | | |
| LIB | Library Sno-Isle GEN | 0.3153421757 | $490,359 | $490,359 | $154.63 | | |
| SCH205_401 | School 205-401 Enrichment | 1.2698420524 | $490,359 | $490,359 | $622.68 | | |
| SCH205BOND | School 205-401 BOND | 0.9396497583 | $490,359 | $490,359 | $460.77 | | |
| ST | State School | 1.3035497053 | $490,359 | $490,359 | $639.21 | | |
| ST2 | State School Part 2 | 0.8169543533 | $490,359 | $490,359 | $400.60 | | |
| | Total Tax Rate: | 7.3209764117 | | | | | |
| | | | | Taxes w/Current Exemptions: | $3,589.92 | | |
| | | | | Taxes w/o Exemptions: | $3,589.92 | | |
Improvement / Building
| Improvement #1: | RESIDENTIAL | State Code: | Y | 1550.0 sqft | Value: | $240,359 |
| Bathrooms: | 1 | Bedrooms: | 3 | | Ceiling: | DRYWALL PAINTED | Exterior Wall/Cover: | WOOD SIDING | | Floor Covering: | CERAMIC TILE/HWD 40/60 | Floor Structure: | WOOD W/SUBFLOOR | | Foundation: | CONCRETE | Heating: | BASEBOARD ELECTRIC | | Interior Finish: | DRYWALL PAINT | Plumbing Fixture Cnt: | 6 | | Roof Slope: | 4" IN 12" | Roof Structure/Cover: | CJ ASPHALT |
|
| | Type | Description | Class CD | Sub Class CD | Year Built | Area |
| | BAS | BASE/MAIN FLOOR | 3 | 0 | 1957 | 1550.0 |
| | AGR | ATTACHED GARAGE | 3 | 0 | 1957 | 465.0 |
Sketch
Property Image
Land
| 1 | 14 | SQ (08001-12000) | 0.0000 | 0.00 | 0.00 | 0.00 | 1.00 | $250,000 | $0 |
Roll Value History
| 2026 | N/A | N/A | N/A | N/A | N/A |
| 2025 | $240,359 | $250,000 | $0 | $490,359 | $490,359 |
| 2024 | $248,609 | $240,000 | $0 | $488,609 | $488,609 |
| 2023 | $251,827 | $240,000 | $0 | $491,827 | $491,827 |
| 2022 | $228,030 | $210,000 | $0 | $438,030 | $438,030 |
| 2021 | $200,814 | $120,000 | $0 | $320,814 | $320,814 |
| 2020 | $196,370 | $120,000 | $0 | $316,370 | $316,370 |
| 2019 | $145,927 | $170,000 | $0 | $315,927 | $315,927 |
| 2018 | $112,998 | $120,000 | $0 | $232,998 | $232,998 |
| 2017 | $113,789 | $100,000 | $0 | $213,789 | $213,789 |
| 2016 | $110,123 | $100,000 | $0 | $210,123 | $210,123 |
| 2015 | $111,743 | $80,000 | $0 | $191,743 | $191,743 |
| 2014 | $113,363 | $80,000 | $0 | $193,363 | $193,363 |
| 2013 | $114,982 | $80,000 | $0 | $194,982 | $194,982 |
| 2012 | $116,602 | $80,000 | $0 | $196,602 | $196,602 |
| 2011 | $118,221 | $100,000 | $0 | $218,221 | $218,221 |
| 2010 | $112,392 | $100,000 | $0 | $212,392 | $212,392 |
| 2009 | $115,864 | $100,000 | $0 | $215,864 | $215,864 |
| 2008 | $117,602 | $100,000 | $0 | $217,602 | $217,602 |
| 2007 | $119,362 | $100,000 | $0 | $219,362 | $219,362 |
Deed and Sales History
| 1 | 03/08/2023 | WD | Warranty Deed | SIMPSON, JOSHUA K | MCLAUGHLIN, VON | | | $475,000.00 | 56140 | 4557846 |
| 2 | 11/16/2018 | WD | Warranty Deed | LUKEHART, BENJAMIN L | SIMPSON, JOSHUA K | | | $345,000.00 | 36715 | 4455285 |
| 3 | 04/16/2018 | WD | Warranty Deed | CORTESE, JONATHAN A | LUKEHART, BENJAMIN L | | | $324,950.00 | 33727 | 4442833 |
| 4 | 08/20/2003 | TRUSTEED | Trustee's Deed | MORTGAGE CORPORATION, FEDERAL | CORTESE, JONATHAN A | | | $142,400.00 | 33678 | 4072011 |
| 5 | 06/12/2003 | TRUSTEED | Trustee's Deed | MUNSELL, VIRGINIA A | MORTGAGE CORPORATION, FEDERAL | | | $130,000.00 | 32530 | 4062992 |
| 6 | 06/25/1998 | WD | Warranty Deed | MUNSELL, VIRGINIA A | MUNSELL, VIRGINIA A | | | $135,000.00 | 82723 | 98014100 |
| 7 | 10/01/1997 | WD | Warranty Deed | BANK, OF N | WELL, RONALF J | | | $71,900.00 | 73884 | 97018540 |
| 8 | 02/01/1997 | TRUSTEED | Trustee's Deed | LEE, JOHN T | BANK, OF N | | | $0.00 | 70572 | 97002627 |
| 9 | 01/01/1900 | OTHER | Other - Misc. Documents | Unknown | LEE, JOHN T | | | $0.00 | 0 | 0 |
| 10 | 01/01/1900 | OTHER | Other - Misc. Documents | WELL, RONALF J | MUNSELL, VIRGINIA A | | | $0.00 | 82723 | 98014100 |
Payout Agreement
| No payout information available.. |