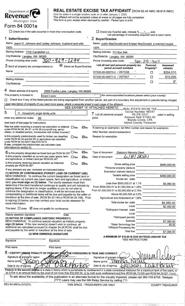
Property
Account |
| Property ID: | 555795 | Abbreviated Legal Description: | LOT 2 SP 82-19.32915.293-1740 AF#397864 V1-SP-P141 TGW EZ AF#95000531 |
| Geographic ID: | R32915-272-1250 | Agent Code: | |
| Type: | Real | | |
| Tax Area: | 712 - APPRAISER-S Whid Schl Dist, outside Langley, improved, greater than 1 acre | Land Use Code | 11 |
| Open Space: | N | DFL | N |
| Historic Property: | N | Remodel Property: | N |
| Multi-Family Redevelopment: | N | | |
| Township: | 29 | Section: | 15 |
| Range: | R3 |
Location |
| Address: | 5801 MAXWELTON RD LANGLEY, WA 98260 | Mapsco: | |
| Neighborhood: | Cycle 4 | Map ID: | 770 |
| Neighborhood CD: | 4 |
Owner |
| Name: | HOGUE, TERRY M | Owner ID: | 17941 |
| Mailing Address: | POLLIE E HOGUE 5801 MAXWELTON RD LANGLEY, WA 98260-9518 | % Ownership: | 100.0000000000% |
| | | Exemptions: | |
Taxes and Assessment Details
Values
| (+) Improvement Homesite Value: | + | $0 | |
| (+) Improvement Non-Homesite Value: | + | $220,750 | |
| (+) Land Homesite Value: | + | $0 | |
| (+) Land Non-Homesite Value: | + | $370,000 | |
| (+) Curr Use (HS): | + | $0 | $0 |
| (+) Curr Use (NHS): | + | $0 | $0 |
| | | -------------------------- | |
| (=) Market Value: | = | $590,750 | |
| (–) Productivity Loss: | – | $0 | |
| | | -------------------------- | |
| (=) Subtotal: | = | $590,750 | |
| (+) Senior Appraised Value: | + | $0 | |
| (+) Non-Senior Appraised Value: | + | $590,750 | |
| | | -------------------------- | |
| (=) Total Appraised Value: | = | $590,750 | |
| (–) Senior Exemption Loss: | – | $0 | |
| (–) Exemption Loss: | – | $0 | |
| | | -------------------------- | |
| (=) Taxable Value: | = | $590,750 | |
Taxing Jurisdiction
| Owner: | HOGUE, TERRY M | | |
| % Ownership: | 100.0000000000% | | |
| Total Value: | $590,750 | | |
| Tax Area: | 712 - APPRAISER-S Whid Schl Dist, outside Langley, improved, greater than 1 acre |
| CF | Conservation Futures | 0.0316035091 | $590,750 | $590,750 | $18.67 | | |
| FIRE3 | Fire & Rescue Dist #3 S Whidbey GEN | 1.2004855531 | $590,750 | $590,750 | $709.19 | | |
| HOBOND | Hospital BOND | 0.1910887512 | $590,750 | $590,750 | $112.89 | | |
| HOGEN | Hospital GEN | 0.3902502903 | $590,750 | $590,750 | $230.54 | | |
| CE | County Current Expense | 0.3708482477 | $590,750 | $590,750 | $219.08 | | |
| CR | County Roads | 0.4584763726 | $590,750 | $590,750 | $270.84 | | |
| ISLANDEMS | Hospital GEN (EMS) | 0.5000000000 | $590,750 | $590,750 | $295.38 | | |
| LIB | Library Sno-Isle GEN | 0.3153421757 | $590,750 | $590,750 | $186.29 | | |
| PORTWHID | Port of S Whidbey GEN | 0.1094540357 | $590,750 | $590,750 | $64.66 | | |
| SCH206BOND | School 206 BOND | 0.3161759235 | $590,750 | $590,750 | $186.78 | | |
| SCH206MO | School 206 Enrichment | 0.4547169547 | $590,750 | $590,750 | $268.62 | | |
| ST | State School | 1.3035497053 | $590,750 | $590,750 | $770.07 | | |
| ST2 | State School Part 2 | 0.8169543533 | $590,750 | $590,750 | $482.62 | | |
| SWHIDPRBD | P & R S Whidbey BOND | 0.0152817568 | $590,750 | $590,750 | $9.03 | | |
| SWHIDPRBD2 | P & R S Whidbey BOND2 | 0.0138911264 | $590,750 | $590,750 | $8.21 | | |
| SWHIDPRMT | P & R S Whidbey GEN | 0.2053334452 | $590,750 | $590,750 | $121.30 | | |
| | Total Tax Rate: | 6.6934522006 | | | | | |
| | | | | Taxes w/Current Exemptions: | $3,954.17 | | |
| | | | | Taxes w/o Exemptions: | $3,954.17 | | |
Improvement / Building
| Improvement #1: | RESIDENTIAL | State Code: | Y | 1317.0 sqft | Value: | $220,750 |
| Bathrooms: | 2.5 | Bedrooms: | 2 | | Ceiling: | DRYWALL PAINTED | Exterior Wall/Cover: | SHINGLE | | Floor Covering: | HARDWOOD/CARP 80-20 | Floor Structure: | WOOD W/SUBFLOOR | | Foundation: | CONCRETE | Heating: | WALL HEAT ELECTRIC | | Interior Finish: | DRYWALL PAINT | Plumbing Fixture Cnt: | 11 | | Roof Slope: | 6" IN 12" | Roof Structure/Cover: | CJ ASPHALT |
|
| | Type | Description | Class CD | Sub Class CD | Year Built | Area |
| | BAS | BASE/MAIN FLOOR | 3 | 0 | 1920 | 817.0 |
| | DWN | DOWNSTAIRS LIVING AREA | 3 | 0 | 1920 | 500.0 |
| | OWP | OPEN WOOD PORCH W/STEPS | 3 | 0 | 1920 | 273.8 |
| | OWP | OPEN WOOD PORCH W/STEPS | 3 | 0 | 1920 | 24.0 |
Sketch
Property Image
Land
| 1 | 32 | AC (03.01-09.99) | 5.0000 | 0.00 | 0.00 | 0.00 | 1.00 | $370,000 | $0 |
Roll Value History
| 2026 | N/A | N/A | N/A | N/A | N/A |
| 2025 | $220,750 | $370,000 | $0 | $590,750 | $590,750 |
| 2024 | $223,536 | $350,000 | $0 | $573,536 | $573,536 |
| 2023 | $226,321 | $330,000 | $0 | $556,321 | $556,321 |
| 2022 | $207,460 | $280,000 | $0 | $487,460 | $487,460 |
| 2021 | $182,594 | $230,000 | $0 | $412,594 | $412,594 |
| 2020 | $171,925 | $190,000 | $0 | $361,925 | $361,925 |
| 2019 | $115,888 | $250,000 | $0 | $365,888 | $365,888 |
| 2018 | $116,241 | $210,000 | $0 | $326,241 | $326,241 |
| 2017 | $116,945 | $190,000 | $0 | $306,945 | $306,945 |
| 2016 | $118,354 | $165,000 | $0 | $283,354 | $283,354 |
| 2015 | $119,764 | $135,000 | $0 | $254,764 | $254,764 |
| 2014 | $79,337 | $160,000 | $0 | $239,337 | $239,337 |
| 2013 | $80,553 | $160,000 | $0 | $240,553 | $240,553 |
| 2012 | $81,770 | $160,000 | $0 | $241,770 | $241,770 |
| 2011 | $82,985 | $160,000 | $0 | $242,985 | $242,985 |
| 2010 | $79,703 | $160,000 | $0 | $239,703 | $239,703 |
| 2009 | $83,211 | $220,000 | $0 | $303,211 | $303,211 |
| 2008 | $69,197 | $192,000 | $0 | $261,197 | $261,197 |
| 2007 | $70,366 | $192,000 | $0 | $262,366 | $262,366 |
Deed and Sales History
| 1 | 06/11/2003 | WD | Warranty Deed | EVANS, JAMES R | HOGUE, TERY M | | | $179,000.00 | 32629 | 4063530 |
| 2 | 10/01/1982 | PACD | Purchaser's Assignment | Unknown | SCRIVEN, JAMES | | | $0.00 | 59680 | 397864 |
| 3 | 09/01/1982 | EXECUTORD | Executor Deed | SCRIVEN, JAMES | EVANS, JAMES R | | | $51,000.00 | 22452 | 401615 |
Payout Agreement
| No payout information available.. |