Property
Account |
| Property ID: | 5559 | Abbreviated Legal Description: | TR 1 - SP 77-89 11 I EBEY D C - BG NLY CR SD DC S38*W2049.3' TPB S57* E165' S38*W175' N57*W165' N38*E175' TPB TGW SUB EZ |
| Geographic ID: | R13105-251-3790 | Agent Code: | |
| Type: | Real | | |
| Tax Area: | 310 - APPRAISER-Cpvl Schl Dist, outside Cpvl, improved & 1 acre or less | Land Use Code | 11 |
| Open Space: | N | DFL | N |
| Historic Property: | N | Remodel Property: | N |
| Multi-Family Redevelopment: | N | | |
| Township: | 31 | Section: | 05 |
| Range: | R1 |
Location |
| Address: | 1706 REBECCA DR COUPEVILLE, WA 98239 | Mapsco: | |
| Neighborhood: | Cycle 2 | Map ID: | 34 |
| Neighborhood CD: | 2 |
Owner |
| Name: | SMITH, JESSE | Owner ID: | 311377 |
| Mailing Address: | DIANE SMITH 302 LONGTIMEM LANE SEDRO-WOOLLEY, WA 98284 | % Ownership: | 100.0000000000% |
| | | Exemptions: | |
Taxes and Assessment Details
Values
| (+) Improvement Homesite Value: | + | $0 | |
| (+) Improvement Non-Homesite Value: | + | $417,962 | |
| (+) Land Homesite Value: | + | $0 | |
| (+) Land Non-Homesite Value: | + | $340,000 | |
| (+) Curr Use (HS): | + | $0 | $0 |
| (+) Curr Use (NHS): | + | $0 | $0 |
| | | -------------------------- | |
| (=) Market Value: | = | $757,962 | |
| (–) Productivity Loss: | – | $0 | |
| | | -------------------------- | |
| (=) Subtotal: | = | $757,962 | |
| (+) Senior Appraised Value: | + | $0 | |
| (+) Non-Senior Appraised Value: | + | $757,962 | |
| | | -------------------------- | |
| (=) Total Appraised Value: | = | $757,962 | |
| (–) Senior Exemption Loss: | – | $0 | |
| (–) Exemption Loss: | – | $0 | |
| | | -------------------------- | |
| (=) Taxable Value: | = | $757,962 | |
Taxing Jurisdiction
| Owner: | SMITH, JESSE | | |
| % Ownership: | 100.0000000000% | | |
| Total Value: | $757,962 | | |
| Tax Area: | 310 - APPRAISER-Cpvl Schl Dist, outside Cpvl, improved & 1 acre or less |
| CF | Conservation Futures | 0.0316035091 | $757,962 | $757,962 | $23.95 | | |
| CEM2 | Cemetery #2 | 0.0095056933 | $757,962 | $757,962 | $7.20 | | |
| FIRE5 | Fire & Rescue Dist #5 C Whidbey GEN | 1.2008080668 | $757,962 | $757,962 | $910.17 | | |
| FIRE5BOND | Fire & Rescue Dist #5 C Whidbey BOND | 0.1400090713 | $757,962 | $757,962 | $106.12 | | |
| HOBOND | Hospital BOND | 0.1910887512 | $757,962 | $757,962 | $144.84 | | |
| HOGEN | Hospital GEN | 0.3902502903 | $757,962 | $757,962 | $295.79 | | |
| CE | County Current Expense | 0.3708482477 | $757,962 | $757,962 | $281.09 | | |
| CR | County Roads | 0.4584763726 | $757,962 | $757,962 | $347.51 | | |
| ISLANDEMS | Hospital GEN (EMS) | 0.5000000000 | $757,962 | $757,962 | $378.98 | | |
| LIB | Library Sno-Isle GEN | 0.3153421757 | $757,962 | $757,962 | $239.02 | | |
| LIBCAP | Library Sno-Isle BOND (Cap Fac Imp Area) | 0.0543427938 | $757,962 | $757,962 | $41.19 | | |
| POCOUP | Port of Coupeville GEN | 0.1093371703 | $757,962 | $757,962 | $82.87 | | |
| POCOUPIDD | Port of Coupeville IDD | 0.3409740022 | $757,962 | $757,962 | $258.45 | | |
| COUPSDTECH | School 204 CP (TECH) | 0.7545480007 | $757,962 | $757,962 | $571.92 | | |
| SCH204MO | School 204 Enrichment | 0.6716186034 | $757,962 | $757,962 | $509.06 | | |
| ST | State School | 1.3035497053 | $757,962 | $757,962 | $988.04 | | |
| ST2 | State School Part 2 | 0.8169543533 | $757,962 | $757,962 | $619.22 | | |
| | Total Tax Rate: | 7.6592568070 | | | | | |
| | | | | Taxes w/Current Exemptions: | $5,805.42 | | |
| | | | | Taxes w/o Exemptions: | $5,805.42 | | |
Improvement / Building
| Improvement #1: | RESIDENTIAL | State Code: | Y | 2478.0 sqft | Value: | $417,962 |
| Bathrooms: | 2 | Bedrooms: | 3 | | Ceiling: | DRYWALL PAINTED | Exterior Wall/Cover: | WOOD SIDING | | Floor Covering: | CERAMIC TILE/CPT 40-60 | Floor Structure: | WOOD W/SUBFLOOR | | Foundation: | CONCRETE | Heating: | FHA OIL | | Interior Finish: | DRYWALL PAINT | Plumbing Fixture Cnt: | 9 | | Roof Slope: | 3" IN 12" | Roof Structure/Cover: | BEAM ASPHALT |
|
| | Type | Description | Class CD | Sub Class CD | Year Built | Area |
| | BAS | BASE/MAIN FLOOR | 4 | 0 | 1960 | 2478.0 |
| | OP2 | OPEN PORCH W/STEPS | 4 | 0 | 1960 | 276.0 |
| | OP2 | OPEN PORCH W/STEPS | 4 | 0 | 1960 | 138.0 |
| | OP4 | OPEN PORCH W/CEILING-ROOF | 4 | 0 | 1960 | 96.0 |
| | OP4 | OPEN PORCH W/CEILING-ROOF | 4 | 0 | 1960 | 204.0 |
| | UTY | STORAGE/UTILITY | 4 | 0 | 1960 | 880.0 |
| | CPD | OPEN CARPORT DIRT FLOOR | 4 | 0 | 1960 | 320.0 |
Sketch
| No sketches available for this property. |
Property Image
Land
| 1 | HS | HOMESITE | 0.6800 | 29620.80 | 0.00 | 0.00 | 1.00 | $340,000 | $0 |
Roll Value History
| 2026 | N/A | N/A | N/A | N/A | N/A |
| 2025 | $417,962 | $340,000 | $0 | $757,962 | $757,962 |
| 2024 | $328,976 | $346,500 | $0 | $675,476 | $675,476 |
| 2023 | $334,260 | $346,500 | $0 | $680,760 | $680,760 |
| 2022 | $307,470 | $330,000 | $0 | $637,470 | $637,470 |
| 2021 | $271,528 | $300,000 | $0 | $571,528 | $571,528 |
| 2020 | $266,322 | $300,000 | $0 | $566,322 | $566,322 |
| 2019 | $209,713 | $400,000 | $0 | $609,713 | $609,713 |
| 2018 | $185,064 | $350,000 | $0 | $535,064 | $535,064 |
| 2017 | $186,507 | $350,000 | $0 | $536,507 | $536,507 |
| 2016 | $189,395 | $350,000 | $0 | $539,395 | $539,395 |
| 2015 | $192,282 | $250,000 | $0 | $442,282 | $442,282 |
| 2014 | $195,170 | $250,000 | $0 | $445,170 | $445,170 |
| 2013 | $198,058 | $212,500 | $0 | $410,558 | $410,558 |
| 2012 | $197,281 | $170,000 | $0 | $367,281 | $367,281 |
| 2011 | $200,113 | $200,000 | $0 | $400,113 | $400,113 |
| 2010 | $217,398 | $200,000 | $0 | $417,398 | $417,398 |
| 2009 | $226,738 | $200,000 | $0 | $426,738 | $426,738 |
| 2008 | $229,648 | $202,320 | $0 | $431,968 | $431,968 |
| 2007 | $232,557 | $196,425 | $0 | $428,982 | $428,982 |
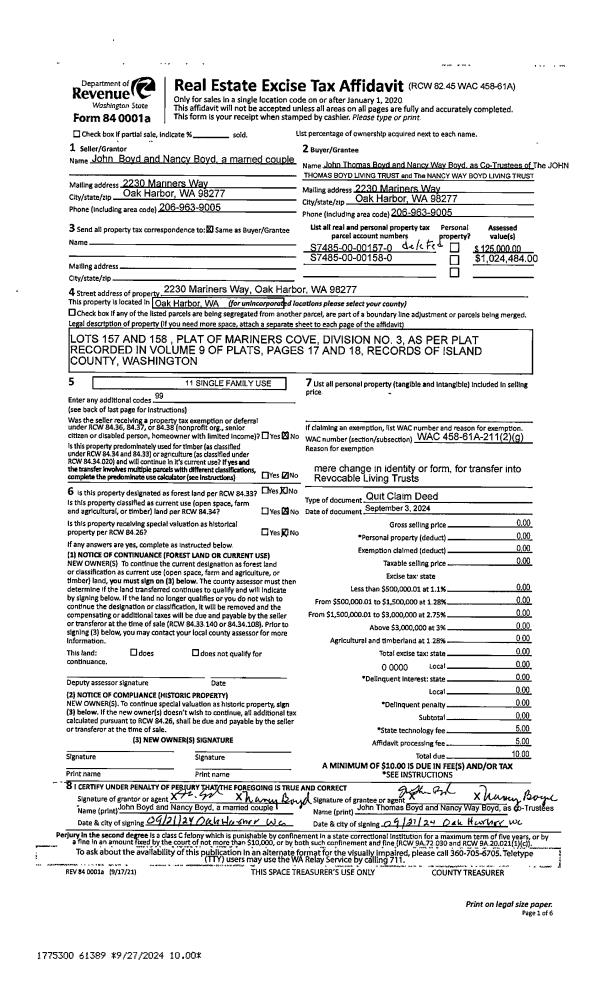
Deed and Sales History
| 1 | 02/06/2024 | QCD | Quit Claim Deed | SMITH, JESSE B | SMITH, JESSE | | | $0.00 | 59169 | 4569214 |
| 2 | 03/22/2021 | QCD | Quit Claim Deed | OBEN, DIANE K | SMITH, JESSE B | | | $0.00 | 47496 | 4514699 |
| 3 | 03/31/2017 | WD | Warranty Deed | SMITH, STEVEN B | SMITH, JESSE B | | | $475,000.00 | 28698 | 4419997 |
| 4 | 03/20/2013 | QCD | Quit Claim Deed | SMITH UNDIV 50% INT, KARL KNIGHT | SMITH, STEVEN B | | | $237,500.00 | 10823 | 4336428 |
| 5 | 03/20/2013 | QCD | Quit Claim Deed | HAEGER, ROBERTA S | SMITH UNDIV 50% INT, KARL KNIGHT | | | $0.00 | 10822 | 4336427 |
| 6 | 09/25/2001 | BLA | DNU - Boundary Line Adjustment | HAEGER, ROBERTA S | HAEGER, ROBERTA S | | | $0.00 | 69110 | 20042839 |
| 7 | 05/19/2000 | ESTSEPPROP | Establish Separate Property | HAEGER, ROBERTA S | HAEGER, ROBERTA S | | | $0.00 | 1891 | 20009137 |
| 8 | 09/01/1984 | QCD | Quit Claim Deed | HAEGER, ROBERTA S | HAEGER, ROBERTA S | | | $0.00 | 43206 | 84005150 |
| 9 | 07/01/1984 | QCD | Quit Claim Deed | OLYMPIC, BANK T | HAEGER, ROBERTA S | | | $0.00 | 42033 | 84000636 |
| 10 | 02/01/1981 | TRUSTEED | Trustee's Deed | SMITH, ROBERTA | OLYMPIC, BANK T | | | $0.00 | 10876 | 381035 |
| 11 | 01/01/1900 | REC | Real Estate Contract | Unknown | SMITH, ROBERTA | | | $0.00 | 4421 | 0 |
Payout Agreement
| No payout information available.. |