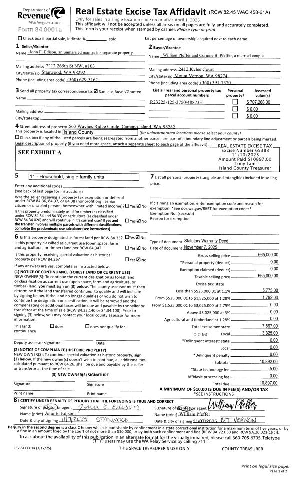
Property
Account |
| Property ID: | 55629 | Abbreviated Legal Description: | 56 - IN GL4: BG SLN GL4 2054.39'W OF SECR GL4 N34*E 746.49' N13*E50.9' N27*E150 TPB N27*E50' N63*W200' M/L TO HITDLN S30*W ALG SD LN 50' S63*E200' M/L TPB INCL ADJ TIDES |
| Geographic ID: | R22922-086-1000 | Agent Code: | |
| Type: | Real | | |
| Tax Area: | 710 - APPRAISER-S Whid Schl Dist, outside Langley, improved & 1 acre or less | Land Use Code | 11 |
| Open Space: | N | DFL | N |
| Historic Property: | N | Remodel Property: | N |
| Multi-Family Redevelopment: | N | | |
| Township: | 29 | Section: | 22 |
| Range: | R2 |
Location |
| Address: | 6336 BAY RD FREELAND, WA 98249 | Mapsco: | |
| Neighborhood: | Cycle 3 | Map ID: | 334 |
| Neighborhood CD: | 3 |
Owner |
| Name: | COOLEY, EDWARD B / PEGGY J | Owner ID: | 69816 |
| Mailing Address: | 401 E MOUNTAIN ST GLENDALE, CA 91207-1419 | % Ownership: | 100.0000000000% |
| | | Exemptions: | |
Taxes and Assessment Details
Values
| (+) Improvement Homesite Value: | + | $0 | |
| (+) Improvement Non-Homesite Value: | + | $136,455 | |
| (+) Land Homesite Value: | + | $0 | |
| (+) Land Non-Homesite Value: | + | $1,300,500 | |
| (+) Curr Use (HS): | + | $0 | $0 |
| (+) Curr Use (NHS): | + | $0 | $0 |
| | | -------------------------- | |
| (=) Market Value: | = | $1,436,955 | |
| (–) Productivity Loss: | – | $0 | |
| | | -------------------------- | |
| (=) Subtotal: | = | $1,436,955 | |
| (+) Senior Appraised Value: | + | $0 | |
| (+) Non-Senior Appraised Value: | + | $1,436,955 | |
| | | -------------------------- | |
| (=) Total Appraised Value: | = | $1,436,955 | |
| (–) Senior Exemption Loss: | – | $0 | |
| (–) Exemption Loss: | – | $0 | |
| | | -------------------------- | |
| (=) Taxable Value: | = | $1,436,955 | |
Taxing Jurisdiction
| Owner: | COOLEY, EDWARD B / PEGGY J | | |
| % Ownership: | 100.0000000000% | | |
| Total Value: | $1,436,955 | | |
| Tax Area: | 710 - APPRAISER-S Whid Schl Dist, outside Langley, improved & 1 acre or less |
| CF | Conservation Futures | 0.0316035091 | $1,436,955 | $1,436,955 | $45.41 | | |
| FIRE3 | Fire & Rescue Dist #3 S Whidbey GEN | 1.2004855531 | $1,436,955 | $1,436,955 | $1,725.04 | | |
| HOBOND | Hospital BOND | 0.1910887512 | $1,436,955 | $1,436,955 | $274.59 | | |
| HOGEN | Hospital GEN | 0.3902502903 | $1,436,955 | $1,436,955 | $560.77 | | |
| CE | County Current Expense | 0.3708482477 | $1,436,955 | $1,436,955 | $532.89 | | |
| CR | County Roads | 0.4584763726 | $1,436,955 | $1,436,955 | $658.81 | | |
| ISLANDEMS | Hospital GEN (EMS) | 0.5000000000 | $1,436,955 | $1,436,955 | $718.48 | | |
| LIB | Library Sno-Isle GEN | 0.3153421757 | $1,436,955 | $1,436,955 | $453.13 | | |
| PORTWHID | Port of S Whidbey GEN | 0.1094540357 | $1,436,955 | $1,436,955 | $157.28 | | |
| SCH206BOND | School 206 BOND | 0.3161759235 | $1,436,955 | $1,436,955 | $454.33 | | |
| SCH206MO | School 206 Enrichment | 0.4547169547 | $1,436,955 | $1,436,955 | $653.41 | | |
| ST | State School | 1.3035497053 | $1,436,955 | $1,436,955 | $1,873.14 | | |
| ST2 | State School Part 2 | 0.8169543533 | $1,436,955 | $1,436,955 | $1,173.93 | | |
| SWHIDPRBD | P & R S Whidbey BOND | 0.0152817568 | $1,436,955 | $1,436,955 | $21.96 | | |
| SWHIDPRBD2 | P & R S Whidbey BOND2 | 0.0138911264 | $1,436,955 | $1,436,955 | $19.96 | | |
| SWHIDPRMT | P & R S Whidbey GEN | 0.2053334452 | $1,436,955 | $1,436,955 | $295.05 | | |
| | Total Tax Rate: | 6.6934522006 | | | | | |
| | | | | Taxes w/Current Exemptions: | $9,618.18 | | |
| | | | | Taxes w/o Exemptions: | $9,618.18 | | |
Improvement / Building
| Improvement #1: | RESIDENTIAL | State Code: | Y | 780.0 sqft | Value: | $136,455 |
| Bathrooms: | 1 | Bedrooms: | 1 | | Ceiling: | TONGUE & GROOVE | Exterior Wall/Cover: | WOOD SIDING | | Floor Covering: | HARDWOOD/CARP 20-80 | Floor Structure: | WOOD W/SUBFLOOR | | Foundation: | CONCRETE BLOCKS | Heating: | BASEBOARD ELECTRIC | | Interior Finish: | DRYWALL PAINT | Plumbing Fixture Cnt: | 6 | | Roof Slope: | 3" IN 12" | Roof Structure/Cover: | BEAM BUILT-UP ROCK |
|
| | Type | Description | Class CD | Sub Class CD | Year Built | Area |
| | BAS | BASE/MAIN FLOOR | 3 | 0 | 1963 | 780.0 |
| | OWP | OPEN WOOD PORCH W/STEPS | 3 | 0 | 1963 | 495.0 |
| | OWP | OPEN WOOD PORCH W/STEPS | 3 | 0 | 1963 | 359.0 |
| | OWR | OPEN WOOD PORCH W/STEPS/ROOF | 3 | 0 | 1963 | 135.0 |
Sketch
Property Image
Land
| 1 | LB | LOW BANK | 0.2000 | 8712.00 | 50.00 | 0.00 | 1.00 | $1,300,000 | $0 |
| 2 | 55 | TIDES | 0.0000 | 0.00 | 50.00 | 0.00 | 1.00 | $500 | $0 |
Roll Value History
| 2026 | N/A | N/A | N/A | N/A | N/A |
| 2025 | $136,455 | $1,300,500 | $0 | $1,436,955 | $1,436,955 |
| 2024 | $141,333 | $1,100,500 | $0 | $1,241,833 | $1,241,833 |
| 2023 | $143,467 | $1,100,500 | $0 | $1,243,967 | $1,243,967 |
| 2022 | $131,844 | $1,050,500 | $0 | $1,182,344 | $1,182,344 |
| 2021 | $116,329 | $800,500 | $0 | $916,829 | $916,829 |
| 2020 | $113,385 | $675,500 | $0 | $788,885 | $788,885 |
| 2019 | $69,241 | $725,500 | $0 | $794,741 | $794,741 |
| 2018 | $69,507 | $700,500 | $0 | $770,007 | $770,007 |
| 2017 | $70,037 | $700,500 | $0 | $770,537 | $770,537 |
| 2016 | $71,098 | $700,500 | $0 | $771,598 | $771,598 |
| 2015 | $72,159 | $700,500 | $0 | $772,659 | $772,659 |
| 2014 | $73,220 | $700,500 | $0 | $773,720 | $773,720 |
| 2013 | $74,596 | $773,896 | $0 | $848,492 | $848,492 |
| 2012 | $75,720 | $773,896 | $0 | $849,616 | $849,616 |
| 2011 | $76,846 | $773,896 | $0 | $850,742 | $850,742 |
| 2010 | $82,709 | $773,896 | $0 | $856,605 | $856,605 |
| 2009 | $86,335 | $925,075 | $0 | $1,011,410 | $1,011,410 |
| 2008 | $71,609 | $1,058,748 | $0 | $1,130,357 | $1,130,357 |
| 2007 | $72,141 | $1,058,398 | $0 | $1,130,539 | $1,130,539 |
Deed and Sales History
| 1 | 06/01/1996 | WD | Warranty Deed | TURNER, DEAN S | COOLEY, EDWARD B | | | $323,000.00 | 62167 | 96010773 |
| 2 | 01/01/1900 | OTHER | Other - Misc. Documents | Unknown | TURNER, DEAN S | | | $0.00 | 0 | 0 |
Payout Agreement
| No payout information available.. |