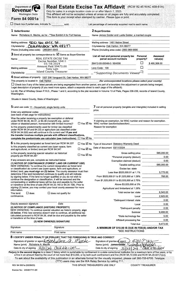
Property
Account |
| Property ID: | 556428 | Abbreviated Legal Description: | WEST BEACH VISTA #2 LOT 6 FR LOT 5 10/29/82 |
| Geographic ID: | S8385-00-00006-0 | Agent Code: | |
| Type: | Real | | |
| Tax Area: | 119 - APPRAISER-OH Schl Dist, outside OH, vacant & 50 acres or less | Land Use Code | 99 |
| Open Space: | N | DFL | N |
| Historic Property: | N | Remodel Property: | N |
| Multi-Family Redevelopment: | N | | |
| Township: | | Section: | |
| Range: | |
Location |
| Address: | WEST BEACH RD OAK HARBOR, WA 98277 | Mapsco: | |
| Neighborhood: | Cycle 1 | Map ID: | 243 |
| Neighborhood CD: | 1 |
Owner |
| Name: | IANI, FRANCES S | Owner ID: | 80960 |
| Mailing Address: | JOHN E TYHUIS 100 W QUEEN CREEK RD #145 CHANDLER, AZ 85248 | % Ownership: | 100.0000000000% |
| | | Exemptions: | |
Taxes and Assessment Details
Values
| (+) Improvement Homesite Value: | + | $0 | |
| (+) Improvement Non-Homesite Value: | + | $0 | |
| (+) Land Homesite Value: | + | $0 | |
| (+) Land Non-Homesite Value: | + | $600 | |
| (+) Curr Use (HS): | + | $0 | $0 |
| (+) Curr Use (NHS): | + | $0 | $0 |
| | | -------------------------- | |
| (=) Market Value: | = | $600 | |
| (–) Productivity Loss: | – | $0 | |
| | | -------------------------- | |
| (=) Subtotal: | = | $600 | |
| (+) Senior Appraised Value: | + | $0 | |
| (+) Non-Senior Appraised Value: | + | $600 | |
| | | -------------------------- | |
| (=) Total Appraised Value: | = | $600 | |
| (–) Senior Exemption Loss: | – | $0 | |
| (–) Exemption Loss: | – | $0 | |
| | | -------------------------- | |
| (=) Taxable Value: | = | $600 | |
Taxing Jurisdiction
| Owner: | IANI, FRANCES S | | |
| % Ownership: | 100.0000000000% | | |
| Total Value: | $600 | | |
| Tax Area: | 119 - APPRAISER-OH Schl Dist, outside OH, vacant & 50 acres or less |
| CF | Conservation Futures | 0.0316035091 | $600 | $600 | $0.02 | | |
| CEM1 | Cemetery #1 | 0.0040320932 | $600 | $600 | $0.00 | | |
| HOBOND | Hospital BOND | 0.1910887512 | $600 | $600 | $0.11 | | |
| HOGEN | Hospital GEN | 0.3902502903 | $600 | $600 | $0.23 | | |
| CE | County Current Expense | 0.3708482477 | $600 | $600 | $0.22 | | |
| CR | County Roads | 0.4584763726 | $600 | $600 | $0.28 | | |
| ISLANDEMS | Hospital GEN (EMS) | 0.5000000000 | $600 | $600 | $0.30 | | |
| LIB | Library Sno-Isle GEN | 0.3153421757 | $600 | $600 | $0.19 | | |
| NWHIDPRMT | P & R N Whidbey GEN | 0.2004466701 | $600 | $600 | $0.12 | | |
| SCH201MO | School 201 Enrichment | 1.8559231640 | $600 | $600 | $1.11 | | |
| ST | State School | 1.3035497053 | $600 | $600 | $0.78 | | |
| ST2 | State School Part 2 | 0.8169543533 | $600 | $600 | $0.49 | | |
| | Total Tax Rate: | 6.4385153325 | | | | | |
| | | | | Taxes w/Current Exemptions: | $3.85 | | |
| | | | | Taxes w/o Exemptions: | $3.85 | | |
Improvement / Building
Sketch
| No sketches available for this property. |
Property Image
Land
| 1 | 55 | TIDES | 0.0000 | 0.00 | 60.00 | 0.00 | 1.00 | $600 | $0 |
Roll Value History
| 2026 | N/A | N/A | N/A | N/A | N/A |
| 2025 | $0 | $600 | $0 | $600 | $600 |
| 2024 | $0 | $600 | $0 | $600 | $600 |
| 2023 | $0 | $600 | $0 | $600 | $600 |
| 2022 | $0 | $600 | $0 | $600 | $600 |
| 2021 | $0 | $600 | $0 | $600 | $600 |
| 2020 | $0 | $600 | $0 | $600 | $600 |
| 2019 | $0 | $600 | $0 | $600 | $600 |
| 2018 | $0 | $600 | $0 | $600 | $600 |
| 2017 | $0 | $5,000 | $0 | $5,000 | $5,000 |
| 2016 | $0 | $5,000 | $0 | $5,000 | $5,000 |
| 2015 | $0 | $5,000 | $0 | $5,000 | $5,000 |
| 2014 | $0 | $8,003 | $0 | $8,003 | $8,003 |
| 2013 | $0 | $8,003 | $0 | $8,003 | $8,003 |
| 2012 | $0 | $8,003 | $0 | $8,003 | $8,003 |
| 2011 | $0 | $8,003 | $0 | $8,003 | $8,003 |
| 2010 | $0 | $8,003 | $0 | $8,003 | $8,003 |
| 2009 | $0 | $8,003 | $0 | $8,003 | $8,003 |
| 2008 | $0 | $8,003 | $0 | $8,003 | $8,003 |
| 2007 | $0 | $10,404 | $0 | $10,404 | $10,404 |
Deed and Sales History
| 1 | 08/21/2025 | QCD | Quit Claim Deed | IANI, FRANCES S | IANI, L JOHN | | | $0.00 | 64634 | 4590199 |
| 2 | 02/01/1995 | PRD | Personal Representatives Deed | IANI, LOUIS P | IANI, FRANCES S | | | $0.00 | 50749 | 95003460 |
| 3 | 11/01/1988 | WD | Warranty Deed | SARATOGA, INC | IANI, LOUIS P | | | $4,800.00 | 83842 | 88014360 |
| 4 | 11/01/1988 | QCD | Quit Claim Deed | IANI, LOUIS P | IANI, LOUIS P | | | $0.00 | 83843 | 88014361 |
| 5 | 11/01/1987 | OTHER | Other - Misc. Documents | CORTEZ, HERMAN & | SARATOGA, INC | | | $0.00 | 62499 | 0 |
| 6 | 08/01/1987 | OTHER | Other - Misc. Documents | CORTEZ, HERMAN & | CORTEZ, HERMAN & | | | $0.00 | 62498 | 0 |
| 7 | 10/01/1982 | QCD | Quit Claim Deed | Unknown | SARATOGA, INC | | | $0.00 | 22526 | 401893 |
| 8 | 10/01/1982 | REC | Real Estate Contract | SARATOGA, INC | CORTEZ, HERMAN & | | | $3,600.00 | 22641 | 402345 |
Payout Agreement
| No payout information available.. |