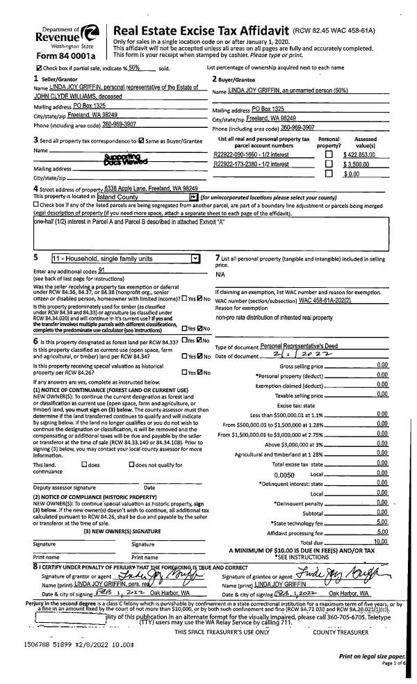
Property
Account |
| Property ID: | 556543 | Abbreviated Legal Description: | 24 - IN GL3 INCL ADJ TLDS N/2 OF FOLL LY W OF EAS: BG 1138'W & 345'N OF SE CR GL3 TPB S110'W TO ML NLY ALG ML TP W OF TPB E TO TPB FR 165-3870 11/2/82 |
| Geographic ID: | R13303-165-3850 | Agent Code: | |
| Type: | Real | | |
| Tax Area: | 110 - APPRAISER-OH Schl Dist, outside OH, improved & 1 acre or less | Land Use Code | 11 |
| Open Space: | N | DFL | N |
| Historic Property: | N | Remodel Property: | N |
| Multi-Family Redevelopment: | N | | |
| Township: | 33 | Section: | 03 |
| Range: | R1 |
Location |
| Address: | 4523 MORAN BEACH LN OAK HARBOR, WA 98277 | Mapsco: | |
| Neighborhood: | Cycle 6 | Map ID: | 197 |
| Neighborhood CD: | 6 |
Owner |
| Name: | MCCLINTON TTEE, CARRIE | Owner ID: | 302763 |
| Mailing Address: | 4819 BURKE AVE N SEATTLE, WA 98103 | % Ownership: | 100.0000000000% |
| | | Exemptions: | |
Taxes and Assessment Details
Values
| (+) Improvement Homesite Value: | + | $0 | |
| (+) Improvement Non-Homesite Value: | + | $161,139 | |
| (+) Land Homesite Value: | + | $0 | |
| (+) Land Non-Homesite Value: | + | $720,550 | |
| (+) Curr Use (HS): | + | $0 | $0 |
| (+) Curr Use (NHS): | + | $0 | $0 |
| | | -------------------------- | |
| (=) Market Value: | = | $881,689 | |
| (–) Productivity Loss: | – | $0 | |
| | | -------------------------- | |
| (=) Subtotal: | = | $881,689 | |
| (+) Senior Appraised Value: | + | $0 | |
| (+) Non-Senior Appraised Value: | + | $881,689 | |
| | | -------------------------- | |
| (=) Total Appraised Value: | = | $881,689 | |
| (–) Senior Exemption Loss: | – | $0 | |
| (–) Exemption Loss: | – | $0 | |
| | | -------------------------- | |
| (=) Taxable Value: | = | $881,689 | |
Taxing Jurisdiction
| Owner: | MCCLINTON TTEE, CARRIE | | |
| % Ownership: | 100.0000000000% | | |
| Total Value: | $881,689 | | |
| Tax Area: | 110 - APPRAISER-OH Schl Dist, outside OH, improved & 1 acre or less |
| CF | Conservation Futures | 0.0316035091 | $881,689 | $881,689 | $27.86 | | |
| CEM1 | Cemetery #1 | 0.0040320932 | $881,689 | $881,689 | $3.56 | | |
| FIRE2 | Fire & Rescue Dist #2 N Whidbey GEN | 0.5475949600 | $881,689 | $881,689 | $482.81 | | |
| HOBOND | Hospital BOND | 0.1910887512 | $881,689 | $881,689 | $168.48 | | |
| HOGEN | Hospital GEN | 0.3902502903 | $881,689 | $881,689 | $344.08 | | |
| CE | County Current Expense | 0.3708482477 | $881,689 | $881,689 | $326.97 | | |
| CR | County Roads | 0.4584763726 | $881,689 | $881,689 | $404.23 | | |
| ISLANDEMS | Hospital GEN (EMS) | 0.5000000000 | $881,689 | $881,689 | $440.84 | | |
| LIB | Library Sno-Isle GEN | 0.3153421757 | $881,689 | $881,689 | $278.03 | | |
| NWHIDPRMT | P & R N Whidbey GEN | 0.2004466701 | $881,689 | $881,689 | $176.73 | | |
| SCH201MO | School 201 Enrichment | 1.8559231640 | $881,689 | $881,689 | $1,636.35 | | |
| ST | State School | 1.3035497053 | $881,689 | $881,689 | $1,149.33 | | |
| ST2 | State School Part 2 | 0.8169543533 | $881,689 | $881,689 | $720.30 | | |
| | Total Tax Rate: | 6.9861102925 | | | | | |
| | | | | Taxes w/Current Exemptions: | $6,159.57 | | |
| | | | | Taxes w/o Exemptions: | $6,159.57 | | |
Improvement / Building
| Improvement #1: | RESIDENTIAL | State Code: | Y | 1080.0 sqft | Value: | $161,139 |
| Bathrooms: | 1 | Bedrooms: | 1 | | Ceiling: | TONGUE & GROOVE | Exterior Wall/Cover: | WOOD SIDING | | Floor Covering: | VINYL 100% | Floor Structure: | WOOD W/SUBFLOOR | | Foundation: | CONCRETE | Heating: | BASEBOARD ELECTRIC | | Interior Finish: | DRYWALL PAINT | Plumbing Fixture Cnt: | 6 | | Roof Slope: | FLAT | Roof Structure/Cover: | BEAM BUILT-UP ROCK |
|
| | Type | Description | Class CD | Sub Class CD | Year Built | Area |
| | BAS | BASE/MAIN FLOOR | 3 | 0 | 1950 | 1080.0 |
| | OP3 | OPEN PORCH W/ROOF | 3 | 0 | 1950 | 220.0 |
| | OCP | OPEN CARPORT | 3 | 0 | 1950 | 609.0 |
| | UTY | STORAGE/UTILITY | 3 | 0 | 1950 | 85.0 |
| | OWP | OPEN WOOD PORCH W/STEPS | 3 | 0 | 1950 | 1125.0 |
Sketch
Property Image
Land
| 1 | LB | LOW BANK | 0.5500 | 23958.00 | 55.00 | 0.00 | 1.00 | $720,000 | $0 |
| 2 | 55 | TIDES | 0.0000 | 0.00 | 55.00 | 0.00 | 1.00 | $550 | $0 |
Roll Value History
| 2026 | N/A | N/A | N/A | N/A | N/A |
| 2025 | $161,139 | $720,550 | $0 | $881,689 | $881,689 |
| 2024 | $167,050 | $670,550 | $0 | $837,600 | $837,600 |
| 2023 | $169,690 | $655,550 | $0 | $825,240 | $825,240 |
| 2022 | $156,223 | $650,550 | $0 | $806,773 | $806,773 |
| 2021 | $137,998 | $350,550 | $0 | $488,548 | $488,548 |
| 2020 | $135,080 | $290,550 | $0 | $425,630 | $335,600 |
| 2019 | $98,121 | $330,550 | $0 | $428,671 | $337,120 |
| 2018 | $98,491 | $300,550 | $0 | $399,041 | $322,305 |
| 2017 | $99,232 | $300,550 | $0 | $399,782 | $322,676 |
| 2016 | $67,122 | $300,550 | $0 | $367,672 | $303,329 |
| 2015 | $68,683 | $300,550 | $0 | $369,233 | $304,617 |
| 2014 | $70,243 | $300,550 | $0 | $370,793 | $370,793 |
| 2013 | $71,804 | $305,995 | $0 | $377,799 | $377,799 |
| 2012 | $73,365 | $305,995 | $0 | $379,360 | $379,360 |
| 2011 | $74,926 | $332,005 | $0 | $406,931 | $406,931 |
| 2010 | $97,677 | $332,005 | $0 | $429,682 | $429,682 |
| 2009 | $102,334 | $382,156 | $0 | $484,490 | $484,490 |
| 2008 | $104,426 | $417,166 | $0 | $521,592 | $521,592 |
| 2007 | $177,929 | $345,392 | $0 | $523,321 | $523,321 |
Deed and Sales History
| 1 | 11/15/2021 | QCD | Quit Claim Deed | HUDGINS, CONSTANCE J | MCCLINTON TTEE, CARRIE | | | $0.00 | 51199 | 4535239 |
| 2 | 11/16/2021 | QCD | Quit Claim Deed | HUDGINS, CONSTANCE J | MCCLINTON TTEE, CARRIE | | | $367,059.00 | 51200 | 4535238 |
| 3 | 09/01/1997 | 5 | DNU - Marriage License/Name Change | SIEVERS, CONSTANCE J | HUDGINS, CONSTANCE J | | | $0.00 | 67602 | 0 |
| 4 | 02/01/1981 | CD | DNU - Correction Deed | Unknown | SIEVERS, CONSTANCE J | | | $0.00 | 10644 | 0 |
Payout Agreement
| No payout information available.. |