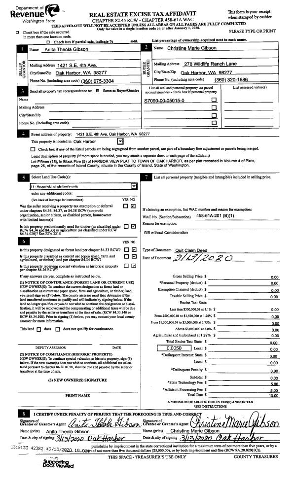
Property
Account |
| Property ID: | 55665 | Abbreviated Legal Description: | 57 - GL4 INCL ADJ TLDS |
| Geographic ID: | R22922-095-1050 | Agent Code: | |
| Type: | Real | | |
| Tax Area: | 710 - APPRAISER-S Whid Schl Dist, outside Langley, improved & 1 acre or less | Land Use Code | 11 |
| Open Space: | N | DFL | N |
| Historic Property: | N | Remodel Property: | N |
| Multi-Family Redevelopment: | N | | |
| Township: | 29 | Section: | 22 |
| Range: | R2 |
Location |
| Address: | 6330 BAY RD FREELAND, WA 98249 | Mapsco: | |
| Neighborhood: | Cycle 3 | Map ID: | 334 |
| Neighborhood CD: | 3 |
Owner |
| Name: | HALL, KAYE L | Owner ID: | 269546 |
| Mailing Address: | 904 GRAND AVE EVERETT, WA 98201 | % Ownership: | 100.0000000000% |
| | | Exemptions: | |
Taxes and Assessment Details
Values
| (+) Improvement Homesite Value: | + | $0 | |
| (+) Improvement Non-Homesite Value: | + | $130,501 | |
| (+) Land Homesite Value: | + | $0 | |
| (+) Land Non-Homesite Value: | + | $1,300,500 | |
| (+) Curr Use (HS): | + | $0 | $0 |
| (+) Curr Use (NHS): | + | $0 | $0 |
| | | -------------------------- | |
| (=) Market Value: | = | $1,431,001 | |
| (–) Productivity Loss: | – | $0 | |
| | | -------------------------- | |
| (=) Subtotal: | = | $1,431,001 | |
| (+) Senior Appraised Value: | + | $0 | |
| (+) Non-Senior Appraised Value: | + | $1,431,001 | |
| | | -------------------------- | |
| (=) Total Appraised Value: | = | $1,431,001 | |
| (–) Senior Exemption Loss: | – | $0 | |
| (–) Exemption Loss: | – | $0 | |
| | | -------------------------- | |
| (=) Taxable Value: | = | $1,431,001 | |
Taxing Jurisdiction
| Owner: | HALL, KAYE L | | |
| % Ownership: | 100.0000000000% | | |
| Total Value: | $1,431,001 | | |
| Tax Area: | 710 - APPRAISER-S Whid Schl Dist, outside Langley, improved & 1 acre or less |
| CF | Conservation Futures | 0.0316035091 | $1,431,001 | $1,431,001 | $45.22 | | |
| FIRE3 | Fire & Rescue Dist #3 S Whidbey GEN | 1.2004855531 | $1,431,001 | $1,431,001 | $1,717.90 | | |
| HOBOND | Hospital BOND | 0.1910887512 | $1,431,001 | $1,431,001 | $273.45 | | |
| HOGEN | Hospital GEN | 0.3902502903 | $1,431,001 | $1,431,001 | $558.45 | | |
| CE | County Current Expense | 0.3708482477 | $1,431,001 | $1,431,001 | $530.68 | | |
| CR | County Roads | 0.4584763726 | $1,431,001 | $1,431,001 | $656.08 | | |
| ISLANDEMS | Hospital GEN (EMS) | 0.5000000000 | $1,431,001 | $1,431,001 | $715.50 | | |
| LIB | Library Sno-Isle GEN | 0.3153421757 | $1,431,001 | $1,431,001 | $451.25 | | |
| PORTWHID | Port of S Whidbey GEN | 0.1094540357 | $1,431,001 | $1,431,001 | $156.63 | | |
| SCH206BOND | School 206 BOND | 0.3161759235 | $1,431,001 | $1,431,001 | $452.45 | | |
| SCH206MO | School 206 Enrichment | 0.4547169547 | $1,431,001 | $1,431,001 | $650.70 | | |
| ST | State School | 1.3035497053 | $1,431,001 | $1,431,001 | $1,865.38 | | |
| ST2 | State School Part 2 | 0.8169543533 | $1,431,001 | $1,431,001 | $1,169.06 | | |
| SWHIDPRBD | P & R S Whidbey BOND | 0.0152817568 | $1,431,001 | $1,431,001 | $21.87 | | |
| SWHIDPRBD2 | P & R S Whidbey BOND2 | 0.0138911264 | $1,431,001 | $1,431,001 | $19.88 | | |
| SWHIDPRMT | P & R S Whidbey GEN | 0.2053334452 | $1,431,001 | $1,431,001 | $293.83 | | |
| | Total Tax Rate: | 6.6934522006 | | | | | |
| | | | | Taxes w/Current Exemptions: | $9,578.33 | | |
| | | | | Taxes w/o Exemptions: | $9,578.33 | | |
Improvement / Building
| Improvement #1: | RESIDENTIAL | State Code: | Y | 1008.0 sqft | Value: | $130,501 |
| Bathrooms: | 2 | Bedrooms: | 3 | | Ceiling: | BEAM PAINTED | Exterior Wall/Cover: | PLY/HARDBOARD T-111 | | Floor Covering: | CARPET/VINYL 80-20 | Floor Structure: | WOOD W/SUBFLOOR | | Foundation: | CONCRETE | Heating: | BASEBOARD ELECTRIC | | Interior Finish: | DRYWALL PAINT | Plumbing Fixture Cnt: | 6 | | Roof Slope: | 5" IN 12" | Roof Structure/Cover: | BEAM ROLL COMPOSITION |
|
| | Type | Description | Class CD | Sub Class CD | Year Built | Area |
| | BAS | BASE/MAIN FLOOR | 3 | 0 | 1963 | 1008.0 |
| | OWP | OPEN WOOD PORCH W/STEPS | 3 | 0 | 1963 | 371.2 |
| | OWR | OPEN WOOD PORCH W/STEPS/ROOF | 3 | 0 | 1963 | 128.0 |
Sketch
Property Image
Land
| 1 | LB | LOW BANK | 0.2000 | 8712.00 | 50.00 | 0.00 | 1.00 | $1,300,000 | $0 |
| 2 | 55 | TIDES | 0.0000 | 0.00 | 50.00 | 0.00 | 1.00 | $500 | $0 |
Roll Value History
| 2026 | N/A | N/A | N/A | N/A | N/A |
| 2025 | $130,501 | $1,300,500 | $0 | $1,431,001 | $1,431,001 |
| 2024 | $132,834 | $1,100,500 | $0 | $1,233,334 | $1,233,334 |
| 2023 | $134,780 | $1,100,500 | $0 | $1,235,280 | $1,235,280 |
| 2022 | $123,812 | $1,050,500 | $0 | $1,174,312 | $1,174,312 |
| 2021 | $109,193 | $800,500 | $0 | $909,693 | $909,693 |
| 2020 | $106,488 | $675,500 | $0 | $781,988 | $781,988 |
| 2019 | $68,168 | $725,500 | $0 | $793,668 | $793,668 |
| 2018 | $68,425 | $700,500 | $0 | $768,925 | $768,925 |
| 2017 | $68,938 | $700,500 | $0 | $769,438 | $769,438 |
| 2016 | $69,966 | $700,500 | $0 | $770,466 | $770,466 |
| 2015 | $70,996 | $700,500 | $0 | $771,496 | $771,496 |
| 2014 | $72,025 | $700,500 | $0 | $772,525 | $772,525 |
| 2013 | $73,956 | $773,896 | $0 | $847,852 | $847,852 |
| 2012 | $75,169 | $773,896 | $0 | $849,065 | $849,065 |
| 2011 | $76,382 | $773,896 | $0 | $850,278 | $850,278 |
| 2010 | $83,064 | $773,896 | $0 | $856,960 | $856,960 |
| 2009 | $85,555 | $925,075 | $0 | $1,010,630 | $1,010,630 |
| 2008 | $76,611 | $1,058,748 | $0 | $1,135,359 | $1,135,359 |
| 2007 | $77,576 | $1,058,398 | $0 | $1,135,974 | $1,135,974 |
Deed and Sales History
| 1 | 03/10/2015 | OTHER | Other - Misc. Documents | TAYLOR TTEE, AUDRY B | HALL, KAYE L | | | $0.00 | 18853 | 4375160 |
| 2 | 01/26/2009 | PRD | Personal Representatives Deed | Unknown | TAYLOR TTEE, AUDRY B | | | $0.00 | 90189 | 4243618 |
Payout Agreement
| No payout information available.. |