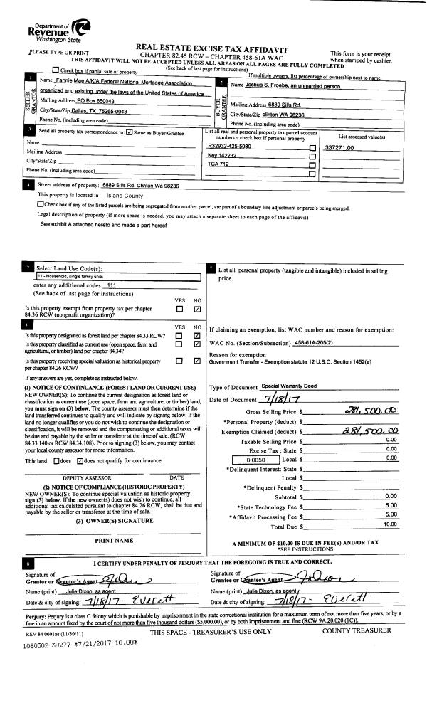
Property
Account |
| Property ID: | 556669 | Abbreviated Legal Description: | TR A - 0H-SP 2-82 AF#399187 V1-SP-P150 FR 325 3850 |
| Geographic ID: | R13335-327-3850 | Agent Code: | |
| Type: | Real | | |
| Tax Area: | 100 - APPRAISER-OH Schl Dist, in OH | Land Use Code | 58 |
| Open Space: | N | DFL | N |
| Historic Property: | N | Remodel Property: | N |
| Multi-Family Redevelopment: | N | | |
| Township: | 33 | Section: | 35 |
| Range: | R1 |
Location |
| Address: | 910 NE MIDWAY BLVD OAK HARBOR, WA 98277 | Mapsco: | |
| Neighborhood: | 6AcOH-ne midway | Map ID: | 259 |
| Neighborhood CD: | 6AcOHnemid |
Owner |
| Name: | KIM, MYONG CHA | Owner ID: | 280525 |
| Mailing Address: | 16520 43RD AVE W LYNNWOOD, WA 98037 | % Ownership: | 100.0000000000% |
| | | Exemptions: | |
Taxes and Assessment Details
Values
| (+) Improvement Homesite Value: | + | $0 | |
| (+) Improvement Non-Homesite Value: | + | $175,197 | |
| (+) Land Homesite Value: | + | $0 | |
| (+) Land Non-Homesite Value: | + | $359,800 | |
| (+) Curr Use (HS): | + | $0 | $0 |
| (+) Curr Use (NHS): | + | $0 | $0 |
| | | -------------------------- | |
| (=) Market Value: | = | $534,997 | |
| (–) Productivity Loss: | – | $0 | |
| | | -------------------------- | |
| (=) Subtotal: | = | $534,997 | |
| (+) Senior Appraised Value: | + | $0 | |
| (+) Non-Senior Appraised Value: | + | $534,997 | |
| | | -------------------------- | |
| (=) Total Appraised Value: | = | $534,997 | |
| (–) Senior Exemption Loss: | – | $0 | |
| (–) Exemption Loss: | – | $0 | |
| | | -------------------------- | |
| (=) Taxable Value: | = | $534,997 | |
Taxing Jurisdiction
| Owner: | KIM, MYONG CHA | | |
| % Ownership: | 100.0000000000% | | |
| Total Value: | $534,997 | | |
| Tax Area: | 100 - APPRAISER-OH Schl Dist, in OH |
| CF | Conservation Futures | 0.0316035091 | $534,997 | $534,997 | $16.91 | | |
| CEM1 | Cemetery #1 | 0.0040320932 | $534,997 | $534,997 | $2.16 | | |
| COH | City of Oak Harbor | 2.3001546061 | $534,997 | $534,997 | $1,230.58 | | |
| OAKBOND | City of Oak Harbor BOND | 0.1926904192 | $534,997 | $534,997 | $103.09 | | |
| HOBOND | Hospital BOND | 0.1910887512 | $534,997 | $534,997 | $102.23 | | |
| HOGEN | Hospital GEN | 0.3902502903 | $534,997 | $534,997 | $208.78 | | |
| CE | County Current Expense | 0.3708482477 | $534,997 | $534,997 | $198.40 | | |
| ISLANDEMS | Hospital GEN (EMS) | 0.5000000000 | $534,997 | $534,997 | $267.50 | | |
| LIB | Library Sno-Isle GEN | 0.3153421757 | $534,997 | $534,997 | $168.71 | | |
| NWHIDPRMT | P & R N Whidbey GEN | 0.2004466701 | $534,997 | $534,997 | $107.24 | | |
| SCH201MO | School 201 Enrichment | 1.8559231640 | $534,997 | $534,997 | $992.91 | | |
| ST | State School | 1.3035497053 | $534,997 | $534,997 | $697.40 | | |
| ST2 | State School Part 2 | 0.8169543533 | $534,997 | $534,997 | $437.07 | | |
| | Total Tax Rate: | 8.4728839852 | | | | | |
| | | | | Taxes w/Current Exemptions: | $4,532.98 | | |
| | | | | Taxes w/o Exemptions: | $4,532.98 | | |
Improvement / Building
| Improvement #1: | COMMERCIAL | State Code: | F1 | 1663.8 sqft | Value: | $175,197 |
| Bathrooms: | 0 | Bedrooms: | 0 | | Ceiling: | DRYWALL PAINTED | Cooling: | PACKAGE HEAT & COOL | | Exterior Wall/Cover: | STUCCO/WOOD FRAME | Floor Covering: | BRICK PAVERS | | Floor Structure: | CONCRETE ON GROUND | Foundation: | SLAB | | Interior Finish: | FAST FOOD | Plumbing Fixture Cnt: | 1 | | Roof Structure/Cover: | TERNE WOOD JOIST |   |   |
|
| | Type | Description | Class CD | Sub Class CD | Year Built | Area |
| | BAS | BASE/MAIN FLOOR | 3 | 0 | 1982 | 1663.8 |
| | oPV1 | PV/ASPH 2" | 3 | 0 | 1982 | 9800.0 |
| | oLIT | LITE POLE | 3 | 0 | 1982 | 0.0 |
Sketch
Property Image
Land
| 1 | 68 | COMMERCIAL RETAIL | 0.5900 | 25700.00 | 0.00 | 0.00 | 1.00 | $359,800 | $0 |
Roll Value History
| 2026 | N/A | N/A | N/A | N/A | N/A |
| 2025 | $175,197 | $359,800 | $0 | $534,997 | $534,997 |
| 2024 | $194,343 | $359,800 | $0 | $554,143 | $554,143 |
| 2023 | $208,702 | $359,800 | $0 | $568,502 | $568,502 |
| 2022 | $174,784 | $359,800 | $0 | $534,584 | $534,584 |
| 2021 | $174,784 | $359,800 | $0 | $534,584 | $534,584 |
| 2020 | $174,784 | $359,800 | $0 | $534,584 | $534,584 |
| 2019 | $189,628 | $282,700 | $0 | $472,328 | $472,328 |
| 2018 | $189,628 | $257,000 | $0 | $446,628 | $446,628 |
| 2017 | $189,628 | $359,800 | $0 | $549,428 | $549,428 |
| 2016 | $198,793 | $359,800 | $0 | $558,593 | $558,593 |
| 2015 | $198,793 | $359,800 | $0 | $558,593 | $558,593 |
| 2014 | $198,793 | $348,492 | $0 | $547,285 | $547,285 |
| 2013 | $198,793 | $348,492 | $0 | $547,285 | $547,285 |
| 2012 | $198,793 | $348,492 | $0 | $547,285 | $547,285 |
| 2011 | $198,793 | $348,492 | $0 | $547,285 | $547,285 |
| 2010 | $173,737 | $348,492 | $0 | $522,229 | $522,229 |
| 2009 | $183,970 | $394,495 | $0 | $578,465 | $578,465 |
| 2008 | $189,086 | $394,495 | $0 | $583,581 | $583,581 |
| 2007 | $191,645 | $394,495 | $0 | $586,140 | $586,140 |
Deed and Sales History
| 1 | 01/03/2017 | QCD | Quit Claim Deed | MYONG CHA PAK | KIM, MYONG CHA | | | $0.00 | 29871 | 4424807 |
| 2 | 04/06/2000 | WD | Warranty Deed | TACO BELL CORP & AFFILIATES, | MYONG CHA PAK, | | | $210,000.00 | 1478 | 20007240 |
| 3 | 08/01/1983 | WD | Warranty Deed | TACO, BELL | TACO, BELL C | | | $343,712.00 | 32354 | 413823 |
| 4 | 11/01/1982 | WD | Warranty Deed | WARD, ORREN M | TACO, BELL | | | $131,250.00 | 22656 | 402391 |
| 5 | 08/01/1982 | OTHER | Other - Misc. Documents | Unknown | WARD, ORREN M | | | $0.00 | 59721 | 399187 |
| 6 | 01/01/1900 | OTHER | Other - Misc. Documents | TACO, BELL C | TACO BELL CORP & AFFILIATES, | | | $0.00 | 0 | 0 |
Payout Agreement
| No payout information available.. |