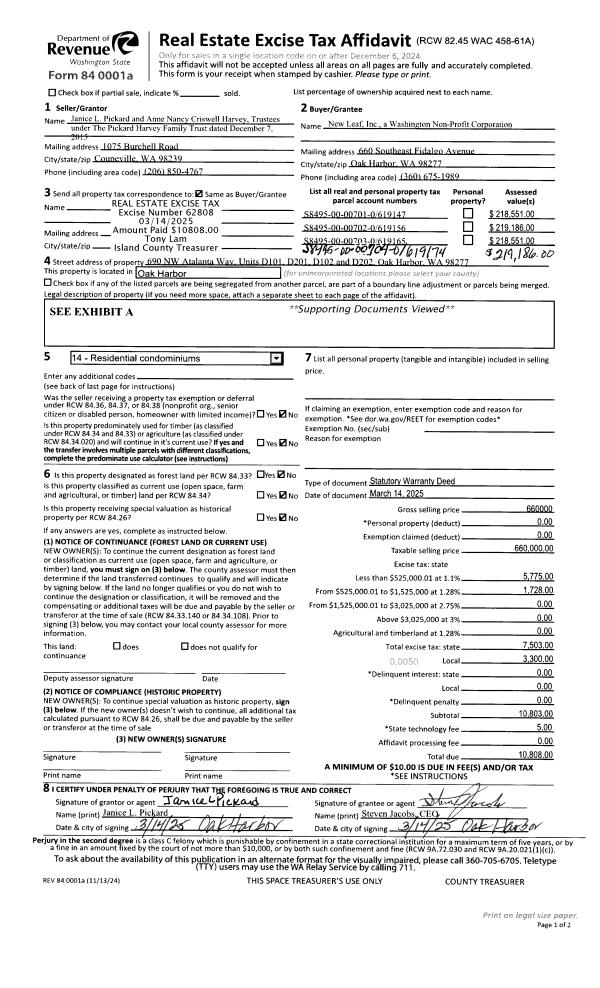
Property
Account |
| Property ID: | 557089 | Abbreviated Legal Description: | LOT 2 SP 79-138 AF#399245 IN KINETH DC BG INT WLN DC & SLN SEC 35 N1*E1980' S88* 51'E2640' S1*W660' S88*51'E 400' TPB N2*W210' N87*57'E 540' S ALG PARKER RD TP S88 *51'E FR TPB N88*51'W560' TPB TGW & SUB EAS FR 160-0400 11/16/82 TGW & SUB EZ AF#95 |
| Geographic ID: | R13236-147-0400 | Agent Code: | |
| Type: | Real | | |
| Tax Area: | 312 - APPRAISER-Cpvl Schl Dist, outside Cpvl, improved, greater than 1 acre | Land Use Code | 11 |
| Open Space: | N | DFL | N |
| Historic Property: | N | Remodel Property: | N |
| Multi-Family Redevelopment: | N | | |
| Township: | 32 | Section: | 36 |
| Range: | R1 |
Location |
| Address: | 120 AMBEY LN COUPEVILLE, WA 98239 | Mapsco: | |
| Neighborhood: | Cycle 2 | Map ID: | 185 |
| Neighborhood CD: | 2 |
Owner |
| Name: | FOX, CLINTON NASH | Owner ID: | 317092 |
| Mailing Address: | ESTELL FOX 120 AMBEY LN COUPEVILLE, WA 98239 | % Ownership: | 100.0000000000% |
| | | Exemptions: | |
Taxes and Assessment Details
Values
| (+) Improvement Homesite Value: | + | $0 | |
| (+) Improvement Non-Homesite Value: | + | $289,247 | |
| (+) Land Homesite Value: | + | $0 | |
| (+) Land Non-Homesite Value: | + | $314,024 | |
| (+) Curr Use (HS): | + | $0 | $0 |
| (+) Curr Use (NHS): | + | $0 | $0 |
| | | -------------------------- | |
| (=) Market Value: | = | $603,271 | |
| (–) Productivity Loss: | – | $0 | |
| | | -------------------------- | |
| (=) Subtotal: | = | $603,271 | |
| (+) Senior Appraised Value: | + | $0 | |
| (+) Non-Senior Appraised Value: | + | $603,271 | |
| | | -------------------------- | |
| (=) Total Appraised Value: | = | $603,271 | |
| (–) Senior Exemption Loss: | – | $0 | |
| (–) Exemption Loss: | – | $0 | |
| | | -------------------------- | |
| (=) Taxable Value: | = | $603,271 | |
Taxing Jurisdiction
| Owner: | FOX, CLINTON NASH | | |
| % Ownership: | 100.0000000000% | | |
| Total Value: | $603,271 | | |
| Tax Area: | 312 - APPRAISER-Cpvl Schl Dist, outside Cpvl, improved, greater than 1 acre |
| CF | Conservation Futures | 0.0316035091 | $603,271 | $603,271 | $19.07 | | |
| CEM2 | Cemetery #2 | 0.0095056933 | $603,271 | $603,271 | $5.73 | | |
| FIRE5 | Fire & Rescue Dist #5 C Whidbey GEN | 1.2008080668 | $603,271 | $603,271 | $724.41 | | |
| FIRE5BOND | Fire & Rescue Dist #5 C Whidbey BOND | 0.1400090713 | $603,271 | $603,271 | $84.46 | | |
| HOBOND | Hospital BOND | 0.1910887512 | $603,271 | $603,271 | $115.28 | | |
| HOGEN | Hospital GEN | 0.3902502903 | $603,271 | $603,271 | $235.43 | | |
| CE | County Current Expense | 0.3708482477 | $603,271 | $603,271 | $223.72 | | |
| CR | County Roads | 0.4584763726 | $603,271 | $603,271 | $276.59 | | |
| ISLANDEMS | Hospital GEN (EMS) | 0.5000000000 | $603,271 | $603,271 | $301.64 | | |
| LIB | Library Sno-Isle GEN | 0.3153421757 | $603,271 | $603,271 | $190.24 | | |
| LIBCAP | Library Sno-Isle BOND (Cap Fac Imp Area) | 0.0543427938 | $603,271 | $603,271 | $32.78 | | |
| POCOUP | Port of Coupeville GEN | 0.1093371703 | $603,271 | $603,271 | $65.96 | | |
| POCOUPIDD | Port of Coupeville IDD | 0.3409740022 | $603,271 | $603,271 | $205.70 | | |
| COUPSDTECH | School 204 CP (TECH) | 0.7545480007 | $603,271 | $603,271 | $455.20 | | |
| SCH204MO | School 204 Enrichment | 0.6716186034 | $603,271 | $603,271 | $405.17 | | |
| ST | State School | 1.3035497053 | $603,271 | $603,271 | $786.39 | | |
| ST2 | State School Part 2 | 0.8169543533 | $603,271 | $603,271 | $492.84 | | |
| | Total Tax Rate: | 7.6592568070 | | | | | |
| | | | | Taxes w/Current Exemptions: | $4,620.61 | | |
| | | | | Taxes w/o Exemptions: | $4,620.61 | | |
Improvement / Building
| Improvement #1: | RESIDENTIAL | State Code: | Y | 1498.0 sqft | Value: | $289,247 |
| Bathrooms: | 2.5 | Bedrooms: | 3 | | Ceiling: | DRYWALL PAINTED | Exterior Wall/Cover: | PLY/HARDBOARD T-111 | | Floor Covering: | HARDWOOD/CARP 20-80 | Floor Structure: | WOOD W/SUBFLOOR | | Foundation: | CONCRETE | Heating: | FHA GAS | | Interior Finish: | DRYWALL PAINT | Plumbing Fixture Cnt: | 12 | | Roof Slope: | 5" IN 12" | Roof Structure/Cover: | CJ ASPHALT |
|
| | Type | Description | Class CD | Sub Class CD | Year Built | Area |
| | BAS | BASE/MAIN FLOOR | 3 | 0 | 1996 | 818.0 |
| | OP1 | OPEN PORCH SLAB | 3 | 0 | 1996 | 454.0 |
| | AGR | ATTACHED GARAGE | 3 | 0 | 1996 | 492.0 |
| | UPS | UPPER STORY | 3 | 0 | 1996 | 680.0 |
| | DGR | DETACHED GARAGE | 3 | 0 | 1996 | 480.0 |
Sketch
Property Image
Land
| 1 | 91 | UNDEVELOPED LAND-METES AND BOUNDS | 1.8400 | 80150.40 | 0.00 | 0.00 | 1.00 | $94,024 | $0 |
| 2 | HS | HOMESITE | 1.0000 | 43560.00 | 0.00 | 0.00 | 1.00 | $220,000 | $0 |
Roll Value History
| 2026 | N/A | N/A | N/A | N/A | N/A |
| 2025 | $289,247 | $314,024 | $0 | $603,271 | $603,271 |
| 2024 | $285,598 | $280,000 | $0 | $565,598 | $565,598 |
| 2023 | $289,247 | $260,000 | $0 | $549,247 | $549,247 |
| 2022 | $265,219 | $250,000 | $0 | $515,219 | $515,219 |
| 2021 | $233,498 | $160,000 | $0 | $393,498 | $393,498 |
| 2020 | $227,053 | $150,000 | $0 | $377,053 | $377,053 |
| 2019 | $162,603 | $180,000 | $0 | $342,603 | $342,603 |
| 2018 | $157,582 | $170,000 | $0 | $327,582 | $327,582 |
| 2017 | $158,566 | $130,000 | $0 | $288,566 | $288,566 |
| 2016 | $160,549 | $120,000 | $0 | $280,549 | $280,549 |
| 2015 | $162,532 | $95,000 | $0 | $257,532 | $257,532 |
| 2014 | $164,513 | $95,000 | $0 | $259,513 | $259,513 |
| 2013 | $166,496 | $95,000 | $0 | $261,496 | $261,496 |
| 2012 | $167,496 | $114,750 | $0 | $282,246 | $282,246 |
| 2011 | $169,301 | $135,000 | $0 | $304,301 | $304,301 |
| 2010 | $180,118 | $135,000 | $0 | $315,118 | $315,118 |
| 2009 | $187,620 | $150,000 | $0 | $337,620 | $337,620 |
| 2008 | $190,107 | $124,000 | $0 | $314,107 | $314,107 |
| 2007 | $192,583 | $124,000 | $0 | $316,583 | $316,583 |
Deed and Sales History
| 1 | 06/18/2025 | WD | Warranty Deed | CASEY, CATHY F | FOX, CLINTON NASH | | | $660,000.00 | 63927 | 4587381 |
| 2 | 04/25/2025 | LACPROBATE | Lack of Probate | CASEY JR, JACK A | CASEY, CATHY F | | | $0.00 | 63271 | 4585016 |
| 3 | 07/25/2006 | WD | Warranty Deed | WACKER, MARK C | CASEY JR, JACK A | | | $353,000.00 | 63198 | 4177096 |
| 4 | 11/01/1996 | WD | Warranty Deed | HAMMING, GREGORY T | WACKER, MARK C | | | $155,000.00 | 64064 | 96019787 |
| 5 | 06/01/1996 | WD | Warranty Deed | CRAIG, R L | HAMMING, GREGORY T | | | $40,000.00 | 62349 | 96011609 |
| 6 | 08/01/1982 | OTHER | Other - Misc. Documents | CRAIG, R L | CRAIG, R L | | | $0.00 | 59731 | 399245 |
| 7 | 04/01/1978 | OTHER | Other - Misc. Documents | Unknown | CRAIG, R L | | | $20,000.00 | 81654 | 3312070 |
Payout Agreement
| No payout information available.. |