Property
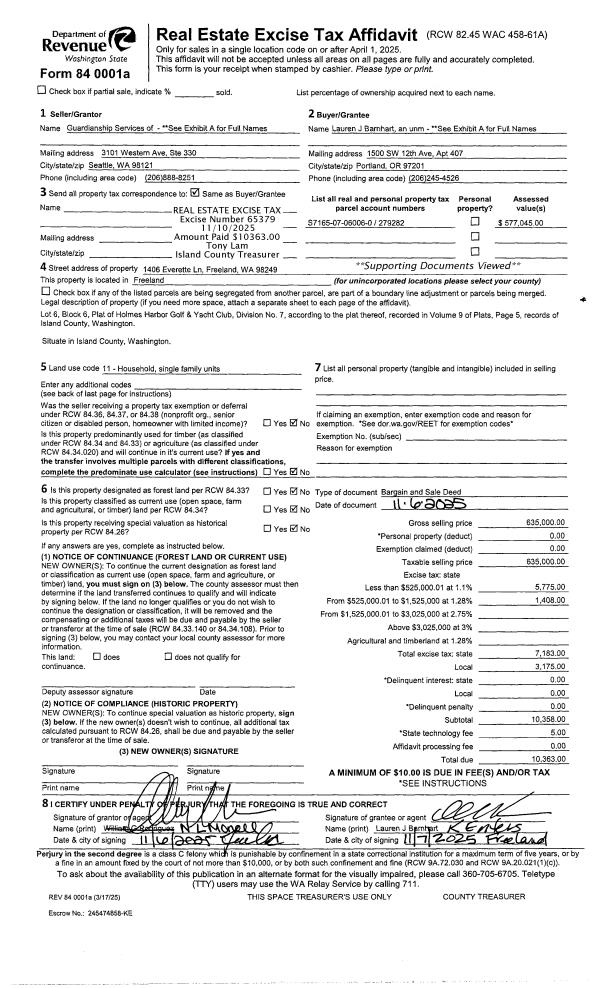
Account |
| Property ID: | 55754 | Abbreviated Legal Description: | 67 - IN GL4: BG SLN GL4 2054.39' M/L W OF SECR N34*E746.49' N13*E50.9' N27*E550' TPB N63*W149.25' N30*E40' S80*E223.28' M/L TO WLN EXIST 40 AC GL4 S ALG SD LN 118.20' N63*W118 .38' M/L TPB INCL ADJ TIDES |
| Geographic ID: | R22922-121-1250 | Agent Code: | |
| Type: | Real | | |
| Tax Area: | 710 - APPRAISER-S Whid Schl Dist, outside Langley, improved & 1 acre or less | Land Use Code | 11 |
| Open Space: | N | DFL | N |
| Historic Property: | N | Remodel Property: | N |
| Multi-Family Redevelopment: | N | | |
| Township: | 29 | Section: | 22 |
| Range: | R2 |
Location |
| Address: | 6308 BAY RD FREELAND, WA 98249 | Mapsco: | |
| Neighborhood: | Cycle 3 | Map ID: | 334 |
| Neighborhood CD: | 3 |
Owner |
| Name: | BURELL TTEE, SCOTT R | Owner ID: | 290282 |
| Mailing Address: | MICHELLE L BURELL, TTEE 6308 BAY RD FREELAND, WA 98249 | % Ownership: | 100.0000000000% |
| | | Exemptions: | |
Taxes and Assessment Details
Values
| (+) Improvement Homesite Value: | + | $0 | |
| (+) Improvement Non-Homesite Value: | + | $234,834 | |
| (+) Land Homesite Value: | + | $0 | |
| (+) Land Non-Homesite Value: | + | $1,300,400 | |
| (+) Curr Use (HS): | + | $0 | $0 |
| (+) Curr Use (NHS): | + | $0 | $0 |
| | | -------------------------- | |
| (=) Market Value: | = | $1,535,234 | |
| (–) Productivity Loss: | – | $0 | |
| | | -------------------------- | |
| (=) Subtotal: | = | $1,535,234 | |
| (+) Senior Appraised Value: | + | $0 | |
| (+) Non-Senior Appraised Value: | + | $1,535,234 | |
| | | -------------------------- | |
| (=) Total Appraised Value: | = | $1,535,234 | |
| (–) Senior Exemption Loss: | – | $0 | |
| (–) Exemption Loss: | – | $0 | |
| | | -------------------------- | |
| (=) Taxable Value: | = | $1,535,234 | |
Taxing Jurisdiction
| Owner: | BURELL TTEE, SCOTT R | | |
| % Ownership: | 100.0000000000% | | |
| Total Value: | $1,535,234 | | |
| Tax Area: | 710 - APPRAISER-S Whid Schl Dist, outside Langley, improved & 1 acre or less |
| CF | Conservation Futures | 0.0316035091 | $1,535,234 | $1,535,234 | $48.52 | | |
| FIRE3 | Fire & Rescue Dist #3 S Whidbey GEN | 1.2004855531 | $1,535,234 | $1,535,234 | $1,843.03 | | |
| HOBOND | Hospital BOND | 0.1910887512 | $1,535,234 | $1,535,234 | $293.37 | | |
| HOGEN | Hospital GEN | 0.3902502903 | $1,535,234 | $1,535,234 | $599.13 | | |
| CE | County Current Expense | 0.3708482477 | $1,535,234 | $1,535,234 | $569.34 | | |
| CR | County Roads | 0.4584763726 | $1,535,234 | $1,535,234 | $703.87 | | |
| ISLANDEMS | Hospital GEN (EMS) | 0.5000000000 | $1,535,234 | $1,535,234 | $767.62 | | |
| LIB | Library Sno-Isle GEN | 0.3153421757 | $1,535,234 | $1,535,234 | $484.12 | | |
| PORTWHID | Port of S Whidbey GEN | 0.1094540357 | $1,535,234 | $1,535,234 | $168.04 | | |
| SCH206BOND | School 206 BOND | 0.3161759235 | $1,535,234 | $1,535,234 | $485.40 | | |
| SCH206MO | School 206 Enrichment | 0.4547169547 | $1,535,234 | $1,535,234 | $698.10 | | |
| ST | State School | 1.3035497053 | $1,535,234 | $1,535,234 | $2,001.25 | | |
| ST2 | State School Part 2 | 0.8169543533 | $1,535,234 | $1,535,234 | $1,254.22 | | |
| SWHIDPRBD | P & R S Whidbey BOND | 0.0152817568 | $1,535,234 | $1,535,234 | $23.46 | | |
| SWHIDPRBD2 | P & R S Whidbey BOND2 | 0.0138911264 | $1,535,234 | $1,535,234 | $21.33 | | |
| SWHIDPRMT | P & R S Whidbey GEN | 0.2053334452 | $1,535,234 | $1,535,234 | $315.23 | | |
| | Total Tax Rate: | 6.6934522006 | | | | | |
| | | | | Taxes w/Current Exemptions: | $10,276.03 | | |
| | | | | Taxes w/o Exemptions: | $10,276.03 | | |
Improvement / Building
| Improvement #1: | RESIDENTIAL | State Code: | Y | 1092.0 sqft | Value: | $234,834 |
| Bathrooms: | 2 | Bedrooms: | 1 | | Ceiling: | BEAM T&G | Exterior Wall/Cover: | SHINGLE | | Floor Covering: | VINYL TILE | Floor Structure: | WOOD W/SUBFLOOR | | Foundation: | CONCRETE BLOCKS | Heating: | BASEBOARD ELECTRIC | | Interior Finish: | DRYWALL PAINT | Plumbing Fixture Cnt: | 12 | | Roof Slope: | 5" IN 12" | Roof Structure/Cover: | BEAM ASPHALT |
|
| | Type | Description | Class CD | Sub Class CD | Year Built | Area |
| | BAS | BASE/MAIN FLOOR | 3 | 0 | 1957 | 1092.0 |
| | OWP | OPEN WOOD PORCH W/STEPS | 3 | 0 | 1957 | 416.1 |
| | OWR | OPEN WOOD PORCH W/STEPS/ROOF | 3 | 0 | 1957 | 112.0 |
| | OCP | OPEN CARPORT | 3 | 0 | 1957 | 390.0 |
| | DGR | DETACHED GARAGE | 3 | 0 | 1957 | 375.0 |
| | UTY | STORAGE/UTILITY | 3 | 0 | 1957 | 315.0 |
| | OWP | OPEN WOOD PORCH W/STEPS | 3 | 0 | 1957 | 225.5 |
Sketch
Property Image
Land
| 1 | LB | LOW BANK | 0.2900 | 12632.40 | 40.00 | 0.00 | 1.00 | $1,300,000 | $0 |
| 2 | 55 | TIDES | 0.0000 | 0.00 | 40.00 | 0.00 | 1.00 | $400 | $0 |
Roll Value History
| 2026 | N/A | N/A | N/A | N/A | N/A |
| 2025 | $234,834 | $1,300,400 | $0 | $1,535,234 | $1,535,234 |
| 2024 | $219,069 | $1,100,400 | $0 | $1,319,469 | $1,319,469 |
| 2023 | $222,189 | $1,100,400 | $0 | $1,322,589 | $1,322,589 |
| 2022 | $204,013 | $1,050,400 | $0 | $1,254,413 | $1,254,413 |
| 2021 | $179,858 | $800,400 | $0 | $980,258 | $980,258 |
| 2020 | $166,474 | $675,400 | $0 | $841,874 | $841,874 |
| 2019 | $106,482 | $725,400 | $0 | $831,882 | $831,882 |
| 2018 | $106,903 | $700,400 | $0 | $807,303 | $807,303 |
| 2017 | $100,672 | $700,400 | $0 | $801,072 | $801,072 |
| 2016 | $102,244 | $700,400 | $0 | $802,644 | $802,644 |
| 2015 | $103,817 | $700,400 | $0 | $804,217 | $804,217 |
| 2014 | $105,392 | $700,400 | $0 | $805,792 | $805,792 |
| 2013 | $99,368 | $643,145 | $0 | $742,513 | $742,513 |
| 2012 | $100,698 | $643,145 | $0 | $743,843 | $743,843 |
| 2011 | $102,028 | $643,145 | $0 | $745,173 | $745,173 |
| 2010 | $113,388 | $643,145 | $0 | $756,533 | $756,533 |
| 2009 | $118,005 | $768,784 | $0 | $886,789 | $886,789 |
| 2008 | $100,097 | $879,876 | $0 | $979,973 | $979,973 |
| 2007 | $102,038 | $879,596 | $0 | $981,634 | $981,634 |
Deed and Sales History
| 1 | 08/19/2020 | QCD | Quit Claim Deed | BURELL, SCOTT R | BURELL TTEE, SCOTT R | | | $0.00 | 44559 | 4495496 |
| 2 | 07/30/2020 | WD | Warranty Deed | DAHL, TIMOTHY G | BURELL, SCOTT R | | | $1,144,200.00 | 44079 | 4492954 |
| 3 | 07/28/1999 | QCD | Quit Claim Deed | DAHL, TIMOTHY G | DAHL, TIMOTHY G | | | $0.00 | 93014 | 99017705 |
| 4 | 07/28/1999 | QCD | Quit Claim Deed | SEAFIRST, BANK, R | DAHL, TIMOTHY G | | | $0.00 | 93013 | 99017704 |
| 5 | 07/01/1995 | QCD | Quit Claim Deed | DAHL, TIMOTHY G | SEAFIRST, BANK, R | | | $0.00 | 52660 | 95012219 |
| 6 | 07/01/1995 | QCD | Quit Claim Deed | SEATTLE, 1ST N | DAHL, TIMOTHY G | | | $0.00 | 52676 | 95012220 |
| 7 | 06/01/1995 | QCD | Quit Claim Deed | SEAFIRST, BANK R | SEATTLE, 1ST N | | | $0.00 | 52677 | 95012221 |
| 8 | 06/01/1995 | QCD | Quit Claim Deed | SEAFIRST, BANK, R | SEAFIRST, BANK R | | | $0.00 | 52678 | 95012222 |
| 9 | 11/01/1990 | QCD | Quit Claim Deed | DAHL, HENRY G | SEAFIRST, BANK, R | | | $0.00 | 6528 | 90022723 |
| 10 | 01/01/1900 | OTHER | Other - Misc. Documents | Unknown | DAHL, HENRY G | | | $0.00 | 0 | 0 |
Payout Agreement
| No payout information available.. |