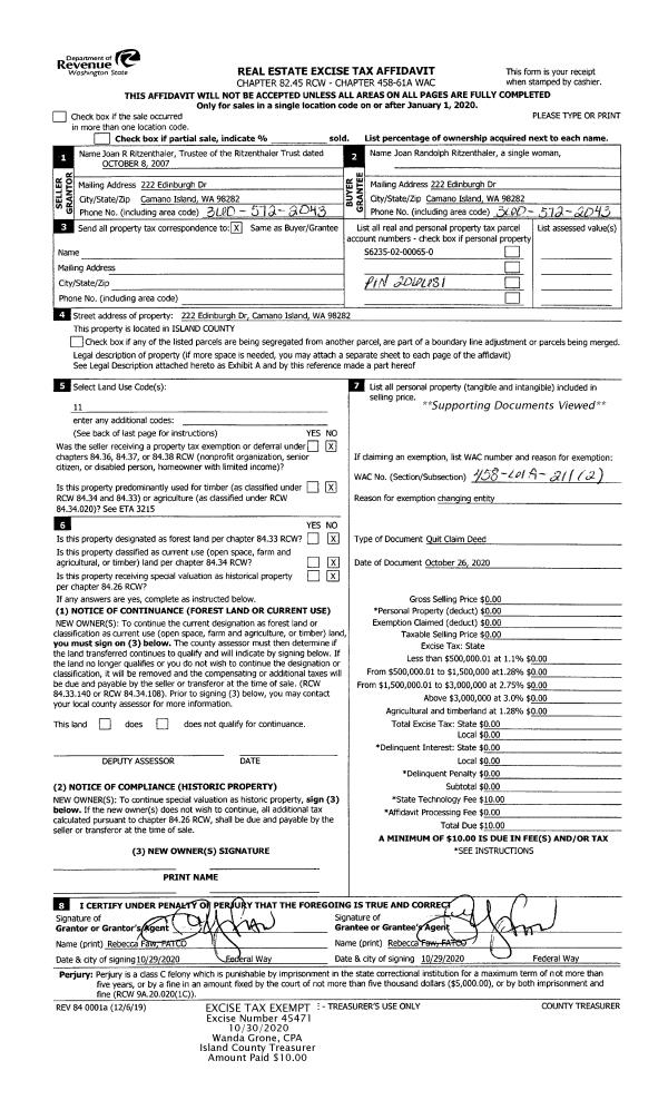
Property
Account |
| Property ID: | 557542 | Abbreviated Legal Description: | TR 2 SP 82-36.23007.217-1200 AF#402872 V1 SP P174 (WELLSITE) |
| Geographic ID: | R23007-208-1250 | Agent Code: | |
| Type: | Real | | |
| Tax Area: | 312 - APPRAISER-Cpvl Schl Dist, outside Cpvl, improved, greater than 1 acre | Land Use Code | 11 |
| Open Space: | N | DFL | N |
| Historic Property: | N | Remodel Property: | N |
| Multi-Family Redevelopment: | N | | |
| Township: | 30 | Section: | 07 |
| Range: | R2 |
Location |
| Address: | 3030 SEA EAGLE LN GREENBANK, WA 98253 | Mapsco: | |
| Neighborhood: | Cycle 3 | Map ID: | 361 |
| Neighborhood CD: | 3 |
Owner |
| Name: | PICCOLO, STEVEN R | Owner ID: | 179370 |
| Mailing Address: | SHIRLEY J WILCOX 610 WHEELER #403 SEATTLE, WA 98109 | % Ownership: | 100.0000000000% |
| | | Exemptions: | |
Taxes and Assessment Details
Values
| (+) Improvement Homesite Value: | + | $0 | |
| (+) Improvement Non-Homesite Value: | + | $4,000 | |
| (+) Land Homesite Value: | + | $0 | |
| (+) Land Non-Homesite Value: | + | $417,375 | |
| (+) Curr Use (HS): | + | $0 | $0 |
| (+) Curr Use (NHS): | + | $0 | $0 |
| | | -------------------------- | |
| (=) Market Value: | = | $421,375 | |
| (–) Productivity Loss: | – | $0 | |
| | | -------------------------- | |
| (=) Subtotal: | = | $421,375 | |
| (+) Senior Appraised Value: | + | $0 | |
| (+) Non-Senior Appraised Value: | + | $421,375 | |
| | | -------------------------- | |
| (=) Total Appraised Value: | = | $421,375 | |
| (–) Senior Exemption Loss: | – | $0 | |
| (–) Exemption Loss: | – | $0 | |
| | | -------------------------- | |
| (=) Taxable Value: | = | $421,375 | |
Taxing Jurisdiction
| Owner: | PICCOLO, STEVEN R | | |
| % Ownership: | 100.0000000000% | | |
| Total Value: | $421,375 | | |
| Tax Area: | 312 - APPRAISER-Cpvl Schl Dist, outside Cpvl, improved, greater than 1 acre |
| CF | Conservation Futures | 0.0316035091 | $421,375 | $421,375 | $13.32 | | |
| CEM2 | Cemetery #2 | 0.0095056933 | $421,375 | $421,375 | $4.01 | | |
| FIRE5 | Fire & Rescue Dist #5 C Whidbey GEN | 1.2008080668 | $421,375 | $421,375 | $505.99 | | |
| FIRE5BOND | Fire & Rescue Dist #5 C Whidbey BOND | 0.1400090713 | $421,375 | $421,375 | $59.00 | | |
| HOBOND | Hospital BOND | 0.1910887512 | $421,375 | $421,375 | $80.52 | | |
| HOGEN | Hospital GEN | 0.3902502903 | $421,375 | $421,375 | $164.44 | | |
| CE | County Current Expense | 0.3708482477 | $421,375 | $421,375 | $156.27 | | |
| CR | County Roads | 0.4584763726 | $421,375 | $421,375 | $193.19 | | |
| ISLANDEMS | Hospital GEN (EMS) | 0.5000000000 | $421,375 | $421,375 | $210.69 | | |
| LIB | Library Sno-Isle GEN | 0.3153421757 | $421,375 | $421,375 | $132.88 | | |
| LIBCAP | Library Sno-Isle BOND (Cap Fac Imp Area) | 0.0543427938 | $421,375 | $421,375 | $22.90 | | |
| POCOUP | Port of Coupeville GEN | 0.1093371703 | $421,375 | $421,375 | $46.07 | | |
| POCOUPIDD | Port of Coupeville IDD | 0.3409740022 | $421,375 | $421,375 | $143.68 | | |
| COUPSDTECH | School 204 CP (TECH) | 0.7545480007 | $421,375 | $421,375 | $317.95 | | |
| SCH204MO | School 204 Enrichment | 0.6716186034 | $421,375 | $421,375 | $283.00 | | |
| ST | State School | 1.3035497053 | $421,375 | $421,375 | $549.28 | | |
| ST2 | State School Part 2 | 0.8169543533 | $421,375 | $421,375 | $344.24 | | |
| | Total Tax Rate: | 7.6592568070 | | | | | |
| | | | | Taxes w/Current Exemptions: | $3,227.43 | | |
| | | | | Taxes w/o Exemptions: | $3,227.43 | | |
Improvement / Building
| Improvement #1: | RESIDENTIAL | State Code: | Y | 0.0 sqft | Value: | $4,000 |
Sketch
| No sketches available for this property. |
Property Image
Land
| 1 | HB | HIGH BLUFF | 0.0000 | 0.00 | 100.00 | 0.00 | 1.00 | $417,375 | $0 |
Roll Value History
| 2026 | N/A | N/A | N/A | N/A | N/A |
| 2025 | $4,000 | $417,375 | $0 | $421,375 | $421,375 |
| 2024 | $4,000 | $393,750 | $0 | $397,750 | $397,750 |
| 2023 | $4,000 | $375,000 | $0 | $379,000 | $379,000 |
| 2022 | $4,000 | $360,000 | $0 | $364,000 | $364,000 |
| 2021 | $4,000 | $300,000 | $0 | $304,000 | $304,000 |
| 2020 | $4,000 | $300,000 | $0 | $304,000 | $304,000 |
| 2019 | $4,000 | $300,000 | $0 | $304,000 | $304,000 |
| 2018 | $4,000 | $300,000 | $0 | $304,000 | $304,000 |
| 2017 | $4,000 | $300,000 | $0 | $304,000 | $304,000 |
| 2016 | $4,000 | $300,000 | $0 | $304,000 | $304,000 |
| 2015 | $4,000 | $300,000 | $0 | $304,000 | $304,000 |
| 2014 | $4,000 | $300,000 | $0 | $304,000 | $304,000 |
| 2013 | $4,000 | $293,078 | $0 | $297,078 | $297,078 |
| 2012 | $4,000 | $293,078 | $0 | $297,078 | $297,078 |
| 2011 | $4,000 | $293,078 | $0 | $297,078 | $297,078 |
| 2010 | $4,000 | $293,078 | $0 | $297,078 | $297,078 |
| 2009 | $4,000 | $260,801 | $0 | $264,801 | $264,801 |
| 2008 | $4,000 | $260,771 | $0 | $264,771 | $264,771 |
| 2007 | $4,000 | $243,200 | $0 | $247,200 | $247,200 |
Deed and Sales History
| 1 | 06/12/2009 | WD | Warranty Deed | SEIPP TRUSTEE, BARBARA J | PICCOLO, STEVEN R | | | $330,000.00 | 91339 | 4253837 |
| 2 | 10/12/2005 | 5 | DNU - Marriage License/Name Change | SEIPP, BARBARA J | SEIPP TRUSTEE, BARBARA J | | | $0.00 | 55854 | 4154999 |
| 3 | 10/12/2005 | WD | Warranty Deed | SAVELLE, DAVID | SEIPP, BARBARA J | | | $0.00 | 55853 | 4154998 |
| 4 | 12/28/1999 | WD | Warranty Deed | BENNETT TRUSTEE, ADRIAN C | SAVELLE, DAVID | | | $232,500.00 | 41 | 20000194 |
| 5 | 10/15/1998 | QCD | Quit Claim Deed | BENNETT, ADRIAN C | BENNETT TRUSTEE, ADRIAN C | | | $0.00 | 90367 | 99002299 |
| 6 | 02/01/1987 | WD | Warranty Deed | DUNHAM, CAROLYN T | BENNETT, ADRIAN C | | | $0.00 | 71280 | 87006293 |
| 7 | 05/01/1983 | OTHER | Other - Misc. Documents | DUNHAM, CAROLYN T | DUNHAM, CAROLYN T | | | $0.00 | 59964 | 409285 |
| 8 | 11/01/1982 | QCD | Quit Claim Deed | DUNHAM, CHARLES D | DUNHAM, CAROLYN T | | | $0.00 | 22827 | 402975 |
| 9 | 07/01/1979 | EXECUTORD | Executor Deed | Unknown | DUNHAM, CHARLES D | | | $8,470.00 | 93750 | 356489 |
Payout Agreement
| No payout information available.. |