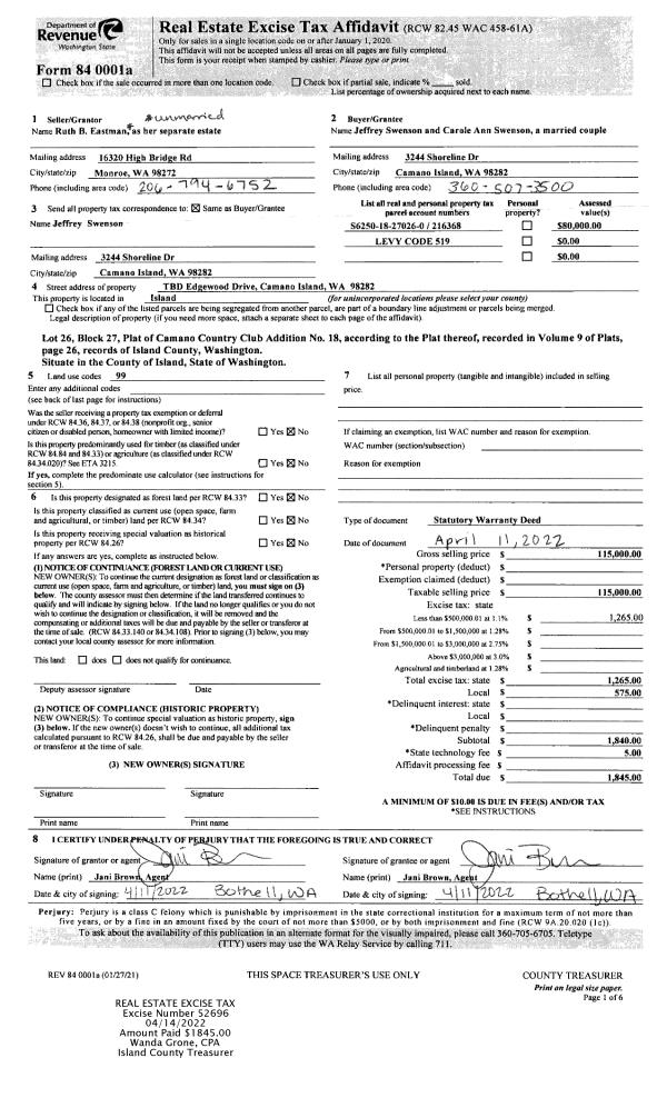
Property
Account |
| Property ID: | 557622 | Abbreviated Legal Description: | HIGHLANDS CAMANO LOT 2 SP 82-07.33015.7125-L1LB V1 SP P172 AF#402527 |
| Geographic ID: | S7125-00-00001-2 | Agent Code: | |
| Type: | Real | | |
| Tax Area: | 542 - APPRAISER-Stan/Cam Schl Dist, Special Dist, improved, greater than 1 acre | Land Use Code | 11 |
| Open Space: | N | DFL | N |
| Historic Property: | N | Remodel Property: | N |
| Multi-Family Redevelopment: | N | | |
| Township: | | Section: | |
| Range: | |
Location |
| Address: | 1300 SETH DR CAMANO ISLAND, WA 98282 | Mapsco: | |
| Neighborhood: | 58RscamWF-South Cam | Map ID: | 874 |
| Neighborhood CD: | 58RscamWF |
Owner |
| Name: | UNDERHILL, ROBERT A | Owner ID: | 64784 |
| Mailing Address: | CHERYL W UNDERHILL 3503 W LAURELHURST DR NE SEATTLE, WA 98105-5317 | % Ownership: | 100.0000000000% |
| | | Exemptions: | |
Taxes and Assessment Details
Values
| (+) Improvement Homesite Value: | + | $0 | |
| (+) Improvement Non-Homesite Value: | + | $1,046,359 | |
| (+) Land Homesite Value: | + | $0 | |
| (+) Land Non-Homesite Value: | + | $725,000 | |
| (+) Curr Use (HS): | + | $0 | $0 |
| (+) Curr Use (NHS): | + | $0 | $0 |
| | | -------------------------- | |
| (=) Market Value: | = | $1,771,359 | |
| (–) Productivity Loss: | – | $0 | |
| | | -------------------------- | |
| (=) Subtotal: | = | $1,771,359 | |
| (+) Senior Appraised Value: | + | $0 | |
| (+) Non-Senior Appraised Value: | + | $1,771,359 | |
| | | -------------------------- | |
| (=) Total Appraised Value: | = | $1,771,359 | |
| (–) Senior Exemption Loss: | – | $0 | |
| (–) Exemption Loss: | – | $0 | |
| | | -------------------------- | |
| (=) Taxable Value: | = | $1,771,359 | |
Taxing Jurisdiction
| Owner: | UNDERHILL, ROBERT A | | |
| % Ownership: | 100.0000000000% | | |
| Total Value: | $1,771,359 | | |
| Tax Area: | 542 - APPRAISER-Stan/Cam Schl Dist, Special Dist, improved, greater than 1 acre |
| CF | Conservation Futures | 0.0316035091 | $1,771,359 | $1,771,359 | $55.98 | | |
| EMS1 | Fire & Rescue Dist #1 Camano GEN (EMS) | 0.3677864386 | $1,771,359 | $1,771,359 | $651.48 | | |
| FIRE1 | Fire & Rescue Dist #1 Camano GEN | 1.2502910536 | $1,771,359 | $1,771,359 | $2,214.71 | | |
| FIRE1BOND | Fire & Rescue Dist #1 Camano BOND | 0.1570001679 | $1,771,359 | $1,771,359 | $278.10 | | |
| CE | County Current Expense | 0.3708482477 | $1,771,359 | $1,771,359 | $656.91 | | |
| CR | County Roads | 0.4584763726 | $1,771,359 | $1,771,359 | $812.13 | | |
| LCIB | Library Sno-Isle BOND (Camano Island) | 0.0396325772 | $1,771,359 | $1,771,359 | $70.20 | | |
| LIB | Library Sno-Isle GEN | 0.3153421757 | $1,771,359 | $1,771,359 | $558.58 | | |
| SCH205_401 | School 205-401 Enrichment | 1.2698420524 | $1,771,359 | $1,771,359 | $2,249.35 | | |
| SCH205BOND | School 205-401 BOND | 0.9396497583 | $1,771,359 | $1,771,359 | $1,664.46 | | |
| ST | State School | 1.3035497053 | $1,771,359 | $1,771,359 | $2,309.05 | | |
| ST2 | State School Part 2 | 0.8169543533 | $1,771,359 | $1,771,359 | $1,447.12 | | |
| | Total Tax Rate: | 7.3209764117 | | | | | |
| | | | | Taxes w/Current Exemptions: | $12,968.07 | | |
| | | | | Taxes w/o Exemptions: | $12,968.07 | | |
Improvement / Building
| Improvement #1: | RESIDENTIAL | State Code: | Y | 4719.5 sqft | Value: | $1,046,359 |
| Bathrooms: | 4 | Bedrooms: | 3 | | Ceiling: | TONGUE & GROOVE | Exterior Wall/Cover: | WOOD SIDING | | Floor Covering: | HARDWOOD/CARP 60-40 | Floor Structure: | WOOD W/SUBFLOOR | | Foundation: | SLAB/CONCRETE | Heating: | FHA GAS | | Interior Finish: | DRYWALL PAINT | Plumbing Fixture Cnt: | 17 | | Roof Slope: | 5" IN 12" | Roof Structure/Cover: | BEAM ASPHALT |
|
| | Type | Description | Class CD | Sub Class CD | Year Built | Area |
| | BAS | BASE/MAIN FLOOR | 6 | 0 | 1978 | 4719.5 |
| | OP2 | OPEN PORCH W/STEPS | 6 | 0 | 1978 | 1156.2 |
| | OP4 | OPEN PORCH W/CEILING-ROOF | 6 | 0 | 1978 | 107.6 |
| | AGR | ATTACHED GARAGE | 6 | 0 | 1978 | 770.3 |
| | OWP | OPEN WOOD PORCH W/STEPS | 6 | 0 | 1978 | 53.0 |
Sketch
Property Image
Land
| 1 | HB | HIGH BLUFF | 1.9900 | 86684.40 | 158.00 | 0.00 | 1.00 | $725,000 | $0 |
Roll Value History
| 2026 | N/A | N/A | N/A | N/A | N/A |
| 2025 | $1,046,359 | $725,000 | $0 | $1,771,359 | $1,771,359 |
| 2024 | $1,030,667 | $700,000 | $0 | $1,730,667 | $1,730,667 |
| 2023 | $1,042,347 | $700,000 | $0 | $1,742,347 | $1,742,347 |
| 2022 | $951,788 | $600,000 | $0 | $1,551,788 | $1,551,788 |
| 2021 | $816,647 | $475,000 | $0 | $1,291,647 | $1,291,647 |
| 2020 | $796,306 | $400,000 | $0 | $1,196,306 | $1,196,306 |
| 2019 | $771,686 | $450,000 | $0 | $1,221,686 | $1,221,686 |
| 2018 | $773,823 | $300,000 | $0 | $1,073,823 | $1,073,823 |
| 2017 | $778,099 | $300,000 | $0 | $1,078,099 | $1,078,099 |
| 2016 | $786,648 | $300,000 | $0 | $1,086,648 | $1,086,648 |
| 2015 | $791,203 | $300,000 | $0 | $1,091,203 | $1,091,203 |
| 2014 | $799,898 | $300,000 | $0 | $1,099,898 | $1,099,898 |
| 2013 | $802,002 | $298,510 | $0 | $1,100,512 | $1,100,512 |
| 2012 | $804,528 | $355,196 | $0 | $1,159,724 | $1,159,724 |
| 2011 | $813,342 | $443,995 | $0 | $1,257,337 | $1,257,337 |
| 2010 | $844,600 | $493,328 | $0 | $1,337,928 | $1,337,928 |
| 2009 | $819,115 | $546,077 | $0 | $1,365,192 | $1,365,192 |
| 2008 | $890,057 | $582,015 | $0 | $1,472,072 | $1,472,072 |
| 2007 | $785,550 | $696,620 | $0 | $1,482,170 | $1,482,170 |
Deed and Sales History
| 1 | 02/20/2006 | WD | Warranty Deed | WELLS, RONALD J | UNDERHILL, ROBERT A | | | $960,000.00 | 60865 | 4163447 |
| 2 | 11/28/2003 | QCD | Quit Claim Deed | HOPKINS, PAUL S | WELLS, RONALD J | | | $288,412.00 | 35447 | 4084975 |
| 3 | 11/07/2000 | QCD | Quit Claim Deed | FIRST UNION MTG CORP, | HOPKINS, PAUL S | | | $325,000.00 | 4282 | 20017557 |
| 4 | 01/06/2000 | QCD | Quit Claim Deed | INCHCAPE PROPERTIES INC, | FIRST UNION MTG CORP, | | | $0.00 | 232 | 20001227 |
| 5 | 07/06/1998 | QCD | Quit Claim Deed | INCHCAPE, PROPERTIES I | INCHCAPE PROPERTIES INC, | | | $0.00 | 82651 | 98013693 |
| 6 | 05/01/1997 | TRUSTEED | Trustee's Deed | HAMPTONS, TRUST S | CENTRUM, FINANCIAL S | | | $0.00 | 71557 | 97007190 |
| 7 | 04/01/1996 | QCD | Quit Claim Deed | O'BANNON, LESLIE | HAMPTONS, TRUST S | | | $0.00 | 61372 | 96006958 |
| 8 | 10/01/1994 | QCD | Quit Claim Deed | EDMONDSON, FAM B | O'BANNON, LESLIE | | | $0.00 | 44042 | 94020823 |
| 9 | 06/01/1994 | TRUSTEED | Trustee's Deed | KEARNEY, ELIZABETH E | WASHINGTON, MUTUAL S | | | $0.00 | 42289 | 94013026 |
| 10 | 06/01/1994 | TRUSTEED | Trustee's Deed | WASHINGTON, MUTUAL S | EDMONDSON, FAM B | | | $0.00 | 44041 | 94020822 |
| 11 | 06/01/1993 | WD | Warranty Deed | EDMONDSON, FAMILY T | GAINES, RICHARD & | | | $0.00 | 32551 | 93013133 |
| 12 | 06/01/1993 | WD | Warranty Deed | GAINES, RICHARD & | KEARNEY, ELIZABETH E | | | $0.00 | 32871 | 93014782 |
| 13 | 09/01/1992 | QCD | Quit Claim Deed | DUNEHAVEN, TRUST | EDMONDSON, FAMILY T | | | $0.00 | 23567 | 92017285 |
| 14 | 07/01/1992 | QCD | Quit Claim Deed | KEARNEY, ELIZABETH & | DUNEHAVEN, TRUST | | | $0.00 | 22645 | 92012766 |
| 15 | 12/01/1989 | QCD | Quit Claim Deed | KEARNEY, ELIZABETH | KEARNEY, ELIZABETH & | | | $0.00 | 95891 | 89018976 |
| 16 | 09/01/1989 | WD | Warranty Deed | UNIVERSITY, OF W | KEARNEY, ELIZABETH | | | $250,000.00 | 94056 | 89013420 |
| 17 | 02/01/1988 | OTHER | Other - Misc. Documents | UNIVERSITY, OF W | UNIVERSITY, OF W | | | $0.00 | 62490 | 0 |
| 18 | 07/01/1986 | WD | Warranty Deed | SOMERS, JOHN A | UNIVERSITY, OF W | | | $0.00 | 61948 | 86009138 |
| 19 | 11/01/1982 | OTHER | Other - Misc. Documents | Unknown | SOMERS, JOHN A | | | $0.00 | 0 | 0 |
| 20 | 01/01/1900 | OTHER | Other - Misc. Documents | CENTRUM, FINANCIAL S | INCHCAPE, PROPERTIES I | | | $0.00 | 82651 | 98013693 |
Payout Agreement
| No payout information available.. |