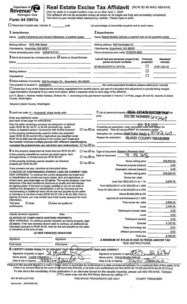
Property
Account |
| Property ID: | 558649 | Abbreviated Legal Description: | S420' OF GL2 EX PT LY NELY OF LN DESC: BG SECR GL2 N95 TPB NWLY TP ON NLN OF S420' OF GL2 280'W OF NECR OF S420' OF GL2 TERM LN TGW EZ FR 270-1150 & 290-1050 PER REV #2 SP 79-222 (LAND SLIDE AREA) 12/30/82 DRAINFIELD FOR 297-1300 AF#85013679 (TR A/ |
| Geographic ID: | R23130-287-1000 | Agent Code: | |
| Type: | Real | | |
| Tax Area: | 312 - APPRAISER-Cpvl Schl Dist, outside Cpvl, improved, greater than 1 acre | Land Use Code | 11 |
| Open Space: | N | DFL | N |
| Historic Property: | N | Remodel Property: | N |
| Multi-Family Redevelopment: | N | | |
| Township: | 31 | Section: | 30 |
| Range: | R2 |
Location |
| Address: | 1785 DRIFTWOOD WAY COUPEVILLE, WA 98239 | Mapsco: | |
| Neighborhood: | Area 2 Waterfront Westside Residential | Map ID: | 522 |
| Neighborhood CD: | 2WFW01R |
Owner |
| Name: | MERCHANT TTEE, COROLYN M | Owner ID: | 314364 |
| Mailing Address: | 16234 84TH AVE NE KENMORE, WA 98028 | % Ownership: | 100.0000000000% |
| | | Exemptions: | |
Taxes and Assessment Details
Values
| (+) Improvement Homesite Value: | + | $0 | |
| (+) Improvement Non-Homesite Value: | + | $225,743 | |
| (+) Land Homesite Value: | + | $0 | |
| (+) Land Non-Homesite Value: | + | $495,000 | |
| (+) Curr Use (HS): | + | $0 | $0 |
| (+) Curr Use (NHS): | + | $0 | $0 |
| | | -------------------------- | |
| (=) Market Value: | = | $720,743 | |
| (–) Productivity Loss: | – | $0 | |
| | | -------------------------- | |
| (=) Subtotal: | = | $720,743 | |
| (+) Senior Appraised Value: | + | $0 | |
| (+) Non-Senior Appraised Value: | + | $720,743 | |
| | | -------------------------- | |
| (=) Total Appraised Value: | = | $720,743 | |
| (–) Senior Exemption Loss: | – | $0 | |
| (–) Exemption Loss: | – | $0 | |
| | | -------------------------- | |
| (=) Taxable Value: | = | $720,743 | |
Taxing Jurisdiction
| Owner: | MERCHANT TTEE, COROLYN M | | |
| % Ownership: | 100.0000000000% | | |
| Total Value: | $720,743 | | |
| Tax Area: | 312 - APPRAISER-Cpvl Schl Dist, outside Cpvl, improved, greater than 1 acre |
| CF | Conservation Futures | 0.0316035091 | $720,743 | $720,743 | $22.78 | | |
| CEM2 | Cemetery #2 | 0.0095056933 | $720,743 | $720,743 | $6.85 | | |
| FIRE5 | Fire & Rescue Dist #5 C Whidbey GEN | 1.2008080668 | $720,743 | $720,743 | $865.47 | | |
| FIRE5BOND | Fire & Rescue Dist #5 C Whidbey BOND | 0.1400090713 | $720,743 | $720,743 | $100.91 | | |
| HOBOND | Hospital BOND | 0.1910887512 | $720,743 | $720,743 | $137.73 | | |
| HOGEN | Hospital GEN | 0.3902502903 | $720,743 | $720,743 | $281.27 | | |
| CE | County Current Expense | 0.3708482477 | $720,743 | $720,743 | $267.29 | | |
| CR | County Roads | 0.4584763726 | $720,743 | $720,743 | $330.44 | | |
| ISLANDEMS | Hospital GEN (EMS) | 0.5000000000 | $720,743 | $720,743 | $360.37 | | |
| LIB | Library Sno-Isle GEN | 0.3153421757 | $720,743 | $720,743 | $227.28 | | |
| LIBCAP | Library Sno-Isle BOND (Cap Fac Imp Area) | 0.0543427938 | $720,743 | $720,743 | $39.17 | | |
| POCOUP | Port of Coupeville GEN | 0.1093371703 | $720,743 | $720,743 | $78.80 | | |
| POCOUPIDD | Port of Coupeville IDD | 0.3409740022 | $720,743 | $720,743 | $245.75 | | |
| COUPSDTECH | School 204 CP (TECH) | 0.7545480007 | $720,743 | $720,743 | $543.84 | | |
| SCH204MO | School 204 Enrichment | 0.6716186034 | $720,743 | $720,743 | $484.06 | | |
| ST | State School | 1.3035497053 | $720,743 | $720,743 | $939.52 | | |
| ST2 | State School Part 2 | 0.8169543533 | $720,743 | $720,743 | $588.81 | | |
| | Total Tax Rate: | 7.6592568070 | | | | | |
| | | | | Taxes w/Current Exemptions: | $5,520.34 | | |
| | | | | Taxes w/o Exemptions: | $5,520.34 | | |
Improvement / Building
| Improvement #1: | RESIDENTIAL | State Code: | Y | 1408.0 sqft | Value: | $225,743 |
| Bathrooms: | 2 | Bedrooms: | 2 | | Ceiling: | DRYWALL PAINTED | Exterior Wall/Cover: | WOOD SIDING | | Floor Covering: | HARDWOOD/CARP 20-80 | Floor Structure: | WOOD W/SUBFLOOR | | Foundation: | CONCRETE | Heating: | WALL HEAT ELECTRIC | | Interior Finish: | DRYWALL PAINT | Plumbing Fixture Cnt: | 9 | | Roof Slope: | 6" IN 12" | Roof Structure/Cover: | CJ ASPHALT |
|
| | Type | Description | Class CD | Sub Class CD | Year Built | Area |
| | BAS | BASE/MAIN FLOOR | 3 | 0 | 1987 | 1120.0 |
| | OWP | OPEN WOOD PORCH W/STEPS | 3 | 0 | 1987 | 32.0 |
| | OWP | OPEN WOOD PORCH W/STEPS | 3 | 0 | 1987 | 32.0 |
| | OWP | OPEN WOOD PORCH W/STEPS | 3 | 0 | 1987 | 571.0 |
| | UPH | HALF STORY | 3 | 0 | 1987 | 288.0 |
| | DGR | DETACHED GARAGE | 3 | 0 | 1987 | 432.0 |
Sketch
| No sketches available for this property. |
Property Image
Land
| 1 | HB | HIGH BLUFF | 3.2100 | 139827.60 | 207.50 | 0.00 | 1.00 | $495,000 | $0 |
Roll Value History
| 2026 | N/A | N/A | N/A | N/A | N/A |
| 2025 | $225,743 | $495,000 | $0 | $720,743 | $720,743 |
| 2024 | $222,612 | $475,000 | $0 | $697,612 | $697,612 |
| 2023 | $225,691 | $450,000 | $0 | $675,691 | $675,691 |
| 2022 | $207,155 | $450,000 | $0 | $657,155 | $657,155 |
| 2021 | $182,562 | $300,000 | $0 | $482,562 | $482,562 |
| 2020 | $178,012 | $300,000 | $0 | $478,012 | $478,012 |
| 2019 | $128,738 | $320,000 | $0 | $448,738 | $448,738 |
| 2018 | $126,207 | $250,000 | $0 | $376,207 | $376,207 |
| 2017 | $126,975 | $250,000 | $0 | $376,975 | $376,975 |
| 2016 | $128,508 | $250,000 | $0 | $378,508 | $378,508 |
| 2015 | $130,045 | $250,000 | $0 | $380,045 | $380,045 |
| 2014 | $131,578 | $250,000 | $0 | $381,578 | $381,578 |
| 2013 | $133,112 | $200,078 | $0 | $333,190 | $333,190 |
| 2012 | $129,776 | $200,078 | $0 | $329,854 | $329,854 |
| 2011 | $131,288 | $200,078 | $0 | $331,366 | $331,366 |
| 2010 | $134,574 | $200,078 | $0 | $334,652 | $334,652 |
| 2009 | $140,142 | $234,931 | $0 | $375,073 | $375,073 |
| 2008 | $141,949 | $235,932 | $0 | $377,881 | $377,881 |
| 2007 | $106,314 | $273,379 | $0 | $379,693 | $379,693 |
Deed and Sales History
| 1 | 10/25/2024 | QCD | Quit Claim Deed | ESTATE OF HOWARD C MERCHANT | MERCHANT TTEE, COROLYN M | | | $10.00 | 61687 | 4578709 |
| 2 | 02/01/1994 | WD | Warranty Deed | ANDERSON, BRUCE R | MERCHANT, HOWARD C | | | $337,500.00 | 40576 | 94003702 |
| 3 | 03/01/1988 | QCD | Quit Claim Deed | ANDERSON, BRUCE R | ANDERSON, BRUCE R | | | $0.00 | 80784 | 88003124 |
| 4 | 08/01/1986 | WD | Warranty Deed | HOVIS, WATSON B | ANDERSON, BRUCE R | | | $60,000.00 | 62322 | 86010620 |
| 5 | 01/01/1900 | OTHER | Other - Misc. Documents | Unknown | HOVIS, WATSON B | | | $0.00 | 0 | 0 |
Payout Agreement
| No payout information available.. |