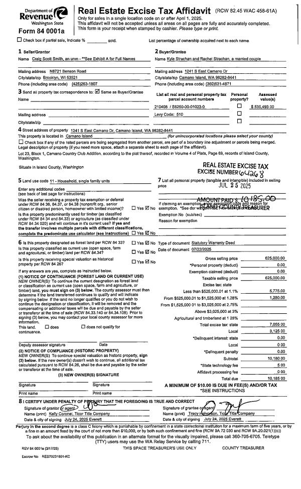
Property
Account |
| Property ID: | 558676 | Abbreviated Legal Description: | TR 3 SP79-223 REV #2 7/8/82 PT GL3 & NW NW SE LY NLY OF NLN LEDGEWOOD BCH & LY WLY OF LN PARL/W & 50' WLY OF WLY LN LEDGEWOOD BCH #3 EX S249.30' TGW & SUB EAS FR 255-125 & 265-1250 12/30/82 |
| Geographic ID: | R23130-262-1210 | Agent Code: | |
| Type: | Real | | |
| Tax Area: | 312 - APPRAISER-Cpvl Schl Dist, outside Cpvl, improved, greater than 1 acre | Land Use Code | 11 |
| Open Space: | N | DFL | N |
| Historic Property: | N | Remodel Property: | N |
| Multi-Family Redevelopment: | N | | |
| Township: | 31 | Section: | 30 |
| Range: | R2 |
Location |
| Address: | 1800 DRIFTWOOD WAY COUPEVILLE, WA 98239 | Mapsco: | |
| Neighborhood: | Area 2 Waterfront Westside Residential | Map ID: | 520 |
| Neighborhood CD: | 2WFW01R |
Owner |
| Name: | BRETTMANN, KENNETH F | Owner ID: | 8160 |
| Mailing Address: | 8820 SE 63RD ST MERCER ISLAND, WA 98040 | % Ownership: | 100.0000000000% |
| | | Exemptions: | |
Taxes and Assessment Details
Values
| (+) Improvement Homesite Value: | + | $0 | |
| (+) Improvement Non-Homesite Value: | + | $691,826 | |
| (+) Land Homesite Value: | + | $0 | |
| (+) Land Non-Homesite Value: | + | $360,000 | |
| (+) Curr Use (HS): | + | $0 | $0 |
| (+) Curr Use (NHS): | + | $0 | $0 |
| | | -------------------------- | |
| (=) Market Value: | = | $1,051,826 | |
| (–) Productivity Loss: | – | $0 | |
| | | -------------------------- | |
| (=) Subtotal: | = | $1,051,826 | |
| (+) Senior Appraised Value: | + | $0 | |
| (+) Non-Senior Appraised Value: | + | $1,051,826 | |
| | | -------------------------- | |
| (=) Total Appraised Value: | = | $1,051,826 | |
| (–) Senior Exemption Loss: | – | $0 | |
| (–) Exemption Loss: | – | $0 | |
| | | -------------------------- | |
| (=) Taxable Value: | = | $1,051,826 | |
Taxing Jurisdiction
| Owner: | BRETTMANN, KENNETH F | | |
| % Ownership: | 100.0000000000% | | |
| Total Value: | $1,051,826 | | |
| Tax Area: | 312 - APPRAISER-Cpvl Schl Dist, outside Cpvl, improved, greater than 1 acre |
| CF | Conservation Futures | 0.0316035091 | $1,051,826 | $1,051,826 | $33.24 | | |
| CEM2 | Cemetery #2 | 0.0095056933 | $1,051,826 | $1,051,826 | $10.00 | | |
| FIRE5 | Fire & Rescue Dist #5 C Whidbey GEN | 1.2008080668 | $1,051,826 | $1,051,826 | $1,263.04 | | |
| FIRE5BOND | Fire & Rescue Dist #5 C Whidbey BOND | 0.1400090713 | $1,051,826 | $1,051,826 | $147.27 | | |
| HOBOND | Hospital BOND | 0.1910887512 | $1,051,826 | $1,051,826 | $200.99 | | |
| HOGEN | Hospital GEN | 0.3902502903 | $1,051,826 | $1,051,826 | $410.48 | | |
| CE | County Current Expense | 0.3708482477 | $1,051,826 | $1,051,826 | $390.07 | | |
| CR | County Roads | 0.4584763726 | $1,051,826 | $1,051,826 | $482.24 | | |
| ISLANDEMS | Hospital GEN (EMS) | 0.5000000000 | $1,051,826 | $1,051,826 | $525.91 | | |
| LIB | Library Sno-Isle GEN | 0.3153421757 | $1,051,826 | $1,051,826 | $331.69 | | |
| LIBCAP | Library Sno-Isle BOND (Cap Fac Imp Area) | 0.0543427938 | $1,051,826 | $1,051,826 | $57.16 | | |
| POCOUP | Port of Coupeville GEN | 0.1093371703 | $1,051,826 | $1,051,826 | $115.00 | | |
| POCOUPIDD | Port of Coupeville IDD | 0.3409740022 | $1,051,826 | $1,051,826 | $358.65 | | |
| COUPSDTECH | School 204 CP (TECH) | 0.7545480007 | $1,051,826 | $1,051,826 | $793.65 | | |
| SCH204MO | School 204 Enrichment | 0.6716186034 | $1,051,826 | $1,051,826 | $706.43 | | |
| ST | State School | 1.3035497053 | $1,051,826 | $1,051,826 | $1,371.11 | | |
| ST2 | State School Part 2 | 0.8169543533 | $1,051,826 | $1,051,826 | $859.29 | | |
| | Total Tax Rate: | 7.6592568070 | | | | | |
| | | | | Taxes w/Current Exemptions: | $8,056.22 | | |
| | | | | Taxes w/o Exemptions: | $8,056.22 | | |
Improvement / Building
| Improvement #1: | RESIDENTIAL | State Code: | Y | 2746.0 sqft | Value: | $691,826 |
| Bathrooms: | 3.5 | Bedrooms: | 3 | | Ceiling: | TONGUE & GROOVE | Exterior Wall/Cover: | WOOD SIDING | | Floor Covering: | CERAMIC TILE/HWD 40/60 | Floor Structure: | WOOD W/SUBFLOOR | | Foundation: | CONCRETE | Heating: | FHA GAS | | Interior Finish: | DRYWALL PAINT | Plumbing Fixture Cnt: | 16 | | Roof Slope: | 6" IN 12" | Roof Structure/Cover: | STEEL TERNE |
|
| | Type | Description | Class CD | Sub Class CD | Year Built | Area |
| | BAS | BASE/MAIN FLOOR | 5 | 0 | 2002 | 1988.9 |
| | AGR | ATTACHED GARAGE | 5 | 0 | 2002 | 715.3 |
| | UPS | UPPER STORY | 5 | 0 | 2002 | 757.1 |
| | OWP | OPEN WOOD PORCH W/STEPS | 5 | 0 | 2002 | 19.0 |
| | OWP | OPEN WOOD PORCH W/STEPS | 5 | 0 | 2002 | 909.8 |
| | OWR | OPEN WOOD PORCH W/STEPS/ROOF | 5 | 0 | 2002 | 204.8 |
| | OWC | OPEN WOOD PORCH W/STEPS/ROOF/C | 5 | 0 | 2002 | 24.7 |
Sketch
Property Image
Land
| 1 | HB | HIGH BLUFF | 1.5000 | 65340.00 | 125.00 | 0.00 | 1.00 | $360,000 | $0 |
Roll Value History
| 2026 | N/A | N/A | N/A | N/A | N/A |
| 2025 | $691,826 | $360,000 | $0 | $1,051,826 | $1,051,826 |
| 2024 | $691,826 | $340,000 | $0 | $1,031,826 | $1,031,826 |
| 2023 | $700,447 | $325,000 | $0 | $1,025,447 | $1,025,447 |
| 2022 | $642,053 | $250,000 | $0 | $892,053 | $892,053 |
| 2021 | $565,101 | $225,000 | $0 | $790,101 | $790,101 |
| 2020 | $550,558 | $180,000 | $0 | $730,558 | $730,558 |
| 2019 | $444,432 | $220,000 | $0 | $664,432 | $664,432 |
| 2018 | $435,533 | $200,000 | $0 | $635,533 | $635,533 |
| 2017 | $437,987 | $200,000 | $0 | $637,987 | $637,987 |
| 2016 | $443,203 | $200,000 | $0 | $643,203 | $643,203 |
| 2015 | $448,414 | $200,000 | $0 | $648,414 | $648,414 |
| 2014 | $453,629 | $200,000 | $0 | $653,629 | $653,629 |
| 2013 | $458,844 | $187,993 | $0 | $646,837 | $646,837 |
| 2012 | $464,179 | $187,993 | $0 | $652,172 | $652,172 |
| 2011 | $469,394 | $187,993 | $0 | $657,387 | $657,387 |
| 2010 | $478,282 | $187,993 | $0 | $666,275 | $666,275 |
| 2009 | $493,257 | $226,487 | $0 | $719,744 | $719,744 |
| 2008 | $498,840 | $226,728 | $0 | $725,568 | $725,568 |
| 2007 | $419,709 | $316,622 | $0 | $736,331 | $736,331 |
Deed and Sales History
| 1 | 03/01/1988 | WD | Warranty Deed | HOVIS, WATSON B | BRETTMANN, KENNETH F | | | $57,000.00 | 81006 | 88003854 |
| 2 | 01/01/1900 | OTHER | Other - Misc. Documents | Unknown | HOVIS, WATSON B | | | $0.00 | 0 | 0 |
Payout Agreement
| No payout information available.. |