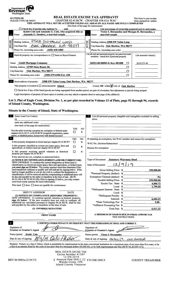
Property
Account |
| Property ID: | 558783 | Abbreviated Legal Description: | TR 12 SP 81-34.33132.328-1910 AF#403576 V1 SP P183 |
| Geographic ID: | R33132-294-1160 | Agent Code: | |
| Type: | Real | | |
| Tax Area: | 542 - APPRAISER-Stan/Cam Schl Dist, Special Dist, improved, greater than 1 acre | Land Use Code | 11 |
| Open Space: | N | DFL | N |
| Historic Property: | N | Remodel Property: | N |
| Multi-Family Redevelopment: | N | | |
| Township: | 31 | Section: | 32 |
| Range: | R3 |
Location |
| Address: | 486 SHANNARON LN CAMANO ISLAND, WA 98282 | Mapsco: | |
| Neighborhood: | Cycle 5 | Map ID: | 946 |
| Neighborhood CD: | 5 |
Owner |
| Name: | PLATT, ANDREW D | Owner ID: | 291875 |
| Mailing Address: | ERIN K PLATT 486 SHANNARON LN CAMANO ISLAND, WA 98282 | % Ownership: | 100.0000000000% |
| | | Exemptions: | |
Taxes and Assessment Details
Values
| (+) Improvement Homesite Value: | + | $0 | |
| (+) Improvement Non-Homesite Value: | + | $757,940 | |
| (+) Land Homesite Value: | + | $0 | |
| (+) Land Non-Homesite Value: | + | $330,000 | |
| (+) Curr Use (HS): | + | $0 | $0 |
| (+) Curr Use (NHS): | + | $0 | $0 |
| | | -------------------------- | |
| (=) Market Value: | = | $1,087,940 | |
| (–) Productivity Loss: | – | $0 | |
| | | -------------------------- | |
| (=) Subtotal: | = | $1,087,940 | |
| (+) Senior Appraised Value: | + | $0 | |
| (+) Non-Senior Appraised Value: | + | $1,087,940 | |
| | | -------------------------- | |
| (=) Total Appraised Value: | = | $1,087,940 | |
| (–) Senior Exemption Loss: | – | $0 | |
| (–) Exemption Loss: | – | $0 | |
| | | -------------------------- | |
| (=) Taxable Value: | = | $1,087,940 | |
Taxing Jurisdiction
| Owner: | PLATT, ANDREW D | | |
| % Ownership: | 100.0000000000% | | |
| Total Value: | $1,087,940 | | |
| Tax Area: | 542 - APPRAISER-Stan/Cam Schl Dist, Special Dist, improved, greater than 1 acre |
| CF | Conservation Futures | 0.0316035091 | $1,087,940 | $1,087,940 | $34.38 | | |
| EMS1 | Fire & Rescue Dist #1 Camano GEN (EMS) | 0.3677864386 | $1,087,940 | $1,087,940 | $400.13 | | |
| FIRE1 | Fire & Rescue Dist #1 Camano GEN | 1.2502910536 | $1,087,940 | $1,087,940 | $1,360.24 | | |
| FIRE1BOND | Fire & Rescue Dist #1 Camano BOND | 0.1570001679 | $1,087,940 | $1,087,940 | $170.81 | | |
| CE | County Current Expense | 0.3708482477 | $1,087,940 | $1,087,940 | $403.46 | | |
| CR | County Roads | 0.4584763726 | $1,087,940 | $1,087,940 | $498.79 | | |
| LCIB | Library Sno-Isle BOND (Camano Island) | 0.0396325772 | $1,087,940 | $1,087,940 | $43.12 | | |
| LIB | Library Sno-Isle GEN | 0.3153421757 | $1,087,940 | $1,087,940 | $343.07 | | |
| SCH205_401 | School 205-401 Enrichment | 1.2698420524 | $1,087,940 | $1,087,940 | $1,381.51 | | |
| SCH205BOND | School 205-401 BOND | 0.9396497583 | $1,087,940 | $1,087,940 | $1,022.28 | | |
| ST | State School | 1.3035497053 | $1,087,940 | $1,087,940 | $1,418.18 | | |
| ST2 | State School Part 2 | 0.8169543533 | $1,087,940 | $1,087,940 | $888.80 | | |
| | Total Tax Rate: | 7.3209764117 | | | | | |
| | | | | Taxes w/Current Exemptions: | $7,964.77 | | |
| | | | | Taxes w/o Exemptions: | $7,964.77 | | |
Improvement / Building
| Improvement #1: | RESIDENTIAL | State Code: | Y | 3470.2 sqft | Value: | $757,940 |
| Bathrooms: | 3.5 | Bedrooms: | 3 | | Ceiling: | DRYWALL PAINTED | Cooling: | HEAT PUMP/CONV/V | | Exterior Wall/Cover: | CEMENT FIBER | Floor Covering: | HARDWOOD/CARP 60-40 | | Floor Structure: | WOOD W/SUBFLOOR | Foundation: | CONCRETE | | Interior Finish: | DRYWALL PAINT | Plumbing Fixture Cnt: | 17 | | Roof Slope: | 6" IN 12" | Roof Structure/Cover: | CJ ASPHALT |
|
| | Type | Description | Class CD | Sub Class CD | Year Built | Area |
| | BAS | BASE/MAIN FLOOR | 4 | 0 | 2006 | 1908.0 |
| | BIG | BUILT IN GARAGE | 4 | 0 | 2006 | 752.8 |
| | UPS | UPPER STORY | 4 | 0 | 2006 | 1011.0 |
| | OWP | OPEN WOOD PORCH W/STEPS | 4 | 0 | 2006 | 158.0 |
| | OWR | OPEN WOOD PORCH W/STEPS/ROOF | 4 | 0 | 2006 | 194.8 |
| | OWC | OPEN WOOD PORCH W/STEPS/ROOF/C | 4 | 0 | 2006 | 562.4 |
| | UPH | HALF STORY | 4 | 0 | 2006 | 551.2 |
| | DGR | DETACHED GARAGE | 4 | 0 | 2006 | 1120.0 |
| | CPD | OPEN CARPORT DIRT FLOOR | 4 | 0 | 2006 | 560.0 |
| | OCP | OPEN CARPORT | 4 | 0 | 2006 | 120.0 |
Sketch
| No sketches available for this property. |
Property Image
Land
| 1 | 32 | AC (03.01-09.99) | 5.0400 | 0.00 | 0.00 | 0.00 | 1.00 | $330,000 | $0 |
Roll Value History
| 2026 | N/A | N/A | N/A | N/A | N/A |
| 2025 | $757,940 | $330,000 | $0 | $1,087,940 | $1,087,940 |
| 2024 | $766,831 | $300,000 | $0 | $1,066,831 | $1,066,831 |
| 2023 | $775,721 | $290,000 | $0 | $1,065,721 | $1,065,721 |
| 2022 | $710,481 | $260,000 | $0 | $970,481 | $970,481 |
| 2021 | $532,405 | $190,000 | $0 | $722,405 | $722,405 |
| 2020 | $519,371 | $160,000 | $0 | $679,371 | $679,371 |
| 2019 | $423,186 | $230,000 | $0 | $653,186 | $653,186 |
| 2018 | $424,393 | $175,000 | $0 | $599,393 | $599,393 |
| 2017 | $426,798 | $150,000 | $0 | $576,798 | $576,798 |
| 2016 | $431,614 | $130,000 | $0 | $561,614 | $561,614 |
| 2015 | $429,235 | $100,000 | $0 | $529,235 | $529,235 |
| 2014 | $433,961 | $100,000 | $0 | $533,961 | $533,961 |
| 2013 | $438,689 | $108,864 | $0 | $547,553 | $547,553 |
| 2012 | $443,414 | $108,864 | $0 | $552,278 | $552,278 |
| 2011 | $448,142 | $136,080 | $0 | $584,222 | $584,222 |
| 2010 | $463,973 | $136,080 | $0 | $600,053 | $600,053 |
| 2009 | $479,996 | $161,280 | $0 | $641,276 | $641,276 |
| 2008 | $479,378 | $175,392 | $0 | $654,770 | $654,770 |
| 2007 | $479,759 | $175,392 | $0 | $655,151 | $655,151 |
Deed and Sales History
| 1 | 09/19/2019 | WD | Warranty Deed | KEETON, WILLIAM G | PLATT, ANDREW D | | | $689,000.00 | 40387 | 4471923 |
| 2 | 12/16/2009 | WD | Warranty Deed | CARLSON, ROBERT C | KEETON, WILLIAM G | | | $540,000.00 | 93077 | 4265458 |
| 3 | 07/10/2006 | WD | Warranty Deed | INGRUMAND, WELSEY G & VICKI L | CARLSON, ROBERT C | | | $636,000.00 | 63309 | 4177676 |
| 4 | 04/27/2005 | WD | Warranty Deed | CLARK, PATRICK | INGRUMAND, WELSEY G & VICKI L | | | $185,000.00 | 51832 | 4132706 |
| 5 | 08/23/2002 | WD | Warranty Deed | PENNINGTON, CHARLES F | CLARK, PATRICK | | | $68,000.00 | 23684 | 4031349 |
| 6 | 08/24/1999 | WD | Warranty Deed | BALVANZ, ELMER R/DEBRA K | PENNINGTON, CHARLES F | | | $63,000.00 | 93724 | 99020964 |
| 7 | 07/01/1995 | WD | Warranty Deed | HIGGINS, JOE E | BALVANZ, ELMER R | | | $42,500.00 | 52503 | 95011560 |
| 8 | 02/01/1992 | WD | Warranty Deed | HOLBECK, JEFFREY J | HIGGINS, JOE E | | | $42,700.00 | 20552 | 92002635 |
| 9 | 03/01/1990 | QCD | Quit Claim Deed | QUADRA, ENTERPRISES I | QUADRA, ENTERPRISES I | | | $0.00 | 1630 | 90005267 |
| 10 | 03/01/1990 | WD | Warranty Deed | QUADRA, ENTERPRISES I | HOLBECK, JEFFREY J | | | $17,700.00 | 1631 | 90005268 |
| 11 | 01/01/1900 | OTHER | Other - Misc. Documents | Unknown | QUADRA, ENTERPRISES I | | | $0.00 | 0 | 0 |
| 12 | 01/01/1900 | OTHER | Other - Misc. Documents | BALVANZ, ELMER R | BALVANZ, ELMER R/DEBRA K | | | $0.00 | 0 | 0 |
Payout Agreement
| No payout information available.. |